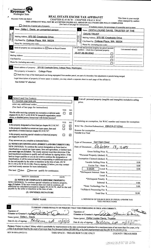
Property
Account |
| Property ID: | 4852 | Abbreviated Legal Description: | VILLAGES OF GARRISON CRK PHASE VI LOT 96, PLUS SWLY STRIP FROM LOT97 |
| Parcel Number: | 350736960042 | Agent Code: | |
| Type: | Real | | |
| Tax Area: | 77 - CP-250-F | Land Use Code | 11 |
| Open Space: | N | DFL | N |
| Historic Property: | N | Remodel Property: | N |
| Multi-Family Redevelopment: | N | | |
| Township: | 7 | Section: | 36 |
| Range: | 35 |
Location |
| Address: | 970 SE CREEKSIDE DR WA 99324 | Mapsco: | |
| Neighborhood: | G SFR | Map ID: | |
| Neighborhood CD: | 114011 |
Owner |
| Name: | DAVIS TRUST | Owner ID: | 57637 |
| Mailing Address: | PO BOX 871148 VANCOUVER, WA 98687 | % Ownership: | 100.0000000000% |
| | | Exemptions: | |
Taxes and Assessment Details
Property Tax Information as of
02/21/2026
Click on "Statement Details" to expand or collapse a tax statement.
* Please enter a valid date ** Please enter a valid date *
Statement Details |
| | TOTAL: | $0.00 | $0.00 | $0.00 | $0.00 | $0.00 | $0.00 |
|
| | $0.00 | $0.00 | $0.00 | $0.00 | $0.00 | $0.00 |
Values
| (+) Improvement Homesite Value: | + | $0 | |
| (+) Improvement Non-Homesite Value: | + | $492,050 | |
| (+) Land Homesite Value: | + | $0 | |
| (+) Land Non-Homesite Value: | + | $100,000 | |
| (+) Curr Use (HS): | + | $0 | $0 |
| (+) Curr Use (NHS): | + | $0 | $0 |
| | | -------------------------- | |
| (=) Market Value: | = | $592,050 | |
| (–) Productivity Loss: | – | $0 | |
| | | -------------------------- | |
| (=) Subtotal: | = | $592,050 | |
| (+) Senior Appraised Value: | + | $0 | |
| (+) Non-Senior Appraised Value: | + | $592,050 | |
| | | -------------------------- | |
| (=) Total Appraised Value: | = | $592,050 | |
| (–) Senior Exemption Loss: | – | $0 | |
| (–) Exemption Loss: | – | $0 | |
| | | -------------------------- | |
| (=) Taxable Value: | = | $592,050 | |
Taxing Jurisdiction
| Owner: | DAVIS TRUST | | |
| % Ownership: | 100.0000000000% | | |
| Total Value: | $592,050 | | |
| Tax Area: | 77 - CP-250-F |
| CERFD | CURRENT EXPENSE REFUND 010 | 0.0000000000 | $592,050 | $592,050 | $0.00 | | |
| CURREXP | CURRENT EXPENSE 010 | 1.0175366760 | $592,050 | $592,050 | $602.43 | | |
| HUMNSERV | HUMAN SERVICES 119 | 0.0250000000 | $592,050 | $592,050 | $14.80 | | |
| SLDREL | SOLDIERS RELIEF 121 | 0.0155990005 | $592,050 | $592,050 | $9.24 | | |
| COLLPLBOND | C OF CP BOND 644 | 0.4374241808 | $592,050 | $592,050 | $258.98 | | |
| COLLPLGEN | CITY OF CP 632 | 1.4453819216 | $592,050 | $592,050 | $855.74 | | |
| EMERGSER | EMS 147 | 0.3792580840 | $592,050 | $592,050 | $224.54 | | |
| EMSRFD | EMS REFUND 147 | 0.0000000000 | $592,050 | $592,050 | $0.00 | | |
| RURALLIB | RURAL LIBRARY 623 | 0.3710609029 | $592,050 | $592,050 | $219.69 | | |
| PORTRFD | PORT REFUND 640 | 0.0000000000 | $592,050 | $592,050 | $0.00 | | |
| PORTWWGEN | PORT OF WW 640 | 0.2460186015 | $592,050 | $592,050 | $145.66 | | |
| SD250BOND | SD #250 BOND 773 | 1.4560608159 | $592,050 | $592,050 | $862.06 | | |
| SD250GEN | SD #250 GENERAL 770 | 2.3880724087 | $592,050 | $592,050 | $1,413.86 | | |
| ST2 | STATE SCHOOL PART 2 600 | 0.8131451643 | $592,050 | $592,050 | $481.42 | | |
| STATESCHL | STATE SCHOOL 600 | 1.5158548041 | $592,050 | $592,050 | $897.46 | | |
| STREFUND | STATE REFUND LEVY 603 | 0.0000000000 | $592,050 | $592,050 | $0.00 | | |
| | Total Tax Rate: | 10.1104125603 | | | | | |
| | | | | Taxes w/Current Exemptions: | $5,985.88 | | |
| | | | | Taxes w/o Exemptions: | $5,985.88 | | |
Improvement / Building
| Improvement #1: | RESIDENTIAL | State Code: | 11 | 2346.0 sqft | Value: | $492,050 |
| Exterior Wall: | PLYWOOD | Heating/Cooling: | WARM & COOLED AIR | | Number of Bathrooms: | 2 | Number of Bedrooms: | 2 | | Plumbing: | 11 | Roof Covering: | COMP SHINGLE |
|
| | Type | Description | Class CD | Sub Class CD | Year Built | Area |
| | MA | Main Area | 1 | 45 | 2003 | 2346.0 |
| | GFP | GAS FIREPLACE | 1 | 45 | 0 | 1.0 |
| | RPC | OPEN PORCH W/ROOF , CEILED | 1 | 45 | 0 | 102.0 |
| | RPC | OPEN PORCH W/ROOF , CEILED | 1 | 45 | 0 | 144.0 |
| | SI1 | SITE IMPROVEMENT | 1 | 45 | 0 | 3.0 |
| | ATG | Attached Garage | 1 | 45 | 0 | 780.0 |
| | WOD | Wood Deck | 1 | 45 | 0 | 102.0 |
Sketch
Property Image
Land
| 1 | RES 1 | Converted: Residential | 0.2458 | 10705.00 | 0.00 | 0.00 | 1.00 | $100,000 | $0 |
Roll Value History
| 2026 | N/A | N/A | N/A | N/A | N/A |
| 2025 | $428,080 | $175,000 | $0 | $603,080 | $603,080 |
| 2024 | $492,050 | $100,000 | $0 | $592,050 | $592,050 |
| 2023 | $492,050 | $100,000 | $0 | $592,050 | $592,050 |
| 2022 | $492,050 | $100,000 | $0 | $592,050 | $592,050 |
| 2021 | $351,460 | $100,000 | $0 | $451,460 | $451,460 |
| 2020 | $305,620 | $100,000 | $0 | $405,620 | $405,620 |
| 2019 | $310,620 | $95,000 | $0 | $405,620 | $405,620 |
| 2018 | $270,100 | $95,000 | $0 | $365,100 | $365,100 |
| 2017 | $236,190 | $95,000 | $0 | $331,190 | $331,190 |
| 2016 | $236,190 | $95,000 | $0 | $331,190 | $331,190 |
| 2015 | $224,940 | $95,000 | $0 | $319,940 | $319,940 |
| 2014 | $195,600 | $95,000 | $0 | $290,600 | $290,600 |
| 2013 | $195,600 | $95,000 | $0 | $290,600 | $290,600 |
| 2012 | $239,000 | $95,000 | $0 | $0 | $0 |
| 2011 | $259,000 | $75,000 | $0 | $0 | $0 |
| 2010 | $259,000 | $75,000 | $0 | $0 | $0 |
| 2009 | $276,600 | $75,000 | $0 | $0 | $0 |
| 2008 | $197,700 | $45,000 | $0 | $0 | $0 |
| 2007 | $197,700 | $45,000 | $0 | $0 | $0 |
Deed and Sales History
| 1 | 10/13/2015 | QCD | QUIT CLAIM DEED | DAVIS ODITA L | DAVIS TRUST | | | | 129062 | 2015-09259 |
| 2 | 05/09/2014 | SWD | STATUTORY WARRANTY DEED | SNOW MARK BRADLEY | DAVIS ODITA L | | | $354,000.00 | 125859 | 2014-03183 |
| 3 | 06/29/2003 | WARRANTY D | WARRANTY DEED | PALMER, ROBERT L & PAULA F | SNOW, MARK BRADLEY | | | $265,000.00 | 102189 | 2003-07888 |
| 4 | 05/16/2002 | WARRANTY D | WARRANTY DEED | | | | | $41,000.00 | 99512 | 2002-0005778 |
Payout Agreement
| No payout information available.. |