Property
Account |
| Property ID: | 4840 | Abbreviated Legal Description: | VILLAGES OF GARRISON CRK PHASE VI LOT 87 |
| Parcel Number: | 350736960014 | Agent Code: | |
| Type: | Real | | |
| Tax Area: | 77 - CP-250-F | Land Use Code | 11 |
| Open Space: | N | DFL | N |
| Historic Property: | N | Remodel Property: | N |
| Multi-Family Redevelopment: | N | | |
| Township: | 7 | Section: | 36 |
| Range: | 35 |
Location |
| Address: | 875 SE CREEKSIDE DR WA 99324 | Mapsco: | |
| Neighborhood: | G Inferior SFR | Map ID: | |
| Neighborhood CD: | 114111 |
Owner |
| Name: | CORONADO JANE | Owner ID: | 11793 |
| Mailing Address: | 875 SE CREEKSIDE DR COLLEGE PLACE, WA 99324 | % Ownership: | 100.0000000000% |
| | | Exemptions: | |
Taxes and Assessment Details
Property Tax Information as of
02/21/2026
Click on "Statement Details" to expand or collapse a tax statement.
* Please enter a valid date ** Please enter a valid date *
Statement Details |
| | TOTAL: | $0.00 | $0.00 | $0.00 | $0.00 | $0.00 | $0.00 |
|
| | $0.00 | $0.00 | $0.00 | $0.00 | $0.00 | $0.00 |
Values
| (+) Improvement Homesite Value: | + | $0 | |
| (+) Improvement Non-Homesite Value: | + | $206,750 | |
| (+) Land Homesite Value: | + | $0 | |
| (+) Land Non-Homesite Value: | + | $60,000 | |
| (+) Curr Use (HS): | + | $0 | $0 |
| (+) Curr Use (NHS): | + | $0 | $0 |
| | | -------------------------- | |
| (=) Market Value: | = | $266,750 | |
| (–) Productivity Loss: | – | $0 | |
| | | -------------------------- | |
| (=) Subtotal: | = | $266,750 | |
| (+) Senior Appraised Value: | + | $0 | |
| (+) Non-Senior Appraised Value: | + | $266,750 | |
| | | -------------------------- | |
| (=) Total Appraised Value: | = | $266,750 | |
| (–) Senior Exemption Loss: | – | $0 | |
| (–) Exemption Loss: | – | $0 | |
| | | -------------------------- | |
| (=) Taxable Value: | = | $266,750 | |
Taxing Jurisdiction
| Owner: | CORONADO JANE | | |
| % Ownership: | 100.0000000000% | | |
| Total Value: | $266,750 | | |
| Tax Area: | 77 - CP-250-F |
| CERFD | CURRENT EXPENSE REFUND 010 | 0.0000000000 | $266,750 | $266,750 | $0.00 | | |
| CURREXP | CURRENT EXPENSE 010 | 1.0175366760 | $266,750 | $266,750 | $271.43 | | |
| HUMNSERV | HUMAN SERVICES 119 | 0.0250000000 | $266,750 | $266,750 | $6.67 | | |
| SLDREL | SOLDIERS RELIEF 121 | 0.0155990005 | $266,750 | $266,750 | $4.16 | | |
| COLLPLBOND | C OF CP BOND 644 | 0.4374241808 | $266,750 | $266,750 | $116.68 | | |
| COLLPLGEN | CITY OF CP 632 | 1.4453819216 | $266,750 | $266,750 | $385.56 | | |
| EMERGSER | EMS 147 | 0.3792580840 | $266,750 | $266,750 | $101.17 | | |
| EMSRFD | EMS REFUND 147 | 0.0000000000 | $266,750 | $266,750 | $0.00 | | |
| RURALLIB | RURAL LIBRARY 623 | 0.3710609029 | $266,750 | $266,750 | $98.98 | | |
| PORTRFD | PORT REFUND 640 | 0.0000000000 | $266,750 | $266,750 | $0.00 | | |
| PORTWWGEN | PORT OF WW 640 | 0.2460186015 | $266,750 | $266,750 | $65.63 | | |
| SD250BOND | SD #250 BOND 773 | 1.4560608159 | $266,750 | $266,750 | $388.40 | | |
| SD250GEN | SD #250 GENERAL 770 | 2.3880724087 | $266,750 | $266,750 | $637.02 | | |
| ST2 | STATE SCHOOL PART 2 600 | 0.8131451643 | $266,750 | $266,750 | $216.91 | | |
| STATESCHL | STATE SCHOOL 600 | 1.5158548041 | $266,750 | $266,750 | $404.35 | | |
| STREFUND | STATE REFUND LEVY 603 | 0.0000000000 | $266,750 | $266,750 | $0.00 | | |
| | Total Tax Rate: | 10.1104125603 | | | | | |
| | | | | Taxes w/Current Exemptions: | $2,696.96 | | |
| | | | | Taxes w/o Exemptions: | $2,696.96 | | |
Improvement / Building
| Improvement #1: | RESIDENTIAL | State Code: | 11 | 1065.0 sqft | Value: | $206,750 |
| Exterior Wall: | PLYWOOD | Heating/Cooling: | WARM & COOLED AIR | | Number of Bathrooms: | 2 | Number of Bedrooms: | 2 | | Plumbing: | 9 | Roof Covering: | COMP SHINGLE |
|
| | Type | Description | Class CD | Sub Class CD | Year Built | Area |
| | MA | Main Area | 1 | 40 | 2003 | 1065.0 |
| | SI1 | SITE IMPROVEMENT | 1 | 40 | 2003 | 1.5 |
| | ATG | Attached Garage | 1 | 40 | 2003 | 460.0 |
| | RPC | OPEN PORCH W/ROOF , CEILED | 1 | 40 | 2003 | 80.0 |
| | GFP | GAS FIREPLACE | 1 | 40 | 2003 | 1.0 |
Sketch
Property Image
Land
| 1 | RES 1 | Converted: Residential | 0.0857 | 3735.00 | 0.00 | 0.00 | 1.00 | $60,000 | $0 |
Roll Value History
| 2026 | N/A | N/A | N/A | N/A | N/A |
| 2025 | $203,750 | $110,000 | $0 | $313,750 | $313,750 |
| 2024 | $279,110 | $60,000 | $0 | $339,110 | $339,110 |
| 2023 | $206,750 | $60,000 | $0 | $266,750 | $266,750 |
| 2022 | $206,750 | $60,000 | $0 | $266,750 | $266,750 |
| 2021 | $196,900 | $60,000 | $0 | $256,900 | $256,900 |
| 2020 | $157,520 | $60,000 | $0 | $217,520 | $217,520 |
| 2019 | $172,520 | $45,000 | $0 | $217,520 | $217,520 |
| 2018 | $143,770 | $45,000 | $0 | $188,770 | $188,770 |
| 2017 | $125,020 | $45,000 | $0 | $170,020 | $170,020 |
| 2016 | $113,650 | $45,000 | $0 | $158,650 | $158,650 |
| 2015 | $103,320 | $45,000 | $0 | $148,320 | $148,320 |
| 2014 | $98,400 | $45,000 | $0 | $143,400 | $143,400 |
| 2013 | $98,400 | $45,000 | $0 | $143,400 | $143,400 |
| 2012 | $112,300 | $45,000 | $0 | $0 | $0 |
| 2011 | $124,100 | $45,000 | $0 | $0 | $0 |
| 2010 | $124,100 | $45,000 | $0 | $0 | $0 |
| 2009 | $133,000 | $45,000 | $0 | $0 | $0 |
| 2008 | $99,600 | $18,000 | $0 | $0 | $0 |
| 2007 | $99,600 | $18,000 | $0 | $0 | $0 |
Deed and Sales History
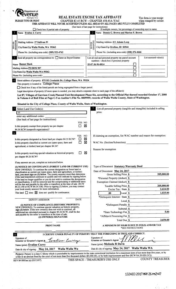
| 1 | 05/04/2021 | SWD | STATUTORY WARRANTY DEED | BROWN DENNIS G & MARION F | CORONADO JANE | | | $275,000.00 | 141483 | 2021-05292 |
| 2 | 05/26/2017 | SWD | STATUTORY WARRANTY DEED | CURRY EVALINE J | BROWN DENNIS G & MARION F | | | $205,000.00 | 132483 | 2017-04028 |
| 3 | 06/11/2002 | WARRANTY D | WARRANTY DEED | | | | | $17,900.00 | 99680 | 2002-0006742 |
Payout Agreement
| No payout information available.. |