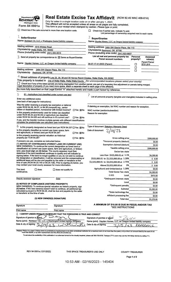
Property
Account |
| Property ID: | 4835 | Abbreviated Legal Description: | VILLAGES OF GARRISON CRK PHASE VI LOT 76 |
| Parcel Number: | 350736960003 | Agent Code: | |
| Type: | Real | | |
| Tax Area: | 77 - CP-250-F | Land Use Code | 11 |
| Open Space: | N | DFL | N |
| Historic Property: | N | Remodel Property: | N |
| Multi-Family Redevelopment: | N | | |
| Township: | 7 | Section: | 36 |
| Range: | 35 |
Location |
| Address: | 1080 SE GARRISON VILLAGE WAY WA 99324 | Mapsco: | |
| Neighborhood: | G Inferior SFR | Map ID: | |
| Neighborhood CD: | 114111 |
Owner |
| Name: | BROWN EARL L & KAREN M | Owner ID: | 66009 |
| Mailing Address: | HEATHER S BROWN 1080 SE GARRISON VILLAGE WAY COLLEGE PLACE, WA 99324 | % Ownership: | 100.0000000000% |
| | | Exemptions: | |
Taxes and Assessment Details
Values
| (+) Improvement Homesite Value: | + | $0 | |
| (+) Improvement Non-Homesite Value: | + | $293,680 | |
| (+) Land Homesite Value: | + | $0 | |
| (+) Land Non-Homesite Value: | + | $60,000 | |
| (+) Curr Use (HS): | + | $0 | $0 |
| (+) Curr Use (NHS): | + | $0 | $0 |
| | | -------------------------- | |
| (=) Market Value: | = | $353,680 | |
| (–) Productivity Loss: | – | $0 | |
| | | -------------------------- | |
| (=) Subtotal: | = | $353,680 | |
| (+) Senior Appraised Value: | + | $0 | |
| (+) Non-Senior Appraised Value: | + | $353,680 | |
| | | -------------------------- | |
| (=) Total Appraised Value: | = | $353,680 | |
| (–) Senior Exemption Loss: | – | $0 | |
| (–) Exemption Loss: | – | $0 | |
| | | -------------------------- | |
| (=) Taxable Value: | = | $353,680 | |
Taxing Jurisdiction
| Owner: | BROWN EARL L & KAREN M | | |
| % Ownership: | 100.0000000000% | | |
| Total Value: | $353,680 | | |
| Tax Area: | 77 - CP-250-F |
| CERFD | CURRENT EXPENSE REFUND 010 | 0.0000000000 | $353,680 | $353,680 | $0.00 | | |
| CURREXP | CURRENT EXPENSE 010 | 1.0175366760 | $353,680 | $353,680 | $359.88 | | |
| HUMNSERV | HUMAN SERVICES 119 | 0.0250000000 | $353,680 | $353,680 | $8.84 | | |
| SLDREL | SOLDIERS RELIEF 121 | 0.0155990005 | $353,680 | $353,680 | $5.52 | | |
| COLLPLBOND | C OF CP BOND 644 | 0.4374241808 | $353,680 | $353,680 | $154.71 | | |
| COLLPLGEN | CITY OF CP 632 | 1.4453819216 | $353,680 | $353,680 | $511.20 | | |
| EMERGSER | EMS 147 | 0.3792580840 | $353,680 | $353,680 | $134.14 | | |
| EMSRFD | EMS REFUND 147 | 0.0000000000 | $353,680 | $353,680 | $0.00 | | |
| RURALLIB | RURAL LIBRARY 623 | 0.3710609029 | $353,680 | $353,680 | $131.24 | | |
| PORTRFD | PORT REFUND 640 | 0.0000000000 | $353,680 | $353,680 | $0.00 | | |
| PORTWWGEN | PORT OF WW 640 | 0.2460186015 | $353,680 | $353,680 | $87.01 | | |
| SD250BOND | SD #250 BOND 773 | 1.4560608159 | $353,680 | $353,680 | $514.98 | | |
| SD250GEN | SD #250 GENERAL 770 | 2.3880724087 | $353,680 | $353,680 | $844.61 | | |
| ST2 | STATE SCHOOL PART 2 600 | 0.8131451643 | $353,680 | $353,680 | $287.59 | | |
| STATESCHL | STATE SCHOOL 600 | 1.5158548041 | $353,680 | $353,680 | $536.13 | | |
| STREFUND | STATE REFUND LEVY 603 | 0.0000000000 | $353,680 | $353,680 | $0.00 | | |
| | Total Tax Rate: | 10.1104125603 | | | | | |
| | | | | Taxes w/Current Exemptions: | $3,575.85 | | |
| | | | | Taxes w/o Exemptions: | $3,575.85 | | |
Improvement / Building
| Improvement #1: | RESIDENTIAL | State Code: | 11 | 1630.0 sqft | Value: | $293,680 |
| Exterior Wall: | PLYWOOD | Heating/Cooling: | WARM & COOLED AIR | | Number of Bathrooms: | 2 | Number of Bedrooms: | 2 | | Plumbing: | 10 | Roof Covering: | COMP SHINGLE |
|
| | Type | Description | Class CD | Sub Class CD | Year Built | Area |
| | MA | Main Area | 4 | 40 | 2006 | 1630.0 |
| | UPFL | Upper Floor (included in main area) | 4 | 40 | 2006 | 425.0 |
| | SI1 | SITE IMPROVEMENT | 4 | 40 | 2006 | 3.0 |
| | ATG | Attached Garage | 4 | 40 | 2006 | 420.0 |
| | RPC | OPEN PORCH W/ROOF , CEILED | 4 | 40 | 2006 | 25.0 |
| | GFP | GAS FIREPLACE | 4 | 40 | 2006 | 1.0 |
Sketch
Property Image
Land
| 1 | RES 1 | Converted: Residential | 0.0688 | 2999.00 | 0.00 | 0.00 | 1.00 | $60,000 | $0 |
Roll Value History
| 2026 | N/A | N/A | N/A | N/A | N/A |
| 2025 | $234,940 | $110,000 | $0 | $344,940 | $344,940 |
| 2024 | $293,680 | $60,000 | $0 | $353,680 | $353,680 |
| 2023 | $293,680 | $60,000 | $0 | $353,680 | $353,680 |
| 2022 | $326,310 | $60,000 | $0 | $386,310 | $386,310 |
| 2021 | $221,480 | $60,000 | $0 | $281,480 | $281,480 |
| 2020 | $170,370 | $60,000 | $0 | $230,370 | $230,370 |
| 2019 | $185,370 | $45,000 | $0 | $230,370 | $230,370 |
| 2018 | $185,370 | $45,000 | $0 | $230,370 | $230,370 |
| 2017 | $165,510 | $45,000 | $0 | $210,510 | $210,510 |
| 2016 | $150,470 | $45,000 | $0 | $195,470 | $195,470 |
| 2015 | $143,300 | $45,000 | $0 | $188,300 | $188,300 |
| 2014 | $143,300 | $45,000 | $0 | $188,300 | $188,300 |
| 2013 | $143,300 | $45,000 | $0 | $188,300 | $188,300 |
| 2012 | $172,800 | $45,000 | $0 | $0 | $0 |
| 2011 | $172,800 | $45,000 | $0 | $0 | $0 |
| 2010 | $172,800 | $45,000 | $0 | $0 | $0 |
| 2009 | $172,800 | $45,000 | $0 | $0 | $0 |
| 2008 | $192,200 | $18,000 | $0 | $0 | $0 |
| 2007 | $63,900 | $18,000 | $0 | $0 | $0 |
Deed and Sales History
| 1 | 09/23/2019 | SWD | STATUTORY WARRANTY DEED | MASFERRER ROBERTO & MIREVA | BROWN EARL L & KAREN M | | | $285,000.00 | 137735 | 2019-07522 |
| 2 | 06/26/2017 | SWD | STATUTORY WARRANTY DEED | SMITH ELDENE | MASFERRER ROBERTO & MIREVA | | | $230,000.00 | 132660 | 2017-04836 |
| 3 | 10/23/2006 | WARRANTY D | WARRANTY DEED | PHASE FIVE DEVELOPMENT LLC | SMITH, ELDENE | | | $238,900.00 | 111517 | 2006-12757 |
| 4 | 10/23/2006 | QCD | QUIT CLAIM DEED | SMITH, PAM | SMITH, ELDENE | | | | 111518 | 2006-12758 |
Payout Agreement
| No payout information available.. |