Property
Account |
| Property ID: | 4828 | Abbreviated Legal Description: | VILLAGES OF GARRISON CRK PHASE V LOT 50 |
| Parcel Number: | 350736920004 | Agent Code: | |
| Type: | Real | | |
| Tax Area: | 77 - CP-250-F | Land Use Code | 11 |
| Open Space: | N | DFL | N |
| Historic Property: | N | Remodel Property: | N |
| Multi-Family Redevelopment: | N | | |
| Township: | 7 | Section: | 36 |
| Range: | 35 |
Location |
| Address: | 1036 SE GARRISON VILLAGE WAY WA 99324 | Mapsco: | |
| Neighborhood: | G Inferior SFR | Map ID: | |
| Neighborhood CD: | 114111 |
Owner |
| Name: | ESPINOZA TITO & GLORIA ILEANA | Owner ID: | 72165 |
| Mailing Address: | 1036 SE GARRISON VILLAGE WAY COLLLEGE PLACE, WA 99324 | % Ownership: | 100.0000000000% |
| | | Exemptions: | |
Taxes and Assessment Details
Values
| (+) Improvement Homesite Value: | + | $0 | |
| (+) Improvement Non-Homesite Value: | + | $286,180 | |
| (+) Land Homesite Value: | + | $0 | |
| (+) Land Non-Homesite Value: | + | $60,000 | |
| (+) Curr Use (HS): | + | $0 | $0 |
| (+) Curr Use (NHS): | + | $0 | $0 |
| | | -------------------------- | |
| (=) Market Value: | = | $346,180 | |
| (–) Productivity Loss: | – | $0 | |
| | | -------------------------- | |
| (=) Subtotal: | = | $346,180 | |
| (+) Senior Appraised Value: | + | $0 | |
| (+) Non-Senior Appraised Value: | + | $346,180 | |
| | | -------------------------- | |
| (=) Total Appraised Value: | = | $346,180 | |
| (–) Senior Exemption Loss: | – | $0 | |
| (–) Exemption Loss: | – | $0 | |
| | | -------------------------- | |
| (=) Taxable Value: | = | $346,180 | |
Taxing Jurisdiction
| Owner: | ESPINOZA TITO & GLORIA ILEANA | | |
| % Ownership: | 100.0000000000% | | |
| Total Value: | $346,180 | | |
| Tax Area: | 77 - CP-250-F |
| CERFD | CURRENT EXPENSE REFUND 010 | 0.0000000000 | $346,180 | $346,180 | $0.00 | | |
| CURREXP | CURRENT EXPENSE 010 | 1.0175366760 | $346,180 | $346,180 | $352.25 | | |
| HUMNSERV | HUMAN SERVICES 119 | 0.0250000000 | $346,180 | $346,180 | $8.65 | | |
| SLDREL | SOLDIERS RELIEF 121 | 0.0155990005 | $346,180 | $346,180 | $5.40 | | |
| COLLPLBOND | C OF CP BOND 644 | 0.4374241808 | $346,180 | $346,180 | $151.43 | | |
| COLLPLGEN | CITY OF CP 632 | 1.4453819216 | $346,180 | $346,180 | $500.36 | | |
| EMERGSER | EMS 147 | 0.3792580840 | $346,180 | $346,180 | $131.29 | | |
| EMSRFD | EMS REFUND 147 | 0.0000000000 | $346,180 | $346,180 | $0.00 | | |
| RURALLIB | RURAL LIBRARY 623 | 0.3710609029 | $346,180 | $346,180 | $128.45 | | |
| PORTRFD | PORT REFUND 640 | 0.0000000000 | $346,180 | $346,180 | $0.00 | | |
| PORTWWGEN | PORT OF WW 640 | 0.2460186015 | $346,180 | $346,180 | $85.17 | | |
| SD250BOND | SD #250 BOND 773 | 1.4560608159 | $346,180 | $346,180 | $504.06 | | |
| SD250GEN | SD #250 GENERAL 770 | 2.3880724087 | $346,180 | $346,180 | $826.70 | | |
| ST2 | STATE SCHOOL PART 2 600 | 0.8131451643 | $346,180 | $346,180 | $281.49 | | |
| STATESCHL | STATE SCHOOL 600 | 1.5158548041 | $346,180 | $346,180 | $524.76 | | |
| STREFUND | STATE REFUND LEVY 603 | 0.0000000000 | $346,180 | $346,180 | $0.00 | | |
| | Total Tax Rate: | 10.1104125603 | | | | | |
| | | | | Taxes w/Current Exemptions: | $3,500.01 | | |
| | | | | Taxes w/o Exemptions: | $3,500.01 | | |
Improvement / Building
| Improvement #1: | RESIDENTIAL | State Code: | 11 | 1680.0 sqft | Value: | $286,180 |
| Exterior Wall: | PLYWOOD | Heating/Cooling: | WARM & COOLED AIR | | Number of Bathrooms: | 3 | Number of Bedrooms: | 3 | | Plumbing: | 12 | Roof Covering: | COMP SHINGLE |
|
| | Type | Description | Class CD | Sub Class CD | Year Built | Area |
| | MA | Main Area | 4 | 40 | 2003 | 1680.0 |
| | UPFL | Upper Floor (included in main area) | 4 | 40 | 2003 | 468.0 |
| | SI1 | SITE IMPROVEMENT | 4 | 40 | 2003 | 2.5 |
| | ATG | Attached Garage | 4 | 40 | 2003 | 420.0 |
| | RPC | OPEN PORCH W/ROOF , CEILED | 4 | 40 | 2003 | 30.0 |
| | GFP | GAS FIREPLACE | 4 | 40 | 2003 | 1.0 |
Sketch
Property Image
Land
| 1 | RES 1 | Converted: Residential | 0.0689 | 3000.00 | 0.00 | 0.00 | 1.00 | $60,000 | $0 |
Roll Value History
| 2026 | N/A | N/A | N/A | N/A | N/A |
| 2025 | $228,940 | $110,000 | $0 | $338,940 | $338,940 |
| 2024 | $286,180 | $60,000 | $0 | $346,180 | $346,180 |
| 2023 | $286,180 | $60,000 | $0 | $346,180 | $346,180 |
| 2022 | $336,680 | $60,000 | $0 | $396,680 | $396,680 |
| 2021 | $249,390 | $60,000 | $0 | $309,390 | $309,390 |
| 2020 | $191,840 | $60,000 | $0 | $251,840 | $251,840 |
| 2019 | $206,840 | $45,000 | $0 | $251,840 | $251,840 |
| 2018 | $206,840 | $45,000 | $0 | $251,840 | $251,840 |
| 2017 | $188,030 | $45,000 | $0 | $233,030 | $233,030 |
| 2016 | $170,940 | $45,000 | $0 | $215,940 | $215,940 |
| 2015 | $162,800 | $45,000 | $0 | $207,800 | $207,800 |
| 2014 | $148,000 | $45,000 | $0 | $193,000 | $193,000 |
| 2013 | $148,000 | $45,000 | $0 | $193,000 | $193,000 |
| 2012 | $168,900 | $45,000 | $0 | $0 | $0 |
| 2011 | $168,900 | $45,000 | $0 | $0 | $0 |
| 2010 | $168,900 | $45,000 | $0 | $0 | $0 |
| 2009 | $180,200 | $45,000 | $0 | $0 | $0 |
| 2008 | $143,500 | $18,000 | $0 | $0 | $0 |
| 2007 | $143,500 | $18,000 | $0 | $0 | $0 |
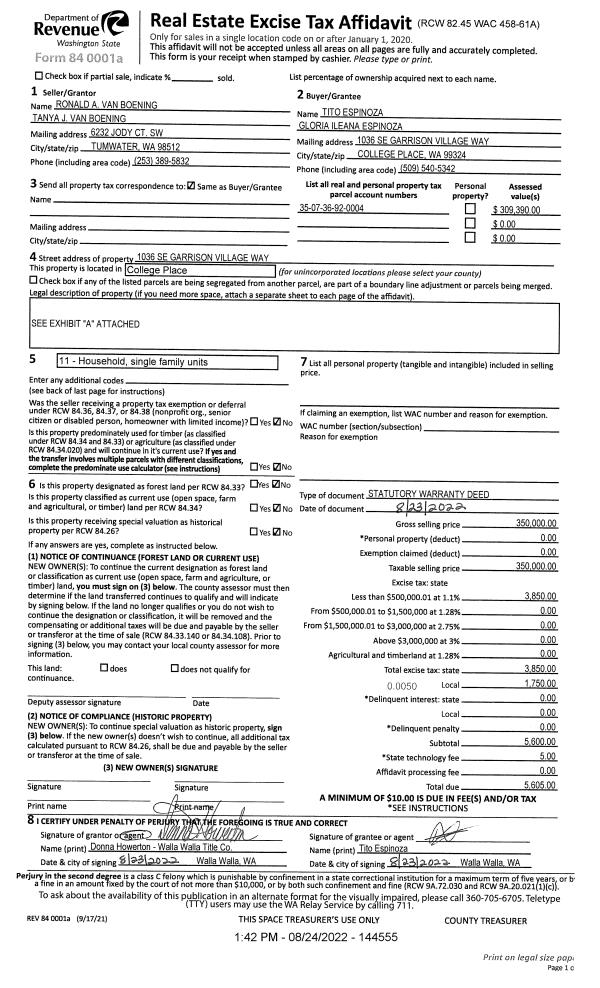
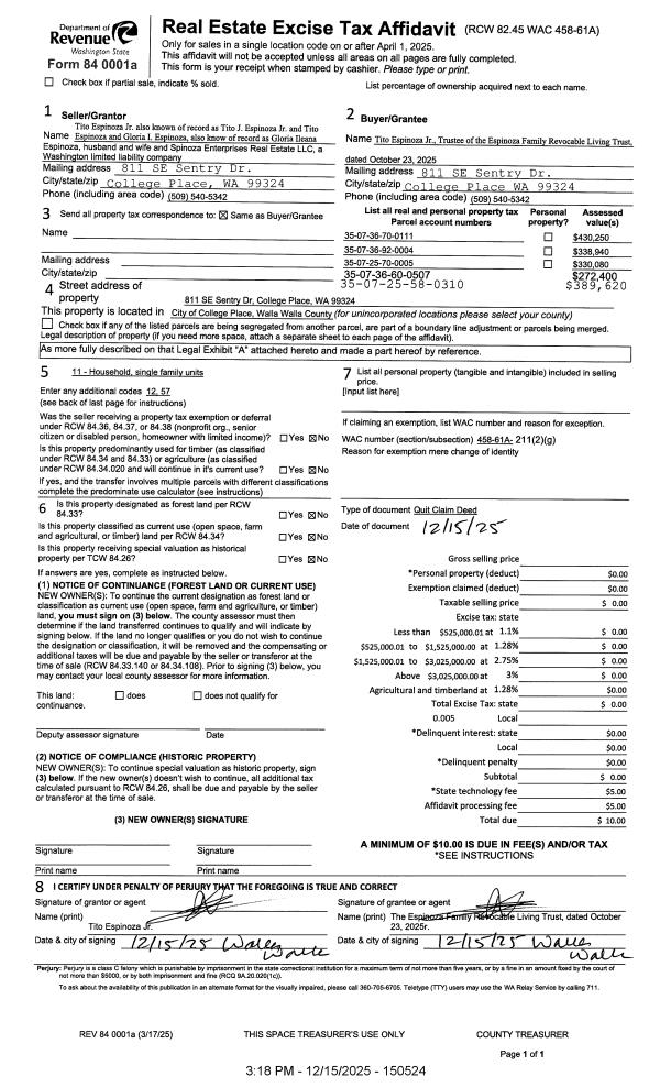
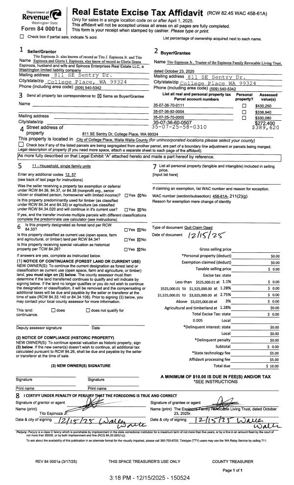
Deed and Sales History
| 1 | 12/15/2025 | QCD | QUIT CLAIM DEED | ESPINOZA TITO & GLORIA ILEANA | ESPINOZA FAMILY REVOCABLE LIVING TRUST | | | | 150524 | 2025-07692 |
| 2 | 08/24/2022 | SWD | STATUTORY WARRANTY DEED | VAN BOENING RONALD A | ESPINOZA TITO & GLORIA ILEANA | | | $350,000.00 | 144555 | 2022-07088 |
| 3 | 09/25/2003 | WARRANTY D | WARRANTY DEED | PHASE FIVE DEVELOPMENT LLC | VAN BOENING, RONALD A | | | $17,900.00 | 103080 | 2003-14682 |
Payout Agreement
| No payout information available.. |