Property
Account |
| Property ID: | 48251 | Abbreviated Legal Description: | AMENDED CALABRIA PLACE SUBDIVISION LOT 1 SHORT PLAT 6/60 2024-05653 (PORTION TRACT 1 SURVEY 2015-10792) LOT 21; PLUS PTN LOT 22 |
| Parcel Number: | 350726770054 | Agent Code: | |
| Type: | Real | | |
| Tax Area: | 74 - CP-250-FB | Land Use Code | 12 |
| Open Space: | N | DFL | N |
| Historic Property: | N | Remodel Property: | N |
| Multi-Family Redevelopment: | N | | |
| Township: | 7 | Section: | 26 |
| Range: | 35 |
Location |
| Address: | 127 NW MARIA ST WA 99324 | Mapsco: | |
| Neighborhood: | A Duplex City | Map ID: | |
| Neighborhood CD: | 313031 |
Owner |
| Name: | KURNAYEV ANDREY & ANNA | Owner ID: | 42653 |
| Mailing Address: | 316 AUSTIN ST WALLA WALLA, WA 99362 | % Ownership: | 100.0000000000% |
| | | Exemptions: | |
Taxes and Assessment Details
Property Tax Information as of
04/21/2026
Click on "Statement Details" to expand or collapse a tax statement.
* Please enter a valid date ** Please enter a valid date *
Statement Details |
| 2026 | 34803 | CP - CITY OF COLLEGE PLACE | $529.15 | $529.13 | $0.00 | $0.00 | $1058.28 | $0.00 |
| 2026 | 34803 | EMS - EMS | $107.85 | $107.85 | $0.00 | $0.00 | $215.70 | $0.00 |
| 2026 | 34803 | LIB - LIBRARY | $105.65 | $105.64 | $0.00 | $0.00 | $211.29 | $0.00 |
| 2026 | 34803 | PORT - PORT | $68.77 | $68.76 | $0.00 | $0.00 | $137.53 | $0.00 |
| 2026 | 34803 | ST SCH - STATE | $741.49 | $741.48 | $0.00 | $0.00 | $1482.97 | $0.00 |
| 2026 | 34803 | SD 250 - SCHOOL DIST 250 | $1136.37 | $1136.35 | $0.00 | $0.00 | $2272.72 | $0.00 |
| 2026 | 34803 | COUNTY - COUNTY | $300.88 | $300.86 | $0.00 | $0.00 | $601.74 | $0.00 |
| 2026 | 34803 | CONSOLIDAT - DIST#14 DRINKING WTR | $355.52 | $355.52 | $0.00 | $0.00 | $711.04 | $0.00 |
| 2026 | 34803 | TOTAL: | $3345.68 | $3345.59 | $0.00 | $0.00 | $6691.27 | $0.00 |
|
| 2026 | 34803 | $3345.68 | $3345.59 | $0.00 | $0.00 | $6691.27 | $0.00 |
Statement Details |
| 2025 | 35065 | CP - CITY OF COLLEGE PLACE | $324.61 | $324.61 | $0.00 | $0.00 | $649.22 | $0.00 |
| 2025 | 35065 | EMS - EMS | $67.29 | $67.29 | $0.00 | $0.00 | $134.58 | $0.00 |
| 2025 | 35065 | LIB - LIBRARY | $66.09 | $66.09 | $0.00 | $0.00 | $132.18 | $0.00 |
| 2025 | 35065 | PORT - PORT | $43.29 | $43.29 | $0.00 | $0.00 | $86.58 | $0.00 |
| 2025 | 35065 | ST SCH - STATE | $466.16 | $466.16 | $0.00 | $0.00 | $932.32 | $0.00 |
| 2025 | 35065 | SD 250 - SCHOOL DIST 250 | $704.44 | $704.42 | $0.00 | $0.00 | $1408.86 | $0.00 |
| 2025 | 35065 | COUNTY - COUNTY | $186.20 | $186.19 | $0.00 | $0.00 | $372.39 | $0.00 |
| 2025 | 35065 | CONSOLIDAT - DIST#14 DRINKING WTR | $355.52 | $355.52 | $0.00 | $0.00 | $711.04 | $0.00 |
| 2025 | 35065 | TOTAL: | $2213.60 | $2213.57 | $0.00 | $0.00 | $4427.17 | $0.00 |
|
| 2025 | 35065 | $2213.60 | $2213.57 | $0.00 | $0.00 | $4427.17 | $0.00 |
Values
| (+) Improvement Homesite Value: | + | $0 | |
| (+) Improvement Non-Homesite Value: | + | $496,660 | |
| (+) Land Homesite Value: | + | $0 | |
| (+) Land Non-Homesite Value: | + | $90,000 | |
| (+) Curr Use (HS): | + | $0 | $0 |
| (+) Curr Use (NHS): | + | $0 | $0 |
| | | -------------------------- | |
| (=) Market Value: | = | $586,660 | |
| (–) Productivity Loss: | – | $0 | |
| | | -------------------------- | |
| (=) Subtotal: | = | $586,660 | |
| (+) Senior Appraised Value: | + | $0 | |
| (+) Non-Senior Appraised Value: | + | $586,660 | |
| | | -------------------------- | |
| (=) Total Appraised Value: | = | $586,660 | |
| (–) Senior Exemption Loss: | – | $0 | |
| (–) Exemption Loss: | – | $0 | |
| | | -------------------------- | |
| (=) Taxable Value: | = | $586,660 | |
Taxing Jurisdiction
| Owner: | KURNAYEV ANDREY & ANNA | | |
| % Ownership: | 100.0000000000% | | |
| Total Value: | $586,660 | | |
| Tax Area: | 74 - CP-250-FB |
| CERFD | CURRENT EXPENSE REFUND 010 | 0.0000000000 | $586,660 | $586,660 | $0.00 | | |
| CURREXP | CURRENT EXPENSE 010 | 0.9851088983 | $586,660 | $586,660 | $577.92 | | |
| HUMNSERV | HUMAN SERVICES 119 | 0.0250000000 | $586,660 | $586,660 | $14.67 | | |
| SLDREL | SOLDIERS RELIEF 121 | 0.0155990000 | $586,660 | $586,660 | $9.15 | | |
| COLLPLBOND | C OF CP BOND 644 | 0.3846009312 | $586,660 | $586,660 | $225.63 | | |
| COLLPLGEN | CITY OF CP 632 | 1.4193088888 | $586,660 | $586,660 | $832.65 | | |
| EMERGSER | EMS 147 | 0.3676811629 | $586,660 | $586,660 | $215.70 | | |
| EMSRFD | EMS REFUND 147 | 0.0000000000 | $586,660 | $586,660 | $0.00 | | |
| RLBRFD | RURAL LIBRARY REFUND 623 | 0.0000000000 | $586,660 | $0 | $0.00 | | |
| RURALLIB | RURAL LIBRARY 623 | 0.0000000000 | $586,660 | $0 | $0.00 | | |
| PORTRFD | PORT REFUND 640 | 0.0000000000 | $586,660 | $586,660 | $0.00 | | |
| PORTWWGEN | PORT OF WW 640 | 0.2344301070 | $586,660 | $586,660 | $137.53 | | |
| SD250BOND | SD #250 BOND 773 | 1.3740031235 | $586,660 | $586,660 | $806.07 | | |
| SD250GEN | SD #250 GENERAL 770 | 2.4999999988 | $586,660 | $586,660 | $1,466.65 | | |
| ST2 | STATE SCHOOL PART 2 600 | 0.8853714103 | $586,660 | $586,660 | $519.41 | | |
| STATESCHL | STATE SCHOOL 600 | 1.6424571473 | $586,660 | $586,660 | $963.56 | | |
| STREFUND | STATE REFUND LEVY 603 | 0.0000000000 | $586,660 | $586,660 | $0.00 | | |
| | Total Tax Rate: | 9.8335606681 | | | | | |
| | | | | Taxes w/Current Exemptions: | $5,768.94 | | |
| | | | | Taxes w/o Exemptions: | $5,768.94 | | |
Improvement / Building
| Improvement #1: | RESIDENTIAL | State Code: | 12 | 2929.0 sqft | Value: | $496,660 |
| Exterior Wall: | CEMENT FIBER | Heating/Cooling: | WARM & COOLED AIR | | Number of Bathrooms: | 5 | Number of Bedrooms: | 4 | | Plumbing: | 16 | Roof Covering: | METAL ROOFING |
|
| | Type | Description | Class CD | Sub Class CD | Year Built | Area |
| | MA | Main Area | 2 | 40 | 2023 | 2929.0 |
| | SI1 | SITE IMPROVEMENT | 2 | 40 | 2023 | 4.0 |
| | BIG | Built In Garage | 2 | 40 | 2023 | 244.0 |
| | BIG | Built In Garage | 2 | 40 | 2023 | 273.0 |
| | RPO | OPEN PORCH W/ROOF | 2 | 40 | 2023 | 157.0 |
| | RPO | OPEN PORCH W/ROOF | 2 | 40 | 2023 | 157.0 |
| | UPFL | Upper Floor (included in main area) | 2 | 40 | 2023 | 1723.0 |
Sketch
Property Image
Land
| 1 | RES 1 | Converted: Residential | 0.1480 | 6445.00 | 0.00 | 0.00 | 1.00 | $90,000 | $0 |
Roll Value History
| 2026 | N/A | N/A | N/A | N/A | N/A |
| 2025 | $496,660 | $90,000 | $0 | $586,660 | $586,660 |
| 2024 | $268,520 | $90,000 | $0 | $358,520 | $358,520 |
Deed and Sales History
| 1 | 10/23/2024 | SHORT PLAT | SHORT PLAT | | | 6 | 60 | | 0 | 2024-05653 |
| 2 | 12/18/2015 | SURVEY | SURVEY | | | 12 | 232 | | 0 | 2015-10792 |
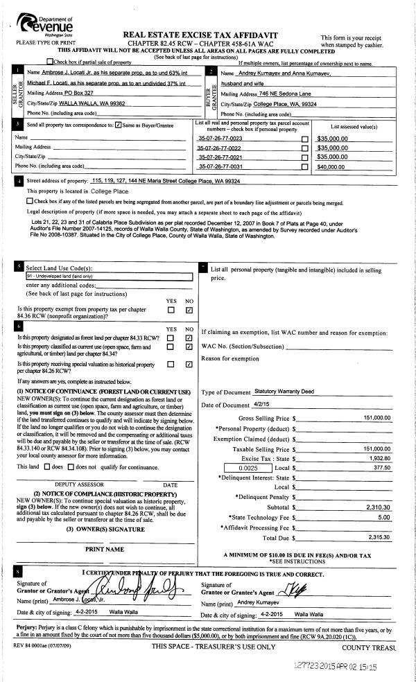
| 3 | 04/02/2015 | SWD | STATUTORY WARRANTY DEED | | KURNAYEV ANDREY & ANNA | | 4-PARCELS | $151,000.00 | 127723 | 2015-02727 |
|   | |
Payout Agreement
| No payout information available.. |