Property
Account |
| Property ID: | 48248 | Abbreviated Legal Description: | ROBERTS TAX 2; PLUS TAX 3 BLK 1 |
| Parcel Number: | 360729870104 | Agent Code: | |
| Type: | Real | | |
| Tax Area: | 1 - OL-140-F | Land Use Code | 53 |
| Open Space: | N | DFL | N |
| Historic Property: | N | Remodel Property: | N |
| Multi-Family Redevelopment: | N | | |
| Township: | 7 | Section: | 29 |
| Range: | 36 |
Location |
| Address: | 225 & 229 E ALDER ST WA 99362 | Mapsco: | |
| Neighborhood: | WW Downtown Core Area #2 | Map ID: | |
| Neighborhood CD: | 5342 |
Owner |
| Name: | LOOK LIKE GIANTS LLC | Owner ID: | 70647 |
| Mailing Address: | PO BOX 52865 BELLEVUE, WA 98015 | % Ownership: | 100.0000000000% |
| | | Exemptions: | |
Taxes and Assessment Details
Property Tax Information as of
04/17/2026
Click on "Statement Details" to expand or collapse a tax statement.
* Please enter a valid date ** Please enter a valid date *
Statement Details |
| 2026 | 34800 | EMS - EMS | $340.27 | $340.27 | $0.00 | $0.00 | $0.00 | $680.54 |
| 2026 | 34800 | PORT - PORT | $216.96 | $216.95 | $0.00 | $0.00 | $0.00 | $433.91 |
| 2026 | 34800 | ST SCH - STATE | $2339.38 | $2339.37 | $0.00 | $0.00 | $0.00 | $4678.75 |
| 2026 | 34800 | WW - CITY OF WALLA WALLA | $1735.47 | $1735.45 | $0.00 | $0.00 | $0.00 | $3470.92 |
| 2026 | 34800 | SD 140 - SCHOOL DIST 140 | $3412.37 | $3412.35 | $0.00 | $0.00 | $0.00 | $6824.72 |
| 2026 | 34800 | COUNTY - COUNTY | $949.25 | $949.23 | $0.00 | $0.00 | $0.00 | $1898.48 |
| 2026 | 34800 | MILLCRKFLD - MILL CREEK FLOOD | $51.42 | $51.41 | $0.00 | $0.00 | $0.00 | $102.83 |
| 2026 | 34800 | TOTAL: | $9045.12 | $9045.03 | $0.00 | $0.00 | $0.00 | $18090.15 |
|
| 2026 | 34800 | $9045.12 | $9045.03 | $0.00 | $0.00 | $0.00 | $18090.15 |
Statement Details |
| 2025 | 35062 | EMS - EMS | $347.40 | $347.40 | $0.00 | $0.00 | $694.80 | $0.00 |
| 2025 | 35062 | PORT - PORT | $223.50 | $223.49 | $0.00 | $0.00 | $446.99 | $0.00 |
| 2025 | 35062 | ST SCH - STATE | $2406.62 | $2406.61 | $0.00 | $0.00 | $4813.23 | $0.00 |
| 2025 | 35062 | WW - CITY OF WALLA WALLA | $1775.11 | $1775.09 | $0.00 | $0.00 | $3550.20 | $0.00 |
| 2025 | 35062 | SD 140 - SCHOOL DIST 140 | $3396.01 | $3395.99 | $0.00 | $0.00 | $6792.00 | $0.00 |
| 2025 | 35062 | COUNTY - COUNTY | $961.28 | $961.25 | $0.00 | $0.00 | $1922.53 | $0.00 |
| 2025 | 35062 | MILLCRKFLD - MILL CREEK FLOOD | $53.49 | $53.48 | $0.00 | $0.00 | $106.97 | $0.00 |
| 2025 | 35062 | TOTAL: | $9163.41 | $9163.31 | $0.00 | $0.00 | $18326.72 | $0.00 |
|
| 2025 | 35062 | $9163.41 | $9163.31 | $0.00 | $0.00 | $18326.72 | $0.00 |
Values
| (+) Improvement Homesite Value: | + | N/A | |
| (+) Improvement Non-Homesite Value: | + | N/A | |
| (+) Land Homesite Value: | + | N/A | |
| (+) Land Non-Homesite Value: | + | N/A | Ag / Timber Use Value |
| (+) Curr Use (HS): | + | N/A | N/A |
| (+) Curr Use (NHS): | + | N/A | N/A |
| | | -------------------------- | |
| (=) Market Value: | = | N/A | |
| (–) Productivity Loss: | – | N/A | |
| | | -------------------------- | |
| (=) Subtotal: | = | N/A | |
| (+) Senior Appraised Value: | + | N/A | |
| (+) Non-Senior Appraised Value: | + | N/A | |
| | | -------------------------- | |
| (=) Total Appraised Value: | = | N/A | |
| (–) Senior Exemption Loss: | – | N/A | |
| (–) Exemption Loss: | – | N/A | |
| | | -------------------------- | |
| (=) Taxable Value: | = | N/A | |
Taxing Jurisdiction
| Owner: | LOOK LIKE GIANTS LLC | | |
| % Ownership: | 100.0000000000% | | |
| Total Value: | N/A | | |
| Tax Area: | 1 - OL-140-F |
| CERFD | CURRENT EXPENSE REFUND 010 | N/A | N/A | N/A | N/A | | |
| CURREXP | CURRENT EXPENSE 010 | N/A | N/A | N/A | N/A | | |
| HUMNSERV | HUMAN SERVICES 119 | N/A | N/A | N/A | N/A | | |
| SLDREL | SOLDIERS RELIEF 121 | N/A | N/A | N/A | N/A | | |
| EMERGSER | EMS 147 | N/A | N/A | N/A | N/A | | |
| EMSRFD | EMS REFUND 147 | N/A | N/A | N/A | N/A | | |
| PORTRFD | PORT REFUND 640 | N/A | N/A | N/A | N/A | | |
| PORTWWGEN | PORT OF WW 640 | N/A | N/A | N/A | N/A | | |
| SD140BOND | SD #140 BOND 764 | N/A | N/A | N/A | N/A | | |
| SD140GEN | SD #140 GENERAL 760 | N/A | N/A | N/A | N/A | | |
| ST2 | STATE SCHOOL PART 2 600 | N/A | N/A | N/A | N/A | | |
| STATESCHL | STATE SCHOOL 600 | N/A | N/A | N/A | N/A | | |
| STREFUND | STATE REFUND LEVY 603 | N/A | N/A | N/A | N/A | | |
| CWWBOND | C OF WW BOND 643 | N/A | N/A | N/A | N/A | | |
| CWWGEN | CITY OF WW 631 | N/A | N/A | N/A | N/A | | |
| CWWRFD | CITY OF WALLA WALLA REFUND 631 | N/A | N/A | N/A | N/A | | |
| | Total Tax Rate: | N/A | | | | | |
| | | | | Taxes w/Current Exemptions: | N/A | | |
| | | | | Taxes w/o Exemptions: | N/A | | |
Improvement / Building
| Improvement #1: | COMMERCIAL | State Code: | 53 | 4770.0 sqft | Value: | N/A |
| | Type | Description | Class CD | Sub Class CD | Year Built | Area |
| | MA | Main Area | D | * | 1930 | 4770.0 |
| | RPO | OPEN PORCH W/ROOF | D | * | 1930 | 900.0 |
| | SI1 | SITE IMPROVEMENT | D | * | 1930 | 6.0 |
| Improvement #2: | COMMERCIAL | State Code: | 53 | 6545.0 sqft | Value: | N/A |
| | Type | Description | Class CD | Sub Class CD | Year Built | Area |
| | MA | Main Area | D | * | 1920 | 6545.0 |
| | SI1 | SITE IMPROVEMENT | D | * | 1920 | 8.0 |
Sketch
Property Image
Land
| 1 | COM 1 | Converted: Commercial | 0.3030 | 13200.00 | 0.00 | 0.00 | 1.00 | N/A | N/A |
Roll Value History
| 2026 | N/A | N/A | N/A | N/A | N/A |
| 2025 | $1,679,300 | $171,600 | $0 | $1,850,900 | $1,850,900 |
| 2024 | $1,679,300 | $171,600 | $0 | $1,850,900 | $1,850,900 |
Deed and Sales History
| 1 | 07/24/2024 | SURVEY | SURVEY | | | 14 | 189 | | 0 | 2024-04048 |
| 2 | 11/16/2021 | SWD | STATUTORY WARRANTY DEED | | LOOK LIKE GIANTS LLC | | 3-PARCELS | $3,125,000.00 | 142879 | 2021-13642 |
|   | |
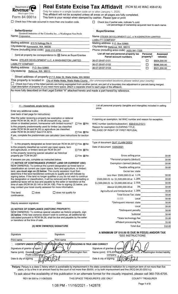
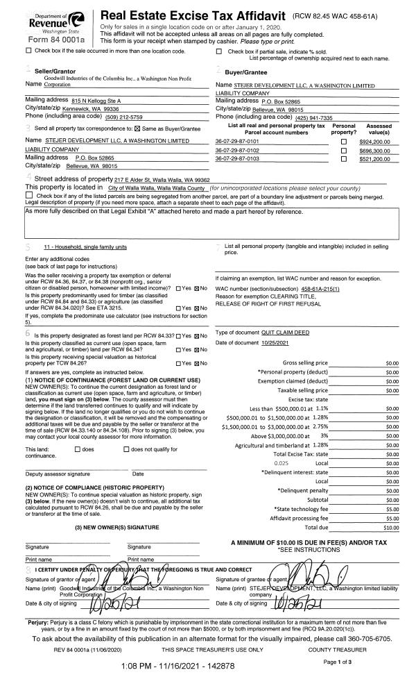
| 3 | 11/16/2021 | QCD | QUIT CLAIM DEED | | GOODWILL INDUSTRIES OF | | 3-PARCELS | $0.00 | 142878 | 2021-13641 |
| 4 | 12/30/2010 | WARRANTY D | WARRANTY DEED | CHAUCER LANE LLC | GOODWILL INDUSTRIES OF | | | $715,000.00 | 119550 | 2010-10862 |
| 5 | 06/06/2008 | WARRANTY D | WARRANTY DEED | TESKE, TERRANCE W & EVELYNE M | CHAUCER LANE LLC | | | $600,000.00 | 115141 | 2008-05781 |
| 6 | 07/14/1982 | WARRANTY D | WARRANTY DEED | | | | | $27,453.00 | 0 | 1338-205054 |
| 7 | 04/20/1974 | WARRANTY D | WARRANTY DEED | | | | | $35,000.00 | 0 | 3040-443717 |
Payout Agreement
| No payout information available.. |