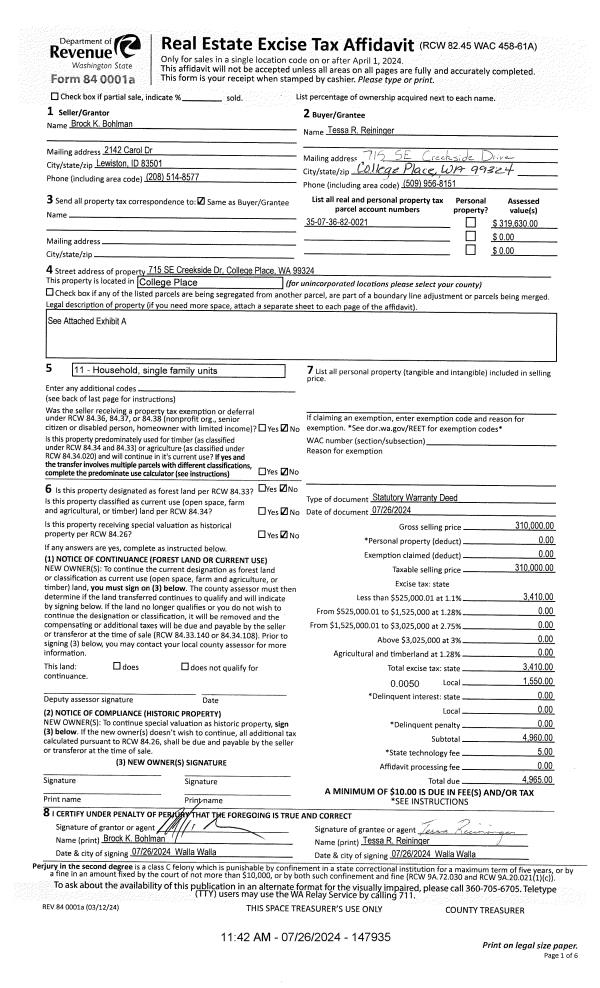
Property
Account |
| Property ID: | 4821 | Abbreviated Legal Description: | VILLAGES OF GARRISON CRK PUD PHASE 2 LOT 40 |
| Parcel Number: | 350736820021 | Agent Code: | |
| Type: | Real | | |
| Tax Area: | 77 - CP-250-F | Land Use Code | 11 |
| Open Space: | N | DFL | N |
| Historic Property: | N | Remodel Property: | N |
| Multi-Family Redevelopment: | N | | |
| Township: | 7 | Section: | 36 |
| Range: | 35 |
Location |
| Address: | 715 SE CREEKSIDE DR WA 99324 | Mapsco: | |
| Neighborhood: | G Inferior SFR | Map ID: | |
| Neighborhood CD: | 114111 |
Owner |
| Name: | BOHLMAN BROCK K | Owner ID: | 67885 |
| Mailing Address: | 2142 CAROL DR LEWISTON, ID 83501 | % Ownership: | 100.0000000000% |
| | | Exemptions: | |
Taxes and Assessment Details
Property Tax Information as of
02/21/2026
Click on "Statement Details" to expand or collapse a tax statement.
* Please enter a valid date ** Please enter a valid date *
Statement Details |
| | TOTAL: | $0.00 | $0.00 | $0.00 | $0.00 | $0.00 | $0.00 |
|
| | $0.00 | $0.00 | $0.00 | $0.00 | $0.00 | $0.00 |
Values
| (+) Improvement Homesite Value: | + | $0 | |
| (+) Improvement Non-Homesite Value: | + | $259,630 | |
| (+) Land Homesite Value: | + | $0 | |
| (+) Land Non-Homesite Value: | + | $60,000 | |
| (+) Curr Use (HS): | + | $0 | $0 |
| (+) Curr Use (NHS): | + | $0 | $0 |
| | | -------------------------- | |
| (=) Market Value: | = | $319,630 | |
| (–) Productivity Loss: | – | $0 | |
| | | -------------------------- | |
| (=) Subtotal: | = | $319,630 | |
| (+) Senior Appraised Value: | + | $0 | |
| (+) Non-Senior Appraised Value: | + | $319,630 | |
| | | -------------------------- | |
| (=) Total Appraised Value: | = | $319,630 | |
| (–) Senior Exemption Loss: | – | $0 | |
| (–) Exemption Loss: | – | $0 | |
| | | -------------------------- | |
| (=) Taxable Value: | = | $319,630 | |
Taxing Jurisdiction
| Owner: | BOHLMAN BROCK K | | |
| % Ownership: | 100.0000000000% | | |
| Total Value: | $319,630 | | |
| Tax Area: | 77 - CP-250-F |
| CERFD | CURRENT EXPENSE REFUND 010 | 0.0000000000 | $319,630 | $319,630 | $0.00 | | |
| CURREXP | CURRENT EXPENSE 010 | 1.0175366760 | $319,630 | $319,630 | $325.24 | | |
| HUMNSERV | HUMAN SERVICES 119 | 0.0250000000 | $319,630 | $319,630 | $7.99 | | |
| SLDREL | SOLDIERS RELIEF 121 | 0.0155990005 | $319,630 | $319,630 | $4.99 | | |
| COLLPLBOND | C OF CP BOND 644 | 0.4374241808 | $319,630 | $319,630 | $139.81 | | |
| COLLPLGEN | CITY OF CP 632 | 1.4453819216 | $319,630 | $319,630 | $461.99 | | |
| EMERGSER | EMS 147 | 0.3792580840 | $319,630 | $319,630 | $121.22 | | |
| EMSRFD | EMS REFUND 147 | 0.0000000000 | $319,630 | $319,630 | $0.00 | | |
| RURALLIB | RURAL LIBRARY 623 | 0.3710609029 | $319,630 | $319,630 | $118.60 | | |
| PORTRFD | PORT REFUND 640 | 0.0000000000 | $319,630 | $319,630 | $0.00 | | |
| PORTWWGEN | PORT OF WW 640 | 0.2460186015 | $319,630 | $319,630 | $78.63 | | |
| SD250BOND | SD #250 BOND 773 | 1.4560608159 | $319,630 | $319,630 | $465.40 | | |
| SD250GEN | SD #250 GENERAL 770 | 2.3880724087 | $319,630 | $319,630 | $763.30 | | |
| ST2 | STATE SCHOOL PART 2 600 | 0.8131451643 | $319,630 | $319,630 | $259.91 | | |
| STATESCHL | STATE SCHOOL 600 | 1.5158548041 | $319,630 | $319,630 | $484.51 | | |
| STREFUND | STATE REFUND LEVY 603 | 0.0000000000 | $319,630 | $319,630 | $0.00 | | |
| | Total Tax Rate: | 10.1104125603 | | | | | |
| | | | | Taxes w/Current Exemptions: | $3,231.59 | | |
| | | | | Taxes w/o Exemptions: | $3,231.59 | | |
Improvement / Building
| Improvement #1: | RESIDENTIAL | State Code: | 11 | 1176.0 sqft | Value: | $259,630 |
| Exterior Wall: | PLYWOOD | Heating/Cooling: | WARM & COOLED AIR | | Number of Bathrooms: | 2 | Number of Bedrooms: | 2 | | Plumbing: | 9 | Roof Covering: | COMP SHINGLE |
|
| | Type | Description | Class CD | Sub Class CD | Year Built | Area |
| | MA | Main Area | 1 | 40 | 1999 | 1176.0 |
| | SI1 | SITE IMPROVEMENT | 1 | 40 | 1999 | 1.5 |
| | ATG | Attached Garage | 1 | 40 | 1999 | 462.0 |
| | RPC | OPEN PORCH W/ROOF , CEILED | 1 | 40 | 1999 | 50.0 |
| | GFP | GAS FIREPLACE | 1 | 40 | 1999 | 1.0 |
Sketch
Property Image
Land
| 1 | RES 1 | Converted: Residential | 0.0807 | 3515.00 | 0.00 | 0.00 | 1.00 | $60,000 | $0 |
Roll Value History
| 2026 | N/A | N/A | N/A | N/A | N/A |
| 2025 | $199,910 | $110,000 | $0 | $309,910 | $309,910 |
| 2024 | $285,590 | $60,000 | $0 | $345,590 | $345,590 |
| 2023 | $259,630 | $60,000 | $0 | $319,630 | $319,630 |
| 2022 | $259,630 | $60,000 | $0 | $319,630 | $319,630 |
| 2021 | $216,360 | $60,000 | $0 | $276,360 | $276,360 |
| 2020 | $154,540 | $60,000 | $0 | $214,540 | $214,540 |
| 2019 | $169,540 | $45,000 | $0 | $214,540 | $214,540 |
| 2018 | $135,630 | $45,000 | $0 | $180,630 | $180,630 |
| 2017 | $123,300 | $45,000 | $0 | $168,300 | $168,300 |
| 2016 | $112,090 | $45,000 | $0 | $157,090 | $157,090 |
| 2015 | $101,900 | $45,000 | $0 | $146,900 | $146,900 |
| 2014 | $101,900 | $45,000 | $0 | $146,900 | $146,900 |
| 2013 | $101,900 | $45,000 | $0 | $146,900 | $146,900 |
| 2012 | $117,700 | $45,000 | $0 | $0 | $0 |
| 2011 | $126,300 | $45,000 | $0 | $0 | $0 |
| 2010 | $126,300 | $45,000 | $0 | $0 | $0 |
| 2009 | $135,300 | $45,000 | $0 | $0 | $0 |
| 2008 | $95,900 | $18,000 | $0 | $0 | $0 |
| 2007 | $95,900 | $18,000 | $0 | $0 | $0 |
Deed and Sales History
| 1 | 07/26/2024 | SWD | STATUTORY WARRANTY DEED | BOHLMAN BROCK K | REININGER TESSA R | | | $310,000.00 | 147935 | 2024-04083 |
| 2 | 09/28/2020 | SWD | STATUTORY WARRANTY DEED | BOHLMAN DONALD & CAROLYN BOHLMAN TRUST | BOHLMAN BROCK K | | | | 139931 | 2020-09512 |
| 3 | 03/13/2020 | QCD | QUIT CLAIM DEED | BOHLMAN DON K & CAROLYN J | BOHLMAN DONALD & CAROLYN BOHLMAN TRUST | | | $0.00 | 138827 | 2020-02490 |
| 4 | 08/23/2017 | SWD | STATUTORY WARRANTY DEED | KOEHLER THOMAS | BOHLMAN DON K & CAROLYN J | | | $193,000.00 | 133061 | 2017-06548 |
| 5 | 09/15/2016 | DEED DEATH | DEED DEATH | KOEHLER THOMAS | PARTLOW PAULA | | | | 0 | 2016-07531 |
| 6 | 05/10/2013 | WARRANTY D | WARRANTY DEED | SITTEL, MARGARET JOY | KOEHLER, THOMAS | | | $152,000.00 | 123937 | 2013-04651 |
| 7 | 09/30/2009 | WARRANTY D | WARRANTY DEED | BROCKINGTON, CLAIRE | SITTEL, MARGARET JOY | | | $177,500.00 | 117414 | 2009-09778 |
| 8 | 05/24/2001 | WARRANTY D | WARRANTY DEED | | | | | $108,900.00 | 97224 | 3130-105383 |
Payout Agreement
| No payout information available.. |