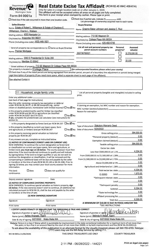
Property
Account |
| Property ID: | 4809 | Abbreviated Legal Description: | WHITMAN PUD PHASE 1 LOT 21 |
| Parcel Number: | 350736760021 | Agent Code: | |
| Type: | Real | | |
| Tax Area: | 75 - CP 250 | Land Use Code | 11 |
| Open Space: | N | DFL | N |
| Historic Property: | N | Remodel Property: | N |
| Multi-Family Redevelopment: | N | | |
| Township: | 7 | Section: | 36 |
| Range: | 35 |
Location |
| Address: | 712 SE MAGNONI DR WA 99324 | Mapsco: | |
| Neighborhood: | G SFR | Map ID: | |
| Neighborhood CD: | 114011 |
Owner |
| Name: | JOHNSON GRAEME BAKER | Owner ID: | 71862 |
| Mailing Address: | JESSICA C RUIZ 712 SE MAGNONI DR COLLEGE PLACE, WA 99324 | % Ownership: | 100.0000000000% |
| | | Exemptions: | |
Taxes and Assessment Details
Values
| (+) Improvement Homesite Value: | + | $0 | |
| (+) Improvement Non-Homesite Value: | + | $313,400 | |
| (+) Land Homesite Value: | + | $0 | |
| (+) Land Non-Homesite Value: | + | $70,000 | |
| (+) Curr Use (HS): | + | $0 | $0 |
| (+) Curr Use (NHS): | + | $0 | $0 |
| | | -------------------------- | |
| (=) Market Value: | = | $383,400 | |
| (–) Productivity Loss: | – | $0 | |
| | | -------------------------- | |
| (=) Subtotal: | = | $383,400 | |
| (+) Senior Appraised Value: | + | $0 | |
| (+) Non-Senior Appraised Value: | + | $383,400 | |
| | | -------------------------- | |
| (=) Total Appraised Value: | = | $383,400 | |
| (–) Senior Exemption Loss: | – | $0 | |
| (–) Exemption Loss: | – | $0 | |
| | | -------------------------- | |
| (=) Taxable Value: | = | $383,400 | |
Taxing Jurisdiction
| Owner: | JOHNSON GRAEME BAKER | | |
| % Ownership: | 100.0000000000% | | |
| Total Value: | $383,400 | | |
| Tax Area: | 75 - CP 250 |
| CERFD | CURRENT EXPENSE REFUND 010 | 0.0000000000 | $383,400 | $383,400 | $0.00 | | |
| CURREXP | CURRENT EXPENSE 010 | 1.0175366760 | $383,400 | $383,400 | $390.12 | | |
| HUMNSERV | HUMAN SERVICES 119 | 0.0250000000 | $383,400 | $383,400 | $9.59 | | |
| SLDREL | SOLDIERS RELIEF 121 | 0.0155990005 | $383,400 | $383,400 | $5.98 | | |
| COLLPLBOND | C OF CP BOND 644 | 0.4374241808 | $383,400 | $383,400 | $167.71 | | |
| COLLPLGEN | CITY OF CP 632 | 1.4453819216 | $383,400 | $383,400 | $554.16 | | |
| EMERGSER | EMS 147 | 0.3792580840 | $383,400 | $383,400 | $145.41 | | |
| EMSRFD | EMS REFUND 147 | 0.0000000000 | $383,400 | $383,400 | $0.00 | | |
| RURALLIB | RURAL LIBRARY 623 | 0.3710609029 | $383,400 | $383,400 | $142.26 | | |
| PORTRFD | PORT REFUND 640 | 0.0000000000 | $383,400 | $383,400 | $0.00 | | |
| PORTWWGEN | PORT OF WW 640 | 0.2460186015 | $383,400 | $383,400 | $94.32 | | |
| SD250BOND | SD #250 BOND 773 | 1.4560608159 | $383,400 | $383,400 | $558.25 | | |
| SD250GEN | SD #250 GENERAL 770 | 2.3880724087 | $383,400 | $383,400 | $915.59 | | |
| ST2 | STATE SCHOOL PART 2 600 | 0.8131451643 | $383,400 | $383,400 | $311.76 | | |
| STATESCHL | STATE SCHOOL 600 | 1.5158548041 | $383,400 | $383,400 | $581.18 | | |
| STREFUND | STATE REFUND LEVY 603 | 0.0000000000 | $383,400 | $383,400 | $0.00 | | |
| | Total Tax Rate: | 10.1104125603 | | | | | |
| | | | | Taxes w/Current Exemptions: | $3,876.33 | | |
| | | | | Taxes w/o Exemptions: | $3,876.33 | | |
Improvement / Building
| Improvement #1: | RESIDENTIAL | State Code: | 11 | 1440.0 sqft | Value: | $313,400 |
| Exterior Wall: | PLYWOOD | Heating/Cooling: | WARM & COOLED AIR | | Number of Bathrooms: | 2 | Number of Bedrooms: | 3 | | Plumbing: | 11 | Roof Covering: | COMP SHINGLE |
|
| | Type | Description | Class CD | Sub Class CD | Year Built | Area |
| | MA | Main Area | 1 | 35 | 2002 | 1440.0 |
| | SI1 | SITE IMPROVEMENT | 1 | 35 | 2002 | 2.0 |
| | ATG | Attached Garage | 1 | 35 | 2002 | 624.0 |
| | RPC | OPEN PORCH W/ROOF , CEILED | 1 | 35 | 2002 | 78.0 |
| | RPC | OPEN PORCH W/ROOF , CEILED | 1 | 35 | 2002 | 49.0 |
| | GFP | GAS FIREPLACE | 1 | 35 | 2002 | 1.0 |
Sketch
Property Image
Land
| 1 | RES 1 | Converted: Residential | 0.1764 | 7684.00 | 0.00 | 0.00 | 1.00 | $70,000 | $0 |
Roll Value History
| 2026 | N/A | N/A | N/A | N/A | N/A |
| 2025 | $219,380 | $130,000 | $0 | $349,380 | $349,380 |
| 2024 | $313,400 | $70,000 | $0 | $383,400 | $383,400 |
| 2023 | $313,400 | $70,000 | $0 | $383,400 | $383,400 |
| 2022 | $250,720 | $70,000 | $0 | $320,720 | $320,720 |
| 2021 | $208,930 | $70,000 | $0 | $278,930 | $278,930 |
| 2020 | $174,110 | $70,000 | $0 | $244,110 | $244,110 |
| 2019 | $209,110 | $35,000 | $0 | $244,110 | $244,110 |
| 2018 | $190,100 | $35,000 | $0 | $225,100 | $225,100 |
| 2017 | $165,300 | $35,000 | $0 | $200,300 | $200,300 |
| 2016 | $165,300 | $35,000 | $0 | $200,300 | $200,300 |
| 2015 | $165,300 | $35,000 | $0 | $200,300 | $200,300 |
| 2014 | $165,300 | $35,000 | $0 | $200,300 | $200,300 |
| 2013 | $165,300 | $35,000 | $0 | $200,300 | $200,300 |
| 2012 | $145,800 | $65,000 | $0 | $0 | $0 |
| 2011 | $145,800 | $65,000 | $0 | $0 | $0 |
| 2010 | $145,800 | $65,000 | $0 | $0 | $0 |
| 2009 | $156,900 | $65,000 | $0 | $0 | $0 |
| 2008 | $106,400 | $30,000 | $0 | $0 | $0 |
| 2007 | $106,400 | $30,000 | $0 | $0 | $0 |
Deed and Sales History
| 1 | 06/28/2022 | SWD | STATUTORY WARRANTY DEED | WILLIAMSON ROBERT L & CHARLENE E WILLIAMSON ESTATE OF | JOHNSON GRAEME BAKER | | | $394,000.00 | 144221 | 2022-05450 |
| 2 | 07/31/2020 | QCD | QUIT CLAIM DEED | WILLIAMSON ROBERT & CHARLENE | WILLIAMSON ROBERT L & CHARLENE E WILLIAMSON ESTATE OF | | | | 139615 | 2020-07426 |
| 3 | 03/21/2002 | WARRANTY D | WARRANTY DEED | | | | | $135,000.00 | 99139 | 3300-203468 |
Payout Agreement
| No payout information available.. |