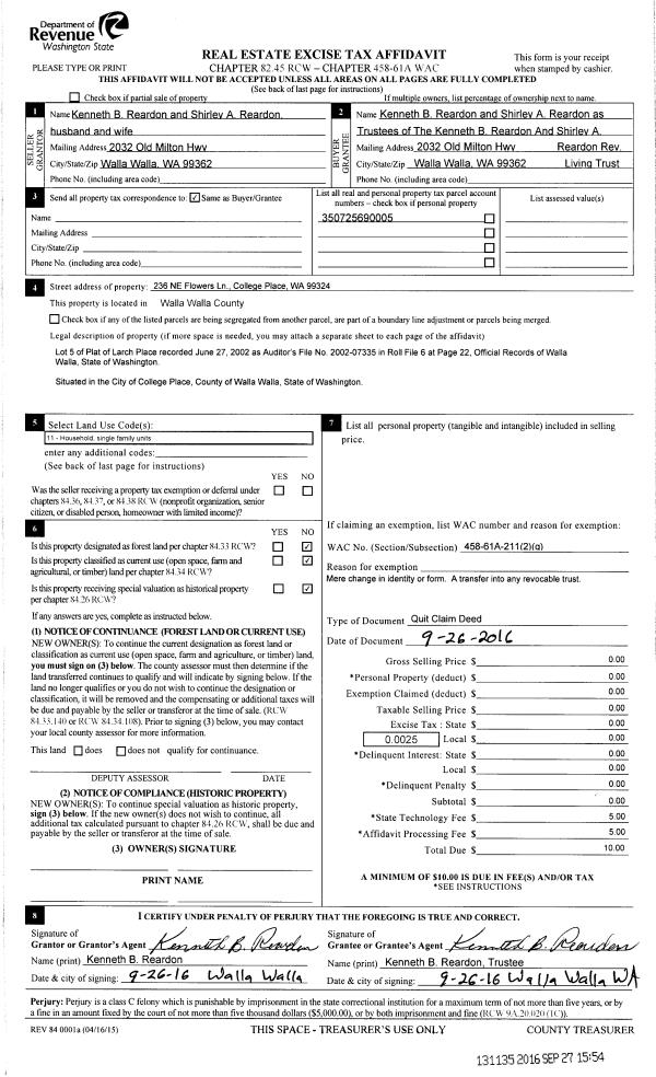
| 1 | 09/26/2016 | QCD | QUIT CLAIM DEED | REARDON KENNETH & SHIRLEY | REARDON KENNETH B & SHIRLEY A REVOCABLE LIVING TRUST | | | $0.00 | 131135 | 2016-07946 |
| 2 | 09/04/2015 | SWD | STATUTORY WARRANTY DEED | LAKE DENNIS | REARDON KENNETH & SHIRLEY | | | $198,000.00 | 128773 | 2015-07840 |
| 3 | 09/22/2005 | WARRANTY D | WARRANTY DEED | PRUDENTIAL RELOCATION INC | LAKE, DENNIS & VIRGINIA | | | | 108556 | 2005-11830 |
| 4 | 09/22/2005 | WARRANTY D | WARRANTY DEED | EVENSON, CHERI LYNN | PRUDENTIAL RELOCATION INC | | | | 108555 | 2005-11829 |
| 5 | 09/13/2005 | WARRANTY D | WARRANTY DEED | EVENSON, CHERI L | PRUDENTIAL RELOCATION INC | | | $176,000.00 | 108458 | 2005-11349 |
| 6 | 09/13/2005 | WARRANTY D | WARRANTY DEED | PRUDENTIAL RELOCATION INC | LAKE, DENNIS | | | $176,000.00 | 108459 | 2005-11347 |
| 7 | 07/24/2003 | WARRANTY D | WARRANTY DEED | ROFF HOMES INC | EVENSON, CHERI L | | | $143,333.00 | 102641 | 2003-10998 |
| 8 | 10/15/2002 | WARRANTY D | WARRANTY DEED | BOTIMER DOUGLAS & GLORIA | ROFF HOMES INC | | | $180,633.00 | 100612 | 2002-11632 |
|   | |
| 9 | 07/09/2002 | WARRANTY D | WARRANTY DEED | | | | | | 99901 | 2002-0007795 |