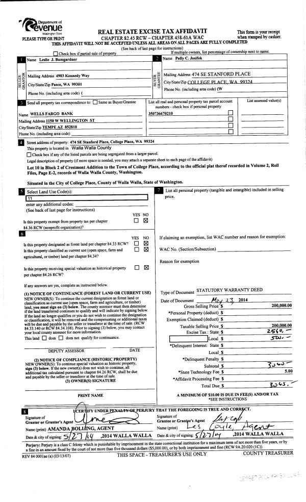
Property
Account |
| Property ID: | 4751 | Abbreviated Legal Description: | CRESTMONT ADDN LOT 10 BLK 2 |
| Parcel Number: | 350736670210 | Agent Code: | |
| Type: | Real | | |
| Tax Area: | 75 - CP 250 | Land Use Code | 11 |
| Open Space: | N | DFL | N |
| Historic Property: | N | Remodel Property: | N |
| Multi-Family Redevelopment: | N | | |
| Township: | 7 | Section: | 36 |
| Range: | 35 |
Location |
| Address: | 474 SE STANFORD PL WA 99324 | Mapsco: | |
| Neighborhood: | G SFR | Map ID: | |
| Neighborhood CD: | 114011 |
Owner |
| Name: | JOSIFEK POLLY C | Owner ID: | 54906 |
| Mailing Address: | 474 SE STANFORD PL COLLEGE PLACE, WA 99324 | % Ownership: | 100.0000000000% |
| | | Exemptions: | |
Taxes and Assessment Details
Values
| (+) Improvement Homesite Value: | + | $0 | |
| (+) Improvement Non-Homesite Value: | + | $312,520 | |
| (+) Land Homesite Value: | + | $0 | |
| (+) Land Non-Homesite Value: | + | $65,000 | |
| (+) Curr Use (HS): | + | $0 | $0 |
| (+) Curr Use (NHS): | + | $0 | $0 |
| | | -------------------------- | |
| (=) Market Value: | = | $377,520 | |
| (–) Productivity Loss: | – | $0 | |
| | | -------------------------- | |
| (=) Subtotal: | = | $377,520 | |
| (+) Senior Appraised Value: | + | $0 | |
| (+) Non-Senior Appraised Value: | + | $377,520 | |
| | | -------------------------- | |
| (=) Total Appraised Value: | = | $377,520 | |
| (–) Senior Exemption Loss: | – | $0 | |
| (–) Exemption Loss: | – | $0 | |
| | | -------------------------- | |
| (=) Taxable Value: | = | $377,520 | |
Taxing Jurisdiction
| Owner: | JOSIFEK POLLY C | | |
| % Ownership: | 100.0000000000% | | |
| Total Value: | $377,520 | | |
| Tax Area: | 75 - CP 250 |
| CERFD | CURRENT EXPENSE REFUND 010 | 0.0000000000 | $377,520 | $377,520 | $0.00 | | |
| CURREXP | CURRENT EXPENSE 010 | 1.0175366760 | $377,520 | $377,520 | $384.14 | | |
| HUMNSERV | HUMAN SERVICES 119 | 0.0250000000 | $377,520 | $377,520 | $9.44 | | |
| SLDREL | SOLDIERS RELIEF 121 | 0.0155990005 | $377,520 | $377,520 | $5.89 | | |
| COLLPLBOND | C OF CP BOND 644 | 0.4374241808 | $377,520 | $377,520 | $165.14 | | |
| COLLPLGEN | CITY OF CP 632 | 1.4453819216 | $377,520 | $377,520 | $545.66 | | |
| EMERGSER | EMS 147 | 0.3792580840 | $377,520 | $377,520 | $143.18 | | |
| EMSRFD | EMS REFUND 147 | 0.0000000000 | $377,520 | $377,520 | $0.00 | | |
| RURALLIB | RURAL LIBRARY 623 | 0.3710609029 | $377,520 | $377,520 | $140.08 | | |
| PORTRFD | PORT REFUND 640 | 0.0000000000 | $377,520 | $377,520 | $0.00 | | |
| PORTWWGEN | PORT OF WW 640 | 0.2460186015 | $377,520 | $377,520 | $92.88 | | |
| SD250BOND | SD #250 BOND 773 | 1.4560608159 | $377,520 | $377,520 | $549.69 | | |
| SD250GEN | SD #250 GENERAL 770 | 2.3880724087 | $377,520 | $377,520 | $901.55 | | |
| ST2 | STATE SCHOOL PART 2 600 | 0.8131451643 | $377,520 | $377,520 | $306.98 | | |
| STATESCHL | STATE SCHOOL 600 | 1.5158548041 | $377,520 | $377,520 | $572.27 | | |
| STREFUND | STATE REFUND LEVY 603 | 0.0000000000 | $377,520 | $377,520 | $0.00 | | |
| | Total Tax Rate: | 10.1104125603 | | | | | |
| | | | | Taxes w/Current Exemptions: | $3,816.90 | | |
| | | | | Taxes w/o Exemptions: | $3,816.90 | | |
Improvement / Building
| Improvement #1: | RESIDENTIAL | State Code: | 11 | 2110.0 sqft | Value: | $312,520 |
| Exterior Wall: | SIDING | Foundation: | SLAB FOUNDATION | | Heating/Cooling: | REV-HEAT-PUMP-W/DUCT | Number of Bathrooms: | 3 | | Number of Bedrooms: | 3 | Plumbing: | 12 | | Roof Covering: | WOOD SHAKE |   |   |
|
| | Type | Description | Class CD | Sub Class CD | Year Built | Area |
| | MA | Main Area | 3 | 30 | 1985 | 2110.0 |
| | UPFL | Upper Floor (included in main area) | 3 | 30 | 1985 | 675.0 |
| | SI1 | SITE IMPROVEMENT | 3 | 30 | 1985 | 2.0 |
| | S1F | Single One Story Fireplace | 3 | 30 | 1985 | 1.0 |
| | BLW | WOOD BALCONIES | 3 | 30 | 1985 | 75.0 |
| | WOD | Wood Deck | 3 | 30 | 1985 | 280.0 |
| | ATG | Attached Garage | 3 | 30 | 1985 | 462.0 |
Sketch
Property Image
Land
| 1 | RES 1 | Converted: Residential | 0.1860 | 8100.00 | 0.00 | 0.00 | 1.00 | $65,000 | $0 |
Roll Value History
| 2026 | N/A | N/A | N/A | N/A | N/A |
| 2025 | $281,270 | $125,000 | $0 | $406,270 | $406,270 |
| 2024 | $312,520 | $65,000 | $0 | $377,520 | $377,520 |
| 2023 | $312,520 | $65,000 | $0 | $377,520 | $377,520 |
| 2022 | $312,520 | $65,000 | $0 | $377,520 | $377,520 |
| 2021 | $284,110 | $65,000 | $0 | $349,110 | $349,110 |
| 2020 | $218,550 | $65,000 | $0 | $283,550 | $283,550 |
| 2019 | $218,550 | $65,000 | $0 | $283,550 | $283,550 |
| 2018 | $156,110 | $65,000 | $0 | $221,110 | $221,110 |
| 2017 | $148,670 | $65,000 | $0 | $213,670 | $213,670 |
| 2016 | $129,280 | $65,000 | $0 | $194,280 | $194,280 |
| 2015 | $129,280 | $65,000 | $0 | $194,280 | $194,280 |
| 2014 | $161,600 | $65,000 | $0 | $226,600 | $226,600 |
| 2013 | $161,600 | $65,000 | $0 | $226,600 | $226,600 |
| 2012 | $161,600 | $65,000 | $0 | $0 | $0 |
| 2011 | $161,600 | $65,000 | $0 | $0 | $0 |
| 2010 | $161,600 | $65,000 | $0 | $0 | $0 |
| 2009 | $173,500 | $65,000 | $0 | $0 | $0 |
| 2008 | $133,500 | $30,000 | $0 | $0 | $0 |
| 2007 | $133,500 | $30,000 | $0 | $0 | $0 |
Deed and Sales History
| 1 | 05/30/2014 | SWD | STATUTORY WARRANTY DEED | BUMGARDNER LESLIE J | JOSIFEK POLLY C | | | $200,000.00 | 125987 | 2014-03701 |
| 2 | 08/30/1994 | WARRANTY D | WARRANTY DEED | | | | | $149,500.00 | 82458 | 2229-410169 |
Payout Agreement
| No payout information available.. |