Property
Account |
| Property ID: | 4748 | Abbreviated Legal Description: | CRESTMONT ADDN LOT 6 BLK 2 |
| Parcel Number: | 350736670206 | Agent Code: | |
| Type: | Real | | |
| Tax Area: | 75 - CP 250 | Land Use Code | 12 |
| Open Space: | N | DFL | N |
| Historic Property: | N | Remodel Property: | N |
| Multi-Family Redevelopment: | N | | |
| Township: | 7 | Section: | 36 |
| Range: | 35 |
Location |
| Address: | 451 SE 12TH ST WA 99324 | Mapsco: | |
| Neighborhood: | A Apartment | Map ID: | |
| Neighborhood CD: | 113021 |
Owner |
| Name: | WILKINSON CP HOLDINGS LLC | Owner ID: | 77915 |
| Mailing Address: | 212 N NACHES AVE YAKIMA, WA 98901 | % Ownership: | 100.0000000000% |
| | | Exemptions: | |
Taxes and Assessment Details
Values
| (+) Improvement Homesite Value: | + | N/A | |
| (+) Improvement Non-Homesite Value: | + | N/A | |
| (+) Land Homesite Value: | + | N/A | |
| (+) Land Non-Homesite Value: | + | N/A | Ag / Timber Use Value |
| (+) Curr Use (HS): | + | N/A | N/A |
| (+) Curr Use (NHS): | + | N/A | N/A |
| | | -------------------------- | |
| (=) Market Value: | = | N/A | |
| (–) Productivity Loss: | – | N/A | |
| | | -------------------------- | |
| (=) Subtotal: | = | N/A | |
| (+) Senior Appraised Value: | + | N/A | |
| (+) Non-Senior Appraised Value: | + | N/A | |
| | | -------------------------- | |
| (=) Total Appraised Value: | = | N/A | |
| (–) Senior Exemption Loss: | – | N/A | |
| (–) Exemption Loss: | – | N/A | |
| | | -------------------------- | |
| (=) Taxable Value: | = | N/A | |
Taxing Jurisdiction
| Owner: | WILKINSON CP HOLDINGS LLC | | |
| % Ownership: | 100.0000000000% | | |
| Total Value: | N/A | | |
| Tax Area: | 75 - CP 250 |
| CERFD | CURRENT EXPENSE REFUND 010 | N/A | N/A | N/A | N/A | | |
| CURREXP | CURRENT EXPENSE 010 | N/A | N/A | N/A | N/A | | |
| HUMNSERV | HUMAN SERVICES 119 | N/A | N/A | N/A | N/A | | |
| SLDREL | SOLDIERS RELIEF 121 | N/A | N/A | N/A | N/A | | |
| COLLPLBOND | C OF CP BOND 644 | N/A | N/A | N/A | N/A | | |
| COLLPLGEN | CITY OF CP 632 | N/A | N/A | N/A | N/A | | |
| EMERGSER | EMS 147 | N/A | N/A | N/A | N/A | | |
| EMSRFD | EMS REFUND 147 | N/A | N/A | N/A | N/A | | |
| PORTRFD | PORT REFUND 640 | N/A | N/A | N/A | N/A | | |
| PORTWWGEN | PORT OF WW 640 | N/A | N/A | N/A | N/A | | |
| SD250BOND | SD #250 BOND 773 | N/A | N/A | N/A | N/A | | |
| SD250GEN | SD #250 GENERAL 770 | N/A | N/A | N/A | N/A | | |
| ST2 | STATE SCHOOL PART 2 600 | N/A | N/A | N/A | N/A | | |
| STATESCHL | STATE SCHOOL 600 | N/A | N/A | N/A | N/A | | |
| STREFUND | STATE REFUND LEVY 603 | N/A | N/A | N/A | N/A | | |
| | Total Tax Rate: | N/A | | | | | |
| | | | | Taxes w/Current Exemptions: | N/A | | |
| | | | | Taxes w/o Exemptions: | N/A | | |
Improvement / Building
| Improvement #1: | RESIDENTIAL | State Code: | 12 | 3428.0 sqft | Value: | N/A |
| Exterior Wall: | PLYWOOD | Heating/Cooling: | MINI-SPLIT HP SYSTEM | | Number of Bathrooms: | 4 | Number of Bedrooms: | 8 | | Plumbing: | 28 | Roof Covering: | BUILT-UP ROCK |
|
| | Type | Description | Class CD | Sub Class CD | Year Built | Area |
| | MA | Main Area | 1 | 25 | 1973 | 3428.0 |
| | SI1 | SITE IMPROVEMENT | 1 | 25 | 1973 | 4.0 |
Sketch
Property Image
Land
| 1 | RES 1 | Converted: Residential | 0.2200 | 9583.00 | 0.00 | 0.00 | 1.00 | N/A | N/A |
Roll Value History
| 2026 | N/A | N/A | N/A | N/A | N/A |
| 2025 | $349,500 | $77,240 | $0 | $426,740 | $426,740 |
| 2024 | $349,500 | $61,000 | $0 | $410,500 | $410,500 |
| 2023 | $345,240 | $61,000 | $0 | $406,240 | $406,240 |
| 2022 | $345,240 | $61,000 | $0 | $406,240 | $406,240 |
| 2021 | $287,700 | $61,000 | $0 | $348,700 | $348,700 |
| 2020 | $170,730 | $61,000 | $0 | $231,730 | $231,730 |
| 2019 | $184,930 | $46,800 | $0 | $231,730 | $231,730 |
| 2018 | $176,120 | $46,800 | $0 | $222,920 | $222,920 |
| 2017 | $125,800 | $46,800 | $0 | $172,600 | $172,600 |
| 2016 | $125,800 | $46,800 | $0 | $172,600 | $172,600 |
| 2015 | $125,800 | $46,800 | $0 | $172,600 | $172,600 |
| 2014 | $125,800 | $46,800 | $0 | $172,600 | $172,600 |
| 2013 | $125,800 | $46,800 | $0 | $172,600 | $172,600 |
| 2012 | $125,800 | $46,800 | $0 | $0 | $0 |
| 2011 | $125,800 | $46,800 | $0 | $0 | $0 |
| 2010 | $125,800 | $46,800 | $0 | $0 | $0 |
| 2009 | $125,800 | $46,800 | $0 | $0 | $0 |
| 2008 | $112,900 | $24,400 | $0 | $0 | $0 |
| 2007 | $112,900 | $24,400 | $0 | $0 | $0 |
Deed and Sales History
| 1 | 09/09/2025 | QCD | QUIT CLAIM DEED | WILKINSON ESTATE LLC | WILKINSON CP HOLDINGS LLC | | | | 149990 | 2025-05456 |
| 2 | 08/10/2021 | FUL | FULFILLMENT DEED | 824 SE 12TH FAMILY LTD PTNR | M3D LLC | | | | 0 | 2021-09717 |
| 3 | 08/10/2021 | SWD | STATUTORY WARRANTY DEED | M3D LLC | WILKINSON ESTATE LLC | | 2-PARCELS | $710,000.00 | 142252 | 2021-09718 |
|   | |
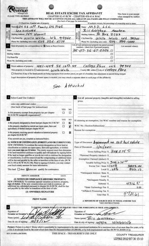
| 4 | 10/30/2012 | WARRANTY D | WARRANTY DEED | 824 SE 12TH FAMILY LTD PTNR | M3D LLC | | | $308,275.00 | 122902 | 2012-09605 |
| 5 | 01/09/1992 | WARRANTY D | WARRANTY DEED | | | | | $716,000.00 | 0 | 1939-200199 |
|   | |
Payout Agreement
| No payout information available.. |