Property
Account |
| Property ID: | 4715 | Abbreviated Legal Description: | HIGHLAND PARK #3 PARCEL 10 BLK 1 |
| Parcel Number: | 350736630110 | Agent Code: | |
| Type: | Real | | |
| Tax Area: | 77 - CP-250-F | Land Use Code | 11 |
| Open Space: | N | DFL | N |
| Historic Property: | N | Remodel Property: | N |
| Multi-Family Redevelopment: | N | | |
| Township: | 7 | Section: | 36 |
| Range: | 35 |
Location |
| Address: | 343 SE HIGHLAND PARK DR WA 99324 | Mapsco: | |
| Neighborhood: | A Superior SFR | Map ID: | |
| Neighborhood CD: | 113211 |
Owner |
| Name: | WESSEL LOUIS E & BRENDA L LAWLER | Owner ID: | 62745 |
| Mailing Address: | 343 SE HIGHLAND PARK DR COLLEGE PLACE, WA 99324 | % Ownership: | 100.0000000000% |
| | | Exemptions: | |
Taxes and Assessment Details
Property Tax Information as of
02/21/2026
Click on "Statement Details" to expand or collapse a tax statement.
* Please enter a valid date ** Please enter a valid date *
Statement Details |
| | TOTAL: | $0.00 | $0.00 | $0.00 | $0.00 | $0.00 | $0.00 |
|
| | $0.00 | $0.00 | $0.00 | $0.00 | $0.00 | $0.00 |
Values
| (+) Improvement Homesite Value: | + | $0 | |
| (+) Improvement Non-Homesite Value: | + | $380,400 | |
| (+) Land Homesite Value: | + | $0 | |
| (+) Land Non-Homesite Value: | + | $75,000 | |
| (+) Curr Use (HS): | + | $0 | $0 |
| (+) Curr Use (NHS): | + | $0 | $0 |
| | | -------------------------- | |
| (=) Market Value: | = | $455,400 | |
| (–) Productivity Loss: | – | $0 | |
| | | -------------------------- | |
| (=) Subtotal: | = | $455,400 | |
| (+) Senior Appraised Value: | + | $0 | |
| (+) Non-Senior Appraised Value: | + | $455,400 | |
| | | -------------------------- | |
| (=) Total Appraised Value: | = | $455,400 | |
| (–) Senior Exemption Loss: | – | $0 | |
| (–) Exemption Loss: | – | $0 | |
| | | -------------------------- | |
| (=) Taxable Value: | = | $455,400 | |
Taxing Jurisdiction
| Owner: | WESSEL LOUIS E & BRENDA L LAWLER | | |
| % Ownership: | 100.0000000000% | | |
| Total Value: | $455,400 | | |
| Tax Area: | 77 - CP-250-F |
| CERFD | CURRENT EXPENSE REFUND 010 | 0.0000000000 | $455,400 | $455,400 | $0.00 | | |
| CURREXP | CURRENT EXPENSE 010 | 1.0175366760 | $455,400 | $455,400 | $463.39 | | |
| HUMNSERV | HUMAN SERVICES 119 | 0.0250000000 | $455,400 | $455,400 | $11.39 | | |
| SLDREL | SOLDIERS RELIEF 121 | 0.0155990005 | $455,400 | $455,400 | $7.10 | | |
| COLLPLBOND | C OF CP BOND 644 | 0.4374241808 | $455,400 | $455,400 | $199.20 | | |
| COLLPLGEN | CITY OF CP 632 | 1.4453819216 | $455,400 | $455,400 | $658.23 | | |
| EMERGSER | EMS 147 | 0.3792580840 | $455,400 | $455,400 | $172.71 | | |
| EMSRFD | EMS REFUND 147 | 0.0000000000 | $455,400 | $455,400 | $0.00 | | |
| RURALLIB | RURAL LIBRARY 623 | 0.3710609029 | $455,400 | $455,400 | $168.98 | | |
| PORTRFD | PORT REFUND 640 | 0.0000000000 | $455,400 | $455,400 | $0.00 | | |
| PORTWWGEN | PORT OF WW 640 | 0.2460186015 | $455,400 | $455,400 | $112.04 | | |
| SD250BOND | SD #250 BOND 773 | 1.4560608159 | $455,400 | $455,400 | $663.09 | | |
| SD250GEN | SD #250 GENERAL 770 | 2.3880724087 | $455,400 | $455,400 | $1,087.53 | | |
| ST2 | STATE SCHOOL PART 2 600 | 0.8131451643 | $455,400 | $455,400 | $370.31 | | |
| STATESCHL | STATE SCHOOL 600 | 1.5158548041 | $455,400 | $455,400 | $690.32 | | |
| STREFUND | STATE REFUND LEVY 603 | 0.0000000000 | $455,400 | $455,400 | $0.00 | | |
| | Total Tax Rate: | 10.1104125603 | | | | | |
| | | | | Taxes w/Current Exemptions: | $4,604.29 | | |
| | | | | Taxes w/o Exemptions: | $4,604.29 | | |
Improvement / Building
| Improvement #1: | RESIDENTIAL | State Code: | 11 | 1875.0 sqft | Value: | $380,400 |
| Exterior Wall: | PLYWOOD | Heating/Cooling: | REV-HEAT-PUMP-W/DUCT | | Number of Bathrooms: | 3 | Number of Bedrooms: | 3 | | Plumbing: | 9 | Roof Covering: | COMP SHINGLE |
|
| | Type | Description | Class CD | Sub Class CD | Year Built | Area |
| | MA | Main Area | 1 | 40 | 1978 | 1875.0 |
| | SI1 | SITE IMPROVEMENT | 1 | 40 | 1978 | 2.0 |
| | BASE | BASEMENT | 1 | 40 | 1978 | 621.0 |
| | ATG | Attached Garage | 1 | 40 | 1978 | 552.0 |
| | WOD | Wood Deck | 1 | 40 | 1978 | 424.0 |
| | RPC | OPEN PORCH W/ROOF , CEILED | 1 | 40 | 1978 | 198.0 |
| | RPO | OPEN PORCH W/ROOF | 1 | 40 | 1978 | 110.0 |
Sketch
Property Image
Land
| 1 | RES 1 | Converted: Residential | 0.2600 | 11325.00 | 0.00 | 0.00 | 1.00 | $75,000 | $0 |
Roll Value History
| 2026 | N/A | N/A | N/A | N/A | N/A |
| 2025 | $315,740 | $140,000 | $0 | $455,740 | $455,740 |
| 2024 | $380,400 | $75,000 | $0 | $455,400 | $455,400 |
| 2023 | $380,400 | $75,000 | $0 | $455,400 | $455,400 |
| 2022 | $345,820 | $75,000 | $0 | $420,820 | $420,820 |
| 2021 | $288,190 | $75,000 | $0 | $363,190 | $363,190 |
| 2020 | $213,470 | $75,000 | $0 | $288,470 | $288,470 |
| 2019 | $228,470 | $60,000 | $0 | $288,470 | $288,470 |
| 2018 | $198,670 | $60,000 | $0 | $258,670 | $258,670 |
| 2017 | $192,890 | $60,000 | $0 | $252,890 | $252,890 |
| 2016 | $183,700 | $60,000 | $0 | $243,700 | $243,700 |
| 2015 | $183,700 | $60,000 | $0 | $243,700 | $243,700 |
| 2014 | $183,700 | $60,000 | $0 | $243,700 | $243,700 |
| 2013 | $183,700 | $60,000 | $0 | $243,700 | $243,700 |
| 2012 | $183,700 | $60,000 | $0 | $0 | $0 |
| 2011 | $183,700 | $60,000 | $0 | $0 | $0 |
| 2010 | $183,700 | $60,000 | $0 | $0 | $0 |
| 2009 | $196,500 | $60,000 | $0 | $0 | $0 |
| 2008 | $154,600 | $30,000 | $0 | $0 | $0 |
| 2007 | $154,600 | $30,000 | $0 | $0 | $0 |
Deed and Sales History
| 1 | 03/29/2024 | SWD | STATUTORY WARRANTY DEED | WESSEL LOUIS E & BRENDA L LAWLER | BOYD LAURA A | | | $460,000.00 | 147319 | 2024-01555 |
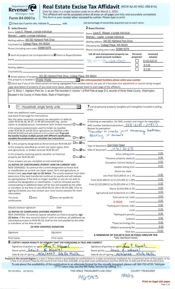
| 2 | 10/03/2023 | QCD | QUIT CLAIM DEED | WESSEL LOUIS E & BRENDA L LAWLER | WESSEL LOUIS E & BRENDA L LAWLER | | | | 146583 | 2023-05812 |
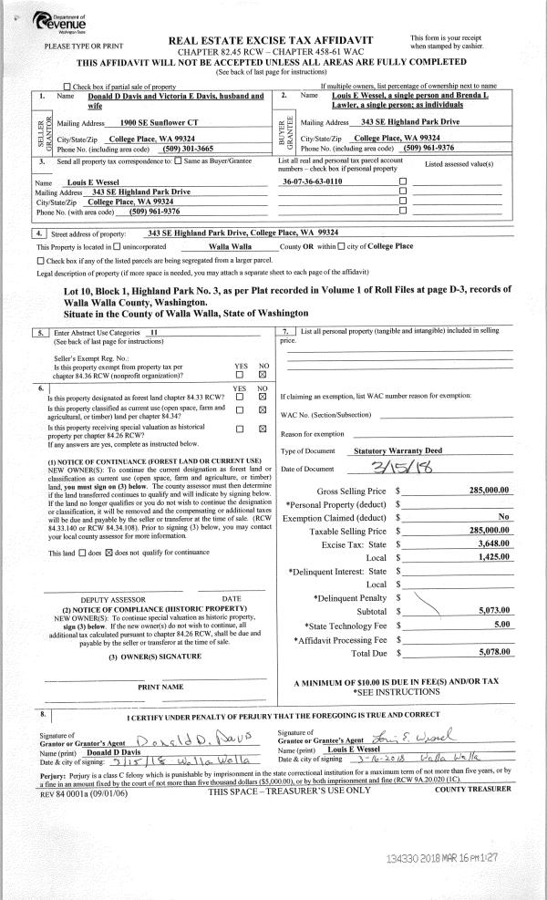
| 3 | 03/16/2018 | SWD | STATUTORY WARRANTY DEED | DAVIS DONALD D & VICTORIA E | WESSEL LOUIS E & BRENDA L LAWLER | | | $285,000.00 | 134330 | 2018-02080 |
| 4 | 09/30/2005 | WARRANTY D | WARRANTY DEED | BLETH, JAMES L & WENDY R | DAVIS, DONALD D & VICTORIA E | | | $247,000.00 | 108641 | 2005-12208 |
| 5 | 06/14/1993 | WARRANTY D | WARRANTY DEED | | | | | $131,000.00 | 79321 | 2079-305964 |
Payout Agreement
| No payout information available.. |