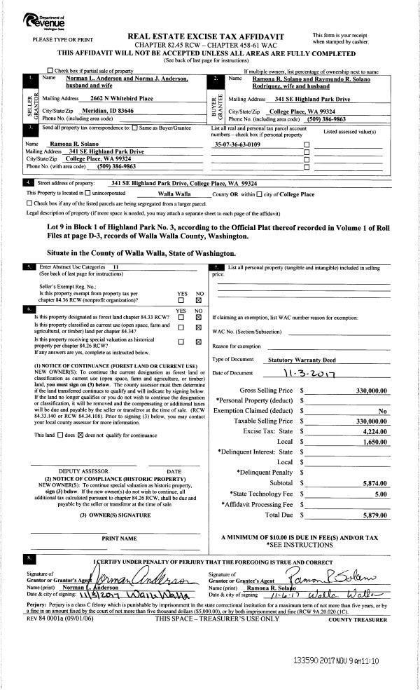
Property
Account |
| Property ID: | 4714 | Abbreviated Legal Description: | HIGHLAND PARK #3 PARCEL 9 BLK 1 |
| Parcel Number: | 350736630109 | Agent Code: | |
| Type: | Real | | |
| Tax Area: | 77 - CP-250-F | Land Use Code | 11 |
| Open Space: | N | DFL | N |
| Historic Property: | N | Remodel Property: | N |
| Multi-Family Redevelopment: | N | | |
| Township: | 7 | Section: | 36 |
| Range: | 35 |
Location |
| Address: | 341 SE HIGHLAND PARK DR WA 99324 | Mapsco: | |
| Neighborhood: | A Superior SFR | Map ID: | |
| Neighborhood CD: | 113211 |
Owner |
| Name: | RODRIQUEZ RAYMUNDO R SOLANO | Owner ID: | 62097 |
| Mailing Address: | RAMONA R SOLANO 341 SE HIGHLAND PARK DR COLLEGE PLACE, WA 99324 | % Ownership: | 100.0000000000% |
| | | Exemptions: | |
Taxes and Assessment Details
Values
| (+) Improvement Homesite Value: | + | $0 | |
| (+) Improvement Non-Homesite Value: | + | $438,380 | |
| (+) Land Homesite Value: | + | $0 | |
| (+) Land Non-Homesite Value: | + | $75,000 | |
| (+) Curr Use (HS): | + | $0 | $0 |
| (+) Curr Use (NHS): | + | $0 | $0 |
| | | -------------------------- | |
| (=) Market Value: | = | $513,380 | |
| (–) Productivity Loss: | – | $0 | |
| | | -------------------------- | |
| (=) Subtotal: | = | $513,380 | |
| (+) Senior Appraised Value: | + | $0 | |
| (+) Non-Senior Appraised Value: | + | $513,380 | |
| | | -------------------------- | |
| (=) Total Appraised Value: | = | $513,380 | |
| (–) Senior Exemption Loss: | – | $0 | |
| (–) Exemption Loss: | – | $0 | |
| | | -------------------------- | |
| (=) Taxable Value: | = | $513,380 | |
Taxing Jurisdiction
| Owner: | RODRIQUEZ RAYMUNDO R SOLANO | | |
| % Ownership: | 100.0000000000% | | |
| Total Value: | $513,380 | | |
| Tax Area: | 77 - CP-250-F |
| CERFD | CURRENT EXPENSE REFUND 010 | 0.0000000000 | $513,380 | $513,380 | $0.00 | | |
| CURREXP | CURRENT EXPENSE 010 | 1.0175366760 | $513,380 | $513,380 | $522.38 | | |
| HUMNSERV | HUMAN SERVICES 119 | 0.0250000000 | $513,380 | $513,380 | $12.83 | | |
| SLDREL | SOLDIERS RELIEF 121 | 0.0155990005 | $513,380 | $513,380 | $8.01 | | |
| COLLPLBOND | C OF CP BOND 644 | 0.4374241808 | $513,380 | $513,380 | $224.56 | | |
| COLLPLGEN | CITY OF CP 632 | 1.4453819216 | $513,380 | $513,380 | $742.03 | | |
| EMERGSER | EMS 147 | 0.3792580840 | $513,380 | $513,380 | $194.70 | | |
| EMSRFD | EMS REFUND 147 | 0.0000000000 | $513,380 | $513,380 | $0.00 | | |
| RURALLIB | RURAL LIBRARY 623 | 0.3710609029 | $513,380 | $513,380 | $190.50 | | |
| PORTRFD | PORT REFUND 640 | 0.0000000000 | $513,380 | $513,380 | $0.00 | | |
| PORTWWGEN | PORT OF WW 640 | 0.2460186015 | $513,380 | $513,380 | $126.30 | | |
| SD250BOND | SD #250 BOND 773 | 1.4560608159 | $513,380 | $513,380 | $747.51 | | |
| SD250GEN | SD #250 GENERAL 770 | 2.3880724087 | $513,380 | $513,380 | $1,225.99 | | |
| ST2 | STATE SCHOOL PART 2 600 | 0.8131451643 | $513,380 | $513,380 | $417.45 | | |
| STATESCHL | STATE SCHOOL 600 | 1.5158548041 | $513,380 | $513,380 | $778.21 | | |
| STREFUND | STATE REFUND LEVY 603 | 0.0000000000 | $513,380 | $513,380 | $0.00 | | |
| | Total Tax Rate: | 10.1104125603 | | | | | |
| | | | | Taxes w/Current Exemptions: | $5,190.47 | | |
| | | | | Taxes w/o Exemptions: | $5,190.47 | | |
Improvement / Building
| Improvement #1: | RESIDENTIAL | State Code: | 11 | 2181.0 sqft | Value: | $438,380 |
| Exterior Wall: | PLYWOOD | Foundation: | SLAB FOUNDATION | | Heating/Cooling: | REV-HEAT-PUMP-W/DUCT | Number of Bathrooms: | 2 | | Number of Bedrooms: | 3 | Plumbing: | 9 | | Roof Covering: | COMP SHINGLE |   |   |
|
| | Type | Description | Class CD | Sub Class CD | Year Built | Area |
| | MA | Main Area | 3 | 40 | 1978 | 2181.0 |
| | UPFL | Upper Floor (included in main area) | 3 | 40 | 1978 | 952.0 |
| | SI1 | SITE IMPROVEMENT | 3 | 40 | 1978 | 2.0 |
| | BASE | BASEMENT | 3 | 40 | 1978 | 837.0 |
| | BRF | BASEMENT - REC FINISH | 3 | 40 | 1978 | 420.0 |
| | BIG | Built In Garage | 3 | 40 | 1978 | 560.0 |
| | S1F | Single One Story Fireplace | 3 | 40 | 1978 | 1.0 |
| | PRC | PORCH W STEPS, ROOF,CEILED | 3 | 40 | 1978 | 30.0 |
Sketch
Property Image
Land
| 1 | RES 1 | Converted: Residential | 0.2127 | 9265.00 | 0.00 | 0.00 | 1.00 | $75,000 | $0 |
Roll Value History
| 2026 | N/A | N/A | N/A | N/A | N/A |
| 2025 | $443,640 | $140,000 | $0 | $583,640 | $583,640 |
| 2024 | $504,140 | $75,000 | $0 | $579,140 | $579,140 |
| 2023 | $438,380 | $75,000 | $0 | $513,380 | $513,380 |
| 2022 | $337,220 | $75,000 | $0 | $412,220 | $412,220 |
| 2021 | $281,010 | $75,000 | $0 | $356,010 | $356,010 |
| 2020 | $224,810 | $75,000 | $0 | $299,810 | $299,810 |
| 2019 | $239,810 | $60,000 | $0 | $299,810 | $299,810 |
| 2018 | $228,390 | $60,000 | $0 | $288,390 | $288,390 |
| 2017 | $190,320 | $60,000 | $0 | $250,320 | $250,320 |
| 2016 | $181,260 | $60,000 | $0 | $241,260 | $241,260 |
| 2015 | $181,260 | $60,000 | $0 | $241,260 | $241,260 |
| 2014 | $190,800 | $60,000 | $0 | $250,800 | $250,800 |
| 2013 | $190,800 | $60,000 | $0 | $250,800 | $250,800 |
| 2012 | $190,800 | $60,000 | $0 | $0 | $0 |
| 2011 | $178,900 | $60,000 | $0 | $0 | $0 |
| 2010 | $178,900 | $60,000 | $0 | $0 | $0 |
| 2009 | $191,500 | $60,000 | $0 | $0 | $0 |
| 2008 | $152,000 | $30,000 | $0 | $0 | $0 |
| 2007 | $152,000 | $30,000 | $0 | $0 | $0 |
Deed and Sales History
| 1 | 11/09/2017 | SWD | STATUTORY WARRANTY DEED | ANDERSON NORMAN L & NORMA J | RODRIQUEZ RAYMUNDO R SOLANO | | | $330,000.00 | 133590 | 2017-09023 |
| 2 | 08/29/1989 | WARRANTY D | WARRANTY DEED | | | | | $88,000.00 | 0 | 1788-905514 |
Payout Agreement
| No payout information available.. |