Property
Account |
| Property ID: | 4710 | Abbreviated Legal Description: | HIGHLAND PARK #3 PARCEL 2 BLK 1 |
| Parcel Number: | 350736630102 | Agent Code: | |
| Type: | Real | | |
| Tax Area: | 77 - CP-250-F | Land Use Code | 11 |
| Open Space: | N | DFL | N |
| Historic Property: | N | Remodel Property: | N |
| Multi-Family Redevelopment: | N | | |
| Township: | 7 | Section: | 36 |
| Range: | 35 |
Location |
| Address: | 315 SE HIGHLAND PARK DR WA 99324 | Mapsco: | |
| Neighborhood: | A Superior SFR | Map ID: | |
| Neighborhood CD: | 113211 |
Owner |
| Name: | ELLIS SHAWN & RACHELLE | Owner ID: | 66034 |
| Mailing Address: | 315 SE HIGHLAND PARK DR COLLEGE PLACE, WA 99324 | % Ownership: | 100.0000000000% |
| | | Exemptions: | |
Taxes and Assessment Details
Property Tax Information as of
02/21/2026
Click on "Statement Details" to expand or collapse a tax statement.
* Please enter a valid date ** Please enter a valid date *
Statement Details |
| | TOTAL: | $0.00 | $0.00 | $0.00 | $0.00 | $0.00 | $0.00 |
|
| | $0.00 | $0.00 | $0.00 | $0.00 | $0.00 | $0.00 |
Values
| (+) Improvement Homesite Value: | + | $0 | |
| (+) Improvement Non-Homesite Value: | + | $354,830 | |
| (+) Land Homesite Value: | + | $0 | |
| (+) Land Non-Homesite Value: | + | $75,000 | |
| (+) Curr Use (HS): | + | $0 | $0 |
| (+) Curr Use (NHS): | + | $0 | $0 |
| | | -------------------------- | |
| (=) Market Value: | = | $429,830 | |
| (–) Productivity Loss: | – | $0 | |
| | | -------------------------- | |
| (=) Subtotal: | = | $429,830 | |
| (+) Senior Appraised Value: | + | $0 | |
| (+) Non-Senior Appraised Value: | + | $429,830 | |
| | | -------------------------- | |
| (=) Total Appraised Value: | = | $429,830 | |
| (–) Senior Exemption Loss: | – | $0 | |
| (–) Exemption Loss: | – | $0 | |
| | | -------------------------- | |
| (=) Taxable Value: | = | $429,830 | |
Taxing Jurisdiction
| Owner: | ELLIS SHAWN & RACHELLE | | |
| % Ownership: | 100.0000000000% | | |
| Total Value: | $429,830 | | |
| Tax Area: | 77 - CP-250-F |
| CERFD | CURRENT EXPENSE REFUND 010 | 0.0000000000 | $429,830 | $429,830 | $0.00 | | |
| CURREXP | CURRENT EXPENSE 010 | 1.0175366760 | $429,830 | $429,830 | $437.37 | | |
| HUMNSERV | HUMAN SERVICES 119 | 0.0250000000 | $429,830 | $429,830 | $10.75 | | |
| SLDREL | SOLDIERS RELIEF 121 | 0.0155990005 | $429,830 | $429,830 | $6.70 | | |
| COLLPLBOND | C OF CP BOND 644 | 0.4374241808 | $429,830 | $429,830 | $188.02 | | |
| COLLPLGEN | CITY OF CP 632 | 1.4453819216 | $429,830 | $429,830 | $621.27 | | |
| EMERGSER | EMS 147 | 0.3792580840 | $429,830 | $429,830 | $163.02 | | |
| EMSRFD | EMS REFUND 147 | 0.0000000000 | $429,830 | $429,830 | $0.00 | | |
| RURALLIB | RURAL LIBRARY 623 | 0.3710609029 | $429,830 | $429,830 | $159.49 | | |
| PORTRFD | PORT REFUND 640 | 0.0000000000 | $429,830 | $429,830 | $0.00 | | |
| PORTWWGEN | PORT OF WW 640 | 0.2460186015 | $429,830 | $429,830 | $105.75 | | |
| SD250BOND | SD #250 BOND 773 | 1.4560608159 | $429,830 | $429,830 | $625.86 | | |
| SD250GEN | SD #250 GENERAL 770 | 2.3880724087 | $429,830 | $429,830 | $1,026.47 | | |
| ST2 | STATE SCHOOL PART 2 600 | 0.8131451643 | $429,830 | $429,830 | $349.51 | | |
| STATESCHL | STATE SCHOOL 600 | 1.5158548041 | $429,830 | $429,830 | $651.56 | | |
| STREFUND | STATE REFUND LEVY 603 | 0.0000000000 | $429,830 | $429,830 | $0.00 | | |
| | Total Tax Rate: | 10.1104125603 | | | | | |
| | | | | Taxes w/Current Exemptions: | $4,345.77 | | |
| | | | | Taxes w/o Exemptions: | $4,345.77 | | |
Improvement / Building
| Improvement #1: | RESIDENTIAL | State Code: | 11 | 1661.0 sqft | Value: | $354,830 |
| Exterior Wall: | PLYWOOD | Heating/Cooling: | HEAT PUMP | | Number of Bathrooms: | 3 | Number of Bedrooms: | 4 | | Plumbing: | 13 | Roof Covering: | COMP SHINGLE |
|
| | Type | Description | Class CD | Sub Class CD | Year Built | Area |
| | MA | Main Area | 11 | 40 | 1979 | 1661.0 |
| | SI1 | SITE IMPROVEMENT | 11 | 40 | 1979 | 2.0 |
| | BASE | BASEMENT | 11 | 40 | 1979 | 886.0 |
| | BPF | BASEMENT -PARTITIONED FINISH | 11 | 40 | 1979 | 886.0 |
| | BIG | Built In Garage | 11 | 40 | 1979 | 775.0 |
| | PRC | PORCH W STEPS, ROOF,CEILED | 11 | 40 | 1979 | 44.0 |
Sketch
Property Image
Land
| 1 | RES 1 | Converted: Residential | 0.2204 | 9600.00 | 0.00 | 0.00 | 1.00 | $75,000 | $0 |
Roll Value History
| 2026 | N/A | N/A | N/A | N/A | N/A |
| 2025 | $489,940 | $140,000 | $0 | $629,940 | $629,940 |
| 2024 | $556,750 | $75,000 | $0 | $631,750 | $631,750 |
| 2023 | $354,830 | $75,000 | $0 | $429,830 | $429,830 |
| 2022 | $337,930 | $75,000 | $0 | $412,930 | $412,930 |
| 2021 | $281,610 | $75,000 | $0 | $356,610 | $356,610 |
| 2020 | $256,010 | $75,000 | $0 | $331,010 | $331,010 |
| 2019 | $271,010 | $60,000 | $0 | $331,010 | $331,010 |
| 2018 | $180,670 | $60,000 | $0 | $240,670 | $240,670 |
| 2017 | $172,070 | $60,000 | $0 | $232,070 | $232,070 |
| 2016 | $163,880 | $60,000 | $0 | $223,880 | $223,880 |
| 2015 | $163,880 | $60,000 | $0 | $223,880 | $223,880 |
| 2014 | $172,500 | $60,000 | $0 | $232,500 | $232,500 |
| 2013 | $172,500 | $60,000 | $0 | $232,500 | $232,500 |
| 2012 | $213,500 | $60,000 | $0 | $0 | $0 |
| 2011 | $213,500 | $60,000 | $0 | $0 | $0 |
| 2010 | $213,500 | $60,000 | $0 | $0 | $0 |
| 2009 | $227,900 | $60,000 | $0 | $0 | $0 |
| 2008 | $154,400 | $30,000 | $0 | $0 | $0 |
| 2007 | $154,400 | $30,000 | $0 | $0 | $0 |
Deed and Sales History
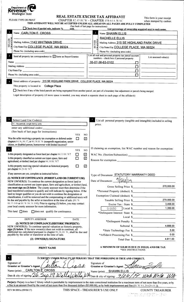
| 1 | 10/12/2023 | SWD | STATUTORY WARRANTY DEED | ELLIS SHAWN & RACHELLE | REEDY DALLAS ADAM NATHAN & NICOLE EMI | | | $629,900.00 | 146624 | 2023-06009 |
| 2 | 09/27/2019 | SWD | STATUTORY WARRANTY DEED | CROSS CARLTON E | ELLIS SHAWN & RACHELLE | | | $270,000.00 | 137765 | 2019-07668 |
| 3 | 08/19/1981 | WARRANTY D | WARRANTY DEED | | | | | $83,000.00 | 0 | 1298-106250 |
Payout Agreement
| No payout information available.. |