Property
Account |
| Property ID: | 47035 | Abbreviated Legal Description: | 26-8-37 TAX 14 WITHIN SW1/4SE1/4; TAX 20 WITHIN S1/2SW1/4 SLY OFABAND RR, LESS WLY PTN |
| Parcel Number: | 370826430023 | Agent Code: | |
| Type: | Real | | |
| Tax Area: | 310 - 101-8 | Land Use Code | 83 |
| Open Space: | Y | DFL | N |
| Historic Property: | N | Remodel Property: | N |
| Multi-Family Redevelopment: | N | | |
| Township: | 8 | Section: | 26 |
| Range: | 37 |
Location |
| Address: | WA 99329 | Mapsco: | |
| Neighborhood: | 0 Farm | Map ID: | |
| Neighborhood CD: | 4240 |
Owner |
| Name: | COOMBS CURTIS & LINDA | Owner ID: | 44704 |
| Mailing Address: | 12626 E HIGHWAY 12 WAITSBURG, WA 99362 | % Ownership: | 50.0000000000% |
| | | Exemptions: | |
Taxes and Assessment Details
Property Tax Information as of
02/21/2026
Click on "Statement Details" to expand or collapse a tax statement.
* Please enter a valid date ** Please enter a valid date *
Statement Details |
| | TOTAL: | $0.00 | $0.00 | $0.00 | $0.00 | $0.00 | $0.00 |
|
| | $0.00 | $0.00 | $0.00 | $0.00 | $0.00 | $0.00 |
Values
| (+) Improvement Homesite Value: | + | $0 | |
| (+) Improvement Non-Homesite Value: | + | $0 | |
| (+) Land Homesite Value: | + | $0 | |
| (+) Land Non-Homesite Value: | + | $0 | |
| (+) Curr Use (HS): | + | $0 | $0 |
| (+) Curr Use (NHS): | + | $12,040 | $5,105 |
| | | -------------------------- | |
| (=) Market Value: | = | $12,040 | |
| (–) Productivity Loss: | – | $6,935 | |
| | | -------------------------- | |
| (=) Subtotal: | = | $5,105 | |
| (+) Senior Appraised Value: | + | $0 | |
| (+) Non-Senior Appraised Value: | + | $5,105 | |
| | | -------------------------- | |
| (=) Total Appraised Value: | = | $5,105 | |
| (–) Senior Exemption Loss: | – | $0 | |
| (–) Exemption Loss: | – | $0 | |
| | | -------------------------- | |
| (=) Taxable Value: | = | $5,105 | |
Taxing Jurisdiction
| Owner: | COOMBS CURTIS & LINDA | | |
| % Ownership: | 50.0000000000% | | |
| Total Value: | $12,040 | | |
| Tax Area: | 310 - 101-8 |
| CERFD | CURRENT EXPENSE REFUND 010 | 0.0000000000 | $5,105 | $5,105 | $0.00 | | |
| CURREXP | CURRENT EXPENSE 010 | 1.0175366760 | $5,105 | $5,105 | $5.19 | | |
| HUMNSERV | HUMAN SERVICES 119 | 0.0250000000 | $5,105 | $5,105 | $0.13 | | |
| SLDREL | SOLDIERS RELIEF 121 | 0.0155990005 | $5,105 | $5,105 | $0.08 | | |
| EMERGSER | EMS 147 | 0.3792580840 | $5,105 | $5,105 | $1.94 | | |
| EMSRFD | EMS REFUND 147 | 0.0000000000 | $5,105 | $5,105 | $0.00 | | |
| FD8EXP | FD #8 EXPENSE 697 | 0.6647992540 | $5,105 | $5,105 | $3.39 | | |
| RLBRFD | RURAL LIBRARY REFUND 623 | 0.0000000000 | $5,105 | $5,105 | $0.00 | | |
| RURALLIB | RURAL LIBRARY 623 | 0.3710609029 | $5,105 | $5,105 | $1.89 | | |
| PORTRFD | PORT REFUND 640 | 0.0000000000 | $5,105 | $5,105 | $0.00 | | |
| PORTWWGEN | PORT OF WW 640 | 0.2460186015 | $5,105 | $5,105 | $1.26 | | |
| SD101CAP | SD #101 CAP 752 | 0.5894423472 | $5,105 | $5,105 | $3.01 | | |
| SD101GEN | SD #101 GENERAL 750 | 0.7455117868 | $5,105 | $5,105 | $3.81 | | |
| ST2 | STATE SCHOOL PART 2 600 | 0.8131451643 | $5,105 | $5,105 | $4.15 | | |
| STATESCHL | STATE SCHOOL 600 | 1.5158548041 | $5,105 | $5,105 | $7.74 | | |
| STREFUND | STATE REFUND LEVY 603 | 0.0000000000 | $5,105 | $5,105 | $0.00 | | |
| COROAD | COUNTY ROAD 115 | 1.6549953990 | $5,105 | $5,105 | $8.45 | | |
| CRPRD | COUNTY ROAD REFUND 115 | 0.0000000000 | $5,105 | $5,105 | $0.00 | | |
| | Total Tax Rate: | 8.0382220203 | | | | | |
| | | | | Taxes w/Current Exemptions: | $41.04 | | |
| | | | | Taxes w/o Exemptions: | $41.04 | | |
Improvement / Building
Sketch
| No sketches available for this property. |
Property Image
Land
| 1 | 2-PAST | Pasture | 11.4600 | 0.00 | 0.00 | 0.00 | 1.00 | $6,300 | $4,010 |
| 2 | 90-C1AN | Class 1 90 BU Annual | 5.0000 | 0.00 | 0.00 | 0.00 | 1.00 | $17,780 | $6,200 |
| 3 | WASTE | Waste | 5.0000 | 0.00 | 0.00 | 0.00 | 1.00 | $0 | $0 |
Roll Value History
| 2026 | N/A | N/A | N/A | N/A | N/A |
| 2025 | $0 | $12,490 | $5,055 | $5,055 | $5,055 |
| 2024 | $0 | $12,265 | $5,260 | $5,260 | $5,260 |
| 2023 | $0 | $12,040 | $5,105 | $5,105 | $5,105 |
| 2022 | $0 | $11,700 | $4,970 | $4,970 | $4,970 |
| 2021 | $0 | $11,250 | $4,955 | $4,955 | $4,955 |
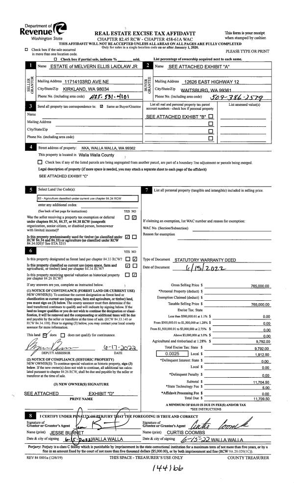
Deed and Sales History
| 1 | 06/17/2022 | WARRANTY D | WARRANTY DEED | LAIDLAW MELVERN ELLIS JR | BROCK ROBERT S & JACQUELINE C | | 7-PARCELS | $765,000.00 | 0 | 2022-05148 |
| 2 | 06/17/2022 | WARRANTY D | WARRANTY DEED | LAIDLAW MELVERN ELLIS JR | COOMBS CURTIS & LINDA | | 7-PARCELS | $765,000.00 | 0 | 2022-05148 |
| 3 | 06/17/2022 | WARRANTY D | WARRANTY DEED | LAIDLAW MELVERN ELLIS JR | DRAGOO ALLYSON | | 7-PARCELS | $765,000.00 | 0 | 2022-05148 |
Payout Agreement
| No payout information available.. |