Property
Account |
| Property ID: | 47032 | Abbreviated Legal Description: | 35-8-37 NW1/4NE1/4 W OF NP R/W, LESS TAX 2 & LESS PARCEL 3; SW1/4NE1/4 LESS LD SD NP R/W; NW1/4SE1/4 |
| Parcel Number: | 370835130001 | Agent Code: | |
| Type: | Real | | |
| Tax Area: | 310 - 101-8 | Land Use Code | 83 |
| Open Space: | Y | DFL | N |
| Historic Property: | N | Remodel Property: | N |
| Multi-Family Redevelopment: | N | | |
| Township: | 8 | Section: | 35 |
| Range: | 37 |
Location |
| Address: | WA 99329 | Mapsco: | |
| Neighborhood: | 0 Farm | Map ID: | |
| Neighborhood CD: | 4240 |
Owner |
| Name: | COOMBS CURTIS & LINDA | Owner ID: | 44704 |
| Mailing Address: | 12626 E HIGHWAY 12 WAITSBURG, WA 99362 | % Ownership: | 50.0000000000% |
| | | Exemptions: | |
Taxes and Assessment Details
Values
| (+) Improvement Homesite Value: | + | $0 | |
| (+) Improvement Non-Homesite Value: | + | $10,250 | |
| (+) Land Homesite Value: | + | $0 | |
| (+) Land Non-Homesite Value: | + | $0 | |
| (+) Curr Use (HS): | + | $0 | $0 |
| (+) Curr Use (NHS): | + | $153,920 | $54,355 |
| | | -------------------------- | |
| (=) Market Value: | = | $164,170 | |
| (–) Productivity Loss: | – | $99,560 | |
| | | -------------------------- | |
| (=) Subtotal: | = | $64,610 | |
| (+) Senior Appraised Value: | + | $0 | |
| (+) Non-Senior Appraised Value: | + | $64,605 | |
| | | -------------------------- | |
| (=) Total Appraised Value: | = | $64,605 | |
| (–) Senior Exemption Loss: | – | $0 | |
| (–) Exemption Loss: | – | $0 | |
| | | -------------------------- | |
| (=) Taxable Value: | = | $64,605 | |
Taxing Jurisdiction
| Owner: | COOMBS CURTIS & LINDA | | |
| % Ownership: | 50.0000000000% | | |
| Total Value: | $164,170 | | |
| Tax Area: | 310 - 101-8 |
| CERFD | CURRENT EXPENSE REFUND 010 | 0.0000000000 | $64,605 | $64,605 | $0.00 | | |
| CURREXP | CURRENT EXPENSE 010 | 1.0175366760 | $64,605 | $64,605 | $65.74 | | |
| HUMNSERV | HUMAN SERVICES 119 | 0.0250000000 | $64,605 | $64,605 | $1.62 | | |
| SLDREL | SOLDIERS RELIEF 121 | 0.0155990005 | $64,605 | $64,605 | $1.01 | | |
| EMERGSER | EMS 147 | 0.3792580840 | $64,605 | $64,605 | $24.50 | | |
| EMSRFD | EMS REFUND 147 | 0.0000000000 | $64,605 | $64,605 | $0.00 | | |
| FD8EXP | FD #8 EXPENSE 697 | 0.6647992540 | $64,605 | $64,605 | $42.95 | | |
| RLBRFD | RURAL LIBRARY REFUND 623 | 0.0000000000 | $64,605 | $64,605 | $0.00 | | |
| RURALLIB | RURAL LIBRARY 623 | 0.3710609029 | $64,605 | $64,605 | $23.97 | | |
| PORTRFD | PORT REFUND 640 | 0.0000000000 | $64,605 | $64,605 | $0.00 | | |
| PORTWWGEN | PORT OF WW 640 | 0.2460186015 | $64,605 | $64,605 | $15.89 | | |
| SD101CAP | SD #101 CAP 752 | 0.5894423472 | $64,605 | $64,605 | $38.08 | | |
| SD101GEN | SD #101 GENERAL 750 | 0.7455117868 | $64,605 | $64,605 | $48.16 | | |
| ST2 | STATE SCHOOL PART 2 600 | 0.8131451643 | $64,605 | $64,605 | $52.53 | | |
| STATESCHL | STATE SCHOOL 600 | 1.5158548041 | $64,605 | $64,605 | $97.93 | | |
| STREFUND | STATE REFUND LEVY 603 | 0.0000000000 | $64,605 | $64,605 | $0.00 | | |
| COROAD | COUNTY ROAD 115 | 1.6549953990 | $64,605 | $64,605 | $106.92 | | |
| CRPRD | COUNTY ROAD REFUND 115 | 0.0000000000 | $64,605 | $64,605 | $0.00 | | |
| | Total Tax Rate: | 8.0382220203 | | | | | |
| | | | | Taxes w/Current Exemptions: | $519.30 | | |
| | | | | Taxes w/o Exemptions: | $519.30 | | |
Improvement / Building
| Improvement #1: | COMMERCIAL | State Code: | 83 | 1.0 sqft | Value: | $20,500 |
Sketch
| No sketches available for this property. |
Property Image
Land
| 1 | WASTE | Waste | 10.0000 | 0.00 | 0.00 | 0.00 | 1.00 | $0 | $0 |
| 2 | 90-C1AN | Class 1 90 BU Annual | 85.2000 | 3711312.00 | 0.00 | 0.00 | 1.00 | $302,890 | $105,560 |
| 3 | 2-PAST | Pasture | 9.0000 | 392040.00 | 0.00 | 0.00 | 1.00 | $4,950 | $3,150 |
Roll Value History
| 2026 | N/A | N/A | N/A | N/A | N/A |
| 2025 | $10,250 | $161,585 | $49,320 | $59,570 | $59,570 |
| 2024 | $10,250 | $157,750 | $52,770 | $63,020 | $63,020 |
| 2023 | $10,250 | $153,920 | $54,355 | $64,605 | $64,605 |
| 2022 | $10,250 | $148,165 | $52,100 | $62,350 | $62,350 |
| 2021 | $10,250 | $140,500 | $51,800 | $62,050 | $62,050 |
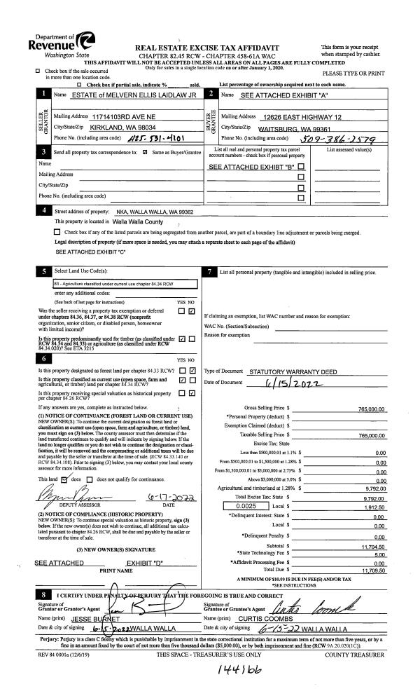
Deed and Sales History
| 1 | 06/17/2022 | WARRANTY D | WARRANTY DEED | LAIDLAW MELVERN ELLIS JR | BROCK ROBERT S & JACQUELINE C | | 7-PARCELS | $765,000.00 | 0 | 2022-05148 |
| 2 | 06/17/2022 | WARRANTY D | WARRANTY DEED | LAIDLAW MELVERN ELLIS JR | COOMBS CURTIS & LINDA | | 7-PARCELS | $765,000.00 | 0 | 2022-05148 |
| 3 | 06/17/2022 | WARRANTY D | WARRANTY DEED | LAIDLAW MELVERN ELLIS JR | DRAGOO ALLYSON | | 7-PARCELS | $765,000.00 | 0 | 2022-05148 |
Payout Agreement
| No payout information available.. |