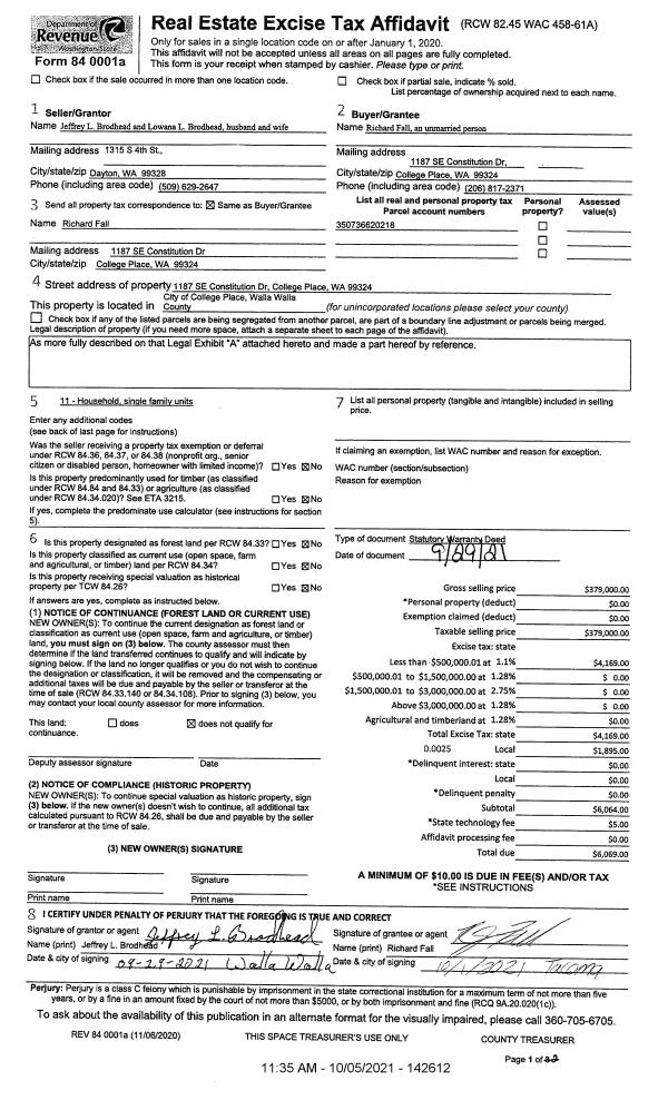
Property
Account |
| Property ID: | 4696 | Abbreviated Legal Description: | KNAPP ADDN PARCEL 18 BLK 2 |
| Parcel Number: | 350736620218 | Agent Code: | |
| Type: | Real | | |
| Tax Area: | 77 - CP-250-F | Land Use Code | 11 |
| Open Space: | N | DFL | N |
| Historic Property: | N | Remodel Property: | N |
| Multi-Family Redevelopment: | N | | |
| Township: | 7 | Section: | 36 |
| Range: | 35 |
Location |
| Address: | 1187 SE CONSTITUTION DR WA 99324 | Mapsco: | |
| Neighborhood: | A SFR Rural/City Inf | Map ID: | |
| Neighborhood CD: | 113012 |
Owner |
| Name: | FALL RICHARD | Owner ID: | 70372 |
| Mailing Address: | 1187 SE CONSTITUTION DR COLLEGE PLACE, WA 99324 | % Ownership: | 100.0000000000% |
| | | Exemptions: | |
Taxes and Assessment Details
Property Tax Information as of
02/21/2026
Click on "Statement Details" to expand or collapse a tax statement.
* Please enter a valid date ** Please enter a valid date *
Statement Details |
| | TOTAL: | $0.00 | $0.00 | $0.00 | $0.00 | $0.00 | $0.00 |
|
| | $0.00 | $0.00 | $0.00 | $0.00 | $0.00 | $0.00 |
Values
| (+) Improvement Homesite Value: | + | $0 | |
| (+) Improvement Non-Homesite Value: | + | $329,600 | |
| (+) Land Homesite Value: | + | $0 | |
| (+) Land Non-Homesite Value: | + | $70,000 | |
| (+) Curr Use (HS): | + | $0 | $0 |
| (+) Curr Use (NHS): | + | $0 | $0 |
| | | -------------------------- | |
| (=) Market Value: | = | $399,600 | |
| (–) Productivity Loss: | – | $0 | |
| | | -------------------------- | |
| (=) Subtotal: | = | $399,600 | |
| (+) Senior Appraised Value: | + | $0 | |
| (+) Non-Senior Appraised Value: | + | $399,600 | |
| | | -------------------------- | |
| (=) Total Appraised Value: | = | $399,600 | |
| (–) Senior Exemption Loss: | – | $0 | |
| (–) Exemption Loss: | – | $0 | |
| | | -------------------------- | |
| (=) Taxable Value: | = | $399,600 | |
Taxing Jurisdiction
| Owner: | FALL RICHARD | | |
| % Ownership: | 100.0000000000% | | |
| Total Value: | $399,600 | | |
| Tax Area: | 77 - CP-250-F |
| CERFD | CURRENT EXPENSE REFUND 010 | 0.0000000000 | $399,600 | $399,600 | $0.00 | | |
| CURREXP | CURRENT EXPENSE 010 | 1.0175366760 | $399,600 | $399,600 | $406.61 | | |
| HUMNSERV | HUMAN SERVICES 119 | 0.0250000000 | $399,600 | $399,600 | $9.99 | | |
| SLDREL | SOLDIERS RELIEF 121 | 0.0155990005 | $399,600 | $399,600 | $6.23 | | |
| COLLPLBOND | C OF CP BOND 644 | 0.4374241808 | $399,600 | $399,600 | $174.79 | | |
| COLLPLGEN | CITY OF CP 632 | 1.4453819216 | $399,600 | $399,600 | $577.57 | | |
| EMERGSER | EMS 147 | 0.3792580840 | $399,600 | $399,600 | $151.55 | | |
| EMSRFD | EMS REFUND 147 | 0.0000000000 | $399,600 | $399,600 | $0.00 | | |
| RURALLIB | RURAL LIBRARY 623 | 0.3710609029 | $399,600 | $399,600 | $148.28 | | |
| PORTRFD | PORT REFUND 640 | 0.0000000000 | $399,600 | $399,600 | $0.00 | | |
| PORTWWGEN | PORT OF WW 640 | 0.2460186015 | $399,600 | $399,600 | $98.31 | | |
| SD250BOND | SD #250 BOND 773 | 1.4560608159 | $399,600 | $399,600 | $581.84 | | |
| SD250GEN | SD #250 GENERAL 770 | 2.3880724087 | $399,600 | $399,600 | $954.27 | | |
| ST2 | STATE SCHOOL PART 2 600 | 0.8131451643 | $399,600 | $399,600 | $324.93 | | |
| STATESCHL | STATE SCHOOL 600 | 1.5158548041 | $399,600 | $399,600 | $605.74 | | |
| STREFUND | STATE REFUND LEVY 603 | 0.0000000000 | $399,600 | $399,600 | $0.00 | | |
| | Total Tax Rate: | 10.1104125603 | | | | | |
| | | | | Taxes w/Current Exemptions: | $4,040.11 | | |
| | | | | Taxes w/o Exemptions: | $4,040.11 | | |
Improvement / Building
| Improvement #1: | RESIDENTIAL | State Code: | 11 | 1364.0 sqft | Value: | $329,600 |
| Exterior Wall: | SIDING | Heating/Cooling: | HEAT PUMP | | Number of Bathrooms: | 3 | Number of Bedrooms: | 3 | | Plumbing: | 12 | Roof Covering: | COMP SHINGLE |
|
| | Type | Description | Class CD | Sub Class CD | Year Built | Area |
| | MA | Main Area | 1 | 35 | 1981 | 1364.0 |
| | SI1 | SITE IMPROVEMENT | 1 | 35 | 1981 | 2.5 |
| | BASE | BASEMENT | 1 | 35 | 1981 | 1320.0 |
| | BPF | BASEMENT -PARTITIONED FINISH | 1 | 35 | 1981 | 1320.0 |
| | ATG | Attached Garage | 1 | 35 | 1981 | 480.0 |
| | S1F | Single One Story Fireplace | 1 | 35 | 1981 | 1.0 |
| | RCD | WOOD DECK W/ROOF, CEILED | 1 | 35 | 1981 | 72.0 |
| | WOD | Wood Deck | 1 | 35 | 1981 | 270.0 |
Sketch
Property Image
Land
| 1 | RES 1 | Converted: Residential | 0.0000 | 0.00 | 0.00 | 0.00 | 1.00 | $70,000 | $0 |
Roll Value History
| 2026 | N/A | N/A | N/A | N/A | N/A |
| 2025 | $263,680 | $130,000 | $0 | $393,680 | $393,680 |
| 2024 | $329,600 | $70,000 | $0 | $399,600 | $399,600 |
| 2023 | $329,600 | $70,000 | $0 | $399,600 | $399,600 |
| 2022 | $299,630 | $70,000 | $0 | $369,630 | $369,630 |
| 2021 | $260,550 | $70,000 | $0 | $330,550 | $330,550 |
| 2020 | $179,690 | $70,000 | $0 | $249,690 | $249,690 |
| 2019 | $194,690 | $55,000 | $0 | $249,690 | $249,690 |
| 2018 | $194,690 | $55,000 | $0 | $249,690 | $249,690 |
| 2017 | $194,690 | $55,000 | $0 | $249,690 | $249,690 |
| 2016 | $176,990 | $55,000 | $0 | $231,990 | $231,990 |
| 2015 | $160,900 | $55,000 | $0 | $215,900 | $215,900 |
| 2014 | $160,900 | $55,000 | $0 | $215,900 | $215,900 |
| 2013 | $160,900 | $55,000 | $0 | $215,900 | $215,900 |
| 2012 | $172,300 | $55,000 | $0 | $0 | $0 |
| 2011 | $184,300 | $55,000 | $0 | $0 | $0 |
| 2010 | $184,300 | $55,000 | $0 | $0 | $0 |
| 2009 | $196,900 | $55,000 | $0 | $0 | $0 |
| 2008 | $128,400 | $30,000 | $0 | $0 | $0 |
| 2007 | $128,400 | $30,000 | $0 | $0 | $0 |
Deed and Sales History
| 1 | 10/05/2021 | SWD | STATUTORY WARRANTY DEED | BRODHEAD JEFFREY L & LOWANA L | FALL RICHARD | | | $379,000.00 | 142612 | 2021-12127 |
| 2 | 05/07/1991 | WARRANTY D | WARRANTY DEED | | | | | $85,000.00 | 56088 | 1889-102819 |
Payout Agreement
| No payout information available.. |