Property
Account |
| Property ID: | 4684 | Abbreviated Legal Description: | KNAPP ADDN PARCEL 1 BLK 2 |
| Parcel Number: | 350736620201 | Agent Code: | |
| Type: | Real | | |
| Tax Area: | 77 - CP-250-F | Land Use Code | 11 |
| Open Space: | N | DFL | N |
| Historic Property: | N | Remodel Property: | N |
| Multi-Family Redevelopment: | N | | |
| Township: | 7 | Section: | 36 |
| Range: | 35 |
Location |
| Address: | 1426 SE INDEPENDENCE DR WA 99324 | Mapsco: | |
| Neighborhood: | A SFR Rural/City Inf | Map ID: | |
| Neighborhood CD: | 113012 |
Owner |
| Name: | MEZA-DIAZ CARLOS | Owner ID: | 63793 |
| Mailing Address: | AMANDA E CASTILLO 1426 SE INDEPENDENCE DR COLLEGE PLACE, WA 99324 | % Ownership: | 100.0000000000% |
| | | Exemptions: | |
Taxes and Assessment Details
Values
| (+) Improvement Homesite Value: | + | $0 | |
| (+) Improvement Non-Homesite Value: | + | $382,490 | |
| (+) Land Homesite Value: | + | $0 | |
| (+) Land Non-Homesite Value: | + | $70,000 | |
| (+) Curr Use (HS): | + | $0 | $0 |
| (+) Curr Use (NHS): | + | $0 | $0 |
| | | -------------------------- | |
| (=) Market Value: | = | $452,490 | |
| (–) Productivity Loss: | – | $0 | |
| | | -------------------------- | |
| (=) Subtotal: | = | $452,490 | |
| (+) Senior Appraised Value: | + | $0 | |
| (+) Non-Senior Appraised Value: | + | $452,490 | |
| | | -------------------------- | |
| (=) Total Appraised Value: | = | $452,490 | |
| (–) Senior Exemption Loss: | – | $0 | |
| (–) Exemption Loss: | – | $0 | |
| | | -------------------------- | |
| (=) Taxable Value: | = | $452,490 | |
Taxing Jurisdiction
| Owner: | MEZA-DIAZ CARLOS | | |
| % Ownership: | 100.0000000000% | | |
| Total Value: | $452,490 | | |
| Tax Area: | 77 - CP-250-F |
| CERFD | CURRENT EXPENSE REFUND 010 | 0.0000000000 | $452,490 | $452,490 | $0.00 | | |
| CURREXP | CURRENT EXPENSE 010 | 1.0175366760 | $452,490 | $452,490 | $460.43 | | |
| HUMNSERV | HUMAN SERVICES 119 | 0.0250000000 | $452,490 | $452,490 | $11.31 | | |
| SLDREL | SOLDIERS RELIEF 121 | 0.0155990005 | $452,490 | $452,490 | $7.06 | | |
| COLLPLBOND | C OF CP BOND 644 | 0.4374241808 | $452,490 | $452,490 | $197.93 | | |
| COLLPLGEN | CITY OF CP 632 | 1.4453819216 | $452,490 | $452,490 | $654.02 | | |
| EMERGSER | EMS 147 | 0.3792580840 | $452,490 | $452,490 | $171.61 | | |
| EMSRFD | EMS REFUND 147 | 0.0000000000 | $452,490 | $452,490 | $0.00 | | |
| RURALLIB | RURAL LIBRARY 623 | 0.3710609029 | $452,490 | $452,490 | $167.90 | | |
| PORTRFD | PORT REFUND 640 | 0.0000000000 | $452,490 | $452,490 | $0.00 | | |
| PORTWWGEN | PORT OF WW 640 | 0.2460186015 | $452,490 | $452,490 | $111.32 | | |
| SD250BOND | SD #250 BOND 773 | 1.4560608159 | $452,490 | $452,490 | $658.85 | | |
| SD250GEN | SD #250 GENERAL 770 | 2.3880724087 | $452,490 | $452,490 | $1,080.58 | | |
| ST2 | STATE SCHOOL PART 2 600 | 0.8131451643 | $452,490 | $452,490 | $367.94 | | |
| STATESCHL | STATE SCHOOL 600 | 1.5158548041 | $452,490 | $452,490 | $685.91 | | |
| STREFUND | STATE REFUND LEVY 603 | 0.0000000000 | $452,490 | $452,490 | $0.00 | | |
| | Total Tax Rate: | 10.1104125603 | | | | | |
| | | | | Taxes w/Current Exemptions: | $4,574.86 | | |
| | | | | Taxes w/o Exemptions: | $4,574.86 | | |
Improvement / Building
| Improvement #1: | RESIDENTIAL | State Code: | 11 | 2064.0 sqft | Value: | $382,490 |
| Exterior Wall: | HARDBOARD | Foundation: | SLAB FOUNDATION | | Heating/Cooling: | WARM & COOLED AIR | Number of Bathrooms: | 3 | | Number of Bedrooms: | 4 | Plumbing: | 12 | | Roof Covering: | COMP SHINGLE |   |   |
|
| | Type | Description | Class CD | Sub Class CD | Year Built | Area |
| | MA | Main Area | 3 | 30 | 1978 | 2064.0 |
| | SI1 | SITE IMPROVEMENT | 3 | 30 | 1978 | 2.0 |
| | UPFL | Upper Floor (included in main area) | 3 | 30 | 1978 | 720.0 |
| | ATG | Attached Garage | 3 | 30 | 1978 | 528.0 |
| | S1F | Single One Story Fireplace | 3 | 30 | 1978 | 1.0 |
| | CPC | COVERED CARPORT/PATIO | 3 | 30 | 1978 | 400.0 |
| | SWP | Solid Wall Porch | 3 | 30 | 1978 | 100.0 |
| | OPS | OPEN PORCH W/STEPS | 3 | 30 | 1978 | 30.0 |
| | UTST | Utility Storage Shed | 3 | 30 | 1978 | 192.0 |
| | SOLR | SOLAR POWER PANELS | 3 | 30 | 2022 | 16.0 |
Sketch
Property Image
Land
| 1 | RES 1 | Converted: Residential | 0.3000 | 13068.00 | 0.00 | 0.00 | 1.00 | $70,000 | $0 |
Roll Value History
| 2026 | N/A | N/A | N/A | N/A | N/A |
| 2025 | $305,990 | $130,000 | $0 | $435,990 | $435,990 |
| 2024 | $382,490 | $70,000 | $0 | $452,490 | $452,490 |
| 2023 | $382,490 | $70,000 | $0 | $452,490 | $452,490 |
| 2022 | $332,600 | $70,000 | $0 | $402,600 | $402,600 |
| 2021 | $277,170 | $70,000 | $0 | $347,170 | $347,170 |
| 2020 | $191,150 | $70,000 | $0 | $261,150 | $261,150 |
| 2019 | $206,150 | $55,000 | $0 | $261,150 | $261,150 |
| 2018 | $152,700 | $55,000 | $0 | $207,700 | $207,700 |
| 2017 | $152,700 | $55,000 | $0 | $207,700 | $207,700 |
| 2016 | $152,700 | $55,000 | $0 | $207,700 | $207,700 |
| 2015 | $152,700 | $55,000 | $0 | $207,700 | $207,700 |
| 2014 | $152,700 | $55,000 | $0 | $207,700 | $207,700 |
| 2013 | $152,700 | $55,000 | $0 | $207,700 | $207,700 |
| 2012 | $152,700 | $55,000 | $0 | $0 | $0 |
| 2011 | $152,700 | $55,000 | $0 | $0 | $0 |
| 2010 | $152,700 | $55,000 | $0 | $0 | $0 |
| 2009 | $163,600 | $55,000 | $0 | $0 | $0 |
| 2008 | $130,100 | $30,000 | $0 | $0 | $0 |
| 2007 | $130,100 | $30,000 | $0 | $0 | $0 |
Deed and Sales History
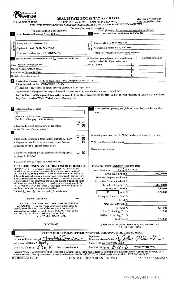
| 1 | 08/21/2018 | SWD | STATUTORY WARRANTY DEED | BEAM JEREMY V & ANGELA R | MEZA-DIAZ CARLOS | | | $300,000.00 | 135378 | 2018-06895 |
| 2 | 10/09/2009 | WARRANTY D | WARRANTY DEED | HAFEN, BRAD A & DEIRDRE E | BEAM, JEREMY V & ANGELA R | | | $215,900.00 | 117465 | 2009-10073 |
| 3 | 05/01/2002 | WARRANTY D | WARRANTY DEED | | | | | $142,000.00 | 99634 | 2002-0006400 |
Payout Agreement
| No payout information available.. |