Property
Account |
| Property ID: | 4678 | Abbreviated Legal Description: | KNAPP ADDN PARCEL 32 BLK 1 |
| Parcel Number: | 350736620132 | Agent Code: | |
| Type: | Real | | |
| Tax Area: | 77 - CP-250-F | Land Use Code | 11 |
| Open Space: | N | DFL | N |
| Historic Property: | N | Remodel Property: | N |
| Multi-Family Redevelopment: | N | | |
| Township: | 7 | Section: | 36 |
| Range: | 35 |
Location |
| Address: | 1279 SE INDEPENDENCE DR WA 99324 | Mapsco: | |
| Neighborhood: | A SFR Rural/City Inf | Map ID: | |
| Neighborhood CD: | 113012 |
Owner |
| Name: | MOLINA VANESSA | Owner ID: | 56396 |
| Mailing Address: | 708 N ELIZABETH ST MILTON FREEWATER, OR 97862 | % Ownership: | 100.0000000000% |
| | | Exemptions: | |
Taxes and Assessment Details
Values
| (+) Improvement Homesite Value: | + | $0 | |
| (+) Improvement Non-Homesite Value: | + | $478,040 | |
| (+) Land Homesite Value: | + | $0 | |
| (+) Land Non-Homesite Value: | + | $70,000 | |
| (+) Curr Use (HS): | + | $0 | $0 |
| (+) Curr Use (NHS): | + | $0 | $0 |
| | | -------------------------- | |
| (=) Market Value: | = | $548,040 | |
| (–) Productivity Loss: | – | $0 | |
| | | -------------------------- | |
| (=) Subtotal: | = | $548,040 | |
| (+) Senior Appraised Value: | + | $0 | |
| (+) Non-Senior Appraised Value: | + | $548,040 | |
| | | -------------------------- | |
| (=) Total Appraised Value: | = | $548,040 | |
| (–) Senior Exemption Loss: | – | $0 | |
| (–) Exemption Loss: | – | $0 | |
| | | -------------------------- | |
| (=) Taxable Value: | = | $548,040 | |
Taxing Jurisdiction
| Owner: | MOLINA VANESSA | | |
| % Ownership: | 100.0000000000% | | |
| Total Value: | $548,040 | | |
| Tax Area: | 77 - CP-250-F |
| CERFD | CURRENT EXPENSE REFUND 010 | 0.0000000000 | $548,040 | $548,040 | $0.00 | | |
| CURREXP | CURRENT EXPENSE 010 | 1.0175366760 | $548,040 | $548,040 | $557.65 | | |
| HUMNSERV | HUMAN SERVICES 119 | 0.0250000000 | $548,040 | $548,040 | $13.70 | | |
| SLDREL | SOLDIERS RELIEF 121 | 0.0155990005 | $548,040 | $548,040 | $8.55 | | |
| COLLPLBOND | C OF CP BOND 644 | 0.4374241808 | $548,040 | $548,040 | $239.73 | | |
| COLLPLGEN | CITY OF CP 632 | 1.4453819216 | $548,040 | $548,040 | $792.13 | | |
| EMERGSER | EMS 147 | 0.3792580840 | $548,040 | $548,040 | $207.85 | | |
| EMSRFD | EMS REFUND 147 | 0.0000000000 | $548,040 | $548,040 | $0.00 | | |
| RURALLIB | RURAL LIBRARY 623 | 0.3710609029 | $548,040 | $548,040 | $203.36 | | |
| PORTRFD | PORT REFUND 640 | 0.0000000000 | $548,040 | $548,040 | $0.00 | | |
| PORTWWGEN | PORT OF WW 640 | 0.2460186015 | $548,040 | $548,040 | $134.83 | | |
| SD250BOND | SD #250 BOND 773 | 1.4560608159 | $548,040 | $548,040 | $797.98 | | |
| SD250GEN | SD #250 GENERAL 770 | 2.3880724087 | $548,040 | $548,040 | $1,308.76 | | |
| ST2 | STATE SCHOOL PART 2 600 | 0.8131451643 | $548,040 | $548,040 | $445.64 | | |
| STATESCHL | STATE SCHOOL 600 | 1.5158548041 | $548,040 | $548,040 | $830.75 | | |
| STREFUND | STATE REFUND LEVY 603 | 0.0000000000 | $548,040 | $548,040 | $0.00 | | |
| | Total Tax Rate: | 10.1104125603 | | | | | |
| | | | | Taxes w/Current Exemptions: | $5,540.93 | | |
| | | | | Taxes w/o Exemptions: | $5,540.93 | | |
Improvement / Building
| Improvement #1: | RESIDENTIAL | State Code: | 11 | 2264.0 sqft | Value: | $478,040 |
| Exterior Wall: | SIDING | Heating/Cooling: | WARM & COOLED AIR | | Number of Bathrooms: | 2.5 | Number of Bedrooms: | 3 | | Plumbing: | 13 | Roof Covering: | COMP SHINGLE |
|
| | Type | Description | Class CD | Sub Class CD | Year Built | Area |
| | MA | Main Area | 2 | 35 | 2015 | 2264.0 |
| | UPFL | Upper Floor (included in main area) | 2 | 35 | 2015 | 1256.0 |
| | BIG | Built In Garage | 2 | 35 | 2015 | 400.0 |
| | RPC | OPEN PORCH W/ROOF , CEILED | 2 | 35 | 2015 | 216.0 |
| | SI1 | SITE IMPROVEMENT | 2 | 35 | 2015 | 2.0 |
Sketch
Property Image
Land
| 1 | RES 1 | Converted: Residential | 0.1722 | 7500.00 | 0.00 | 0.00 | 1.00 | $70,000 | $0 |
Roll Value History
| 2026 | N/A | N/A | N/A | N/A | N/A |
| 2025 | $382,430 | $130,000 | $0 | $512,430 | $512,430 |
| 2024 | $478,040 | $70,000 | $0 | $548,040 | $548,040 |
| 2023 | $478,040 | $70,000 | $0 | $548,040 | $548,040 |
| 2022 | $415,690 | $70,000 | $0 | $485,690 | $485,690 |
| 2021 | $346,410 | $70,000 | $0 | $416,410 | $416,410 |
| 2020 | $238,900 | $70,000 | $0 | $308,900 | $308,900 |
| 2019 | $253,900 | $55,000 | $0 | $308,900 | $308,900 |
| 2018 | $253,900 | $55,000 | $0 | $308,900 | $308,900 |
| 2017 | $253,900 | $55,000 | $0 | $308,900 | $308,900 |
| 2016 | $193,540 | $55,000 | $0 | $248,540 | $248,540 |
| 2015 | $98,220 | $55,000 | $0 | $153,220 | $153,220 |
| 2014 | $0 | $55,000 | $0 | $55,000 | $55,000 |
| 2013 | $0 | $55,000 | $0 | $55,000 | $55,000 |
| 2012 | $0 | $55,000 | $0 | $0 | $0 |
| 2011 | $0 | $55,000 | $0 | $0 | $0 |
| 2010 | $0 | $55,000 | $0 | $0 | $0 |
| 2009 | $0 | $55,000 | $0 | $0 | $0 |
| 2008 | $0 | $30,000 | $0 | $0 | $0 |
| 2007 | $0 | $30,000 | $0 | $0 | $0 |
Deed and Sales History
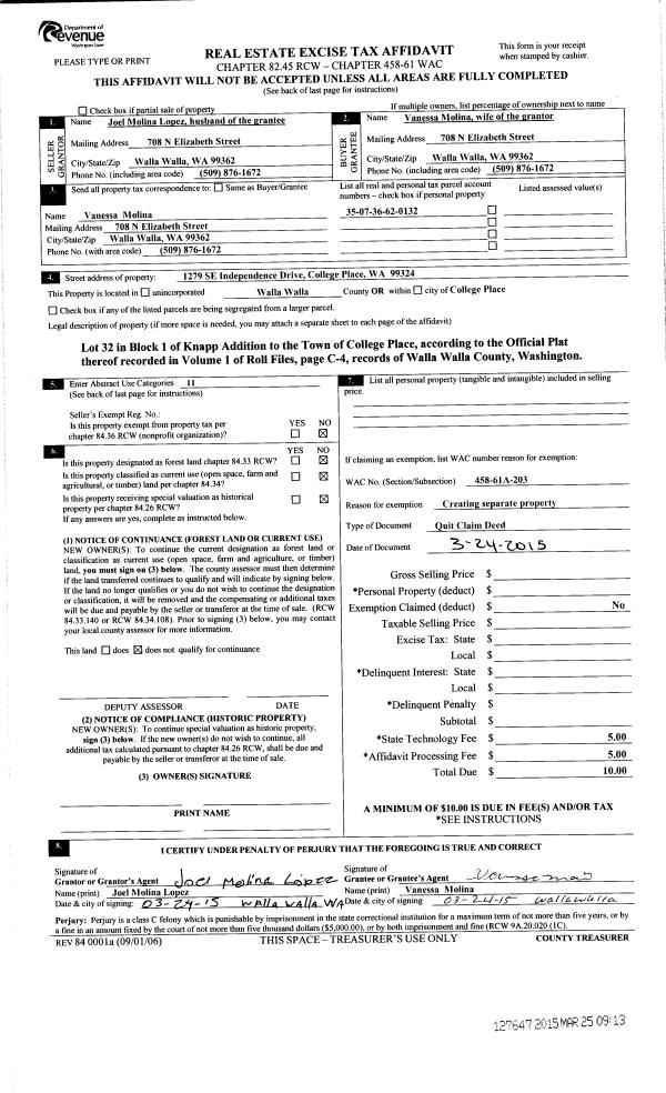
| 1 | 03/25/2015 | QCD | QUIT CLAIM DEED | LOPEZ JOEL MOLINA | MOLINA VANESSA | | | | 127647 | 2015-02414 |
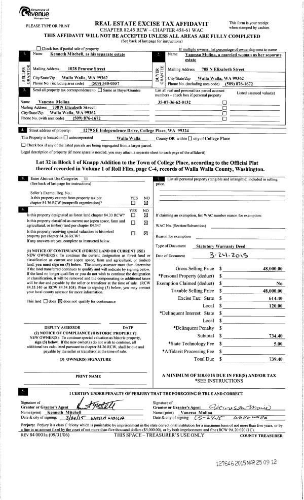
| 2 | 03/25/2015 | SWD | STATUTORY WARRANTY DEED | MITCHELL KENNETH | MOLINA VANESSA | | | $48,000.00 | 127646 | 2015-02415 |
| 3 | 06/10/1999 | WARRANTY D | WARRANTY DEED | | | | | $17,000.00 | 92920 | 2859-906948 |
Payout Agreement
| No payout information available.. |