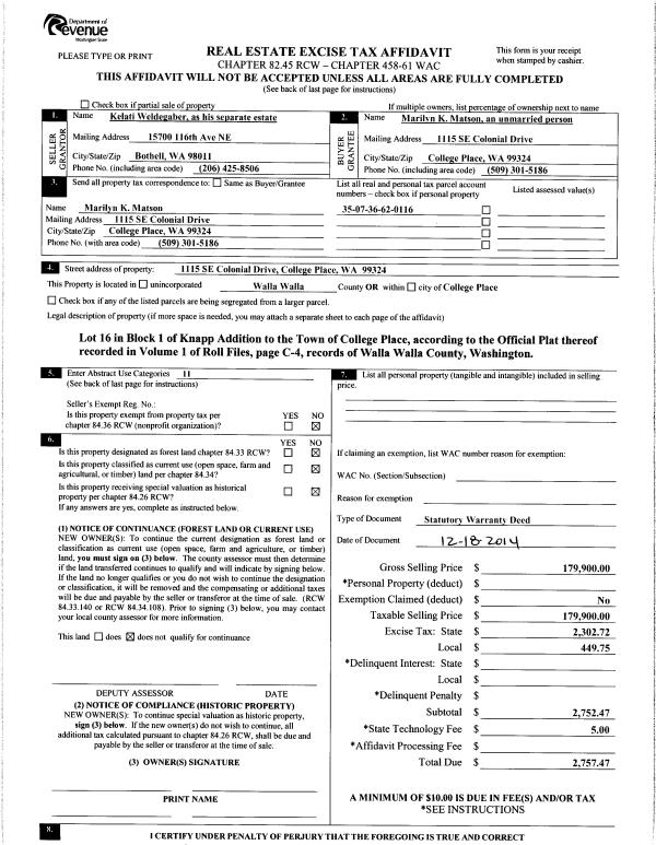
Property
Account |
| Property ID: | 4669 | Abbreviated Legal Description: | KNAPP ADDN PARCEL 16 BLK 1 |
| Parcel Number: | 350736620116 | Agent Code: | |
| Type: | Real | | |
| Tax Area: | 77 - CP-250-F | Land Use Code | 11 |
| Open Space: | N | DFL | N |
| Historic Property: | N | Remodel Property: | N |
| Multi-Family Redevelopment: | N | | |
| Township: | 7 | Section: | 36 |
| Range: | 35 |
Location |
| Address: | 1115 SE COLONIAL DR WA 99324 | Mapsco: | |
| Neighborhood: | A SFR Rural/City Inf | Map ID: | |
| Neighborhood CD: | 113012 |
Owner |
| Name: | MATSON MARILYN K | Owner ID: | 56011 |
| Mailing Address: | 1115 SE COLONIAL DR COLLEGE PLACE, WA 99324 | % Ownership: | 100.0000000000% |
| | | Exemptions: | |
Taxes and Assessment Details
Values
| (+) Improvement Homesite Value: | + | $0 | |
| (+) Improvement Non-Homesite Value: | + | $280,270 | |
| (+) Land Homesite Value: | + | $0 | |
| (+) Land Non-Homesite Value: | + | $70,000 | |
| (+) Curr Use (HS): | + | $0 | $0 |
| (+) Curr Use (NHS): | + | $0 | $0 |
| | | -------------------------- | |
| (=) Market Value: | = | $350,270 | |
| (–) Productivity Loss: | – | $0 | |
| | | -------------------------- | |
| (=) Subtotal: | = | $350,270 | |
| (+) Senior Appraised Value: | + | $0 | |
| (+) Non-Senior Appraised Value: | + | $350,270 | |
| | | -------------------------- | |
| (=) Total Appraised Value: | = | $350,270 | |
| (–) Senior Exemption Loss: | – | $0 | |
| (–) Exemption Loss: | – | $0 | |
| | | -------------------------- | |
| (=) Taxable Value: | = | $350,270 | |
Taxing Jurisdiction
| Owner: | MATSON MARILYN K | | |
| % Ownership: | 100.0000000000% | | |
| Total Value: | $350,270 | | |
| Tax Area: | 77 - CP-250-F |
| CERFD | CURRENT EXPENSE REFUND 010 | 0.0000000000 | $350,270 | $350,270 | $0.00 | | |
| CURREXP | CURRENT EXPENSE 010 | 1.0175366760 | $350,270 | $350,270 | $356.41 | | |
| HUMNSERV | HUMAN SERVICES 119 | 0.0250000000 | $350,270 | $350,270 | $8.76 | | |
| SLDREL | SOLDIERS RELIEF 121 | 0.0155990005 | $350,270 | $350,270 | $5.46 | | |
| COLLPLBOND | C OF CP BOND 644 | 0.4374241808 | $350,270 | $350,270 | $153.22 | | |
| COLLPLGEN | CITY OF CP 632 | 1.4453819216 | $350,270 | $350,270 | $506.27 | | |
| EMERGSER | EMS 147 | 0.3792580840 | $350,270 | $350,270 | $132.84 | | |
| EMSRFD | EMS REFUND 147 | 0.0000000000 | $350,270 | $350,270 | $0.00 | | |
| RURALLIB | RURAL LIBRARY 623 | 0.3710609029 | $350,270 | $350,270 | $129.97 | | |
| PORTRFD | PORT REFUND 640 | 0.0000000000 | $350,270 | $350,270 | $0.00 | | |
| PORTWWGEN | PORT OF WW 640 | 0.2460186015 | $350,270 | $350,270 | $86.17 | | |
| SD250BOND | SD #250 BOND 773 | 1.4560608159 | $350,270 | $350,270 | $510.01 | | |
| SD250GEN | SD #250 GENERAL 770 | 2.3880724087 | $350,270 | $350,270 | $836.47 | | |
| ST2 | STATE SCHOOL PART 2 600 | 0.8131451643 | $350,270 | $350,270 | $284.82 | | |
| STATESCHL | STATE SCHOOL 600 | 1.5158548041 | $350,270 | $350,270 | $530.96 | | |
| STREFUND | STATE REFUND LEVY 603 | 0.0000000000 | $350,270 | $350,270 | $0.00 | | |
| | Total Tax Rate: | 10.1104125603 | | | | | |
| | | | | Taxes w/Current Exemptions: | $3,541.36 | | |
| | | | | Taxes w/o Exemptions: | $3,541.36 | | |
Improvement / Building
| Improvement #1: | RESIDENTIAL | State Code: | 11 | 996.0 sqft | Value: | $280,270 |
| Exterior Wall: | PLYWOOD | Heating/Cooling: | WARM & COOLED AIR | | Number of Bathrooms: | 2 | Number of Bedrooms: | 4 | | Plumbing: | 9 | Roof Covering: | COMP SHINGLE |
|
| | Type | Description | Class CD | Sub Class CD | Year Built | Area |
| | MA | Main Area | 11 | 30 | 1978 | 996.0 |
| | SI1 | SITE IMPROVEMENT | 11 | 30 | 1978 | 2.0 |
| | BASE | BASEMENT | 11 | 30 | 1978 | 936.0 |
| | BPF | BASEMENT -PARTITIONED FINISH | 11 | 30 | 1978 | 936.0 |
| | ATG | Attached Garage | 11 | 30 | 1978 | 440.0 |
| | WOD | Wood Deck | 11 | 30 | 1978 | 192.0 |
| | OPS | OPEN PORCH W/STEPS | 11 | 30 | 1978 | 42.0 |
| | BNV | BUILDING NO VALUE | 11 | 30 | 1978 | 72.0 |
Sketch
Property Image
Land
| 1 | RES 1 | Converted: Residential | 0.2000 | 8712.00 | 0.00 | 0.00 | 1.00 | $70,000 | $0 |
Roll Value History
| 2026 | N/A | N/A | N/A | N/A | N/A |
| 2025 | $280,270 | $130,000 | $0 | $410,270 | $410,270 |
| 2024 | $280,270 | $70,000 | $0 | $350,270 | $350,270 |
| 2023 | $280,270 | $70,000 | $0 | $350,270 | $350,270 |
| 2022 | $266,920 | $70,000 | $0 | $336,920 | $336,920 |
| 2021 | $242,660 | $70,000 | $0 | $312,660 | $312,660 |
| 2020 | $167,350 | $70,000 | $0 | $237,350 | $237,350 |
| 2019 | $182,350 | $55,000 | $0 | $237,350 | $237,350 |
| 2018 | $173,660 | $55,000 | $0 | $228,660 | $228,660 |
| 2017 | $144,720 | $55,000 | $0 | $199,720 | $199,720 |
| 2016 | $120,600 | $55,000 | $0 | $175,600 | $175,600 |
| 2015 | $120,600 | $55,000 | $0 | $175,600 | $175,600 |
| 2014 | $120,600 | $55,000 | $0 | $175,600 | $175,600 |
| 2013 | $120,600 | $55,000 | $0 | $175,600 | $175,600 |
| 2012 | $120,600 | $55,000 | $0 | $0 | $0 |
| 2011 | $140,100 | $55,000 | $0 | $0 | $0 |
| 2010 | $140,100 | $55,000 | $0 | $0 | $0 |
| 2009 | $150,400 | $55,000 | $0 | $0 | $0 |
| 2008 | $103,400 | $30,000 | $0 | $0 | $0 |
| 2007 | $103,400 | $30,000 | $0 | $0 | $0 |
Deed and Sales History
| 1 | 01/09/2015 | SWD | STATUTORY WARRANTY DEED | WELDEGABER KELATI | MATSON MARILYN K | | | $179,900.00 | 127253 | 2015-00245 |
| 2 | 03/09/1987 | WARRANTY D | WARRANTY DEED | | | | | $57,000.00 | 0 | 1628-701799 |
Payout Agreement
| No payout information available.. |