Property
Account |
| Property ID: | 4639 | Abbreviated Legal Description: | CP #2 REPLAT OF BLK 13 LOT 14 |
| Parcel Number: | 350736601314 | Agent Code: | |
| Type: | Real | | |
| Tax Area: | 75 - CP 250 | Land Use Code | 11 |
| Open Space: | N | DFL | N |
| Historic Property: | N | Remodel Property: | N |
| Multi-Family Redevelopment: | N | | |
| Township: | 7 | Section: | 36 |
| Range: | 35 |
Location |
| Address: | 1114 SE BIRCH AVE WA 99324 | Mapsco: | |
| Neighborhood: | A SFR | Map ID: | |
| Neighborhood CD: | 113011 |
Owner |
| Name: | PATINO MARGARITA | Owner ID: | 67850 |
| Mailing Address: | GUADALUPE PATINO 1114 SE BIRCH AVE COLLEGE PLACE, WA 99324 | % Ownership: | 100.0000000000% |
| | | Exemptions: | |
Taxes and Assessment Details
Property Tax Information as of
02/21/2026
Click on "Statement Details" to expand or collapse a tax statement.
* Please enter a valid date ** Please enter a valid date *
Statement Details |
| | TOTAL: | $0.00 | $0.00 | $0.00 | $0.00 | $0.00 | $0.00 |
|
| | $0.00 | $0.00 | $0.00 | $0.00 | $0.00 | $0.00 |
Values
| (+) Improvement Homesite Value: | + | $235,750 | |
| (+) Improvement Non-Homesite Value: | + | $0 | |
| (+) Land Homesite Value: | + | $40,370 | |
| (+) Land Non-Homesite Value: | + | $0 | |
| (+) Curr Use (HS): | + | $0 | $0 |
| (+) Curr Use (NHS): | + | $0 | $0 |
| | | -------------------------- | |
| (=) Market Value: | = | $276,120 | |
| (–) Productivity Loss: | – | $0 | |
| | | -------------------------- | |
| (=) Subtotal: | = | $276,120 | |
| (+) Senior Appraised Value: | + | $0 | |
| (+) Non-Senior Appraised Value: | + | $276,120 | |
| | | -------------------------- | |
| (=) Total Appraised Value: | = | $276,120 | |
| (–) Senior Exemption Loss: | – | $0 | |
| (–) Exemption Loss: | – | $0 | |
| | | -------------------------- | |
| (=) Taxable Value: | = | $276,120 | |
Taxing Jurisdiction
| Owner: | PATINO MARGARITA | | |
| % Ownership: | 100.0000000000% | | |
| Total Value: | $276,120 | | |
| Tax Area: | 75 - CP 250 |
| CERFD | CURRENT EXPENSE REFUND 010 | 0.0000000000 | $276,120 | $276,120 | $0.00 | | |
| CURREXP | CURRENT EXPENSE 010 | 1.0175366760 | $276,120 | $276,120 | $280.96 | | |
| HUMNSERV | HUMAN SERVICES 119 | 0.0250000000 | $276,120 | $276,120 | $6.90 | | |
| SLDREL | SOLDIERS RELIEF 121 | 0.0155990005 | $276,120 | $276,120 | $4.31 | | |
| COLLPLBOND | C OF CP BOND 644 | 0.4374241808 | $276,120 | $276,120 | $120.78 | | |
| COLLPLGEN | CITY OF CP 632 | 1.4453819216 | $276,120 | $276,120 | $399.10 | | |
| EMERGSER | EMS 147 | 0.3792580840 | $276,120 | $276,120 | $104.72 | | |
| EMSRFD | EMS REFUND 147 | 0.0000000000 | $276,120 | $276,120 | $0.00 | | |
| RURALLIB | RURAL LIBRARY 623 | 0.3710609029 | $276,120 | $276,120 | $102.46 | | |
| PORTRFD | PORT REFUND 640 | 0.0000000000 | $276,120 | $276,120 | $0.00 | | |
| PORTWWGEN | PORT OF WW 640 | 0.2460186015 | $276,120 | $276,120 | $67.93 | | |
| SD250BOND | SD #250 BOND 773 | 1.4560608159 | $276,120 | $276,120 | $402.05 | | |
| SD250GEN | SD #250 GENERAL 770 | 2.3880724087 | $276,120 | $276,120 | $659.39 | | |
| ST2 | STATE SCHOOL PART 2 600 | 0.8131451643 | $276,120 | $276,120 | $224.53 | | |
| STATESCHL | STATE SCHOOL 600 | 1.5158548041 | $276,120 | $276,120 | $418.56 | | |
| STREFUND | STATE REFUND LEVY 603 | 0.0000000000 | $276,120 | $276,120 | $0.00 | | |
| | Total Tax Rate: | 10.1104125603 | | | | | |
| | | | | Taxes w/Current Exemptions: | $2,791.69 | | |
| | | | | Taxes w/o Exemptions: | $2,791.69 | | |
Improvement / Building
| Improvement #1: | RESIDENTIAL | State Code: | 11 | 1150.0 sqft | Value: | $235,750 |
| Exterior Wall: | VINYL | Heating/Cooling: | FLOOR FURNACE | | Number of Bathrooms: | 1 | Number of Bedrooms: | 2 | | Plumbing: | 6 | Roof Covering: | COMP SHINGLE |
|
| | Type | Description | Class CD | Sub Class CD | Year Built | Area |
| | MA | Main Area | 1 | 30 | 1949 | 1150.0 |
| | SI1 | SITE IMPROVEMENT | 1 | 30 | 1949 | 1.0 |
| | BASE | BASEMENT | 1 | 30 | 1949 | 168.0 |
| | ATG | Attached Garage | 1 | 30 | 1949 | 252.0 |
| | RPS | PORCH W/STEPS,ROOF | 1 | 30 | 1949 | 66.0 |
| | S1F | Single One Story Fireplace | 1 | 30 | 1949 | 1.0 |
| | OPS | OPEN PORCH W/STEPS | 1 | 30 | 1949 | 130.0 |
Sketch
Property Image
Land
| 1 | RES 1 | Converted: Residential | 0.1373 | 5980.00 | 0.00 | 0.00 | 1.00 | $40,370 | $0 |
Roll Value History
| 2026 | N/A | N/A | N/A | N/A | N/A |
| 2025 | $222,790 | $59,800 | $0 | $282,590 | $282,590 |
| 2024 | $247,540 | $40,370 | $0 | $287,910 | $287,910 |
| 2023 | $235,750 | $40,370 | $0 | $276,120 | $276,120 |
| 2022 | $188,600 | $40,370 | $0 | $228,970 | $228,970 |
| 2021 | $171,460 | $40,370 | $0 | $211,830 | $211,830 |
| 2020 | $155,870 | $40,370 | $0 | $196,240 | $196,240 |
| 2019 | $160,340 | $35,900 | $0 | $196,240 | $120,400 |
| 2018 | $128,270 | $35,900 | $0 | $164,170 | $120,400 |
| 2017 | $106,890 | $35,900 | $0 | $142,790 | $120,400 |
| 2016 | $92,950 | $35,900 | $0 | $128,850 | $120,400 |
| 2015 | $84,500 | $35,900 | $0 | $120,400 | $120,400 |
| 2014 | $84,500 | $35,900 | $0 | $120,400 | $120,400 |
| 2013 | $84,500 | $35,900 | $0 | $120,400 | $120,400 |
| 2012 | $84,500 | $35,900 | $0 | $0 | $0 |
| 2011 | $84,500 | $35,900 | $0 | $0 | $0 |
| 2010 | $78,800 | $35,900 | $0 | $0 | $0 |
| 2009 | $91,500 | $35,900 | $0 | $0 | $0 |
| 2008 | $75,900 | $17,900 | $0 | $0 | $0 |
| 2007 | $75,900 | $17,900 | $0 | $0 | $0 |
Deed and Sales History
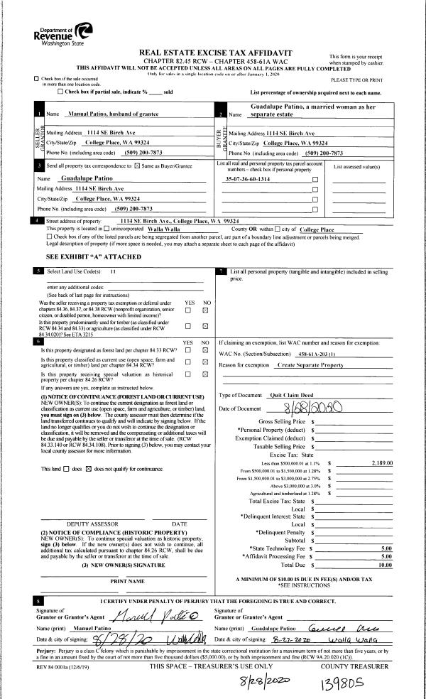
| 1 | 08/28/2020 | QCD | QUIT CLAIM DEED | PATINO MANUEL | PATINO MARGARITA | | | | 139805 | 2020-08699 |
| 2 | 08/28/2020 | SWD | STATUTORY WARRANTY DEED | GUNDERSON CAROL & RITA | PATINO MARGARITA | | | $199,000.00 | 139803 | 2020-08697 |
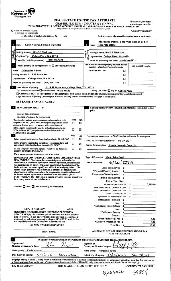
| 3 | 08/28/2020 | QCD | QUIT CLAIM DEED | NATERAS KEVIN | PATINO MARGARITA | | | | 139804 | 2020-08698 |
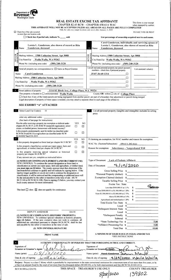
| 4 | 08/28/2020 | LOPA | LACK OF PROBATE AFFIDAVIT | GUNDERSON CAROL & RITA | GUNDERSON CAROL | | | | 139802 | 2020-08696 |
| 5 | 04/16/1993 | WARRANTY D | WARRANTY DEED | | | | | $57,000.00 | 78941 | 2059-303755 |
Payout Agreement
| No payout information available.. |