Property
Account |
| Property ID: | 4637 | Abbreviated Legal Description: | CP #2 REPLAT OF BLK 13 LOT 7 |
| Parcel Number: | 350736601307 | Agent Code: | |
| Type: | Real | | |
| Tax Area: | 75 - CP 250 | Land Use Code | 11 |
| Open Space: | N | DFL | N |
| Historic Property: | N | Remodel Property: | N |
| Multi-Family Redevelopment: | N | | |
| Township: | 7 | Section: | 36 |
| Range: | 35 |
Location |
| Address: | 1031 SE BROADWAY AVE WA 99324 | Mapsco: | |
| Neighborhood: | A SFR | Map ID: | |
| Neighborhood CD: | 113011 |
Owner |
| Name: | FLORES JOSE LUIS SOLIS | Owner ID: | 73519 |
| Mailing Address: | 1031 SE BROADWAY AVE COLLEGE PLACE, WA 99324 | % Ownership: | 100.0000000000% |
| | | Exemptions: | |
Taxes and Assessment Details
Property Tax Information as of
02/21/2026
Click on "Statement Details" to expand or collapse a tax statement.
* Please enter a valid date ** Please enter a valid date *
Statement Details |
| | TOTAL: | $0.00 | $0.00 | $0.00 | $0.00 | $0.00 | $0.00 |
|
| | $0.00 | $0.00 | $0.00 | $0.00 | $0.00 | $0.00 |
Values
| (+) Improvement Homesite Value: | + | $0 | |
| (+) Improvement Non-Homesite Value: | + | $171,660 | |
| (+) Land Homesite Value: | + | $0 | |
| (+) Land Non-Homesite Value: | + | $40,500 | |
| (+) Curr Use (HS): | + | $0 | $0 |
| (+) Curr Use (NHS): | + | $0 | $0 |
| | | -------------------------- | |
| (=) Market Value: | = | $212,160 | |
| (–) Productivity Loss: | – | $0 | |
| | | -------------------------- | |
| (=) Subtotal: | = | $212,160 | |
| (+) Senior Appraised Value: | + | $0 | |
| (+) Non-Senior Appraised Value: | + | $212,160 | |
| | | -------------------------- | |
| (=) Total Appraised Value: | = | $212,160 | |
| (–) Senior Exemption Loss: | – | $0 | |
| (–) Exemption Loss: | – | $0 | |
| | | -------------------------- | |
| (=) Taxable Value: | = | $212,160 | |
Taxing Jurisdiction
| Owner: | FLORES JOSE LUIS SOLIS | | |
| % Ownership: | 100.0000000000% | | |
| Total Value: | $212,160 | | |
| Tax Area: | 75 - CP 250 |
| CERFD | CURRENT EXPENSE REFUND 010 | 0.0000000000 | $212,160 | $212,160 | $0.00 | | |
| CURREXP | CURRENT EXPENSE 010 | 1.0175366760 | $212,160 | $212,160 | $215.88 | | |
| HUMNSERV | HUMAN SERVICES 119 | 0.0250000000 | $212,160 | $212,160 | $5.30 | | |
| SLDREL | SOLDIERS RELIEF 121 | 0.0155990005 | $212,160 | $212,160 | $3.31 | | |
| COLLPLBOND | C OF CP BOND 644 | 0.4374241808 | $212,160 | $212,160 | $92.80 | | |
| COLLPLGEN | CITY OF CP 632 | 1.4453819216 | $212,160 | $212,160 | $306.65 | | |
| EMERGSER | EMS 147 | 0.3792580840 | $212,160 | $212,160 | $80.46 | | |
| EMSRFD | EMS REFUND 147 | 0.0000000000 | $212,160 | $212,160 | $0.00 | | |
| RURALLIB | RURAL LIBRARY 623 | 0.3710609029 | $212,160 | $212,160 | $78.72 | | |
| PORTRFD | PORT REFUND 640 | 0.0000000000 | $212,160 | $212,160 | $0.00 | | |
| PORTWWGEN | PORT OF WW 640 | 0.2460186015 | $212,160 | $212,160 | $52.20 | | |
| SD250BOND | SD #250 BOND 773 | 1.4560608159 | $212,160 | $212,160 | $308.92 | | |
| SD250GEN | SD #250 GENERAL 770 | 2.3880724087 | $212,160 | $212,160 | $506.65 | | |
| ST2 | STATE SCHOOL PART 2 600 | 0.8131451643 | $212,160 | $212,160 | $172.52 | | |
| STATESCHL | STATE SCHOOL 600 | 1.5158548041 | $212,160 | $212,160 | $321.60 | | |
| STREFUND | STATE REFUND LEVY 603 | 0.0000000000 | $212,160 | $212,160 | $0.00 | | |
| | Total Tax Rate: | 10.1104125603 | | | | | |
| | | | | Taxes w/Current Exemptions: | $2,145.01 | | |
| | | | | Taxes w/o Exemptions: | $2,145.01 | | |
Improvement / Building
| Improvement #1: | RESIDENTIAL | State Code: | 11 | 1040.0 sqft | Value: | $171,660 |
| Exterior Wall: | SIDING | Foundation: | SLAB FOUNDATION | | Heating/Cooling: | BASEBOARD ELECTRIC | Number of Bathrooms: | 1 | | Number of Bedrooms: | 3 | Plumbing: | 6 | | Roof Covering: | METAL ROOFING |   |   |
|
| | Type | Description | Class CD | Sub Class CD | Year Built | Area |
| | MA | Main Area | 1 | 20 | 1960 | 1040.0 |
| | SI1 | SITE IMPROVEMENT | 1 | 20 | 1960 | 1.0 |
| | CPCS | CARPORT/SHED OR FLAT ROOF | 1 | 20 | 1960 | 220.0 |
| | UTST | Utility Storage Shed | 1 | 20 | 1960 | 105.0 |
Sketch
Property Image
Land
| 1 | RES 1 | Converted: Residential | 0.1377 | 6000.00 | 0.00 | 0.00 | 1.00 | $40,500 | $0 |
Roll Value History
| 2026 | N/A | N/A | N/A | N/A | N/A |
| 2025 | $137,320 | $60,000 | $0 | $197,320 | $197,320 |
| 2024 | $171,660 | $40,500 | $0 | $212,160 | $212,160 |
| 2023 | $171,660 | $40,500 | $0 | $212,160 | $212,160 |
| 2022 | $171,660 | $40,500 | $0 | $212,160 | $212,160 |
| 2021 | $143,050 | $40,500 | $0 | $183,550 | $183,550 |
| 2020 | $79,470 | $40,500 | $0 | $119,970 | $119,970 |
| 2019 | $83,970 | $36,000 | $0 | $119,970 | $119,970 |
| 2018 | $76,340 | $36,000 | $0 | $112,340 | $112,340 |
| 2017 | $72,700 | $36,000 | $0 | $108,700 | $108,700 |
| 2016 | $72,700 | $36,000 | $0 | $108,700 | $108,700 |
| 2015 | $72,700 | $36,000 | $0 | $108,700 | $108,700 |
| 2014 | $72,700 | $36,000 | $0 | $108,700 | $108,700 |
| 2013 | $72,700 | $36,000 | $0 | $108,700 | $108,700 |
| 2012 | $72,700 | $36,000 | $0 | $0 | $0 |
| 2011 | $72,700 | $36,000 | $0 | $0 | $0 |
| 2010 | $62,800 | $36,000 | $0 | $0 | $0 |
| 2009 | $73,800 | $36,000 | $0 | $0 | $0 |
| 2008 | $48,900 | $18,000 | $0 | $0 | $0 |
| 2007 | $48,900 | $18,000 | $0 | $0 | $0 |
Deed and Sales History
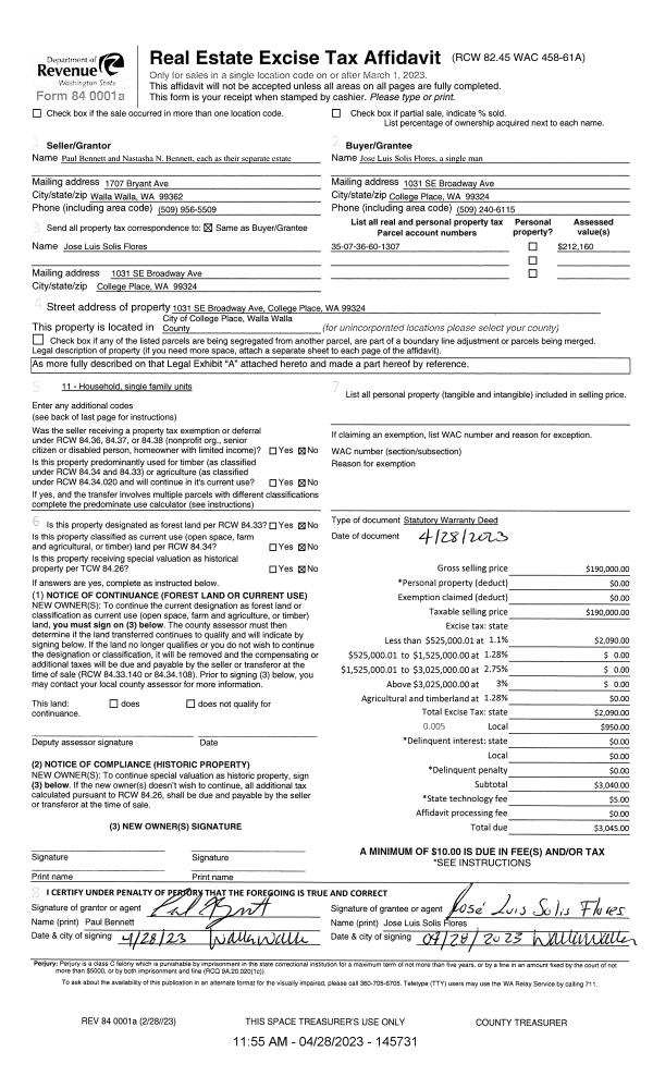
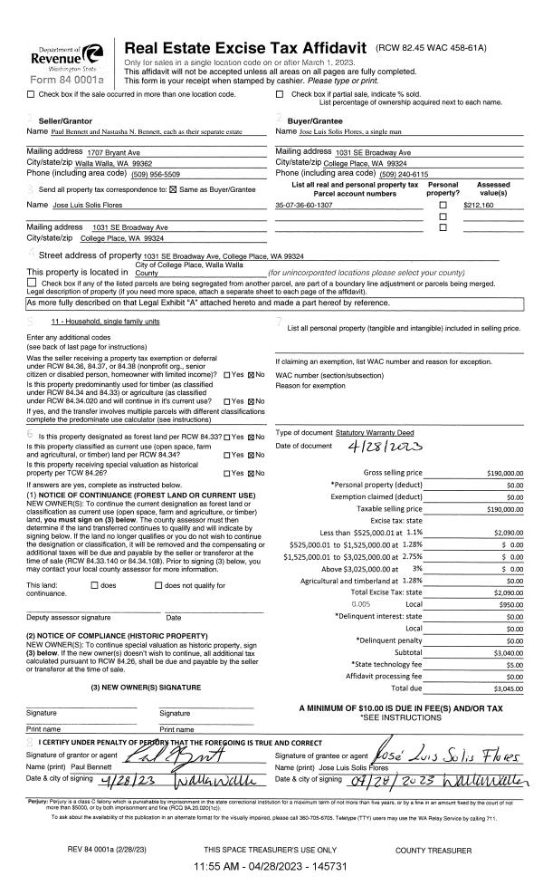
| 1 | 04/28/2023 | SWD | STATUTORY WARRANTY DEED | BENNETT PAUL | FLORES JOSE LUIS SOLIS | | | $190,000.00 | 145731 | 2023-02246 |
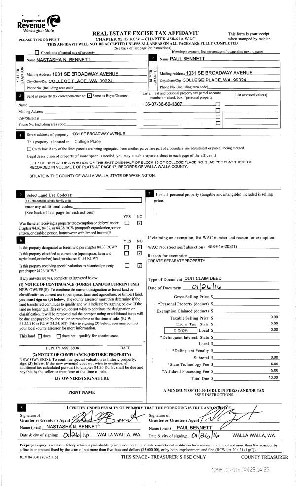
| 2 | 01/29/2016 | QCD | QUIT CLAIM DEED | BENNETT NASTASHA N | BENNETT PAUL | | | | 129590 | 2016-00684 |
| 3 | 01/29/2016 | SWD | STATUTORY WARRANTY DEED | CHESTNUT GLENN E ESTATE OF | BENNETT PAUL | | | $111,650.00 | 129589 | 2016-00683 |
| 4 | 09/08/1983 | WARRANTY D | WARRANTY DEED | | | | | $0.00 | 0 | 1578-604425 |
Payout Agreement
| No payout information available.. |