Property
Account |
| Property ID: | 4636 | Abbreviated Legal Description: | CP #2 REPLAT OF BLK 13 LOT 3 |
| Parcel Number: | 350736601303 | Agent Code: | |
| Type: | Real | | |
| Tax Area: | 75 - CP 250 | Land Use Code | 11 |
| Open Space: | N | DFL | N |
| Historic Property: | N | Remodel Property: | N |
| Multi-Family Redevelopment: | N | | |
| Township: | 7 | Section: | 36 |
| Range: | 35 |
Location |
| Address: | 1119 SE BROADWAY AVE WA 99324 | Mapsco: | |
| Neighborhood: | A SFR | Map ID: | |
| Neighborhood CD: | 113011 |
Owner |
| Name: | ROQUE MARIA | Owner ID: | 60978 |
| Mailing Address: | 1119 SE BROADWAY AVE COLLEGE PLACE, WA 99324 | % Ownership: | 100.0000000000% |
| | | Exemptions: | |
Taxes and Assessment Details
Property Tax Information as of
02/21/2026
Click on "Statement Details" to expand or collapse a tax statement.
* Please enter a valid date ** Please enter a valid date *
Statement Details |
| | TOTAL: | $0.00 | $0.00 | $0.00 | $0.00 | $0.00 | $0.00 |
|
| | $0.00 | $0.00 | $0.00 | $0.00 | $0.00 | $0.00 |
Values
| (+) Improvement Homesite Value: | + | $0 | |
| (+) Improvement Non-Homesite Value: | + | $170,620 | |
| (+) Land Homesite Value: | + | $0 | |
| (+) Land Non-Homesite Value: | + | $40,370 | |
| (+) Curr Use (HS): | + | $0 | $0 |
| (+) Curr Use (NHS): | + | $0 | $0 |
| | | -------------------------- | |
| (=) Market Value: | = | $210,990 | |
| (–) Productivity Loss: | – | $0 | |
| | | -------------------------- | |
| (=) Subtotal: | = | $210,990 | |
| (+) Senior Appraised Value: | + | $0 | |
| (+) Non-Senior Appraised Value: | + | $210,990 | |
| | | -------------------------- | |
| (=) Total Appraised Value: | = | $210,990 | |
| (–) Senior Exemption Loss: | – | $0 | |
| (–) Exemption Loss: | – | $0 | |
| | | -------------------------- | |
| (=) Taxable Value: | = | $210,990 | |
Taxing Jurisdiction
| Owner: | ROQUE MARIA | | |
| % Ownership: | 100.0000000000% | | |
| Total Value: | $210,990 | | |
| Tax Area: | 75 - CP 250 |
| CERFD | CURRENT EXPENSE REFUND 010 | 0.0000000000 | $210,990 | $210,990 | $0.00 | | |
| CURREXP | CURRENT EXPENSE 010 | 1.0175366760 | $210,990 | $210,990 | $214.69 | | |
| HUMNSERV | HUMAN SERVICES 119 | 0.0250000000 | $210,990 | $210,990 | $5.27 | | |
| SLDREL | SOLDIERS RELIEF 121 | 0.0155990005 | $210,990 | $210,990 | $3.29 | | |
| COLLPLBOND | C OF CP BOND 644 | 0.4374241808 | $210,990 | $210,990 | $92.29 | | |
| COLLPLGEN | CITY OF CP 632 | 1.4453819216 | $210,990 | $210,990 | $304.96 | | |
| EMERGSER | EMS 147 | 0.3792580840 | $210,990 | $210,990 | $80.02 | | |
| EMSRFD | EMS REFUND 147 | 0.0000000000 | $210,990 | $210,990 | $0.00 | | |
| RURALLIB | RURAL LIBRARY 623 | 0.3710609029 | $210,990 | $210,990 | $78.29 | | |
| PORTRFD | PORT REFUND 640 | 0.0000000000 | $210,990 | $210,990 | $0.00 | | |
| PORTWWGEN | PORT OF WW 640 | 0.2460186015 | $210,990 | $210,990 | $51.91 | | |
| SD250BOND | SD #250 BOND 773 | 1.4560608159 | $210,990 | $210,990 | $307.21 | | |
| SD250GEN | SD #250 GENERAL 770 | 2.3880724087 | $210,990 | $210,990 | $503.86 | | |
| ST2 | STATE SCHOOL PART 2 600 | 0.8131451643 | $210,990 | $210,990 | $171.57 | | |
| STATESCHL | STATE SCHOOL 600 | 1.5158548041 | $210,990 | $210,990 | $319.83 | | |
| STREFUND | STATE REFUND LEVY 603 | 0.0000000000 | $210,990 | $210,990 | $0.00 | | |
| | Total Tax Rate: | 10.1104125603 | | | | | |
| | | | | Taxes w/Current Exemptions: | $2,133.19 | | |
| | | | | Taxes w/o Exemptions: | $2,133.19 | | |
Improvement / Building
| Improvement #1: | RESIDENTIAL | State Code: | 11 | 1062.0 sqft | Value: | $170,620 |
| Exterior Wall: | SHINGLE | Heating/Cooling: | STOVE-NO HEAT | | Number of Bathrooms: | 1 | Number of Bedrooms: | 2 | | Plumbing: | 6 | Roof Covering: | COMP SHINGLE |
|
| | Type | Description | Class CD | Sub Class CD | Year Built | Area |
| | MA | Main Area | 1 | 20 | 1949 | 1062.0 |
| | SI1 | SITE IMPROVEMENT | 1 | 20 | 1949 | 1.0 |
| | DTG | Detached Garage | 1 | 20 | 1949 | 336.0 |
| | OSP | Open | 1 | 20 | 1949 | 24.0 |
| | CPCS | CARPORT/SHED OR FLAT ROOF | 1 | 20 | 1949 | 224.0 |
Sketch
Property Image
Land
| 1 | RES 1 | Converted: Residential | 0.1373 | 5980.00 | 0.00 | 0.00 | 1.00 | $40,370 | $0 |
Roll Value History
| 2026 | N/A | N/A | N/A | N/A | N/A |
| 2025 | $136,500 | $59,800 | $0 | $196,300 | $196,300 |
| 2024 | $170,620 | $40,370 | $0 | $210,990 | $210,990 |
| 2023 | $170,620 | $40,370 | $0 | $210,990 | $210,990 |
| 2022 | $170,620 | $40,370 | $0 | $210,990 | $210,990 |
| 2021 | $142,190 | $40,370 | $0 | $182,560 | $182,560 |
| 2020 | $98,060 | $40,370 | $0 | $138,430 | $138,430 |
| 2019 | $102,530 | $35,900 | $0 | $138,430 | $138,430 |
| 2018 | $68,360 | $35,900 | $0 | $104,260 | $104,260 |
| 2017 | $65,100 | $35,900 | $0 | $101,000 | $101,000 |
| 2016 | $65,100 | $35,900 | $0 | $101,000 | $101,000 |
| 2015 | $65,100 | $35,900 | $0 | $101,000 | $101,000 |
| 2014 | $65,100 | $35,900 | $0 | $101,000 | $101,000 |
| 2013 | $65,100 | $35,900 | $0 | $101,000 | $101,000 |
| 2012 | $65,100 | $35,900 | $0 | $0 | $0 |
| 2011 | $65,100 | $35,900 | $0 | $0 | $0 |
| 2010 | $55,900 | $35,900 | $0 | $0 | $0 |
| 2009 | $66,100 | $35,900 | $0 | $0 | $0 |
| 2008 | $60,800 | $17,900 | $0 | $0 | $0 |
| 2007 | $60,800 | $17,900 | $0 | $0 | $0 |
Deed and Sales History
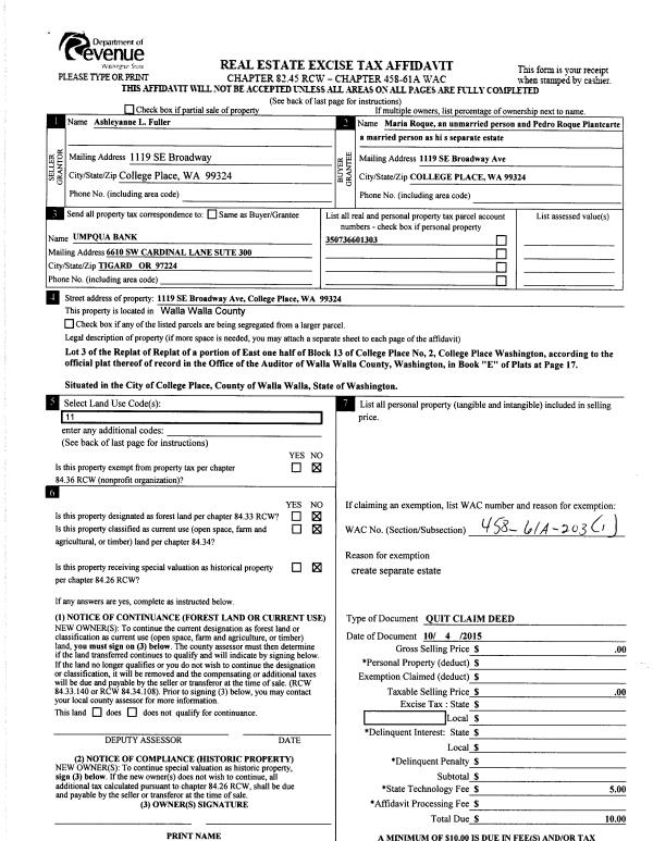
| 1 | 05/25/2017 | QCD | QUIT CLAIM DEED | ROQUE MARIA | ROQUE MARIA | | | $0.00 | 132494 | 2017-04112 |
| 2 | 10/07/2015 | QCD | QUIT CLAIM DEED | FULER ASHLEYANNE L | PLANTCARTE PEDRO ROQUE | | | | 128966 | 2015-08852 |
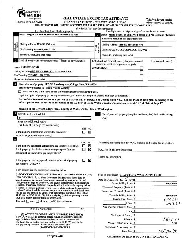
| 3 | 10/07/2015 | SWD | STATUTORY WARRANTY DEED | COCA JORGE & ANNABELL | ROQUE MARIA | | | $99,000.00 | 128965 | 2015-08851 |
| 4 | 03/16/1990 | WARRANTY D | WARRANTY DEED | | | | | $22,900.00 | 0 | 1819-001784 |
Payout Agreement
| No payout information available.. |