Property
Account |
| Property ID: | 46278 | Abbreviated Legal Description: | CASS ADDITION LOT 4; PLUS LOT 5 BLK 2 |
| Parcel Number: | 360719530207 | Agent Code: | |
| Type: | Real | | |
| Tax Area: | 1 - OL-140-F | Land Use Code | 91 |
| Open Space: | N | DFL | N |
| Historic Property: | N | Remodel Property: | N |
| Multi-Family Redevelopment: | N | | |
| Township: | 7 | Section: | 19 |
| Range: | 36 |
Location |
| Address: | 1214 W MOORE ST WA 99362 | Mapsco: | |
| Neighborhood: | COMMERCIAL | Map ID: | |
| Neighborhood CD: | 3319 |
Owner |
| Name: | WALLA WALLA CITY OF | Owner ID: | 2762 |
| Mailing Address: | 15 N 3RD ST WALLA WALLA, WA 99362 | % Ownership: | 100.0000000000% |
| | | Exemptions: | EX |
Taxes and Assessment Details
Values
| (+) Improvement Homesite Value: | + | N/A | |
| (+) Improvement Non-Homesite Value: | + | N/A | |
| (+) Land Homesite Value: | + | N/A | |
| (+) Land Non-Homesite Value: | + | N/A | Ag / Timber Use Value |
| (+) Curr Use (HS): | + | N/A | N/A |
| (+) Curr Use (NHS): | + | N/A | N/A |
| | | -------------------------- | |
| (=) Market Value: | = | N/A | |
| (–) Productivity Loss: | – | N/A | |
| | | -------------------------- | |
| (=) Subtotal: | = | N/A | |
| (+) Senior Appraised Value: | + | N/A | |
| (+) Non-Senior Appraised Value: | + | N/A | |
| | | -------------------------- | |
| (=) Total Appraised Value: | = | N/A | |
| (–) Senior Exemption Loss: | – | N/A | |
| (–) Exemption Loss: | – | N/A | |
| | | -------------------------- | |
| (=) Taxable Value: | = | N/A | |
Taxing Jurisdiction
| Owner: | WALLA WALLA CITY OF | | |
| % Ownership: | 100.0000000000% | | |
| Total Value: | N/A | | |
| Tax Area: | 1 - OL-140-F |
| CERFD | CURRENT EXPENSE REFUND 010 | N/A | N/A | N/A | N/A | | |
| CURREXP | CURRENT EXPENSE 010 | N/A | N/A | N/A | N/A | | |
| HUMNSERV | HUMAN SERVICES 119 | N/A | N/A | N/A | N/A | | |
| SLDREL | SOLDIERS RELIEF 121 | N/A | N/A | N/A | N/A | | |
| EMERGSER | EMS 147 | N/A | N/A | N/A | N/A | | |
| EMSRFD | EMS REFUND 147 | N/A | N/A | N/A | N/A | | |
| PORTRFD | PORT REFUND 640 | N/A | N/A | N/A | N/A | | |
| PORTWWGEN | PORT OF WW 640 | N/A | N/A | N/A | N/A | | |
| SD140BOND | SD #140 BOND 764 | N/A | N/A | N/A | N/A | | |
| SD140GEN | SD #140 GENERAL 760 | N/A | N/A | N/A | N/A | | |
| ST2 | STATE SCHOOL PART 2 600 | N/A | N/A | N/A | N/A | | |
| STATESCHL | STATE SCHOOL 600 | N/A | N/A | N/A | N/A | | |
| STREFUND | STATE REFUND LEVY 603 | N/A | N/A | N/A | N/A | | |
| CWWBOND | C OF WW BOND 643 | N/A | N/A | N/A | N/A | | |
| CWWGEN | CITY OF WW 631 | N/A | N/A | N/A | N/A | | |
| CWWRFD | CITY OF WALLA WALLA REFUND 631 | N/A | N/A | N/A | N/A | | |
| | Total Tax Rate: | N/A | | | | | |
| | | | | Taxes w/Current Exemptions: | N/A | | |
| | | | | Taxes w/o Exemptions: | N/A | | |
Improvement / Building
Sketch
| No sketches available for this property. |
Property Image
Land
| 1 | COM 1 | Converted: Commercial | 0.3184 | 13868.00 | 0.00 | 0.00 | 1.00 | N/A | N/A |
Roll Value History
| 2026 | N/A | N/A | N/A | N/A | N/A |
| 2025 | $0 | $30,700 | $0 | $30,700 | $0 |
| 2024 | $0 | $30,700 | $0 | $30,700 | $30,700 |
| 2023 | $0 | $30,700 | $0 | $30,700 | $30,700 |
| 2022 | $0 | $30,700 | $0 | $30,700 | $30,700 |
| 2021 | $0 | $20,800 | $0 | $20,800 | $20,800 |
| 2020 | $0 | $20,800 | $0 | $20,800 | $20,800 |
Deed and Sales History
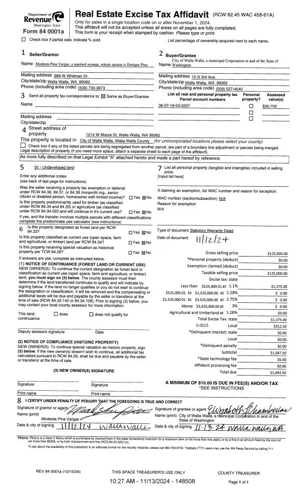
| 1 | 11/13/2024 | SWD | STATUTORY WARRANTY DEED | VARGAS MODESTA PINA | WALLA WALLA CITY OF | | | $125,000.00 | 148508 | 2024-06580 |
| 2 | 03/20/2024 | QCD | QUIT CLAIM DEED | ROMERO MARIO PINA | VARGAS MODESTA PINA | | 2-PARCELS | $90,000.00 | 147265 | 2024-01333 |
|   | |
| 3 | 07/31/2020 | SURVEY | SURVEY | | | 13 | 215 | | 0 | 2020-07419 |
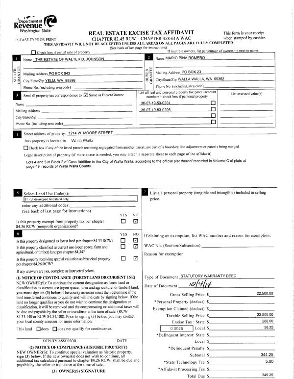
| 4 | 12/05/2014 | SWD | STATUTORY WARRANTY DEED | JOHNSON WALTER D ESTATE OF | ROMERO MARIO PINA | | 2-PARCELS | $22,500.00 | 127065 | 2014-08830 |
| 5 | 12/01/2014 | SURVEY | SURVEY | | | | | | 0 | 2014-08652 |
| 6 | 04/25/1985 | WARRANTY D | WARRANTY DEED | | | | | $25,000.00 | 0 | 1498-502627 |
Payout Agreement
| No payout information available.. |