Property
Account |
| Property ID: | 4623 | Abbreviated Legal Description: | CP #2 S1/2N1/2 OF LOT 3 BLK 12 |
| Parcel Number: | 350736601203 | Agent Code: | |
| Type: | Real | | |
| Tax Area: | 75 - CP 250 | Land Use Code | 11 |
| Open Space: | N | DFL | N |
| Historic Property: | N | Remodel Property: | N |
| Multi-Family Redevelopment: | N | | |
| Township: | 7 | Section: | 36 |
| Range: | 35 |
Location |
| Address: | 915 S COLLEGE AVE WA 99324 | Mapsco: | |
| Neighborhood: | A SFR | Map ID: | |
| Neighborhood CD: | 113011 |
Owner |
| Name: | PETERSEN CLYDE E TESTAMENTARY TRUST | Owner ID: | 50505 |
| Mailing Address: | C/O GAIL ROBERTS 18525 NE MARINE DRIVE A3 PORTLAND, OR 97230 | % Ownership: | 100.0000000000% |
| | | Exemptions: | |
Taxes and Assessment Details
Property Tax Information as of
02/21/2026
Click on "Statement Details" to expand or collapse a tax statement.
* Please enter a valid date ** Please enter a valid date *
Statement Details |
| | TOTAL: | $0.00 | $0.00 | $0.00 | $0.00 | $0.00 | $0.00 |
|
| | $0.00 | $0.00 | $0.00 | $0.00 | $0.00 | $0.00 |
Values
| (+) Improvement Homesite Value: | + | $0 | |
| (+) Improvement Non-Homesite Value: | + | $152,680 | |
| (+) Land Homesite Value: | + | $0 | |
| (+) Land Non-Homesite Value: | + | $68,310 | |
| (+) Curr Use (HS): | + | $0 | $0 |
| (+) Curr Use (NHS): | + | $0 | $0 |
| | | -------------------------- | |
| (=) Market Value: | = | $220,990 | |
| (–) Productivity Loss: | – | $0 | |
| | | -------------------------- | |
| (=) Subtotal: | = | $220,990 | |
| (+) Senior Appraised Value: | + | $0 | |
| (+) Non-Senior Appraised Value: | + | $220,990 | |
| | | -------------------------- | |
| (=) Total Appraised Value: | = | $220,990 | |
| (–) Senior Exemption Loss: | – | $0 | |
| (–) Exemption Loss: | – | $0 | |
| | | -------------------------- | |
| (=) Taxable Value: | = | $220,990 | |
Taxing Jurisdiction
| Owner: | PETERSEN CLYDE E TESTAMENTARY TRUST | | |
| % Ownership: | 100.0000000000% | | |
| Total Value: | $220,990 | | |
| Tax Area: | 75 - CP 250 |
| CERFD | CURRENT EXPENSE REFUND 010 | 0.0000000000 | $220,990 | $220,990 | $0.00 | | |
| CURREXP | CURRENT EXPENSE 010 | 1.0175366760 | $220,990 | $220,990 | $224.87 | | |
| HUMNSERV | HUMAN SERVICES 119 | 0.0250000000 | $220,990 | $220,990 | $5.52 | | |
| SLDREL | SOLDIERS RELIEF 121 | 0.0155990005 | $220,990 | $220,990 | $3.45 | | |
| COLLPLBOND | C OF CP BOND 644 | 0.4374241808 | $220,990 | $220,990 | $96.67 | | |
| COLLPLGEN | CITY OF CP 632 | 1.4453819216 | $220,990 | $220,990 | $319.41 | | |
| EMERGSER | EMS 147 | 0.3792580840 | $220,990 | $220,990 | $83.81 | | |
| EMSRFD | EMS REFUND 147 | 0.0000000000 | $220,990 | $220,990 | $0.00 | | |
| RURALLIB | RURAL LIBRARY 623 | 0.3710609029 | $220,990 | $220,990 | $82.00 | | |
| PORTRFD | PORT REFUND 640 | 0.0000000000 | $220,990 | $220,990 | $0.00 | | |
| PORTWWGEN | PORT OF WW 640 | 0.2460186015 | $220,990 | $220,990 | $54.37 | | |
| SD250BOND | SD #250 BOND 773 | 1.4560608159 | $220,990 | $220,990 | $321.77 | | |
| SD250GEN | SD #250 GENERAL 770 | 2.3880724087 | $220,990 | $220,990 | $527.74 | | |
| ST2 | STATE SCHOOL PART 2 600 | 0.8131451643 | $220,990 | $220,990 | $179.70 | | |
| STATESCHL | STATE SCHOOL 600 | 1.5158548041 | $220,990 | $220,990 | $334.99 | | |
| STREFUND | STATE REFUND LEVY 603 | 0.0000000000 | $220,990 | $220,990 | $0.00 | | |
| | Total Tax Rate: | 10.1104125603 | | | | | |
| | | | | Taxes w/Current Exemptions: | $2,234.30 | | |
| | | | | Taxes w/o Exemptions: | $2,234.30 | | |
Improvement / Building
| Improvement #1: | RESIDENTIAL | State Code: | 11 | 902.0 sqft | Value: | $152,680 |
| Exterior Wall: | VINYL | Heating/Cooling: | WARM & COOLED AIR | | Number of Bathrooms: | 2 | Number of Bedrooms: | 2 | | Plumbing: | 10 | Roof Covering: | COMP SHINGLE |
|
| | Type | Description | Class CD | Sub Class CD | Year Built | Area |
| | MA | Main Area | 1 | 25 | 1940 | 902.0 |
| | SI1 | SITE IMPROVEMENT | 1 | 25 | 1940 | 1.0 |
| | BASE | BASEMENT | 1 | 25 | 1940 | 902.0 |
| | BPF | BASEMENT -PARTITIONED FINISH | 1 | 25 | 1940 | 902.0 |
| | RPS | PORCH W/STEPS,ROOF | 1 | 25 | 1940 | 30.0 |
| | OUT | OUTSIDE BASEMENT ENTRY | 1 | 25 | 1940 | 1.0 |
| | DTG | Detached Garage | 1 | 25 | 1940 | 240.0 |
Sketch
Property Image
Land
| 1 | RES 1 | Converted: Residential | 0.5193 | 22620.00 | 0.00 | 0.00 | 1.00 | $68,310 | $0 |
Roll Value History
| 2026 | N/A | N/A | N/A | N/A | N/A |
| 2025 | $162,450 | $105,640 | $0 | $268,090 | $268,090 |
| 2024 | $180,500 | $68,300 | $0 | $248,800 | $248,800 |
| 2023 | $152,680 | $68,310 | $0 | $220,990 | $220,990 |
| 2022 | $152,680 | $68,310 | $0 | $220,990 | $220,990 |
| 2021 | $138,800 | $68,310 | $0 | $207,110 | $207,110 |
| 2020 | $115,670 | $68,310 | $0 | $183,980 | $183,980 |
| 2019 | $126,080 | $57,900 | $0 | $183,980 | $183,980 |
| 2018 | $86,950 | $57,900 | $0 | $144,850 | $144,850 |
| 2017 | $82,810 | $57,900 | $0 | $140,710 | $140,710 |
| 2016 | $63,700 | $57,900 | $0 | $121,600 | $121,600 |
| 2015 | $63,700 | $57,900 | $0 | $121,600 | $121,600 |
| 2014 | $63,700 | $57,900 | $0 | $121,600 | $121,600 |
| 2013 | $63,700 | $57,900 | $0 | $121,600 | $121,600 |
| 2012 | $63,700 | $57,900 | $0 | $0 | $0 |
| 2011 | $63,700 | $57,900 | $0 | $0 | $0 |
| 2010 | $63,700 | $57,900 | $0 | $0 | $0 |
| 2009 | $77,200 | $57,900 | $0 | $0 | $0 |
| 2008 | $65,300 | $36,000 | $0 | $0 | $0 |
| 2007 | $65,300 | $36,000 | $0 | $0 | $0 |
Deed and Sales History
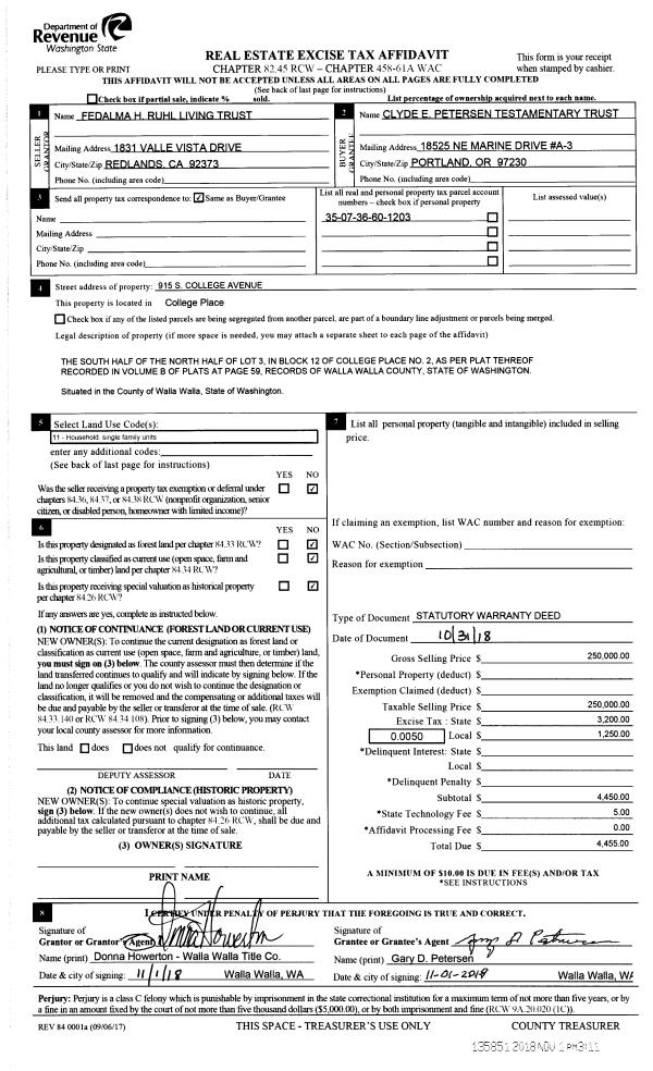
| 1 | 11/01/2018 | SWD | STATUTORY WARRANTY DEED | RUHL FEDALMA H | PETERSEN CLYDE E TESTAMENTARY TRUST | | | $250,000.00 | 135851 | 2018-09071 |
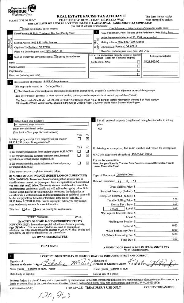
| 2 | 11/10/2011 | QCD | QUIT CLAIM DEED | RUHL FAMILY TRUST | RUHL, FEDALMA H | | | | 120963 | 2011-08863 |
| 3 | 09/11/1972 | QCD | QUIT CLAIM DEED | | | | | $16,750.00 | 0 | 1919-106811 |
Payout Agreement
| No payout information available.. |