Property
Account |
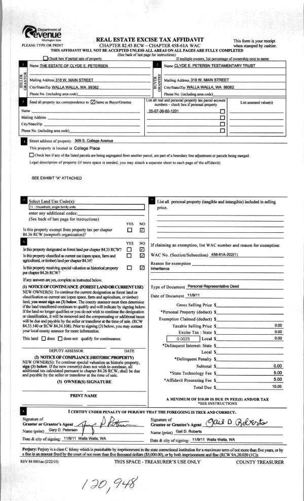
| Property ID: | 4622 | Abbreviated Legal Description: | CP #2 N1/2N1/2 OF LOT 3 BLK 12 |
| Parcel Number: | 350736601201 | Agent Code: | |
| Type: | Real | | |
| Tax Area: | 75 - CP 250 | Land Use Code | 11 |
| Open Space: | N | DFL | N |
| Historic Property: | N | Remodel Property: | N |
| Multi-Family Redevelopment: | N | | |
| Township: | 7 | Section: | 36 |
| Range: | 35 |
Location |
| Address: | 909 S COLLEGE AVE WA 99324 | Mapsco: | |
| Neighborhood: | A SFR | Map ID: | |
| Neighborhood CD: | 113011 |
Owner |
| Name: | PETERSEN GARY D | Owner ID: | 42321 |
| Mailing Address: | CLYDE PETERSEN TESTAMENTARY TRUST C/O GAIL ROBERTS 18525 NE MARINE DRIVE A3 PORTLAND, OR 97230 | % Ownership: | 100.0000000000% |
| | | Exemptions: | |
Taxes and Assessment Details
Property Tax Information as of
02/21/2026
Click on "Statement Details" to expand or collapse a tax statement.
* Please enter a valid date ** Please enter a valid date *
Statement Details |
| | TOTAL: | $0.00 | $0.00 | $0.00 | $0.00 | $0.00 | $0.00 |
|
| | $0.00 | $0.00 | $0.00 | $0.00 | $0.00 | $0.00 |
Values
| (+) Improvement Homesite Value: | + | $0 | |
| (+) Improvement Non-Homesite Value: | + | $154,330 | |
| (+) Land Homesite Value: | + | $0 | |
| (+) Land Non-Homesite Value: | + | $68,310 | |
| (+) Curr Use (HS): | + | $0 | $0 |
| (+) Curr Use (NHS): | + | $0 | $0 |
| | | -------------------------- | |
| (=) Market Value: | = | $222,640 | |
| (–) Productivity Loss: | – | $0 | |
| | | -------------------------- | |
| (=) Subtotal: | = | $222,640 | |
| (+) Senior Appraised Value: | + | $0 | |
| (+) Non-Senior Appraised Value: | + | $222,640 | |
| | | -------------------------- | |
| (=) Total Appraised Value: | = | $222,640 | |
| (–) Senior Exemption Loss: | – | $0 | |
| (–) Exemption Loss: | – | $0 | |
| | | -------------------------- | |
| (=) Taxable Value: | = | $222,640 | |
Taxing Jurisdiction
| Owner: | PETERSEN GARY D | | |
| % Ownership: | 100.0000000000% | | |
| Total Value: | $222,640 | | |
| Tax Area: | 75 - CP 250 |
| CERFD | CURRENT EXPENSE REFUND 010 | 0.0000000000 | $222,640 | $222,640 | $0.00 | | |
| CURREXP | CURRENT EXPENSE 010 | 1.0175366760 | $222,640 | $222,640 | $226.54 | | |
| HUMNSERV | HUMAN SERVICES 119 | 0.0250000000 | $222,640 | $222,640 | $5.57 | | |
| SLDREL | SOLDIERS RELIEF 121 | 0.0155990005 | $222,640 | $222,640 | $3.47 | | |
| COLLPLBOND | C OF CP BOND 644 | 0.4374241808 | $222,640 | $222,640 | $97.39 | | |
| COLLPLGEN | CITY OF CP 632 | 1.4453819216 | $222,640 | $222,640 | $321.80 | | |
| EMERGSER | EMS 147 | 0.3792580840 | $222,640 | $222,640 | $84.44 | | |
| EMSRFD | EMS REFUND 147 | 0.0000000000 | $222,640 | $222,640 | $0.00 | | |
| RURALLIB | RURAL LIBRARY 623 | 0.3710609029 | $222,640 | $222,640 | $82.61 | | |
| PORTRFD | PORT REFUND 640 | 0.0000000000 | $222,640 | $222,640 | $0.00 | | |
| PORTWWGEN | PORT OF WW 640 | 0.2460186015 | $222,640 | $222,640 | $54.77 | | |
| SD250BOND | SD #250 BOND 773 | 1.4560608159 | $222,640 | $222,640 | $324.18 | | |
| SD250GEN | SD #250 GENERAL 770 | 2.3880724087 | $222,640 | $222,640 | $531.68 | | |
| ST2 | STATE SCHOOL PART 2 600 | 0.8131451643 | $222,640 | $222,640 | $181.04 | | |
| STATESCHL | STATE SCHOOL 600 | 1.5158548041 | $222,640 | $222,640 | $337.49 | | |
| STREFUND | STATE REFUND LEVY 603 | 0.0000000000 | $222,640 | $222,640 | $0.00 | | |
| | Total Tax Rate: | 10.1104125603 | | | | | |
| | | | | Taxes w/Current Exemptions: | $2,250.98 | | |
| | | | | Taxes w/o Exemptions: | $2,250.98 | | |
Improvement / Building
| Improvement #1: | RESIDENTIAL | State Code: | 11 | 934.0 sqft | Value: | $154,330 |
| Exterior Wall: | VINYL | Heating/Cooling: | WARM & COOLED AIR | | Number of Bathrooms: | 2 | Number of Bedrooms: | 2 | | Plumbing: | 9 | Roof Covering: | COMP SHINGLE |
|
| | Type | Description | Class CD | Sub Class CD | Year Built | Area |
| | MA | Main Area | 1 | 25 | 1940 | 934.0 |
| | BASE | BASEMENT | 1 | 25 | 1940 | 902.0 |
| | BPF | BASEMENT -PARTITIONED FINISH | 1 | 25 | 1940 | 902.0 |
| | SI1 | SITE IMPROVEMENT | 1 | 25 | 1940 | 1.0 |
| | SWP | Solid Wall Porch | 1 | 25 | 1940 | 32.0 |
| | S1F | Single One Story Fireplace | 1 | 25 | 1940 | 1.0 |
| | DTG | Detached Garage | 1 | 25 | 1940 | 240.0 |
Sketch
Property Image
Land
| 1 | RES 1 | Converted: Residential | 0.5193 | 22620.00 | 0.00 | 0.00 | 1.00 | $68,310 | $0 |
Roll Value History
| 2026 | N/A | N/A | N/A | N/A | N/A |
| 2025 | $138,890 | $105,640 | $0 | $244,530 | $244,530 |
| 2024 | $154,330 | $68,310 | $0 | $222,640 | $222,640 |
| 2023 | $154,330 | $68,310 | $0 | $222,640 | $222,640 |
| 2022 | $154,330 | $68,310 | $0 | $222,640 | $222,640 |
| 2021 | $140,300 | $68,310 | $0 | $208,610 | $208,610 |
| 2020 | $107,920 | $68,310 | $0 | $176,230 | $176,230 |
| 2019 | $118,330 | $57,900 | $0 | $176,230 | $176,230 |
| 2018 | $94,670 | $57,900 | $0 | $152,570 | $152,570 |
| 2017 | $86,060 | $57,900 | $0 | $143,960 | $143,960 |
| 2016 | $66,200 | $57,900 | $0 | $124,100 | $124,100 |
| 2015 | $66,200 | $57,900 | $0 | $124,100 | $124,100 |
| 2014 | $66,200 | $57,900 | $0 | $124,100 | $124,100 |
| 2013 | $66,200 | $57,900 | $0 | $124,100 | $124,100 |
| 2012 | $66,200 | $57,900 | $0 | $0 | $0 |
| 2011 | $66,200 | $57,900 | $0 | $0 | $0 |
| 2010 | $66,200 | $57,900 | $0 | $0 | $0 |
| 2009 | $80,000 | $57,900 | $0 | $0 | $0 |
| 2008 | $73,300 | $36,000 | $0 | $0 | $0 |
| 2007 | $73,300 | $36,000 | $0 | $0 | $0 |
Deed and Sales History
| 1 | 11/09/2011 | WARRANTY D | WARRANTY DEED | PETERSEN, CLYDE E ESTATE OF | CLYDE PETERSEN TESTAMENTARY TR | | | | 120948 | 2011-08812 |
| 2 | 05/18/2006 | WARRANTY D | WARRANTY DEED | HEPKER, DON B & GISELLE G | PETERSEN, GARY D | | | $180,000.00 | 110281 | 2006-05712 |
| 3 | 07/29/2005 | WARRANTY D | WARRANTY DEED | HEPKER, WILMA M | HEPKER, DON B & GISELLE G | | | $124,500.00 | 108083 | 2005-09314 |
| 4 | 01/26/1996 | WARRANTY D | WARRANTY DEED | | | | | $87,900.00 | 85521 | 2379-600847 |
Payout Agreement
| No payout information available.. |