Property
Account |
| Property ID: | 4615 | Abbreviated Legal Description: | CP #2 W1/2 OF S 80' OF E1/2 OF LOT 4 BLK 11 |
| Parcel Number: | 350736601114 | Agent Code: | |
| Type: | Real | | |
| Tax Area: | 75 - CP 250 | Land Use Code | 91 |
| Open Space: | N | DFL | N |
| Historic Property: | N | Remodel Property: | N |
| Multi-Family Redevelopment: | N | | |
| Township: | 7 | Section: | 36 |
| Range: | 35 |
Location |
| Address: | 926 SE DATE AVE WA 99324 | Mapsco: | |
| Neighborhood: | A SFR Contig | Map ID: | |
| Neighborhood CD: | 113097 |
Owner |
| Name: | JENSEN DAVID K | Owner ID: | 59429 |
| Mailing Address: | GEORGIA A BIXLER-JENSEN 926 SE DATE AVE COLLEGE PLACE, WA 99324 | % Ownership: | 100.0000000000% |
| | | Exemptions: | |
Taxes and Assessment Details
Property Tax Information as of
02/21/2026
Click on "Statement Details" to expand or collapse a tax statement.
* Please enter a valid date ** Please enter a valid date *
Statement Details |
| | TOTAL: | $0.00 | $0.00 | $0.00 | $0.00 | $0.00 | $0.00 |
|
| | $0.00 | $0.00 | $0.00 | $0.00 | $0.00 | $0.00 |
Values
| (+) Improvement Homesite Value: | + | $0 | |
| (+) Improvement Non-Homesite Value: | + | $0 | |
| (+) Land Homesite Value: | + | $0 | |
| (+) Land Non-Homesite Value: | + | $30,370 | |
| (+) Curr Use (HS): | + | $0 | $0 |
| (+) Curr Use (NHS): | + | $0 | $0 |
| | | -------------------------- | |
| (=) Market Value: | = | $30,370 | |
| (–) Productivity Loss: | – | $0 | |
| | | -------------------------- | |
| (=) Subtotal: | = | $30,370 | |
| (+) Senior Appraised Value: | + | $0 | |
| (+) Non-Senior Appraised Value: | + | $30,370 | |
| | | -------------------------- | |
| (=) Total Appraised Value: | = | $30,370 | |
| (–) Senior Exemption Loss: | – | $0 | |
| (–) Exemption Loss: | – | $0 | |
| | | -------------------------- | |
| (=) Taxable Value: | = | $30,370 | |
Taxing Jurisdiction
| Owner: | JENSEN DAVID K | | |
| % Ownership: | 100.0000000000% | | |
| Total Value: | $30,370 | | |
| Tax Area: | 75 - CP 250 |
| CERFD | CURRENT EXPENSE REFUND 010 | 0.0000000000 | $30,370 | $30,370 | $0.00 | | |
| CURREXP | CURRENT EXPENSE 010 | 0.9851088983 | $30,370 | $30,370 | $29.92 | | |
| HUMNSERV | HUMAN SERVICES 119 | 0.0250000000 | $30,370 | $30,370 | $0.76 | | |
| SLDREL | SOLDIERS RELIEF 121 | 0.0155990000 | $30,370 | $30,370 | $0.47 | | |
| COLLPLBOND | C OF CP BOND 644 | 0.3846009312 | $30,370 | $30,370 | $11.68 | | |
| COLLPLGEN | CITY OF CP 632 | 1.4193088888 | $30,370 | $30,370 | $43.10 | | |
| EMERGSER | EMS 147 | 0.3676811629 | $30,370 | $30,370 | $11.17 | | |
| EMSRFD | EMS REFUND 147 | 0.0000000000 | $30,370 | $30,370 | $0.00 | | |
| RLBRFD | RURAL LIBRARY REFUND 623 | 0.0000000000 | $30,370 | $0 | $0.00 | | |
| RURALLIB | RURAL LIBRARY 623 | 0.0000000000 | $30,370 | $0 | $0.00 | | |
| PORTRFD | PORT REFUND 640 | 0.0000000000 | $30,370 | $30,370 | $0.00 | | |
| PORTWWGEN | PORT OF WW 640 | 0.2344301070 | $30,370 | $30,370 | $7.12 | | |
| SD250BOND | SD #250 BOND 773 | 1.3740031235 | $30,370 | $30,370 | $41.73 | | |
| SD250GEN | SD #250 GENERAL 770 | 2.4999999988 | $30,370 | $30,370 | $75.93 | | |
| ST2 | STATE SCHOOL PART 2 600 | 0.8853714103 | $30,370 | $30,370 | $26.89 | | |
| STATESCHL | STATE SCHOOL 600 | 1.6424571473 | $30,370 | $30,370 | $49.88 | | |
| STREFUND | STATE REFUND LEVY 603 | 0.0000000000 | $30,370 | $30,370 | $0.00 | | |
| | Total Tax Rate: | 9.8335606681 | | | | | |
| | | | | Taxes w/Current Exemptions: | $298.65 | | |
| | | | | Taxes w/o Exemptions: | $298.65 | | |
Improvement / Building
Sketch
| No sketches available for this property. |
Property Image
Land
| 1 | RES 1 | Converted: Residential | 0.1469 | 6400.00 | 0.00 | 0.00 | 1.00 | $30,370 | $0 |
Roll Value History
| 2026 | N/A | N/A | N/A | N/A | N/A |
| 2025 | $0 | $30,370 | $0 | $30,370 | $30,370 |
| 2024 | $0 | $19,650 | $0 | $19,650 | $19,650 |
| 2023 | $0 | $19,650 | $0 | $19,650 | $19,650 |
| 2022 | $0 | $19,650 | $0 | $19,650 | $19,650 |
| 2021 | $0 | $19,650 | $0 | $19,650 | $19,650 |
| 2020 | $0 | $19,650 | $0 | $19,650 | $19,650 |
| 2019 | $0 | $11,100 | $0 | $11,100 | $11,100 |
| 2018 | $0 | $11,100 | $0 | $11,100 | $11,100 |
| 2017 | $0 | $11,100 | $0 | $11,100 | $11,100 |
| 2016 | $0 | $11,100 | $0 | $11,100 | $11,100 |
| 2015 | $0 | $11,100 | $0 | $11,100 | $11,100 |
| 2014 | $0 | $11,100 | $0 | $11,100 | $11,100 |
| 2013 | $0 | $11,100 | $0 | $11,100 | $11,100 |
| 2012 | $0 | $11,100 | $0 | $0 | $0 |
| 2011 | $0 | $11,100 | $0 | $0 | $0 |
| 2010 | $0 | $11,100 | $0 | $0 | $0 |
| 2009 | $0 | $11,100 | $0 | $0 | $0 |
| 2008 | $0 | $8,000 | $0 | $0 | $0 |
| 2007 | $0 | $8,000 | $0 | $0 | $0 |
Deed and Sales History
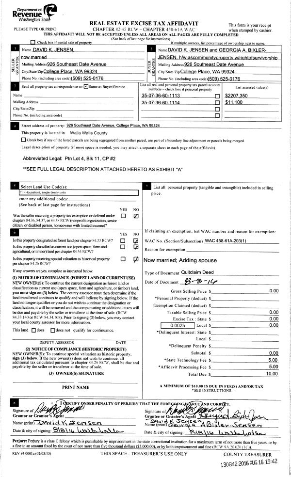
| 1 | 08/08/2016 | QCD | QUIT CLAIM DEED | JENSEN DAVID K | JENSEN DAVID K | | | $0.00 | 130842 | 2016-06547 |
| 2 | 03/29/2006 | WARRANTY D | WARRANTY DEED | BECK, KENNETH A JR | JENSEN DAVID K | | | $228,000.00 | 109921 | 2006-03565 |
|   | |
| 3 | 10/12/2000 | WARRANTY D | WARRANTY DEED | | | | | $110,000.00 | 95989 | 3030-009799 |
|   | |
Payout Agreement
| No payout information available.. |