Property
Account |
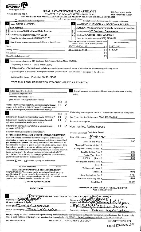
| Property ID: | 4614 | Abbreviated Legal Description: | CP #2 E1/2 OF S 80' OF E1/2 OF LOT 4 BLK 11 |
| Parcel Number: | 350736601113 | Agent Code: | |
| Type: | Real | | |
| Tax Area: | 75 - CP 250 | Land Use Code | 11 |
| Open Space: | N | DFL | N |
| Historic Property: | N | Remodel Property: | N |
| Multi-Family Redevelopment: | N | | |
| Township: | 7 | Section: | 36 |
| Range: | 35 |
Location |
| Address: | 926 SE DATE AVE WA 99324 | Mapsco: | |
| Neighborhood: | A SFR | Map ID: | |
| Neighborhood CD: | 113011 |
Owner |
| Name: | JENSEN DAVID K | Owner ID: | 59429 |
| Mailing Address: | GEORGIA A BIXLER-JENSEN 926 SE DATE AVE COLLEGE PLACE, WA 99324 | % Ownership: | 100.0000000000% |
| | | Exemptions: | |
Taxes and Assessment Details
Values
| (+) Improvement Homesite Value: | + | $0 | |
| (+) Improvement Non-Homesite Value: | + | $326,150 | |
| (+) Land Homesite Value: | + | $0 | |
| (+) Land Non-Homesite Value: | + | $64,000 | |
| (+) Curr Use (HS): | + | $0 | $0 |
| (+) Curr Use (NHS): | + | $0 | $0 |
| | | -------------------------- | |
| (=) Market Value: | = | $390,150 | |
| (–) Productivity Loss: | – | $0 | |
| | | -------------------------- | |
| (=) Subtotal: | = | $390,150 | |
| (+) Senior Appraised Value: | + | $0 | |
| (+) Non-Senior Appraised Value: | + | $390,150 | |
| | | -------------------------- | |
| (=) Total Appraised Value: | = | $390,150 | |
| (–) Senior Exemption Loss: | – | $0 | |
| (–) Exemption Loss: | – | $0 | |
| | | -------------------------- | |
| (=) Taxable Value: | = | $390,150 | |
Taxing Jurisdiction
| Owner: | JENSEN DAVID K | | |
| % Ownership: | 100.0000000000% | | |
| Total Value: | $390,150 | | |
| Tax Area: | 75 - CP 250 |
| CERFD | CURRENT EXPENSE REFUND 010 | 0.0000000000 | $390,150 | $390,150 | $0.00 | | |
| CURREXP | CURRENT EXPENSE 010 | 0.9851088983 | $390,150 | $390,150 | $384.34 | | |
| HUMNSERV | HUMAN SERVICES 119 | 0.0250000000 | $390,150 | $390,150 | $9.75 | | |
| SLDREL | SOLDIERS RELIEF 121 | 0.0155990000 | $390,150 | $390,150 | $6.09 | | |
| COLLPLBOND | C OF CP BOND 644 | 0.3846009312 | $390,150 | $390,150 | $150.05 | | |
| COLLPLGEN | CITY OF CP 632 | 1.4193088888 | $390,150 | $390,150 | $553.74 | | |
| EMERGSER | EMS 147 | 0.3676811629 | $390,150 | $390,150 | $143.45 | | |
| EMSRFD | EMS REFUND 147 | 0.0000000000 | $390,150 | $390,150 | $0.00 | | |
| RLBRFD | RURAL LIBRARY REFUND 623 | 0.0000000000 | $390,150 | $0 | $0.00 | | |
| RURALLIB | RURAL LIBRARY 623 | 0.0000000000 | $390,150 | $0 | $0.00 | | |
| PORTRFD | PORT REFUND 640 | 0.0000000000 | $390,150 | $390,150 | $0.00 | | |
| PORTWWGEN | PORT OF WW 640 | 0.2344301070 | $390,150 | $390,150 | $91.46 | | |
| SD250BOND | SD #250 BOND 773 | 1.3740031235 | $390,150 | $390,150 | $536.07 | | |
| SD250GEN | SD #250 GENERAL 770 | 2.4999999988 | $390,150 | $390,150 | $975.38 | | |
| ST2 | STATE SCHOOL PART 2 600 | 0.8853714103 | $390,150 | $390,150 | $345.43 | | |
| STATESCHL | STATE SCHOOL 600 | 1.6424571473 | $390,150 | $390,150 | $640.80 | | |
| STREFUND | STATE REFUND LEVY 603 | 0.0000000000 | $390,150 | $390,150 | $0.00 | | |
| | Total Tax Rate: | 9.8335606681 | | | | | |
| | | | | Taxes w/Current Exemptions: | $3,836.56 | | |
| | | | | Taxes w/o Exemptions: | $3,836.56 | | |
Improvement / Building
| Improvement #1: | RESIDENTIAL | State Code: | 11 | 1780.0 sqft | Value: | $326,150 |
| Exterior Wall: | VINYL | Foundation: | SLAB FOUNDATION | | Heating/Cooling: | WARM & COOLED AIR | Number of Bathrooms: | 2 | | Number of Bedrooms: | 3 | Plumbing: | 9 | | Roof Covering: | COMP SHINGLE |   |   |
|
| | Type | Description | Class CD | Sub Class CD | Year Built | Area |
| | MA | Main Area | 1 | 30 | 1915 | 1780.0 |
| | BASE | BASEMENT | 1 | 30 | 1915 | 136.0 |
| | SI1 | SITE IMPROVEMENT | 1 | 30 | 1915 | 2.0 |
| | WOD | Wood Deck | 1 | 30 | 1915 | 307.0 |
| | OPS | OPEN PORCH W/STEPS | 1 | 30 | 1915 | 30.0 |
| | S1F | Single One Story Fireplace | 1 | 30 | 1915 | 1.0 |
| | BONU | BONUS ROOM W/FINISH | 1 | 30 | 1915 | 380.0 |
| | ATG | Attached Garage | 1 | 30 | 1915 | 320.0 |
Sketch
Property Image
Land
| 1 | RES 1 | Converted: Residential | 0.1469 | 6400.00 | 0.00 | 0.00 | 1.00 | $64,000 | $0 |
Roll Value History
| 2026 | N/A | N/A | N/A | N/A | N/A |
| 2025 | $326,150 | $64,000 | $0 | $390,150 | $390,150 |
| 2024 | $343,320 | $43,200 | $0 | $386,520 | $386,520 |
| 2023 | $343,320 | $43,200 | $0 | $386,520 | $386,520 |
| 2022 | $286,100 | $43,200 | $0 | $329,300 | $329,300 |
| 2021 | $228,880 | $43,200 | $0 | $272,080 | $272,080 |
| 2020 | $208,070 | $43,200 | $0 | $251,270 | $251,270 |
| 2019 | $212,870 | $38,400 | $0 | $251,270 | $251,270 |
| 2018 | $202,730 | $38,400 | $0 | $241,130 | $241,130 |
| 2017 | $168,950 | $38,400 | $0 | $207,350 | $207,350 |
| 2016 | $168,950 | $38,400 | $0 | $207,350 | $207,350 |
| 2015 | $160,900 | $38,400 | $0 | $199,300 | $199,300 |
| 2014 | $160,900 | $38,400 | $0 | $199,300 | $199,300 |
| 2013 | $160,900 | $38,400 | $0 | $199,300 | $199,300 |
| 2012 | $171,400 | $38,400 | $0 | $0 | $0 |
| 2011 | $171,400 | $38,400 | $0 | $0 | $0 |
| 2010 | $161,400 | $38,400 | $0 | $0 | $0 |
| 2009 | $183,600 | $38,400 | $0 | $0 | $0 |
| 2008 | $107,500 | $19,200 | $0 | $0 | $0 |
| 2007 | $107,500 | $19,200 | $0 | $0 | $0 |
Deed and Sales History
| 1 | 08/08/2016 | QCD | QUIT CLAIM DEED | JENSEN DAVID K | JENSEN DAVID K | | | $0.00 | 130842 | 2016-06547 |
| 2 | 03/29/2006 | WARRANTY D | WARRANTY DEED | BECK KENNETH A JR | JENSEN DAVID K | | | $228,000.00 | 109921 | 2006-03565 |
|   | |
| 3 | 10/12/2000 | WARRANTY D | WARRANTY DEED | | | | | $110,000.00 | 95989 | 3030-009799 |
|   | |
Payout Agreement
| No payout information available.. |