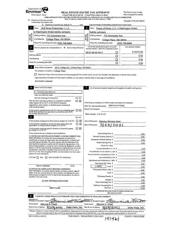
Property
Account |
| Property ID: | 4548 | Abbreviated Legal Description: | CP #2 TAX 5 LOT 2 BLK 4 |
| Parcel Number: | 350736600417 | Agent Code: | |
| Type: | Real | | |
| Tax Area: | 75 - CP 250 | Land Use Code | 11 |
| Open Space: | N | DFL | N |
| Historic Property: | N | Remodel Property: | N |
| Multi-Family Redevelopment: | N | | |
| Township: | 7 | Section: | 36 |
| Range: | 35 |
Location |
| Address: | 425 S COLLEGE AVE WA 99324 | Mapsco: | |
| Neighborhood: | A SFR | Map ID: | |
| Neighborhood CD: | 113011 |
Owner |
| Name: | PEACE OF HOME LLC | Owner ID: | 54844 |
| Mailing Address: | 772 GRANDVIEW AVE COLLEGE PLACE, WA 99324 | % Ownership: | 100.0000000000% |
| | | Exemptions: | |
Taxes and Assessment Details
Property Tax Information as of
02/21/2026
Click on "Statement Details" to expand or collapse a tax statement.
* Please enter a valid date ** Please enter a valid date *
Statement Details |
| | TOTAL: | $0.00 | $0.00 | $0.00 | $0.00 | $0.00 | $0.00 |
|
| | $0.00 | $0.00 | $0.00 | $0.00 | $0.00 | $0.00 |
Values
| (+) Improvement Homesite Value: | + | $0 | |
| (+) Improvement Non-Homesite Value: | + | $298,230 | |
| (+) Land Homesite Value: | + | $0 | |
| (+) Land Non-Homesite Value: | + | $61,710 | |
| (+) Curr Use (HS): | + | $0 | $0 |
| (+) Curr Use (NHS): | + | $0 | $0 |
| | | -------------------------- | |
| (=) Market Value: | = | $359,940 | |
| (–) Productivity Loss: | – | $0 | |
| | | -------------------------- | |
| (=) Subtotal: | = | $359,940 | |
| (+) Senior Appraised Value: | + | $0 | |
| (+) Non-Senior Appraised Value: | + | $359,940 | |
| | | -------------------------- | |
| (=) Total Appraised Value: | = | $359,940 | |
| (–) Senior Exemption Loss: | – | $0 | |
| (–) Exemption Loss: | – | $0 | |
| | | -------------------------- | |
| (=) Taxable Value: | = | $359,940 | |
Taxing Jurisdiction
| Owner: | PEACE OF HOME LLC | | |
| % Ownership: | 100.0000000000% | | |
| Total Value: | $359,940 | | |
| Tax Area: | 75 - CP 250 |
| CERFD | CURRENT EXPENSE REFUND 010 | 0.0000000000 | $359,940 | $359,940 | $0.00 | | |
| CURREXP | CURRENT EXPENSE 010 | 1.0175366760 | $359,940 | $359,940 | $366.25 | | |
| HUMNSERV | HUMAN SERVICES 119 | 0.0250000000 | $359,940 | $359,940 | $9.00 | | |
| SLDREL | SOLDIERS RELIEF 121 | 0.0155990005 | $359,940 | $359,940 | $5.61 | | |
| COLLPLBOND | C OF CP BOND 644 | 0.4374241808 | $359,940 | $359,940 | $157.45 | | |
| COLLPLGEN | CITY OF CP 632 | 1.4453819216 | $359,940 | $359,940 | $520.25 | | |
| EMERGSER | EMS 147 | 0.3792580840 | $359,940 | $359,940 | $136.51 | | |
| EMSRFD | EMS REFUND 147 | 0.0000000000 | $359,940 | $359,940 | $0.00 | | |
| RURALLIB | RURAL LIBRARY 623 | 0.3710609029 | $359,940 | $359,940 | $133.56 | | |
| PORTRFD | PORT REFUND 640 | 0.0000000000 | $359,940 | $359,940 | $0.00 | | |
| PORTWWGEN | PORT OF WW 640 | 0.2460186015 | $359,940 | $359,940 | $88.55 | | |
| SD250BOND | SD #250 BOND 773 | 1.4560608159 | $359,940 | $359,940 | $524.09 | | |
| SD250GEN | SD #250 GENERAL 770 | 2.3880724087 | $359,940 | $359,940 | $859.56 | | |
| ST2 | STATE SCHOOL PART 2 600 | 0.8131451643 | $359,940 | $359,940 | $292.68 | | |
| STATESCHL | STATE SCHOOL 600 | 1.5158548041 | $359,940 | $359,940 | $545.62 | | |
| STREFUND | STATE REFUND LEVY 603 | 0.0000000000 | $359,940 | $359,940 | $0.00 | | |
| | Total Tax Rate: | 10.1104125603 | | | | | |
| | | | | Taxes w/Current Exemptions: | $3,639.13 | | |
| | | | | Taxes w/o Exemptions: | $3,639.13 | | |
Improvement / Building
| Improvement #1: | RESIDENTIAL | State Code: | 11 | 1992.0 sqft | Value: | $298,230 |
| Exterior Wall: | SIDING | Heating/Cooling: | FORCED AIR | | Number of Bathrooms: | 2 | Number of Bedrooms: | 5 | | Plumbing: | 11 | Roof Covering: | COMP SHINGLE |
|
| | Type | Description | Class CD | Sub Class CD | Year Built | Area |
| | MA | Main Area | 4 | 30 | 1935 | 1992.0 |
| | UPFL | Upper Floor (included in main area) | 4 | 30 | 1935 | 828.0 |
| | SI1 | SITE IMPROVEMENT | 4 | 30 | 1935 | 1.0 |
| | BASE | BASEMENT | 4 | 30 | 1935 | 1008.0 |
| | DTG | Detached Garage | 4 | 30 | 1935 | 432.0 |
| | SWP | Solid Wall Porch | 4 | 30 | 1935 | 164.0 |
Sketch
Property Image
Land
| 1 | RES 1 | Converted: Residential | 0.2430 | 10585.00 | 0.00 | 0.00 | 1.00 | $61,710 | $0 |
Roll Value History
| 2026 | N/A | N/A | N/A | N/A | N/A |
| 2025 | $298,230 | $91,880 | $0 | $390,110 | $390,110 |
| 2024 | $298,230 | $61,710 | $0 | $359,940 | $359,940 |
| 2023 | $298,230 | $61,710 | $0 | $359,940 | $359,940 |
| 2022 | $298,230 | $61,710 | $0 | $359,940 | $359,940 |
| 2021 | $269,330 | $61,710 | $0 | $331,040 | $331,040 |
| 2020 | $153,900 | $61,710 | $0 | $215,610 | $215,610 |
| 2019 | $168,010 | $47,600 | $0 | $215,610 | $215,610 |
| 2018 | $120,010 | $47,600 | $0 | $167,610 | $167,610 |
| 2017 | $120,010 | $47,600 | $0 | $167,610 | $167,610 |
| 2016 | $109,100 | $47,600 | $0 | $156,700 | $156,700 |
| 2015 | $109,100 | $47,600 | $0 | $156,700 | $156,700 |
| 2014 | $109,100 | $47,600 | $0 | $156,700 | $156,700 |
| 2013 | $109,100 | $47,600 | $0 | $156,700 | $156,700 |
| 2012 | $83,000 | $47,600 | $0 | $0 | $0 |
| 2011 | $83,000 | $47,600 | $0 | $0 | $0 |
| 2010 | $83,000 | $47,600 | $0 | $0 | $0 |
| 2009 | $97,500 | $47,600 | $0 | $0 | $0 |
| 2008 | $107,600 | $25,200 | $0 | $0 | $0 |
| 2007 | $107,600 | $25,200 | $0 | $0 | $0 |
Deed and Sales History
| 1 | 02/23/2021 | SWD | STATUTORY WARRANTY DEED | MJB BROCK ENTERPRISES LLC | PEACE OF HOME LLC | | | $0.00 | 141461 | 2021-05106 |
| 2 | 09/04/1970 | QCD | QUIT CLAIM DEED | | | | | $0.00 | 0 | 3375-099000 |
Payout Agreement
| No payout information available.. |