Property
Account |
| Property ID: | 4511 | Abbreviated Legal Description: | SUNRISE TERRACE LOT 6 |
| Parcel Number: | 350736590006 | Agent Code: | |
| Type: | Real | | |
| Tax Area: | 75 - CP 250 | Land Use Code | 11 |
| Open Space: | N | DFL | N |
| Historic Property: | N | Remodel Property: | N |
| Multi-Family Redevelopment: | N | | |
| Township: | 7 | Section: | 36 |
| Range: | 35 |
Location |
| Address: | 431 SE HILLCREST DR WA 99324 | Mapsco: | |
| Neighborhood: | A SFR | Map ID: | |
| Neighborhood CD: | 113011 |
Owner |
| Name: | RUVALCABA HERLINDA VICTORIA | Owner ID: | 61657 |
| Mailing Address: | 431 SE HILLCREST DR COLLEGE PLACE, WA 99324 | % Ownership: | 100.0000000000% |
| | | Exemptions: | |
Taxes and Assessment Details
Property Tax Information as of
02/21/2026
Click on "Statement Details" to expand or collapse a tax statement.
* Please enter a valid date ** Please enter a valid date *
Statement Details |
| | TOTAL: | $0.00 | $0.00 | $0.00 | $0.00 | $0.00 | $0.00 |
|
| | $0.00 | $0.00 | $0.00 | $0.00 | $0.00 | $0.00 |
Values
| (+) Improvement Homesite Value: | + | $0 | |
| (+) Improvement Non-Homesite Value: | + | $263,820 | |
| (+) Land Homesite Value: | + | $0 | |
| (+) Land Non-Homesite Value: | + | $41,340 | |
| (+) Curr Use (HS): | + | $0 | $0 |
| (+) Curr Use (NHS): | + | $0 | $0 |
| | | -------------------------- | |
| (=) Market Value: | = | $305,160 | |
| (–) Productivity Loss: | – | $0 | |
| | | -------------------------- | |
| (=) Subtotal: | = | $305,160 | |
| (+) Senior Appraised Value: | + | $0 | |
| (+) Non-Senior Appraised Value: | + | $305,160 | |
| | | -------------------------- | |
| (=) Total Appraised Value: | = | $305,160 | |
| (–) Senior Exemption Loss: | – | $0 | |
| (–) Exemption Loss: | – | $0 | |
| | | -------------------------- | |
| (=) Taxable Value: | = | $305,160 | |
Taxing Jurisdiction
| Owner: | RUVALCABA HERLINDA VICTORIA | | |
| % Ownership: | 100.0000000000% | | |
| Total Value: | $305,160 | | |
| Tax Area: | 75 - CP 250 |
| CERFD | CURRENT EXPENSE REFUND 010 | 0.0000000000 | $305,160 | $305,160 | $0.00 | | |
| CURREXP | CURRENT EXPENSE 010 | 1.0175366760 | $305,160 | $305,160 | $310.51 | | |
| HUMNSERV | HUMAN SERVICES 119 | 0.0250000000 | $305,160 | $305,160 | $7.63 | | |
| SLDREL | SOLDIERS RELIEF 121 | 0.0155990005 | $305,160 | $305,160 | $4.76 | | |
| COLLPLBOND | C OF CP BOND 644 | 0.4374241808 | $305,160 | $305,160 | $133.48 | | |
| COLLPLGEN | CITY OF CP 632 | 1.4453819216 | $305,160 | $305,160 | $441.07 | | |
| EMERGSER | EMS 147 | 0.3792580840 | $305,160 | $305,160 | $115.73 | | |
| EMSRFD | EMS REFUND 147 | 0.0000000000 | $305,160 | $305,160 | $0.00 | | |
| RURALLIB | RURAL LIBRARY 623 | 0.3710609029 | $305,160 | $305,160 | $113.23 | | |
| PORTRFD | PORT REFUND 640 | 0.0000000000 | $305,160 | $305,160 | $0.00 | | |
| PORTWWGEN | PORT OF WW 640 | 0.2460186015 | $305,160 | $305,160 | $75.08 | | |
| SD250BOND | SD #250 BOND 773 | 1.4560608159 | $305,160 | $305,160 | $444.33 | | |
| SD250GEN | SD #250 GENERAL 770 | 2.3880724087 | $305,160 | $305,160 | $728.74 | | |
| ST2 | STATE SCHOOL PART 2 600 | 0.8131451643 | $305,160 | $305,160 | $248.14 | | |
| STATESCHL | STATE SCHOOL 600 | 1.5158548041 | $305,160 | $305,160 | $462.58 | | |
| STREFUND | STATE REFUND LEVY 603 | 0.0000000000 | $305,160 | $305,160 | $0.00 | | |
| | Total Tax Rate: | 10.1104125603 | | | | | |
| | | | | Taxes w/Current Exemptions: | $3,085.28 | | |
| | | | | Taxes w/o Exemptions: | $3,085.28 | | |
Improvement / Building
| Improvement #1: | RESIDENTIAL | State Code: | 11 | 1228.0 sqft | Value: | $263,820 |
| Exterior Wall: | SIDING | Heating/Cooling: | WARM & COOLED AIR | | Number of Bathrooms: | 3 | Number of Bedrooms: | 3 | | Plumbing: | 12 | Roof Covering: | COMP SHINGLE |
|
| | Type | Description | Class CD | Sub Class CD | Year Built | Area |
| | MA | Main Area | 1 | 30 | 1959 | 1228.0 |
| | SI1 | SITE IMPROVEMENT | 1 | 30 | 1959 | 1.5 |
| | ATG | Attached Garage | 1 | 30 | 1959 | 416.0 |
| | S1F | Single One Story Fireplace | 1 | 30 | 1959 | 1.0 |
| | BONU | BONUS ROOM W/FINISH | 1 | 30 | 1959 | 145.0 |
| | WOD | Wood Deck | 1 | 30 | 2010 | 390.0 |
| | RPS | PORCH W/STEPS,ROOF | 1 | 30 | 1959 | 36.0 |
Sketch
Property Image
Land
| 1 | RES 1 | Converted: Residential | 0.1406 | 6125.00 | 0.00 | 0.00 | 1.00 | $41,340 | $0 |
Roll Value History
| 2026 | N/A | N/A | N/A | N/A | N/A |
| 2025 | $249,310 | $61,250 | $0 | $310,560 | $310,560 |
| 2024 | $277,010 | $41,340 | $0 | $318,350 | $318,350 |
| 2023 | $263,820 | $41,340 | $0 | $305,160 | $305,160 |
| 2022 | $229,410 | $41,340 | $0 | $270,750 | $270,750 |
| 2021 | $191,180 | $41,340 | $0 | $232,520 | $232,520 |
| 2020 | $152,940 | $41,340 | $0 | $194,280 | $194,280 |
| 2019 | $157,480 | $36,800 | $0 | $194,280 | $194,280 |
| 2018 | $149,990 | $36,800 | $0 | $186,790 | $186,790 |
| 2017 | $130,420 | $36,800 | $0 | $167,220 | $167,220 |
| 2016 | $113,410 | $36,800 | $0 | $150,210 | $150,210 |
| 2015 | $103,100 | $36,800 | $0 | $139,900 | $139,900 |
| 2014 | $103,100 | $36,800 | $0 | $139,900 | $139,900 |
| 2013 | $103,100 | $36,800 | $0 | $139,900 | $139,900 |
| 2012 | $110,500 | $36,800 | $0 | $0 | $0 |
| 2011 | $118,200 | $36,800 | $0 | $0 | $0 |
| 2010 | $110,800 | $36,800 | $0 | $0 | $0 |
| 2009 | $127,200 | $36,800 | $0 | $0 | $0 |
| 2008 | $90,700 | $18,400 | $0 | $0 | $0 |
| 2007 | $90,700 | $18,400 | $0 | $0 | $0 |
Deed and Sales History
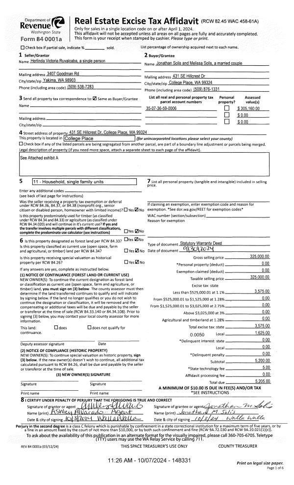
| 1 | 10/07/2024 | SWD | STATUTORY WARRANTY DEED | RUVALCABA HERLINDA VICTORIA | SOLIS JONATHAN & MELISSA | | | $325,000.00 | 148331 | 2024-05814 |
| 2 | 08/31/2017 | SWD | STATUTORY WARRANTY DEED | FACEMIRE DORMA | RUVALCABA HERLINDA VICTORIA | | | $195,000.00 | 133137 | 2017-06855 |
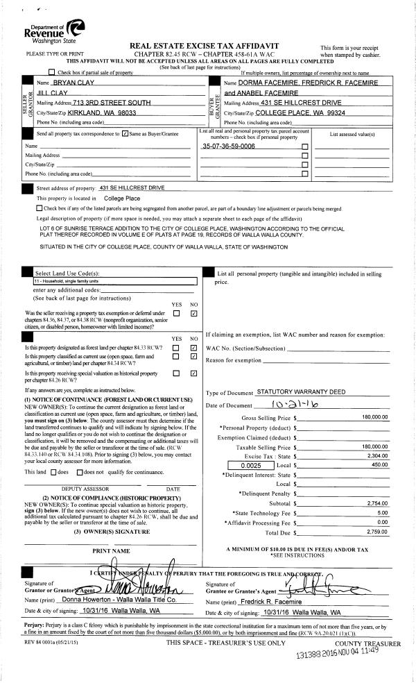
| 3 | 11/04/2016 | SWD | STATUTORY WARRANTY DEED | CLAY BRYAN | FACEMIRE DORMA | | | $180,000.00 | 131388 | 2016-09149 |
| 4 | 03/05/2007 | WARRANTY D | WARRANTY DEED | JIMENEZ, VINCENT & ROSA | CLAY, BRYAN | | | $169,000.00 | 112349 | 2007-02470 |
| 5 | 09/25/1998 | WARRANTY D | WARRANTY DEED | | | | | $83,500.00 | 91317 | 2739-811065 |
Payout Agreement
| No payout information available.. |