Property
Account |
| Property ID: | 4482 | Abbreviated Legal Description: | SCENIC VIEW LOT 4 BLK 7, W1/2 OF LOT 5 BLK 7 |
| Parcel Number: | 350736580704 | Agent Code: | |
| Type: | Real | | |
| Tax Area: | 75 - CP 250 | Land Use Code | 11 |
| Open Space: | N | DFL | N |
| Historic Property: | N | Remodel Property: | N |
| Multi-Family Redevelopment: | N | | |
| Township: | 7 | Section: | 36 |
| Range: | 35 |
Location |
| Address: | 418 SE 12TH ST WA 99324 | Mapsco: | |
| Neighborhood: | A SFR | Map ID: | |
| Neighborhood CD: | 113011 |
Owner |
| Name: | ACEVES RAFAEL & EVELIA | Owner ID: | 77662 |
| Mailing Address: | 418 SE 12TH ST COLLEGE PLACE, WA 99324 | % Ownership: | 100.0000000000% |
| | | Exemptions: | |
Taxes and Assessment Details
Values
| (+) Improvement Homesite Value: | + | N/A | |
| (+) Improvement Non-Homesite Value: | + | N/A | |
| (+) Land Homesite Value: | + | N/A | |
| (+) Land Non-Homesite Value: | + | N/A | Ag / Timber Use Value |
| (+) Curr Use (HS): | + | N/A | N/A |
| (+) Curr Use (NHS): | + | N/A | N/A |
| | | -------------------------- | |
| (=) Market Value: | = | N/A | |
| (–) Productivity Loss: | – | N/A | |
| | | -------------------------- | |
| (=) Subtotal: | = | N/A | |
| (+) Senior Appraised Value: | + | N/A | |
| (+) Non-Senior Appraised Value: | + | N/A | |
| | | -------------------------- | |
| (=) Total Appraised Value: | = | N/A | |
| (–) Senior Exemption Loss: | – | N/A | |
| (–) Exemption Loss: | – | N/A | |
| | | -------------------------- | |
| (=) Taxable Value: | = | N/A | |
Taxing Jurisdiction
| Owner: | ACEVES RAFAEL & EVELIA | | |
| % Ownership: | 100.0000000000% | | |
| Total Value: | N/A | | |
| Tax Area: | 75 - CP 250 |
| CERFD | CURRENT EXPENSE REFUND 010 | N/A | N/A | N/A | N/A | | |
| CURREXP | CURRENT EXPENSE 010 | N/A | N/A | N/A | N/A | | |
| HUMNSERV | HUMAN SERVICES 119 | N/A | N/A | N/A | N/A | | |
| SLDREL | SOLDIERS RELIEF 121 | N/A | N/A | N/A | N/A | | |
| COLLPLBOND | C OF CP BOND 644 | N/A | N/A | N/A | N/A | | |
| COLLPLGEN | CITY OF CP 632 | N/A | N/A | N/A | N/A | | |
| EMERGSER | EMS 147 | N/A | N/A | N/A | N/A | | |
| EMSRFD | EMS REFUND 147 | N/A | N/A | N/A | N/A | | |
| PORTRFD | PORT REFUND 640 | N/A | N/A | N/A | N/A | | |
| PORTWWGEN | PORT OF WW 640 | N/A | N/A | N/A | N/A | | |
| SD250BOND | SD #250 BOND 773 | N/A | N/A | N/A | N/A | | |
| SD250GEN | SD #250 GENERAL 770 | N/A | N/A | N/A | N/A | | |
| ST2 | STATE SCHOOL PART 2 600 | N/A | N/A | N/A | N/A | | |
| STATESCHL | STATE SCHOOL 600 | N/A | N/A | N/A | N/A | | |
| STREFUND | STATE REFUND LEVY 603 | N/A | N/A | N/A | N/A | | |
| | Total Tax Rate: | N/A | | | | | |
| | | | | Taxes w/Current Exemptions: | N/A | | |
| | | | | Taxes w/o Exemptions: | N/A | | |
Improvement / Building
| Improvement #1: | RESIDENTIAL | State Code: | 11 | 1213.0 sqft | Value: | N/A |
| Exterior Wall: | CONCRETE BLOCK | Heating/Cooling: | FORCED AIR | | Number of Bathrooms: | 1 | Number of Bedrooms: | 3 | | Plumbing: | 6 | Roof Covering: | COMP SHINGLE |
|
| | Type | Description | Class CD | Sub Class CD | Year Built | Area |
| | MA | Main Area | 1 | 30 | 1944 | 1213.0 |
| | SI1 | SITE IMPROVEMENT | 1 | 30 | 1944 | 3.0 |
| | OPS | OPEN PORCH W/STEPS | 1 | 30 | 1944 | 92.0 |
| | WOD | Wood Deck | 1 | 30 | 1944 | 56.0 |
| | S1F | Single One Story Fireplace | 1 | 30 | 1944 | 1.0 |
| | RPO | OPEN PORCH W/ROOF | 1 | 30 | 1944 | 552.0 |
Sketch
Property Image
Land
| 1 | RES 1 | Converted: Residential | 0.1946 | 8475.00 | 0.00 | 0.00 | 1.00 | N/A | N/A |
Roll Value History
| 2026 | N/A | N/A | N/A | N/A | N/A |
| 2025 | $226,750 | $84,750 | $0 | $311,500 | $311,500 |
| 2024 | $251,950 | $57,210 | $0 | $309,160 | $309,160 |
| 2023 | $239,950 | $57,210 | $0 | $297,160 | $297,160 |
| 2022 | $208,650 | $57,210 | $0 | $265,860 | $265,860 |
| 2021 | $173,880 | $57,210 | $0 | $231,090 | $231,090 |
| 2020 | $133,750 | $57,210 | $0 | $190,960 | $190,960 |
| 2019 | $145,160 | $45,800 | $0 | $190,960 | $190,960 |
| 2018 | $111,660 | $45,800 | $0 | $157,460 | $157,460 |
| 2017 | $108,410 | $45,800 | $0 | $154,210 | $154,210 |
| 2016 | $94,270 | $45,800 | $0 | $140,070 | $140,070 |
| 2015 | $85,700 | $45,800 | $0 | $131,500 | $131,500 |
| 2014 | $85,700 | $45,800 | $0 | $131,500 | $131,500 |
| 2013 | $85,700 | $45,800 | $0 | $131,500 | $131,500 |
| 2012 | $85,700 | $45,800 | $0 | $0 | $0 |
| 2011 | $85,700 | $45,800 | $0 | $0 | $0 |
| 2010 | $79,400 | $45,800 | $0 | $0 | $0 |
| 2009 | $93,300 | $45,800 | $0 | $0 | $0 |
| 2008 | $58,400 | $23,400 | $0 | $0 | $0 |
| 2007 | $58,400 | $23,400 | $0 | $0 | $0 |
Deed and Sales History
| 1 | 08/04/2025 | SWD | STATUTORY WARRANTY DEED | SULLIVAN JASON J & JENNIFER A | ACEVES RAFAEL & EVELIA | | | $308,000.00 | 149816 | 2025-04561 |
| 2 | 11/30/2018 | SWD | STATUTORY WARRANTY DEED | LOCATI LILA L | SULLIVAN JASON J & JENNIFER A | | | $199,000.00 | 136012 | 2018-09910 |
| 3 | 02/15/2018 | FUL | FULFILLMENT DEED | REED ELI | LOCATI LILA L | | | | 0 | 2018-01310 |
| 4 | 07/15/2016 | REAL ESTAT | REAL ESTATE CONTRACT | | LOCATI LILA L | | | | 130549 | 2016-05538 |
| 5 | 07/01/2016 | REAL ESTAT | REAL ESTATE CONTRACT | REED ELI | LOCATI LILA L | | | $85,000.00 | 0 | 2016-05109 |
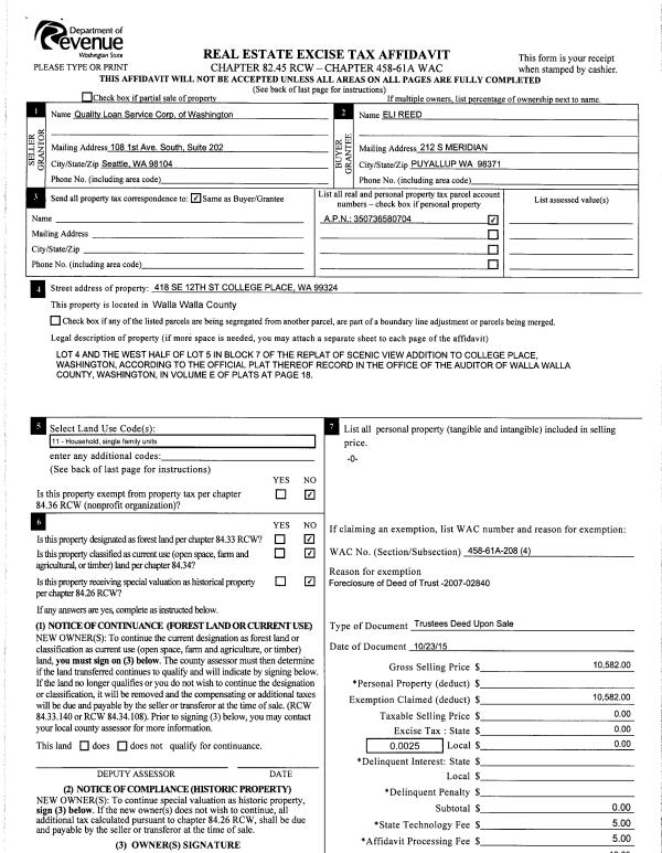
| 6 | 10/29/2015 | TRUSTEES D | TRUSTEE'S DEED | DIAZ TIM & REGINA | REED ELI | | | $10,582.00 | 129097 | 2015-09481 |
| 7 | 09/01/1989 | WARRANTY D | WARRANTY DEED | | | | | $37,550.00 | 0 | 1788-905626 |
|   | |
Payout Agreement
| No payout information available.. |