Property
Account |
| Property ID: | 4479 | Abbreviated Legal Description: | SCENIC VIEW W 9' LOT 18 BLK 6, LOT 19 BLK 6, E 8' OF LOT 20 BLK 6 |
| Parcel Number: | 350736580619 | Agent Code: | |
| Type: | Real | | |
| Tax Area: | 75 - CP 250 | Land Use Code | 11 |
| Open Space: | N | DFL | N |
| Historic Property: | N | Remodel Property: | N |
| Multi-Family Redevelopment: | N | | |
| Township: | 7 | Section: | 36 |
| Range: | 35 |
Location |
| Address: | 227 SE VALLEY DR WA 99324 | Mapsco: | |
| Neighborhood: | A SFR | Map ID: | |
| Neighborhood CD: | 113011 |
Owner |
| Name: | O'BRIEN STEPHANIE ANN | Owner ID: | 71622 |
| Mailing Address: | 227 SE VALLEY DR COLLEGE PLACE, WA 99324 | % Ownership: | 100.0000000000% |
| | | Exemptions: | |
Taxes and Assessment Details
Values
| (+) Improvement Homesite Value: | + | $0 | |
| (+) Improvement Non-Homesite Value: | + | $344,080 | |
| (+) Land Homesite Value: | + | $0 | |
| (+) Land Non-Homesite Value: | + | $50,220 | |
| (+) Curr Use (HS): | + | $0 | $0 |
| (+) Curr Use (NHS): | + | $0 | $0 |
| | | -------------------------- | |
| (=) Market Value: | = | $394,300 | |
| (–) Productivity Loss: | – | $0 | |
| | | -------------------------- | |
| (=) Subtotal: | = | $394,300 | |
| (+) Senior Appraised Value: | + | $0 | |
| (+) Non-Senior Appraised Value: | + | $394,300 | |
| | | -------------------------- | |
| (=) Total Appraised Value: | = | $394,300 | |
| (–) Senior Exemption Loss: | – | $0 | |
| (–) Exemption Loss: | – | $0 | |
| | | -------------------------- | |
| (=) Taxable Value: | = | $394,300 | |
Taxing Jurisdiction
| Owner: | O'BRIEN STEPHANIE ANN | | |
| % Ownership: | 100.0000000000% | | |
| Total Value: | $394,300 | | |
| Tax Area: | 75 - CP 250 |
| CERFD | CURRENT EXPENSE REFUND 010 | 0.0000000000 | $394,300 | $394,300 | $0.00 | | |
| CURREXP | CURRENT EXPENSE 010 | 1.0175366760 | $394,300 | $394,300 | $401.21 | | |
| HUMNSERV | HUMAN SERVICES 119 | 0.0250000000 | $394,300 | $394,300 | $9.86 | | |
| SLDREL | SOLDIERS RELIEF 121 | 0.0155990005 | $394,300 | $394,300 | $6.15 | | |
| COLLPLBOND | C OF CP BOND 644 | 0.4374241808 | $394,300 | $394,300 | $172.48 | | |
| COLLPLGEN | CITY OF CP 632 | 1.4453819216 | $394,300 | $394,300 | $569.91 | | |
| EMERGSER | EMS 147 | 0.3792580840 | $394,300 | $394,300 | $149.54 | | |
| EMSRFD | EMS REFUND 147 | 0.0000000000 | $394,300 | $394,300 | $0.00 | | |
| RURALLIB | RURAL LIBRARY 623 | 0.3710609029 | $394,300 | $394,300 | $146.31 | | |
| PORTRFD | PORT REFUND 640 | 0.0000000000 | $394,300 | $394,300 | $0.00 | | |
| PORTWWGEN | PORT OF WW 640 | 0.2460186015 | $394,300 | $394,300 | $97.01 | | |
| SD250BOND | SD #250 BOND 773 | 1.4560608159 | $394,300 | $394,300 | $574.12 | | |
| SD250GEN | SD #250 GENERAL 770 | 2.3880724087 | $394,300 | $394,300 | $941.62 | | |
| ST2 | STATE SCHOOL PART 2 600 | 0.8131451643 | $394,300 | $394,300 | $320.62 | | |
| STATESCHL | STATE SCHOOL 600 | 1.5158548041 | $394,300 | $394,300 | $597.70 | | |
| STREFUND | STATE REFUND LEVY 603 | 0.0000000000 | $394,300 | $394,300 | $0.00 | | |
| | Total Tax Rate: | 10.1104125603 | | | | | |
| | | | | Taxes w/Current Exemptions: | $3,986.53 | | |
| | | | | Taxes w/o Exemptions: | $3,986.53 | | |
Improvement / Building
| Improvement #1: | RESIDENTIAL | State Code: | 11 | 1204.0 sqft | Value: | $344,080 |
| Exterior Wall: | SIDING | Heating/Cooling: | FORCED AIR | | Number of Bathrooms: | 3 | Number of Bedrooms: | 3 | | Plumbing: | 12 | Roof Covering: | COMP SHINGLE |
|
| | Type | Description | Class CD | Sub Class CD | Year Built | Area |
| | MA | Main Area | 1 | 30 | 1955 | 1204.0 |
| | SI1 | SITE IMPROVEMENT | 1 | 30 | 1955 | 2.0 |
| | BASE | BASEMENT | 1 | 30 | 1955 | 852.0 |
| | BPF | BASEMENT -PARTITIONED FINISH | 1 | 30 | 1955 | 852.0 |
| | BIG | Built In Garage | 1 | 30 | 1955 | 352.0 |
| | D2F | Double 2 Story Fireplace | 1 | 30 | 1955 | 1.0 |
| | BLW | WOOD BALCONIES | 1 | 30 | 1955 | 273.0 |
| | BLW | WOOD BALCONIES | 1 | 30 | 1955 | 215.0 |
| | ATG | Attached Garage | 1 | 30 | 1955 | 209.0 |
| | RPO | OPEN PORCH W/ROOF | 1 | 30 | 1955 | 135.0 |
Sketch
Property Image
Land
| 1 | RES 1 | Converted: Residential | 0.1708 | 7440.00 | 0.00 | 0.00 | 1.00 | $50,220 | $0 |
Roll Value History
| 2026 | N/A | N/A | N/A | N/A | N/A |
| 2025 | $344,080 | $74,400 | $0 | $418,480 | $418,480 |
| 2024 | $344,080 | $50,220 | $0 | $394,300 | $394,300 |
| 2023 | $344,080 | $50,220 | $0 | $394,300 | $394,300 |
| 2022 | $312,800 | $50,220 | $0 | $363,020 | $363,020 |
| 2021 | $272,000 | $50,220 | $0 | $322,220 | $322,220 |
| 2020 | $201,480 | $50,220 | $0 | $251,700 | $251,700 |
| 2019 | $207,100 | $44,600 | $0 | $251,700 | $251,700 |
| 2018 | $172,580 | $44,600 | $0 | $217,180 | $217,180 |
| 2017 | $167,560 | $44,600 | $0 | $212,160 | $212,160 |
| 2016 | $145,700 | $44,600 | $0 | $190,300 | $190,300 |
| 2015 | $145,700 | $44,600 | $0 | $190,300 | $190,300 |
| 2014 | $145,700 | $44,600 | $0 | $190,300 | $190,300 |
| 2013 | $145,700 | $44,600 | $0 | $190,300 | $190,300 |
| 2012 | $145,700 | $44,600 | $0 | $0 | $0 |
| 2011 | $145,700 | $44,600 | $0 | $0 | $0 |
| 2010 | $136,600 | $44,600 | $0 | $0 | $0 |
| 2009 | $156,700 | $44,600 | $0 | $0 | $0 |
| 2008 | $102,500 | $22,300 | $0 | $0 | $0 |
| 2007 | $102,500 | $22,300 | $0 | $0 | $0 |
Deed and Sales History
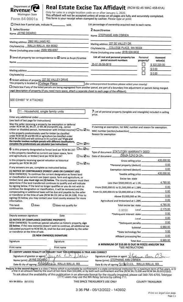
| 1 | 05/12/2022 | SWD | STATUTORY WARRANTY DEED | DIDARIO JAYNE E | O'BRIEN STEPHANIE ANN | | | $435,000.00 | 143932 | 2022-04065 |
| 2 | 05/12/2022 | QCD | QUIT CLAIM DEED | CONLEY GENE R | DIDARIO JAYNE E | | | | 143931 | 2022-04064 |
| 3 | 05/12/2022 | QCD | QUIT CLAIM DEED | GOD WINK PROPERTIES LLC | DIDARIO JAYNE E | | | | 143930 | 2022-04063 |
| 4 | 11/14/2019 | QCD | QUIT CLAIM DEED | CONLEY GENE RAYMOND | GOD WINK PROPERTIES LLC | | | $0.00 | 138072 | 2019-09388 |
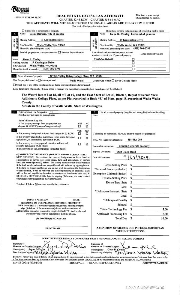
| 5 | 09/28/2018 | QCD | QUIT CLAIM DEED | DIDARIO JAYNE E | CONLEY GENE RAYMOND | | | | 135639 | 2018-08100 |
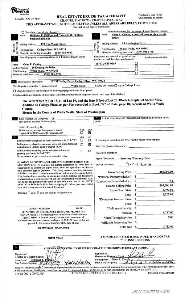
| 6 | 09/28/2018 | SWD | STATUTORY WARRANTY DEED | PHILLIPS HOLLIBERT E | CONLEY GENE RAYMOND | | | $265,000.00 | 135638 | 2018-08099 |
| 7 | 06/01/1973 | WARRANTY D | WARRANTY DEED | | | | | $24,500.00 | 0 | 5052-9565 |
Payout Agreement
| No payout information available.. |