Property
Account |
| Property ID: | 4478 | Abbreviated Legal Description: | SCENIC VIEW W 26' OF LOT 17 BLK 6, E 41' OF LOT 18 BLK 6 |
| Parcel Number: | 350736580618 | Agent Code: | |
| Type: | Real | | |
| Tax Area: | 75 - CP 250 | Land Use Code | 11 |
| Open Space: | N | DFL | N |
| Historic Property: | N | Remodel Property: | N |
| Multi-Family Redevelopment: | N | | |
| Township: | 7 | Section: | 36 |
| Range: | 35 |
Location |
| Address: | 231 SE VALLEY DR WA 99324 | Mapsco: | |
| Neighborhood: | A SFR | Map ID: | |
| Neighborhood CD: | 113011 |
Owner |
| Name: | TITO ESPINOZA SR & ARMIDA ESPINOZA REV LIVING TRUST | Owner ID: | 72792 |
| Mailing Address: | 231 SE VALLEY DR COLLEGE PLACE, WA 99324 | % Ownership: | 100.0000000000% |
| | | Exemptions: | |
Taxes and Assessment Details
Property Tax Information as of
02/21/2026
Click on "Statement Details" to expand or collapse a tax statement.
* Please enter a valid date ** Please enter a valid date *
Statement Details |
| | TOTAL: | $0.00 | $0.00 | $0.00 | $0.00 | $0.00 | $0.00 |
|
| | $0.00 | $0.00 | $0.00 | $0.00 | $0.00 | $0.00 |
Values
| (+) Improvement Homesite Value: | + | $0 | |
| (+) Improvement Non-Homesite Value: | + | $329,320 | |
| (+) Land Homesite Value: | + | $0 | |
| (+) Land Non-Homesite Value: | + | $52,650 | |
| (+) Curr Use (HS): | + | $0 | $0 |
| (+) Curr Use (NHS): | + | $0 | $0 |
| | | -------------------------- | |
| (=) Market Value: | = | $381,970 | |
| (–) Productivity Loss: | – | $0 | |
| | | -------------------------- | |
| (=) Subtotal: | = | $381,970 | |
| (+) Senior Appraised Value: | + | $0 | |
| (+) Non-Senior Appraised Value: | + | $381,970 | |
| | | -------------------------- | |
| (=) Total Appraised Value: | = | $381,970 | |
| (–) Senior Exemption Loss: | – | $0 | |
| (–) Exemption Loss: | – | $0 | |
| | | -------------------------- | |
| (=) Taxable Value: | = | $381,970 | |
Taxing Jurisdiction
| Owner: | TITO ESPINOZA SR & ARMIDA ESPINOZA REV LIVING TRUST | | |
| % Ownership: | 100.0000000000% | | |
| Total Value: | $381,970 | | |
| Tax Area: | 75 - CP 250 |
| CERFD | CURRENT EXPENSE REFUND 010 | 0.0000000000 | $381,970 | $381,970 | $0.00 | | |
| CURREXP | CURRENT EXPENSE 010 | 1.0175366760 | $381,970 | $381,970 | $388.67 | | |
| HUMNSERV | HUMAN SERVICES 119 | 0.0250000000 | $381,970 | $381,970 | $9.55 | | |
| SLDREL | SOLDIERS RELIEF 121 | 0.0155990005 | $381,970 | $381,970 | $5.96 | | |
| COLLPLBOND | C OF CP BOND 644 | 0.4374241808 | $381,970 | $381,970 | $167.08 | | |
| COLLPLGEN | CITY OF CP 632 | 1.4453819216 | $381,970 | $381,970 | $552.09 | | |
| EMERGSER | EMS 147 | 0.3792580840 | $381,970 | $381,970 | $144.87 | | |
| EMSRFD | EMS REFUND 147 | 0.0000000000 | $381,970 | $381,970 | $0.00 | | |
| RURALLIB | RURAL LIBRARY 623 | 0.3710609029 | $381,970 | $381,970 | $141.73 | | |
| PORTRFD | PORT REFUND 640 | 0.0000000000 | $381,970 | $381,970 | $0.00 | | |
| PORTWWGEN | PORT OF WW 640 | 0.2460186015 | $381,970 | $381,970 | $93.97 | | |
| SD250BOND | SD #250 BOND 773 | 1.4560608159 | $381,970 | $381,970 | $556.17 | | |
| SD250GEN | SD #250 GENERAL 770 | 2.3880724087 | $381,970 | $381,970 | $912.17 | | |
| ST2 | STATE SCHOOL PART 2 600 | 0.8131451643 | $381,970 | $381,970 | $310.60 | | |
| STATESCHL | STATE SCHOOL 600 | 1.5158548041 | $381,970 | $381,970 | $579.01 | | |
| STREFUND | STATE REFUND LEVY 603 | 0.0000000000 | $381,970 | $381,970 | $0.00 | | |
| | Total Tax Rate: | 10.1104125603 | | | | | |
| | | | | Taxes w/Current Exemptions: | $3,861.87 | | |
| | | | | Taxes w/o Exemptions: | $3,861.87 | | |
Improvement / Building
| Improvement #1: | RESIDENTIAL | State Code: | 11 | 1192.0 sqft | Value: | $329,320 |
| Exterior Wall: | SIDING | Heating/Cooling: | WARM & COOLED AIR | | Number of Bathrooms: | 2 | Number of Bedrooms: | 3 | | Plumbing: | 9 | Roof Covering: | COMP SHINGLE |
|
| | Type | Description | Class CD | Sub Class CD | Year Built | Area |
| | MA | Main Area | 1 | 30 | 1945 | 1192.0 |
| | SI1 | SITE IMPROVEMENT | 1 | 30 | 1945 | 1.5 |
| | BASE | BASEMENT | 1 | 30 | 1945 | 776.0 |
| | BPF | BASEMENT -PARTITIONED FINISH | 1 | 30 | 1945 | 776.0 |
| | BIG | Built In Garage | 1 | 30 | 1945 | 416.0 |
| | BLW | WOOD BALCONIES | 1 | 30 | 1945 | 212.0 |
| | RPS | PORCH W/STEPS,ROOF | 1 | 30 | 1945 | 52.0 |
| | D2F | Double 2 Story Fireplace | 1 | 30 | 1945 | 1.0 |
Sketch
Property Image
Land
| 1 | RES 1 | Converted: Residential | 0.1791 | 7800.00 | 0.00 | 0.00 | 1.00 | $52,650 | $0 |
Roll Value History
| 2026 | N/A | N/A | N/A | N/A | N/A |
| 2025 | $329,320 | $78,000 | $0 | $407,320 | $407,320 |
| 2024 | $329,320 | $52,650 | $0 | $381,970 | $381,970 |
| 2023 | $329,320 | $52,650 | $0 | $381,970 | $381,970 |
| 2022 | $299,380 | $52,650 | $0 | $352,030 | $352,030 |
| 2021 | $260,330 | $52,650 | $0 | $312,980 | $312,980 |
| 2020 | $179,540 | $52,650 | $0 | $232,190 | $232,190 |
| 2019 | $186,890 | $45,300 | $0 | $232,190 | $232,190 |
| 2018 | $133,490 | $45,300 | $0 | $178,790 | $178,790 |
| 2017 | $129,610 | $45,300 | $0 | $174,910 | $174,910 |
| 2016 | $112,700 | $45,300 | $0 | $158,000 | $158,000 |
| 2015 | $112,700 | $45,300 | $0 | $158,000 | $158,000 |
| 2014 | $112,700 | $45,300 | $0 | $158,000 | $158,000 |
| 2013 | $112,700 | $45,300 | $0 | $158,000 | $158,000 |
| 2012 | $112,700 | $45,300 | $0 | $0 | $0 |
| 2011 | $112,700 | $45,300 | $0 | $0 | $0 |
| 2010 | $105,200 | $45,300 | $0 | $0 | $0 |
| 2009 | $121,900 | $45,300 | $0 | $0 | $0 |
| 2008 | $100,600 | $22,800 | $0 | $0 | $0 |
| 2007 | $100,600 | $22,800 | $0 | $0 | $0 |
Deed and Sales History
| 1 | 04/04/2025 | SWD | STATUTORY WARRANTY DEED | TITO ESPINOZA SR & ARMIDA ESPINOZA REV LIVING TRUST | NATERAS KEVIN | | | $429,000.00 | 149176 | 2025-01782 |
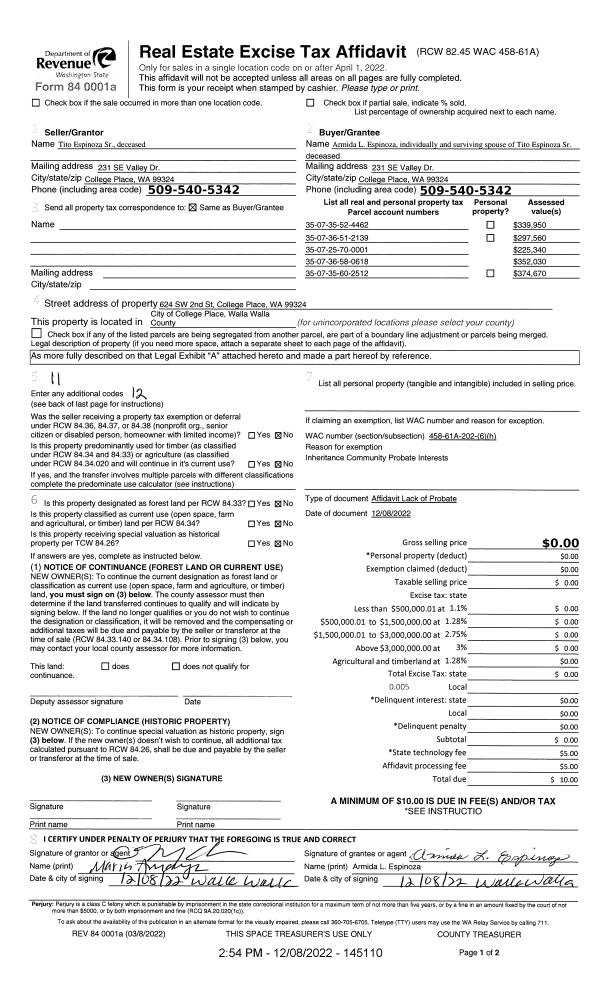
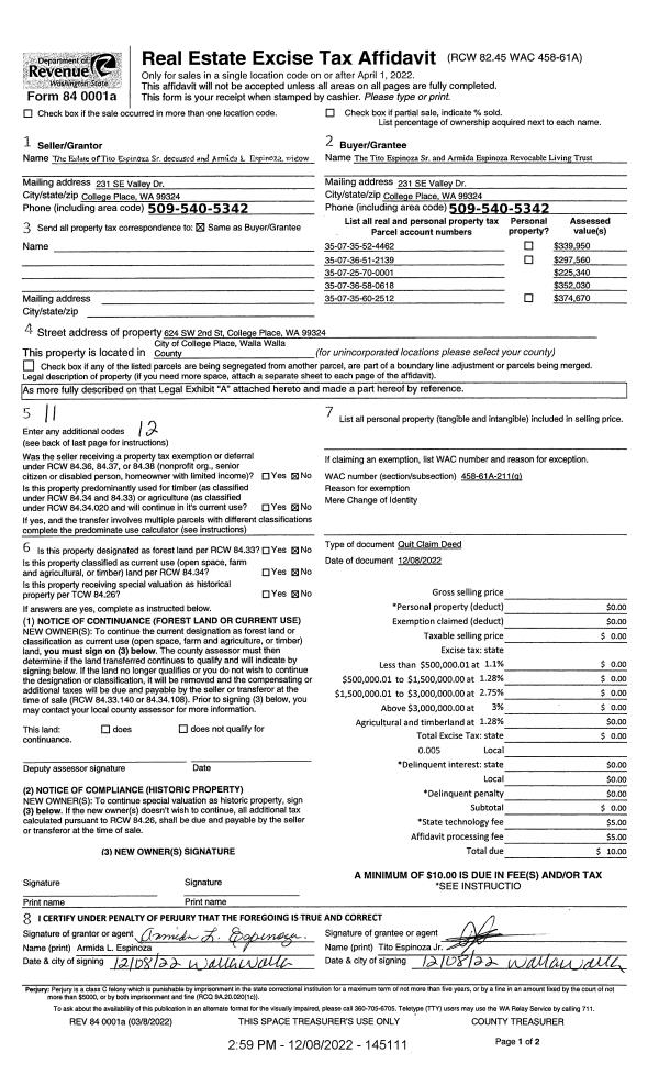
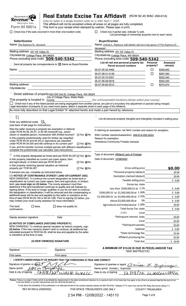
| 2 | 12/08/2022 | QCD | QUIT CLAIM DEED | ESPINOZA ARMIDA L | TITO ESPINOZA SR & ARMIDA ESPINOZA REV LIVING TRUST | | 5-PARCELS | $0.00 | 145111 | 2022-09582 |
| 3 | 12/08/2022 | LOPA | LACK OF PROBATE AFFIDAVIT | ESPINOZA TITO ESTATE OF & ARMIDA | ESPINOZA ARMIDA L | | 5-PARCELS | $0.00 | 145110 | 2022-09581 |
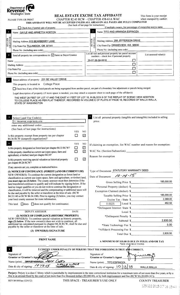
| 4 | 10/16/2015 | SWD | STATUTORY WARRANTY DEED | NORTON GAYLE & ARMETTA | ESPINOZA TITO ESTATE OF & ARMIDA | | | $185,000.00 | 129022 | 2015-09088 |
| 5 | 06/24/1992 | WARRANTY D | WARRANTY DEED | | | | | $80,000.00 | 77094 | 1989-205471 |
Payout Agreement
| No payout information available.. |