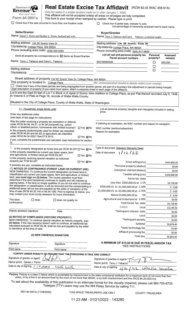
Property
Account |
| Property ID: | 4466 | Abbreviated Legal Description: | SCENIC VIEW LOT 8 AND E 25' OF LOT 7 BLK 4 |
| Parcel Number: | 350736580439 | Agent Code: | |
| Type: | Real | | |
| Tax Area: | 75 - CP 250 | Land Use Code | 11 |
| Open Space: | N | DFL | N |
| Historic Property: | N | Remodel Property: | N |
| Multi-Family Redevelopment: | N | | |
| Township: | 7 | Section: | 36 |
| Range: | 35 |
Location |
| Address: | 134 SE SCENIC VIEW DR WA 99324 | Mapsco: | |
| Neighborhood: | A SFR | Map ID: | |
| Neighborhood CD: | 113011 |
Owner |
| Name: | TABACCO TERRY J & CAROL | Owner ID: | 71013 |
| Mailing Address: | 134 SE SCENIC VIEW DR COLLEGE PLACE, WA 99324 | % Ownership: | 100.0000000000% |
| | | Exemptions: | |
Taxes and Assessment Details
Property Tax Information as of
02/21/2026
Click on "Statement Details" to expand or collapse a tax statement.
* Please enter a valid date ** Please enter a valid date *
Statement Details |
| | TOTAL: | $0.00 | $0.00 | $0.00 | $0.00 | $0.00 | $0.00 |
|
| | $0.00 | $0.00 | $0.00 | $0.00 | $0.00 | $0.00 |
Values
| (+) Improvement Homesite Value: | + | $0 | |
| (+) Improvement Non-Homesite Value: | + | $344,710 | |
| (+) Land Homesite Value: | + | $0 | |
| (+) Land Non-Homesite Value: | + | $60,750 | |
| (+) Curr Use (HS): | + | $0 | $0 |
| (+) Curr Use (NHS): | + | $0 | $0 |
| | | -------------------------- | |
| (=) Market Value: | = | $405,460 | |
| (–) Productivity Loss: | – | $0 | |
| | | -------------------------- | |
| (=) Subtotal: | = | $405,460 | |
| (+) Senior Appraised Value: | + | $0 | |
| (+) Non-Senior Appraised Value: | + | $405,460 | |
| | | -------------------------- | |
| (=) Total Appraised Value: | = | $405,460 | |
| (–) Senior Exemption Loss: | – | $0 | |
| (–) Exemption Loss: | – | $0 | |
| | | -------------------------- | |
| (=) Taxable Value: | = | $405,460 | |
Taxing Jurisdiction
| Owner: | TABACCO TERRY J & CAROL | | |
| % Ownership: | 100.0000000000% | | |
| Total Value: | $405,460 | | |
| Tax Area: | 75 - CP 250 |
| CERFD | CURRENT EXPENSE REFUND 010 | 0.0000000000 | $405,460 | $405,460 | $0.00 | | |
| CURREXP | CURRENT EXPENSE 010 | 1.0175366760 | $405,460 | $405,460 | $412.57 | | |
| HUMNSERV | HUMAN SERVICES 119 | 0.0250000000 | $405,460 | $405,460 | $10.14 | | |
| SLDREL | SOLDIERS RELIEF 121 | 0.0155990005 | $405,460 | $405,460 | $6.32 | | |
| COLLPLBOND | C OF CP BOND 644 | 0.4374241808 | $405,460 | $405,460 | $177.36 | | |
| COLLPLGEN | CITY OF CP 632 | 1.4453819216 | $405,460 | $405,460 | $586.04 | | |
| EMERGSER | EMS 147 | 0.3792580840 | $405,460 | $405,460 | $153.77 | | |
| EMSRFD | EMS REFUND 147 | 0.0000000000 | $405,460 | $405,460 | $0.00 | | |
| RURALLIB | RURAL LIBRARY 623 | 0.3710609029 | $405,460 | $405,460 | $150.45 | | |
| PORTRFD | PORT REFUND 640 | 0.0000000000 | $405,460 | $405,460 | $0.00 | | |
| PORTWWGEN | PORT OF WW 640 | 0.2460186015 | $405,460 | $405,460 | $99.75 | | |
| SD250BOND | SD #250 BOND 773 | 1.4560608159 | $405,460 | $405,460 | $590.37 | | |
| SD250GEN | SD #250 GENERAL 770 | 2.3880724087 | $405,460 | $405,460 | $968.27 | | |
| ST2 | STATE SCHOOL PART 2 600 | 0.8131451643 | $405,460 | $405,460 | $329.70 | | |
| STATESCHL | STATE SCHOOL 600 | 1.5158548041 | $405,460 | $405,460 | $614.62 | | |
| STREFUND | STATE REFUND LEVY 603 | 0.0000000000 | $405,460 | $405,460 | $0.00 | | |
| | Total Tax Rate: | 10.1104125603 | | | | | |
| | | | | Taxes w/Current Exemptions: | $4,099.36 | | |
| | | | | Taxes w/o Exemptions: | $4,099.36 | | |
Improvement / Building
| Improvement #1: | RESIDENTIAL | State Code: | 11 | 1624.0 sqft | Value: | $344,710 |
| Exterior Wall: | SIDING | Heating/Cooling: | WARM & COOLED AIR | | Number of Bathrooms: | 2 | Number of Bedrooms: | 3 | | Plumbing: | 9 | Roof Covering: | COMP SHINGLE |
|
| | Type | Description | Class CD | Sub Class CD | Year Built | Area |
| | MA | Main Area | 1 | 30 | 1949 | 1624.0 |
| | SI1 | SITE IMPROVEMENT | 1 | 30 | 1949 | 1.5 |
| | BASE | BASEMENT | 1 | 30 | 1949 | 1360.0 |
| | DTG | Detached Garage | 1 | 30 | 1949 | 240.0 |
| | CPCG | CARPORT/ GABLE ROOF | 1 | 30 | 1949 | 416.0 |
| | RPS | PORCH W/STEPS,ROOF | 1 | 30 | 1949 | 24.0 |
Sketch
Property Image
Land
| 1 | RES 1 | Converted: Residential | 0.2066 | 9000.00 | 0.00 | 0.00 | 1.00 | $60,750 | $0 |
Roll Value History
| 2026 | N/A | N/A | N/A | N/A | N/A |
| 2025 | $344,710 | $90,000 | $0 | $434,710 | $434,710 |
| 2024 | $344,710 | $60,750 | $0 | $405,460 | $405,460 |
| 2023 | $344,710 | $60,750 | $0 | $405,460 | $405,460 |
| 2022 | $313,370 | $60,750 | $0 | $374,120 | $374,120 |
| 2021 | $272,500 | $60,750 | $0 | $333,250 | $333,250 |
| 2020 | $201,850 | $60,750 | $0 | $262,600 | $262,600 |
| 2019 | $216,300 | $46,300 | $0 | $262,600 | $262,600 |
| 2018 | $180,250 | $46,300 | $0 | $226,550 | $226,550 |
| 2017 | $175,000 | $46,300 | $0 | $221,300 | $221,300 |
| 2016 | $140,000 | $46,300 | $0 | $186,300 | $186,300 |
| 2015 | $140,000 | $46,300 | $0 | $186,300 | $186,300 |
| 2014 | $140,000 | $46,300 | $0 | $186,300 | $186,300 |
| 2013 | $140,000 | $46,300 | $0 | $186,300 | $186,300 |
| 2012 | $140,000 | $46,300 | $0 | $0 | $0 |
| 2011 | $140,000 | $46,300 | $0 | $0 | $0 |
| 2010 | $131,100 | $46,300 | $0 | $0 | $0 |
| 2009 | $150,800 | $46,300 | $0 | $0 | $0 |
| 2008 | $110,300 | $23,800 | $0 | $0 | $0 |
| 2007 | $110,300 | $23,800 | $0 | $0 | $0 |
Deed and Sales History
| 1 | 01/21/2022 | SWD | STATUTORY WARRANTY DEED | PERRIN DANIEL J & HEATHER L | TABACCO TERRY J & CAROL | | | $429,900.00 | 143280 | 2022-00648 |
| 2 | 05/19/2015 | SWD | STATUTORY WARRANTY DEED | COGHILL JACQUALINE L ESTATE OF | PERRIN DANIEL J & HEATHER L | | | $0.00 | 128012 | 2015-04258 |
| 3 | 05/27/2015 | DEATH CERT | DEATH CERTIFICATE | COGHILL FRANK JR & JACQUALINE | COGHILL JACQUALINE L ESTATE OF | | | | 0 | |
| 4 | 12/15/1994 | WARRANTY D | WARRANTY DEED | | | | | $105,000.00 | 83149 | 2269-414089 |
Payout Agreement
| No payout information available.. |