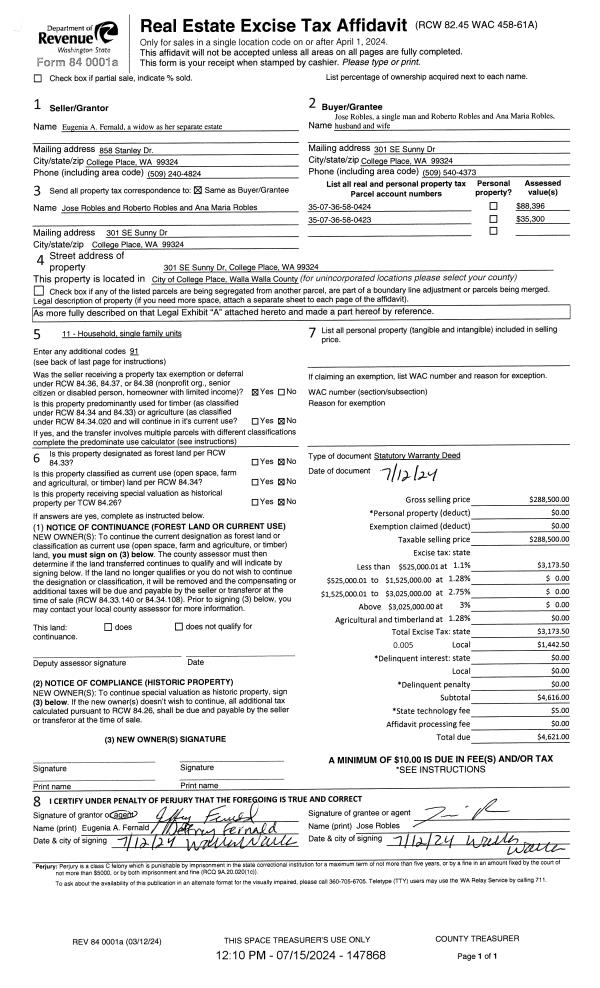
Property
Account |
| Property ID: | 4459 | Abbreviated Legal Description: | SCENIC VIEW W 35' OF LOT 23 BLK 4 |
| Parcel Number: | 350736580423 | Agent Code: | |
| Type: | Real | | |
| Tax Area: | 75 - CP 250 | Land Use Code | 91 |
| Open Space: | N | DFL | N |
| Historic Property: | N | Remodel Property: | N |
| Multi-Family Redevelopment: | N | | |
| Township: | 7 | Section: | 36 |
| Range: | 35 |
Location |
| Address: | WA 99324 | Mapsco: | |
| Neighborhood: | A SFR Contig | Map ID: | |
| Neighborhood CD: | 113097 |
Owner |
| Name: | ROBLES JOSE | Owner ID: | 75655 |
| Mailing Address: | ROBERTO & ANA MARIA ROBLES 301 SE SUNNY DR COLLEGE PLACE, WA 99324 | % Ownership: | 100.0000000000% |
| | | Exemptions: | |
Taxes and Assessment Details
Values
| (+) Improvement Homesite Value: | + | $0 | |
| (+) Improvement Non-Homesite Value: | + | $31,800 | |
| (+) Land Homesite Value: | + | $0 | |
| (+) Land Non-Homesite Value: | + | $4,820 | |
| (+) Curr Use (HS): | + | $0 | $0 |
| (+) Curr Use (NHS): | + | $0 | $0 |
| | | -------------------------- | |
| (=) Market Value: | = | $36,620 | |
| (–) Productivity Loss: | – | $0 | |
| | | -------------------------- | |
| (=) Subtotal: | = | $36,620 | |
| (+) Senior Appraised Value: | + | $0 | |
| (+) Non-Senior Appraised Value: | + | $36,620 | |
| | | -------------------------- | |
| (=) Total Appraised Value: | = | $36,620 | |
| (–) Senior Exemption Loss: | – | $0 | |
| (–) Exemption Loss: | – | $0 | |
| | | -------------------------- | |
| (=) Taxable Value: | = | $36,620 | |
Taxing Jurisdiction
| Owner: | ROBLES JOSE | | |
| % Ownership: | 100.0000000000% | | |
| Total Value: | $36,620 | | |
| Tax Area: | 75 - CP 250 |
| CERFD | CURRENT EXPENSE REFUND 010 | 0.0000000000 | $36,620 | $36,620 | $0.00 | | |
| CURREXP | CURRENT EXPENSE 010 | 0.9851088983 | $36,620 | $36,620 | $36.07 | | |
| HUMNSERV | HUMAN SERVICES 119 | 0.0250000000 | $36,620 | $36,620 | $0.92 | | |
| SLDREL | SOLDIERS RELIEF 121 | 0.0155990000 | $36,620 | $36,620 | $0.57 | | |
| COLLPLBOND | C OF CP BOND 644 | 0.3846009312 | $36,620 | $36,620 | $14.08 | | |
| COLLPLGEN | CITY OF CP 632 | 1.4193088888 | $36,620 | $36,620 | $51.98 | | |
| EMERGSER | EMS 147 | 0.3676811629 | $36,620 | $36,620 | $13.46 | | |
| EMSRFD | EMS REFUND 147 | 0.0000000000 | $36,620 | $36,620 | $0.00 | | |
| RLBRFD | RURAL LIBRARY REFUND 623 | 0.0000000000 | $36,620 | $0 | $0.00 | | |
| RURALLIB | RURAL LIBRARY 623 | 0.0000000000 | $36,620 | $0 | $0.00 | | |
| PORTRFD | PORT REFUND 640 | 0.0000000000 | $36,620 | $36,620 | $0.00 | | |
| PORTWWGEN | PORT OF WW 640 | 0.2344301070 | $36,620 | $36,620 | $8.58 | | |
| SD250BOND | SD #250 BOND 773 | 1.3740031235 | $36,620 | $36,620 | $50.32 | | |
| SD250GEN | SD #250 GENERAL 770 | 2.4999999988 | $36,620 | $36,620 | $91.55 | | |
| ST2 | STATE SCHOOL PART 2 600 | 0.8853714103 | $36,620 | $36,620 | $32.42 | | |
| STATESCHL | STATE SCHOOL 600 | 1.6424571473 | $36,620 | $36,620 | $60.15 | | |
| STREFUND | STATE REFUND LEVY 603 | 0.0000000000 | $36,620 | $36,620 | $0.00 | | |
| | Total Tax Rate: | 9.8335606681 | | | | | |
| | | | | Taxes w/Current Exemptions: | $360.10 | | |
| | | | | Taxes w/o Exemptions: | $360.10 | | |
Improvement / Building
| Improvement #1: | RESIDENTIAL | State Code: | 91 | 0.0 sqft | Value: | $31,800 |
| | Type | Description | Class CD | Sub Class CD | Year Built | Area |
| | DTG | Detached Garage | 1 | 30 | 0 | 564.0 |
| | FBAT | FULL BATH | 1 | 30 | 1985 | 1.0 |
| | GIF | GARAGE INTERIOR FINISH | 1 | 30 | 1985 | 564.0 |
| | WDR | WOOD DECK W/ROOF | 1 | 30 | 0 | 286.0 |
| | WOD | Wood Deck | 1 | 30 | 0 | 104.0 |
| | WOD | Wood Deck | 1 | 30 | 1985 | 68.0 |
Sketch
Property Image
Land
| 1 | RES 1 | Converted: Residential | 0.0964 | 4200.00 | 0.00 | 0.00 | 1.00 | $4,820 | $0 |
Roll Value History
| 2026 | N/A | N/A | N/A | N/A | N/A |
| 2025 | $31,800 | $4,820 | $0 | $36,620 | $36,620 |
| 2024 | $31,800 | $3,500 | $0 | $35,300 | $35,300 |
| 2023 | $31,800 | $3,500 | $0 | $35,300 | $35,300 |
| 2022 | $31,800 | $3,500 | $0 | $35,300 | $35,300 |
| 2021 | $31,800 | $3,500 | $0 | $35,300 | $35,300 |
| 2020 | $31,800 | $3,500 | $0 | $35,300 | $35,300 |
| 2019 | $31,800 | $3,500 | $0 | $35,300 | $35,300 |
| 2018 | $31,800 | $3,500 | $0 | $35,300 | $35,300 |
| 2017 | $31,800 | $3,500 | $0 | $35,300 | $35,300 |
| 2016 | $31,800 | $3,500 | $0 | $35,300 | $35,300 |
| 2015 | $31,800 | $3,500 | $0 | $35,300 | $35,300 |
| 2014 | $31,800 | $3,500 | $0 | $35,300 | $35,300 |
| 2013 | $31,800 | $3,500 | $0 | $35,300 | $35,300 |
| 2012 | $31,800 | $3,500 | $0 | $0 | $0 |
| 2011 | $31,800 | $3,500 | $0 | $0 | $0 |
| 2010 | $31,800 | $3,500 | $0 | $0 | $0 |
| 2009 | $31,800 | $3,500 | $0 | $0 | $0 |
| 2008 | $0 | $3,700 | $0 | $0 | $0 |
| 2007 | $0 | $3,700 | $0 | $0 | $0 |
Deed and Sales History
| 1 | 07/15/2024 | SWD | STATUTORY WARRANTY DEED | FERNALD EUGENIA A ESTATE OF | ROBLES JOSE | | 2-PARCELS | $288,500.00 | 147868 | 2024-03813 |
|   | |
| 2 | 07/15/2024 | COMMUNITY | COMMUNITY PROPERTY AGREEMENT | FERNALD GEORGE W & EUGENIA A | FERNALD EUGENIA A ESTATE OF | | 2-PARCELS | | 0 | 2024-03811 |
| 3 | 01/01/1957 | WARRANTY D | WARRANTY DEED | | | | | $0.00 | 0 | 2820-398105 |
Payout Agreement
| No payout information available.. |