Property
Account |
| Property ID: | 4458 | Abbreviated Legal Description: | SCENIC VIEW LOT 19 BLK 4 |
| Parcel Number: | 350736580419 | Agent Code: | |
| Type: | Real | | |
| Tax Area: | 75 - CP 250 | Land Use Code | 11 |
| Open Space: | N | DFL | N |
| Historic Property: | N | Remodel Property: | N |
| Multi-Family Redevelopment: | N | | |
| Township: | 7 | Section: | 36 |
| Range: | 35 |
Location |
| Address: | 1404 SE CENTRAL AVE WA 99324 | Mapsco: | |
| Neighborhood: | A SFR | Map ID: | |
| Neighborhood CD: | 113011 |
Owner |
| Name: | PATRICK MARK L & LEIKIN L | Owner ID: | 63102 |
| Mailing Address: | 1404 SE CENTRAL AVE COLLEGE PLACE, WA 99324 | % Ownership: | 100.0000000000% |
| | | Exemptions: | |
Taxes and Assessment Details
Property Tax Information as of
02/21/2026
Click on "Statement Details" to expand or collapse a tax statement.
* Please enter a valid date ** Please enter a valid date *
Statement Details |
| | TOTAL: | $0.00 | $0.00 | $0.00 | $0.00 | $0.00 | $0.00 |
|
| | $0.00 | $0.00 | $0.00 | $0.00 | $0.00 | $0.00 |
Values
| (+) Improvement Homesite Value: | + | $0 | |
| (+) Improvement Non-Homesite Value: | + | $224,940 | |
| (+) Land Homesite Value: | + | $0 | |
| (+) Land Non-Homesite Value: | + | $40,500 | |
| (+) Curr Use (HS): | + | $0 | $0 |
| (+) Curr Use (NHS): | + | $0 | $0 |
| | | -------------------------- | |
| (=) Market Value: | = | $265,440 | |
| (–) Productivity Loss: | – | $0 | |
| | | -------------------------- | |
| (=) Subtotal: | = | $265,440 | |
| (+) Senior Appraised Value: | + | $0 | |
| (+) Non-Senior Appraised Value: | + | $265,440 | |
| | | -------------------------- | |
| (=) Total Appraised Value: | = | $265,440 | |
| (–) Senior Exemption Loss: | – | $0 | |
| (–) Exemption Loss: | – | $0 | |
| | | -------------------------- | |
| (=) Taxable Value: | = | $265,440 | |
Taxing Jurisdiction
| Owner: | PATRICK MARK L & LEIKIN L | | |
| % Ownership: | 100.0000000000% | | |
| Total Value: | $265,440 | | |
| Tax Area: | 75 - CP 250 |
| CERFD | CURRENT EXPENSE REFUND 010 | 0.0000000000 | $265,440 | $265,440 | $0.00 | | |
| CURREXP | CURRENT EXPENSE 010 | 1.0175366760 | $265,440 | $265,440 | $270.09 | | |
| HUMNSERV | HUMAN SERVICES 119 | 0.0250000000 | $265,440 | $265,440 | $6.64 | | |
| SLDREL | SOLDIERS RELIEF 121 | 0.0155990005 | $265,440 | $265,440 | $4.14 | | |
| COLLPLBOND | C OF CP BOND 644 | 0.4374241808 | $265,440 | $265,440 | $116.11 | | |
| COLLPLGEN | CITY OF CP 632 | 1.4453819216 | $265,440 | $265,440 | $383.66 | | |
| EMERGSER | EMS 147 | 0.3792580840 | $265,440 | $265,440 | $100.67 | | |
| EMSRFD | EMS REFUND 147 | 0.0000000000 | $265,440 | $265,440 | $0.00 | | |
| RURALLIB | RURAL LIBRARY 623 | 0.3710609029 | $265,440 | $265,440 | $98.49 | | |
| PORTRFD | PORT REFUND 640 | 0.0000000000 | $265,440 | $265,440 | $0.00 | | |
| PORTWWGEN | PORT OF WW 640 | 0.2460186015 | $265,440 | $265,440 | $65.30 | | |
| SD250BOND | SD #250 BOND 773 | 1.4560608159 | $265,440 | $265,440 | $386.50 | | |
| SD250GEN | SD #250 GENERAL 770 | 2.3880724087 | $265,440 | $265,440 | $633.89 | | |
| ST2 | STATE SCHOOL PART 2 600 | 0.8131451643 | $265,440 | $265,440 | $215.84 | | |
| STATESCHL | STATE SCHOOL 600 | 1.5158548041 | $265,440 | $265,440 | $402.37 | | |
| STREFUND | STATE REFUND LEVY 603 | 0.0000000000 | $265,440 | $265,440 | $0.00 | | |
| | Total Tax Rate: | 10.1104125603 | | | | | |
| | | | | Taxes w/Current Exemptions: | $2,683.70 | | |
| | | | | Taxes w/o Exemptions: | $2,683.70 | | |
Improvement / Building
| Improvement #1: | RESIDENTIAL | State Code: | 11 | 1498.0 sqft | Value: | $224,940 |
| Exterior Wall: | PLYWOOD | Foundation: | SLAB FOUNDATION | | Heating/Cooling: | FLOOR FURNACE | Number of Bathrooms: | 2 | | Number of Bedrooms: | 3 | Plumbing: | 9 | | Roof Covering: | COMP SHINGLE |   |   |
|
| | Type | Description | Class CD | Sub Class CD | Year Built | Area |
| | MA | Main Area | 1 | 25 | 1949 | 1498.0 |
| | SI1 | SITE IMPROVEMENT | 1 | 25 | 1949 | 1.0 |
| | RPO | OPEN PORCH W/ROOF | 1 | 25 | 1949 | 182.0 |
Sketch
Property Image
Land
| 1 | RES 1 | Converted: Residential | 0.1377 | 6000.00 | 0.00 | 0.00 | 1.00 | $40,500 | $0 |
Roll Value History
| 2026 | N/A | N/A | N/A | N/A | N/A |
| 2025 | $202,450 | $60,000 | $0 | $262,450 | $262,450 |
| 2024 | $224,940 | $40,500 | $0 | $265,440 | $265,440 |
| 2023 | $224,940 | $40,500 | $0 | $265,440 | $265,440 |
| 2022 | $204,490 | $40,500 | $0 | $244,990 | $244,990 |
| 2021 | $185,900 | $40,500 | $0 | $226,400 | $226,400 |
| 2020 | $143,000 | $40,500 | $0 | $183,500 | $183,500 |
| 2019 | $147,500 | $36,000 | $0 | $183,500 | $183,500 |
| 2018 | $122,910 | $36,000 | $0 | $158,910 | $158,910 |
| 2017 | $119,330 | $36,000 | $0 | $155,330 | $52,136 |
| 2016 | $103,770 | $36,000 | $0 | $139,770 | $52,136 |
| 2015 | $94,340 | $36,000 | $0 | $130,340 | $130,340 |
| 2014 | $99,300 | $36,000 | $0 | $135,300 | $135,300 |
| 2013 | $99,300 | $36,000 | $0 | $135,300 | $135,300 |
| 2012 | $99,300 | $36,000 | $0 | $0 | $0 |
| 2011 | $99,300 | $36,000 | $0 | $0 | $0 |
| 2010 | $92,900 | $36,000 | $0 | $0 | $0 |
| 2009 | $107,200 | $36,000 | $0 | $0 | $0 |
| 2008 | $77,900 | $18,000 | $0 | $0 | $0 |
| 2007 | $77,900 | $18,000 | $0 | $0 | $0 |
Deed and Sales History
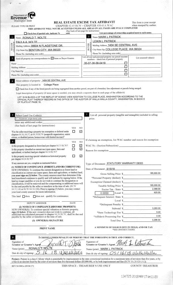
| 1 | 05/17/2018 | SWD | STATUTORY WARRANTY DEED | NOLTE RONALD T & PAULA A | PATRICK MARK L & LEIKIN L | | | $185,000.00 | 134725 | 2018-03882 |
| 2 | 11/14/1986 | WARRANTY D | WARRANTY DEED | | | | | $39,000.00 | 0 | 1608-608934 |
Payout Agreement
| No payout information available.. |