Property
Account |
| Property ID: | 4449 | Abbreviated Legal Description: | SCENIC VIEW LOT 35 BLK 3, E 40' OF LOT 36 BLK 3 |
| Parcel Number: | 350736580335 | Agent Code: | |
| Type: | Real | | |
| Tax Area: | 75 - CP 250 | Land Use Code | 11 |
| Open Space: | N | DFL | N |
| Historic Property: | N | Remodel Property: | N |
| Multi-Family Redevelopment: | N | | |
| Township: | 7 | Section: | 36 |
| Range: | 35 |
Location |
| Address: | 117 SE SCENIC VIEW DR WA 99324 | Mapsco: | |
| Neighborhood: | A SFR | Map ID: | |
| Neighborhood CD: | 113011 |
Owner |
| Name: | VASQUEZ JORGE L | Owner ID: | 54968 |
| Mailing Address: | 117 SE SCENIC VIEW DR COLLEGE PLACE, WA 99324 | % Ownership: | 100.0000000000% |
| | | Exemptions: | |
Taxes and Assessment Details
Property Tax Information as of
02/21/2026
Click on "Statement Details" to expand or collapse a tax statement.
* Please enter a valid date ** Please enter a valid date *
Statement Details |
| | TOTAL: | $0.00 | $0.00 | $0.00 | $0.00 | $0.00 | $0.00 |
|
| | $0.00 | $0.00 | $0.00 | $0.00 | $0.00 | $0.00 |
Values
| (+) Improvement Homesite Value: | + | $0 | |
| (+) Improvement Non-Homesite Value: | + | $278,980 | |
| (+) Land Homesite Value: | + | $0 | |
| (+) Land Non-Homesite Value: | + | $62,400 | |
| (+) Curr Use (HS): | + | $0 | $0 |
| (+) Curr Use (NHS): | + | $0 | $0 |
| | | -------------------------- | |
| (=) Market Value: | = | $341,380 | |
| (–) Productivity Loss: | – | $0 | |
| | | -------------------------- | |
| (=) Subtotal: | = | $341,380 | |
| (+) Senior Appraised Value: | + | $0 | |
| (+) Non-Senior Appraised Value: | + | $341,380 | |
| | | -------------------------- | |
| (=) Total Appraised Value: | = | $341,380 | |
| (–) Senior Exemption Loss: | – | $0 | |
| (–) Exemption Loss: | – | $0 | |
| | | -------------------------- | |
| (=) Taxable Value: | = | $341,380 | |
Taxing Jurisdiction
| Owner: | VASQUEZ JORGE L | | |
| % Ownership: | 100.0000000000% | | |
| Total Value: | $341,380 | | |
| Tax Area: | 75 - CP 250 |
| CERFD | CURRENT EXPENSE REFUND 010 | 0.0000000000 | $341,380 | $341,380 | $0.00 | | |
| CURREXP | CURRENT EXPENSE 010 | 1.0175366760 | $341,380 | $341,380 | $347.37 | | |
| HUMNSERV | HUMAN SERVICES 119 | 0.0250000000 | $341,380 | $341,380 | $8.53 | | |
| SLDREL | SOLDIERS RELIEF 121 | 0.0155990005 | $341,380 | $341,380 | $5.33 | | |
| COLLPLBOND | C OF CP BOND 644 | 0.4374241808 | $341,380 | $341,380 | $149.33 | | |
| COLLPLGEN | CITY OF CP 632 | 1.4453819216 | $341,380 | $341,380 | $493.42 | | |
| EMERGSER | EMS 147 | 0.3792580840 | $341,380 | $341,380 | $129.47 | | |
| EMSRFD | EMS REFUND 147 | 0.0000000000 | $341,380 | $341,380 | $0.00 | | |
| RURALLIB | RURAL LIBRARY 623 | 0.3710609029 | $341,380 | $341,380 | $126.67 | | |
| PORTRFD | PORT REFUND 640 | 0.0000000000 | $341,380 | $341,380 | $0.00 | | |
| PORTWWGEN | PORT OF WW 640 | 0.2460186015 | $341,380 | $341,380 | $83.99 | | |
| SD250BOND | SD #250 BOND 773 | 1.4560608159 | $341,380 | $341,380 | $497.07 | | |
| SD250GEN | SD #250 GENERAL 770 | 2.3880724087 | $341,380 | $341,380 | $815.24 | | |
| ST2 | STATE SCHOOL PART 2 600 | 0.8131451643 | $341,380 | $341,380 | $277.59 | | |
| STATESCHL | STATE SCHOOL 600 | 1.5158548041 | $341,380 | $341,380 | $517.48 | | |
| STREFUND | STATE REFUND LEVY 603 | 0.0000000000 | $341,380 | $341,380 | $0.00 | | |
| | Total Tax Rate: | 10.1104125603 | | | | | |
| | | | | Taxes w/Current Exemptions: | $3,451.49 | | |
| | | | | Taxes w/o Exemptions: | $3,451.49 | | |
Improvement / Building
| Improvement #1: | RESIDENTIAL | State Code: | 11 | 1536.0 sqft | Value: | $278,980 |
| Exterior Wall: | SIDING | Heating/Cooling: | REV-HEAT-PUMP-W/DUCT | | Number of Bathrooms: | 2 | Number of Bedrooms: | 3 | | Plumbing: | 9 | Roof Covering: | COMP SHINGLE |
|
| | Type | Description | Class CD | Sub Class CD | Year Built | Area |
| | MA | Main Area | 1 | 30 | 1958 | 1536.0 |
| | SI1 | SITE IMPROVEMENT | 1 | 30 | 1958 | 1.5 |
| | BASE | BASEMENT | 1 | 30 | 1958 | 1536.0 |
| | BPF | BASEMENT -PARTITIONED FINISH | 1 | 30 | 1958 | 120.0 |
| | ATG | Attached Garage | 1 | 30 | 1958 | 584.0 |
| | S1F | Single One Story Fireplace | 1 | 30 | 1958 | 1.0 |
| | DTG | Detached Garage | 1 | 30 | 1958 | 648.0 |
| | RPS | PORCH W/STEPS,ROOF | 1 | 30 | 1958 | 66.0 |
| | OSP | Open | 1 | 30 | 1958 | 20.0 |
Sketch
Property Image
Land
| 1 | RES 1 | Converted: Residential | 0.2755 | 12000.00 | 0.00 | 0.00 | 1.00 | $62,400 | $0 |
Roll Value History
| 2026 | N/A | N/A | N/A | N/A | N/A |
| 2025 | $251,080 | $93,480 | $0 | $344,560 | $344,560 |
| 2024 | $278,980 | $62,400 | $0 | $341,380 | $341,380 |
| 2023 | $278,980 | $62,400 | $0 | $341,380 | $341,380 |
| 2022 | $253,620 | $62,400 | $0 | $316,020 | $316,020 |
| 2021 | $202,900 | $62,400 | $0 | $265,300 | $265,300 |
| 2020 | $176,430 | $62,400 | $0 | $238,830 | $238,830 |
| 2019 | $190,030 | $48,800 | $0 | $238,830 | $238,830 |
| 2018 | $165,250 | $48,800 | $0 | $214,050 | $214,050 |
| 2017 | $143,690 | $48,800 | $0 | $192,490 | $192,490 |
| 2016 | $124,950 | $48,800 | $0 | $173,750 | $173,750 |
| 2015 | $119,000 | $48,800 | $0 | $167,800 | $167,800 |
| 2014 | $119,000 | $48,800 | $0 | $167,800 | $167,800 |
| 2013 | $119,000 | $48,800 | $0 | $167,800 | $167,800 |
| 2012 | $119,000 | $48,800 | $0 | $0 | $0 |
| 2011 | $119,000 | $48,800 | $0 | $0 | $0 |
| 2010 | $111,000 | $48,800 | $0 | $0 | $0 |
| 2009 | $128,700 | $48,800 | $0 | $0 | $0 |
| 2008 | $122,000 | $26,500 | $0 | $0 | $0 |
| 2007 | $122,000 | $26,500 | $0 | $0 | $0 |
Deed and Sales History
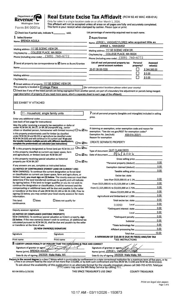
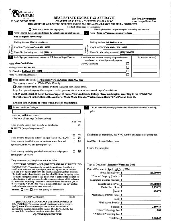
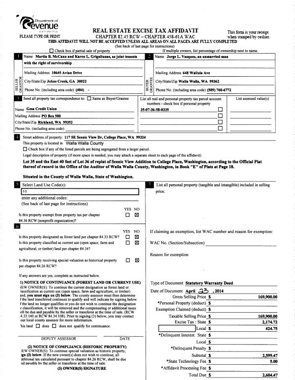
| 1 | 04/30/2014 | SWD | STATUTORY WARRANTY DEED | GRIGALIUNAS KAREN L | VASQUEZ JORGE L | | | $169,900.00 | 125807 | 2014-02935 |
| 2 | 05/28/2013 | WARRANTY D | WARRANTY DEED | MC CANN, MARGARET ANN ESTATE O | GRIGALIUNAS, KAREN L | | | $0.00 | 124014 | 2013-05329 |
| 3 | 11/28/1983 | WARRANTY D | WARRANTY DEED | | | | | $71,000.00 | 0 | 1418-308486 |
Payout Agreement
| No payout information available.. |