Property
Account |
| Property ID: | 4448 | Abbreviated Legal Description: | SCENIC VIEW LOT 28 BLK 3 |
| Parcel Number: | 350736580328 | Agent Code: | |
| Type: | Real | | |
| Tax Area: | 75 - CP 250 | Land Use Code | 11 |
| Open Space: | N | DFL | N |
| Historic Property: | N | Remodel Property: | N |
| Multi-Family Redevelopment: | N | | |
| Township: | 7 | Section: | 36 |
| Range: | 35 |
Location |
| Address: | 227 SE SCENIC VIEW DR WA 99324 | Mapsco: | |
| Neighborhood: | A SFR | Map ID: | |
| Neighborhood CD: | 113011 |
Owner |
| Name: | SIERRA MARCO A | Owner ID: | 64011 |
| Mailing Address: | 227 SE SCENIC VIEW DR COLLEGE PLACE, WA 99324 | % Ownership: | 100.0000000000% |
| | | Exemptions: | |
Taxes and Assessment Details
Property Tax Information as of
02/21/2026
Click on "Statement Details" to expand or collapse a tax statement.
* Please enter a valid date ** Please enter a valid date *
Statement Details |
| | TOTAL: | $0.00 | $0.00 | $0.00 | $0.00 | $0.00 | $0.00 |
|
| | $0.00 | $0.00 | $0.00 | $0.00 | $0.00 | $0.00 |
Values
| (+) Improvement Homesite Value: | + | $0 | |
| (+) Improvement Non-Homesite Value: | + | $172,040 | |
| (+) Land Homesite Value: | + | $0 | |
| (+) Land Non-Homesite Value: | + | $40,500 | |
| (+) Curr Use (HS): | + | $0 | $0 |
| (+) Curr Use (NHS): | + | $0 | $0 |
| | | -------------------------- | |
| (=) Market Value: | = | $212,540 | |
| (–) Productivity Loss: | – | $0 | |
| | | -------------------------- | |
| (=) Subtotal: | = | $212,540 | |
| (+) Senior Appraised Value: | + | $0 | |
| (+) Non-Senior Appraised Value: | + | $212,540 | |
| | | -------------------------- | |
| (=) Total Appraised Value: | = | $212,540 | |
| (–) Senior Exemption Loss: | – | $0 | |
| (–) Exemption Loss: | – | $0 | |
| | | -------------------------- | |
| (=) Taxable Value: | = | $212,540 | |
Taxing Jurisdiction
| Owner: | SIERRA MARCO A | | |
| % Ownership: | 100.0000000000% | | |
| Total Value: | $212,540 | | |
| Tax Area: | 75 - CP 250 |
| CERFD | CURRENT EXPENSE REFUND 010 | 0.0000000000 | $212,540 | $212,540 | $0.00 | | |
| CURREXP | CURRENT EXPENSE 010 | 1.0175366760 | $212,540 | $212,540 | $216.27 | | |
| HUMNSERV | HUMAN SERVICES 119 | 0.0250000000 | $212,540 | $212,540 | $5.31 | | |
| SLDREL | SOLDIERS RELIEF 121 | 0.0155990005 | $212,540 | $212,540 | $3.32 | | |
| COLLPLBOND | C OF CP BOND 644 | 0.4374241808 | $212,540 | $212,540 | $92.97 | | |
| COLLPLGEN | CITY OF CP 632 | 1.4453819216 | $212,540 | $212,540 | $307.20 | | |
| EMERGSER | EMS 147 | 0.3792580840 | $212,540 | $212,540 | $80.61 | | |
| EMSRFD | EMS REFUND 147 | 0.0000000000 | $212,540 | $212,540 | $0.00 | | |
| RURALLIB | RURAL LIBRARY 623 | 0.3710609029 | $212,540 | $212,540 | $78.87 | | |
| PORTRFD | PORT REFUND 640 | 0.0000000000 | $212,540 | $212,540 | $0.00 | | |
| PORTWWGEN | PORT OF WW 640 | 0.2460186015 | $212,540 | $212,540 | $52.29 | | |
| SD250BOND | SD #250 BOND 773 | 1.4560608159 | $212,540 | $212,540 | $309.47 | | |
| SD250GEN | SD #250 GENERAL 770 | 2.3880724087 | $212,540 | $212,540 | $507.56 | | |
| ST2 | STATE SCHOOL PART 2 600 | 0.8131451643 | $212,540 | $212,540 | $172.83 | | |
| STATESCHL | STATE SCHOOL 600 | 1.5158548041 | $212,540 | $212,540 | $322.18 | | |
| STREFUND | STATE REFUND LEVY 603 | 0.0000000000 | $212,540 | $212,540 | $0.00 | | |
| | Total Tax Rate: | 10.1104125603 | | | | | |
| | | | | Taxes w/Current Exemptions: | $2,148.88 | | |
| | | | | Taxes w/o Exemptions: | $2,148.88 | | |
Improvement / Building
| Improvement #1: | RESIDENTIAL | State Code: | 11 | 842.0 sqft | Value: | $172,040 |
| Exterior Wall: | SIDING | Heating/Cooling: | FLOOR FURNACE | | Number of Bathrooms: | 1 | Number of Bedrooms: | 2 | | Plumbing: | 6 | Roof Covering: | COMP SHINGLE |
|
| | Type | Description | Class CD | Sub Class CD | Year Built | Area |
| | MA | Main Area | 1 | 20 | 1950 | 842.0 |
| | SI1 | SITE IMPROVEMENT | 1 | 20 | 1950 | 1.0 |
| | DTG | Detached Garage | 1 | 20 | 1950 | 264.0 |
| | CPC | COVERED CARPORT/PATIO | 1 | 20 | 1950 | 168.0 |
| | RPS | PORCH W/STEPS,ROOF | 1 | 20 | 1950 | 20.0 |
Sketch
Property Image
Land
| 1 | RES 1 | Converted: Residential | 0.1377 | 6000.00 | 0.00 | 0.00 | 1.00 | $40,500 | $0 |
Roll Value History
| 2026 | N/A | N/A | N/A | N/A | N/A |
| 2025 | $154,840 | $60,000 | $0 | $214,840 | $214,840 |
| 2024 | $172,040 | $40,500 | $0 | $212,540 | $212,540 |
| 2023 | $172,040 | $40,500 | $0 | $212,540 | $212,540 |
| 2022 | $172,040 | $40,500 | $0 | $212,540 | $212,540 |
| 2021 | $156,400 | $40,500 | $0 | $196,900 | $196,900 |
| 2020 | $97,750 | $40,500 | $0 | $138,250 | $138,250 |
| 2019 | $102,250 | $36,000 | $0 | $138,250 | $138,250 |
| 2018 | $78,660 | $36,000 | $0 | $114,660 | $114,660 |
| 2017 | $78,660 | $36,000 | $0 | $114,660 | $114,660 |
| 2016 | $71,510 | $36,000 | $0 | $107,510 | $107,510 |
| 2015 | $68,100 | $36,000 | $0 | $104,100 | $104,100 |
| 2014 | $68,100 | $36,000 | $0 | $104,100 | $104,100 |
| 2013 | $68,100 | $36,000 | $0 | $104,100 | $104,100 |
| 2012 | $68,100 | $36,000 | $0 | $0 | $0 |
| 2011 | $68,100 | $36,000 | $0 | $0 | $0 |
| 2010 | $58,600 | $36,000 | $0 | $0 | $0 |
| 2009 | $69,100 | $36,000 | $0 | $0 | $0 |
| 2008 | $55,400 | $18,000 | $0 | $0 | $0 |
| 2007 | $55,400 | $18,000 | $0 | $0 | $0 |
Deed and Sales History
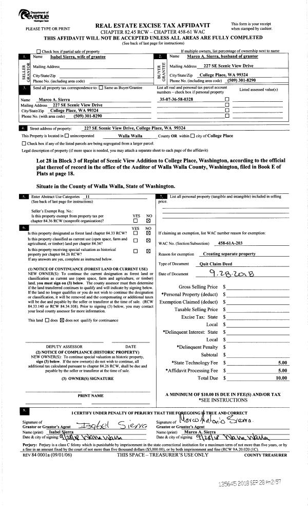
| 1 | 09/28/2018 | QCD | QUIT CLAIM DEED | SIERRA ISABEL | SIERRA MARCO A | | | | 135645 | 2018-08117 |
| 2 | 09/28/2018 | SWD | STATUTORY WARRANTY DEED | BOBBITT MATTHEW & SHANA | SIERRA MARCO A | | | $146,000.00 | 135644 | 2018-08116 |
| 3 | 05/26/2005 | WARRANTY D | WARRANTY DEED | RUB, MARSHALL | BOBBITT, MATTHEW & SHANA | | | $92,000.00 | 107584 | 2005-06359 |
| 4 | 07/03/2001 | WARRANTY D | WARRANTY DEED | | | | | $75,000.00 | 97515 | 3150-106946 |
Payout Agreement
| No payout information available.. |