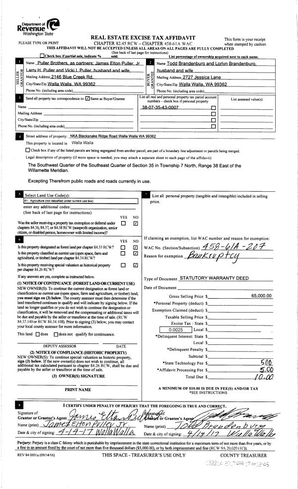
Property
Account |
| Property ID: | 44396 | Abbreviated Legal Description: | 35-7-38 SW 1/4SE 1/4; LESS RD |
| Parcel Number: | 380735430007 | Agent Code: | |
| Type: | Real | | |
| Tax Area: | 120 - 140 | Land Use Code | 19 |
| Open Space: | N | DFL | N |
| Historic Property: | N | Remodel Property: | N |
| Multi-Family Redevelopment: | N | | |
| Township: | 7 | Section: | 35 |
| Range: | 38 |
Location |
| Address: | 6297 BLACKSNAKE RIDGE RD WALLA WALLA, WA 99362 | Mapsco: | |
| Neighborhood: | 0 Farm | Map ID: | |
| Neighborhood CD: | 5250 |
Owner |
| Name: | BRANDENBURG TODD & LORLYN | Owner ID: | 5775 |
| Mailing Address: | 2919 ISAACS AVE WALLA WALLA, WA 99362 | % Ownership: | 100.0000000000% |
| | | Exemptions: | |
Taxes and Assessment Details
Values
| (+) Improvement Homesite Value: | + | $0 | |
| (+) Improvement Non-Homesite Value: | + | $396,260 | |
| (+) Land Homesite Value: | + | $0 | |
| (+) Land Non-Homesite Value: | + | $75,740 | |
| (+) Curr Use (HS): | + | $0 | $0 |
| (+) Curr Use (NHS): | + | $0 | $0 |
| | | -------------------------- | |
| (=) Market Value: | = | $472,000 | |
| (–) Productivity Loss: | – | $0 | |
| | | -------------------------- | |
| (=) Subtotal: | = | $472,000 | |
| (+) Senior Appraised Value: | + | $0 | |
| (+) Non-Senior Appraised Value: | + | $472,000 | |
| | | -------------------------- | |
| (=) Total Appraised Value: | = | $472,000 | |
| (–) Senior Exemption Loss: | – | $0 | |
| (–) Exemption Loss: | – | $0 | |
| | | -------------------------- | |
| (=) Taxable Value: | = | $472,000 | |
Taxing Jurisdiction
| Owner: | BRANDENBURG TODD & LORLYN | | |
| % Ownership: | 100.0000000000% | | |
| Total Value: | $472,000 | | |
| Tax Area: | 120 - 140 |
| CERFD | CURRENT EXPENSE REFUND 010 | 0.0000000000 | $472,000 | $472,000 | $0.00 | | |
| CURREXP | CURRENT EXPENSE 010 | 1.0175366760 | $472,000 | $472,000 | $480.28 | | |
| HUMNSERV | HUMAN SERVICES 119 | 0.0250000000 | $472,000 | $472,000 | $11.80 | | |
| SLDREL | SOLDIERS RELIEF 121 | 0.0155990005 | $472,000 | $472,000 | $7.36 | | |
| EMERGSER | EMS 147 | 0.3792580840 | $472,000 | $472,000 | $179.01 | | |
| EMSRFD | EMS REFUND 147 | 0.0000000000 | $472,000 | $472,000 | $0.00 | | |
| RLBRFD | RURAL LIBRARY REFUND 623 | 0.0000000000 | $472,000 | $472,000 | $0.00 | | |
| RURALLIB | RURAL LIBRARY 623 | 0.3710609029 | $472,000 | $472,000 | $175.14 | | |
| PORTRFD | PORT REFUND 640 | 0.0000000000 | $472,000 | $472,000 | $0.00 | | |
| PORTWWGEN | PORT OF WW 640 | 0.2460186015 | $472,000 | $472,000 | $116.12 | | |
| SD140BOND | SD #140 BOND 764 | 0.8342371393 | $472,000 | $472,000 | $393.76 | | |
| SD140GEN | SD #140 GENERAL 760 | 2.0646500647 | $472,000 | $472,000 | $974.51 | | |
| ST2 | STATE SCHOOL PART 2 600 | 0.8131451643 | $472,000 | $472,000 | $383.80 | | |
| STATESCHL | STATE SCHOOL 600 | 1.5158548041 | $472,000 | $472,000 | $715.48 | | |
| STREFUND | STATE REFUND LEVY 603 | 0.0000000000 | $472,000 | $472,000 | $0.00 | | |
| COROAD | COUNTY ROAD 115 | 1.6549953990 | $472,000 | $472,000 | $781.16 | | |
| CRPRD | COUNTY ROAD REFUND 115 | 0.0000000000 | $472,000 | $472,000 | $0.00 | | |
| | Total Tax Rate: | 8.9373558363 | | | | | |
| | | | | Taxes w/Current Exemptions: | $4,218.42 | | |
| | | | | Taxes w/o Exemptions: | $4,218.42 | | |
Improvement / Building
| Improvement #1: | RESIDENTIAL | State Code: | 19 | 2175.0 sqft | Value: | $396,260 |
| Exterior Wall: | METAL/STEEL | Heating/Cooling: | HEAT PUMP | | Number of Bathrooms: | 2 | Number of Bedrooms: | 3 | | Plumbing: | 9 | Roof Covering: | METAL ROOFING |
|
| | Type | Description | Class CD | Sub Class CD | Year Built | Area |
| | MA | Main Area | POLE LVG G | POLE LVG G | 2021 | 2175.0 |
| | CPC | COVERED CARPORT/PATIO | 1 | 30 | 2021 | 840.0 |
| | UPFL | Upper Floor (included in main area) | 2 | 30 | 2021 | 975.0 |
| | POL3 | POLE BUILDING-CON,ELEC,INSU | 2 | 30 | 2021 | 2800.0 |
| | SI1 | SITE IMPROVEMENT | 2 | 30 | 2021 | 6.0 |
Sketch
Property Image
Land
| 1 | RES 1 | Converted: Residential | 19.4400 | 0.00 | 0.00 | 0.00 | 1.00 | $75,740 | $0 |
Roll Value History
| 2026 | N/A | N/A | N/A | N/A | N/A |
| 2025 | $396,260 | $84,550 | $0 | $480,810 | $480,810 |
| 2024 | $396,260 | $84,550 | $0 | $480,810 | $480,810 |
| 2023 | $396,260 | $75,740 | $0 | $472,000 | $472,000 |
| 2022 | $396,260 | $75,740 | $0 | $472,000 | $472,000 |
| 2021 | $396,260 | $75,740 | $0 | $472,000 | $472,000 |
| 2020 | $0 | $75,740 | $0 | $75,740 | $75,740 |
| 2019 | $0 | $75,740 | $0 | $75,740 | $75,740 |
| 2018 | $0 | $75,740 | $0 | $75,740 | $75,740 |
| 2017 | $0 | $19,450 | $0 | $19,450 | $19,450 |
Deed and Sales History
| 1 | 09/14/2017 | SURVEY | SURVEY | | | 13 | 48 | | 0 | 2017-07249 |
| 2 | 04/17/2017 | WARRANTY D | WARRANTY DEED | | BRANDENBURG TODD & LORLYN | | | $65,000.00 | 132214 | 2017-02831 |
| 3 | 11/05/2004 | WARRANTY D | WARRANTY DEED | PULLER BROTHERS | | | | | 106125 | 2004-12780 |
| 4 | 08/02/1979 | WARRANTY D | WARRANTY DEED | PULLER BROTHERS | | | | $100,000.00 | 0 | 1097-907251 |
|   | |
Payout Agreement
| No payout information available.. |