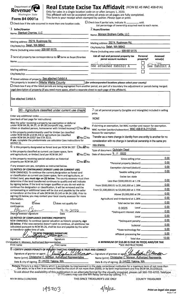
| 1 | 04/01/2022 | QCD | QUIT CLAIM DEED | STARDUST CHERRIES LLC | MONSON BROTHERS CATTLE LLC | | | $0.00 | 143703 | 2022-02815 |
| 2 | 01/10/2017 | SWD | STATUTORY WARRANTY DEED | COX KENNETH M & SHERYL A AND | STARDUST CHERRIES LLC | | 12-PARCELS | $1,750,000.00 | 131742 | 2017-00240 |
|   | |
| 3 | 05/26/2016 | QCD | QUIT CLAIM DEED | | COX KENNETH M & SHERYL A | | | $28,883.00 | 130288 | 2016-03978 |
|   | |
| 4 | 05/26/2016 | QCD | QUIT CLAIM DEED | | MEENACH H & R LIVING TRUST | | | $28,883.00 | 130288 | 2016-03978 |
|   | |
| 5 | 01/30/2015 | QCD | QUIT CLAIM DEED | | COX KENNETH & SHERYL ETAL | 3 PARCELS | | | 127387 | 2015-01023 |
| 6 | 12/31/2013 | QCD | QUIT CLAIM DEED | | COX KEN & SHERYL & H&R MEENACH LIV TRUST & JERRI LYN & KEITH WESTPHAL | | | | 125199 | 2013-12381 |
| 7 | 12/31/2013 | QCD | QUIT CLAIM DEED | | | | | | 125199 | 2013-12381 |
| 8 | 10/21/2009 | WARRANTY D | WARRANTY DEED | "COX, SHERYL ET AL" | | | | | 117525 | 2009-10435 |
| 9 | 05/01/1990 | WARRANTY D | WARRANTY DEED | | | | | | 0 | 1829-002864 |