Property
Account |
| Property ID: | 44014 | Abbreviated Legal Description: | 3-7-38 TRACT 58 IN NE1/4SW1/4 |
| Parcel Number: | 380703310009 | Agent Code: | |
| Type: | Real | | |
| Tax Area: | 309 - 101 | Land Use Code | 11 |
| Open Space: | N | DFL | N |
| Historic Property: | N | Remodel Property: | N |
| Multi-Family Redevelopment: | N | | |
| Township: | 7 | Section: | 3 |
| Range: | 38 |
Location |
| Address: | 6789 LEWIS PEAK RD WA 99329 | Mapsco: | |
| Neighborhood: | A Sup MH MNT PROP | Map ID: | |
| Neighborhood CD: | 513265 |
Owner |
| Name: | BLANC JONATHAN MATTHEW | Owner ID: | 58587 |
| Mailing Address: | PO BOX 144 DIXIE, WA 99329 | % Ownership: | 50.0000000000% |
| | | Exemptions: | |
Taxes and Assessment Details
Property Tax Information as of
02/21/2026
Click on "Statement Details" to expand or collapse a tax statement.
* Please enter a valid date ** Please enter a valid date *
Statement Details |
| | TOTAL: | $0.00 | $0.00 | $0.00 | $0.00 | $0.00 | $0.00 |
|
| | $0.00 | $0.00 | $0.00 | $0.00 | $0.00 | $0.00 |
Values
| (+) Improvement Homesite Value: | + | $0 | |
| (+) Improvement Non-Homesite Value: | + | $137,340 | |
| (+) Land Homesite Value: | + | $0 | |
| (+) Land Non-Homesite Value: | + | $65,750 | |
| (+) Curr Use (HS): | + | $0 | $0 |
| (+) Curr Use (NHS): | + | $0 | $0 |
| | | -------------------------- | |
| (=) Market Value: | = | $203,090 | |
| (–) Productivity Loss: | – | $0 | |
| | | -------------------------- | |
| (=) Subtotal: | = | $203,090 | |
| (+) Senior Appraised Value: | + | $0 | |
| (+) Non-Senior Appraised Value: | + | $203,090 | |
| | | -------------------------- | |
| (=) Total Appraised Value: | = | $203,090 | |
| (–) Senior Exemption Loss: | – | $0 | |
| (–) Exemption Loss: | – | $0 | |
| | | -------------------------- | |
| (=) Taxable Value: | = | $203,090 | |
Taxing Jurisdiction
| Owner: | BLANC JONATHAN MATTHEW | | |
| % Ownership: | 50.0000000000% | | |
| Total Value: | $203,090 | | |
| Tax Area: | 309 - 101 |
| CERFD | CURRENT EXPENSE REFUND 010 | 0.0000000000 | $203,090 | $203,090 | $0.00 | | |
| CURREXP | CURRENT EXPENSE 010 | 0.9851088983 | $203,090 | $203,090 | $200.07 | | |
| HUMNSERV | HUMAN SERVICES 119 | 0.0250000000 | $203,090 | $203,090 | $5.08 | | |
| SLDREL | SOLDIERS RELIEF 121 | 0.0155990000 | $203,090 | $203,090 | $3.17 | | |
| EMERGSER | EMS 147 | 0.3676811629 | $203,090 | $203,090 | $74.67 | | |
| EMSRFD | EMS REFUND 147 | 0.0000000000 | $203,090 | $203,090 | $0.00 | | |
| RLBRFD | RURAL LIBRARY REFUND 623 | 0.0000000000 | $203,090 | $203,090 | $0.00 | | |
| RURALLIB | RURAL LIBRARY 623 | 0.3601547782 | $203,090 | $203,090 | $73.14 | | |
| PORTRFD | PORT REFUND 640 | 0.0000000000 | $203,090 | $203,090 | $0.00 | | |
| PORTWWGEN | PORT OF WW 640 | 0.2344301070 | $203,090 | $203,090 | $47.61 | | |
| SD101CAP | SD #101 CAP 752 | 0.5278383419 | $203,090 | $203,090 | $107.20 | | |
| SD101GEN | SD #101 GENERAL 750 | 0.7380758990 | $203,090 | $203,090 | $149.90 | | |
| ST2 | STATE SCHOOL PART 2 600 | 0.8853714103 | $203,090 | $203,090 | $179.81 | | |
| STATESCHL | STATE SCHOOL 600 | 1.6424571473 | $203,090 | $203,090 | $333.57 | | |
| STREFUND | STATE REFUND LEVY 603 | 0.0000000000 | $203,090 | $203,090 | $0.00 | | |
| COROAD | COUNTY ROAD 115 | 1.6137667997 | $203,090 | $203,090 | $327.74 | | |
| CRPRD | COUNTY ROAD REFUND 115 | 0.0000000000 | $203,090 | $203,090 | $0.00 | | |
| | Total Tax Rate: | 7.3954835446 | | | | | |
| | | | | Taxes w/Current Exemptions: | $1,501.96 | | |
| | | | | Taxes w/o Exemptions: | $1,501.96 | | |
Improvement / Building
| Improvement #1: | MANUFACTURED HOME | State Code: | 11 | 1709.0 sqft | Value: | $274,680 |
| Exterior Wall: | HARDBOARD | Heating/Cooling: | FORCED AIR | | Number of Bathrooms: | 2 | Number of Bedrooms: | 3 | | Plumbing: | 8 | Roof Covering: | COMP SHINGLE |
|
| | Type | Description | Class CD | Sub Class CD | Year Built | Area |
| | MOBHOME | MANUFACTURD HOMES | 1 | 40 | 1995 | 1709.0 |
| | MI1 | MH SET-UP COSTS | 1 | 40 | 1995 | 1.0 |
| | POL1 | POLE BUILDING-GRAVEL | 1 | 30 | 1995 | 1152.0 |
| | WOD | Wood Deck | 1 | 40 | 1995 | 264.0 |
Sketch
| No sketches available for this property. |
Property Image
Land
| 1 | RES 1 | Converted: Residential | 20.2500 | 0.00 | 0.00 | 0.00 | 1.00 | $131,500 | $0 |
Roll Value History
| 2026 | N/A | N/A | N/A | N/A | N/A |
| 2025 | $137,340 | $65,750 | $0 | $203,090 | $203,090 |
| 2024 | $114,450 | $65,750 | $0 | $180,200 | $180,200 |
| 2023 | $104,050 | $50,375 | $0 | $154,425 | $154,425 |
| 2022 | $83,240 | $50,375 | $0 | $133,615 | $133,615 |
| 2021 | $69,365 | $50,375 | $0 | $119,740 | $119,740 |
| 2020 | $57,805 | $50,375 | $0 | $108,180 | $108,180 |
| 2019 | $57,805 | $50,375 | $0 | $108,180 | $108,180 |
| 2018 | $57,805 | $50,375 | $0 | $108,180 | $108,180 |
| 2017 | $57,805 | $45,800 | $0 | $103,605 | $103,605 |
| 2016 | $57,805 | $45,800 | $0 | $103,605 | $103,605 |
| 2015 | $57,805 | $45,800 | $0 | $103,605 | $103,605 |
Deed and Sales History
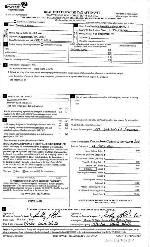
| 1 | 04/22/2016 | DPR | DEED OF PERSONAL REPRESENTATIVE | | BLANC JONATHAN MATTHEW | | | | 130080 | 2016-03006 |
| 2 | 04/22/2016 | DPR | DEED OF PERSONAL REPRESENTATIVE | | BLANC MARCEL CHRISTOPHER JR | | | | 130080 | 2016-03006 |
| 3 | 06/21/1995 | WARRANTY D | WARRANTY DEED | | | | | $58,000.00 | 84215 | 2319-505709 |
|   | |
Payout Agreement
| No payout information available.. |