Property
Account |
| Property ID: | 4390 | Abbreviated Legal Description: | KINZERS LOT 1 BLK 2 |
| Parcel Number: | 350736560201 | Agent Code: | |
| Type: | Real | | |
| Tax Area: | 77 - CP-250-F | Land Use Code | 11 |
| Open Space: | N | DFL | N |
| Historic Property: | N | Remodel Property: | N |
| Multi-Family Redevelopment: | N | | |
| Township: | 7 | Section: | 36 |
| Range: | 35 |
Location |
| Address: | 1245 SE DEWEY DR WA 99324 | Mapsco: | |
| Neighborhood: | A Superior SFR | Map ID: | |
| Neighborhood CD: | 113211 |
Owner |
| Name: | JOHANSON MICHAEL A & MAYBELLE E | Owner ID: | 69456 |
| Mailing Address: | 1245 SE DEWEY DR COLLEGE PLACE, WA 99324 | % Ownership: | 100.0000000000% |
| | | Exemptions: | |
Taxes and Assessment Details
Values
| (+) Improvement Homesite Value: | + | $0 | |
| (+) Improvement Non-Homesite Value: | + | $361,300 | |
| (+) Land Homesite Value: | + | $0 | |
| (+) Land Non-Homesite Value: | + | $70,000 | |
| (+) Curr Use (HS): | + | $0 | $0 |
| (+) Curr Use (NHS): | + | $0 | $0 |
| | | -------------------------- | |
| (=) Market Value: | = | $431,300 | |
| (–) Productivity Loss: | – | $0 | |
| | | -------------------------- | |
| (=) Subtotal: | = | $431,300 | |
| (+) Senior Appraised Value: | + | $0 | |
| (+) Non-Senior Appraised Value: | + | $431,300 | |
| | | -------------------------- | |
| (=) Total Appraised Value: | = | $431,300 | |
| (–) Senior Exemption Loss: | – | $0 | |
| (–) Exemption Loss: | – | $0 | |
| | | -------------------------- | |
| (=) Taxable Value: | = | $431,300 | |
Taxing Jurisdiction
| Owner: | JOHANSON MICHAEL A & MAYBELLE E | | |
| % Ownership: | 100.0000000000% | | |
| Total Value: | $431,300 | | |
| Tax Area: | 77 - CP-250-F |
| CERFD | CURRENT EXPENSE REFUND 010 | 0.0000000000 | $431,300 | $431,300 | $0.00 | | |
| CURREXP | CURRENT EXPENSE 010 | 1.0175366760 | $431,300 | $431,300 | $438.86 | | |
| HUMNSERV | HUMAN SERVICES 119 | 0.0250000000 | $431,300 | $431,300 | $10.78 | | |
| SLDREL | SOLDIERS RELIEF 121 | 0.0155990005 | $431,300 | $431,300 | $6.73 | | |
| COLLPLBOND | C OF CP BOND 644 | 0.4374241808 | $431,300 | $431,300 | $188.66 | | |
| COLLPLGEN | CITY OF CP 632 | 1.4453819216 | $431,300 | $431,300 | $623.39 | | |
| EMERGSER | EMS 147 | 0.3792580840 | $431,300 | $431,300 | $163.57 | | |
| EMSRFD | EMS REFUND 147 | 0.0000000000 | $431,300 | $431,300 | $0.00 | | |
| RURALLIB | RURAL LIBRARY 623 | 0.3710609029 | $431,300 | $431,300 | $160.04 | | |
| PORTRFD | PORT REFUND 640 | 0.0000000000 | $431,300 | $431,300 | $0.00 | | |
| PORTWWGEN | PORT OF WW 640 | 0.2460186015 | $431,300 | $431,300 | $106.11 | | |
| SD250BOND | SD #250 BOND 773 | 1.4560608159 | $431,300 | $431,300 | $628.00 | | |
| SD250GEN | SD #250 GENERAL 770 | 2.3880724087 | $431,300 | $431,300 | $1,029.98 | | |
| ST2 | STATE SCHOOL PART 2 600 | 0.8131451643 | $431,300 | $431,300 | $350.71 | | |
| STATESCHL | STATE SCHOOL 600 | 1.5158548041 | $431,300 | $431,300 | $653.79 | | |
| STREFUND | STATE REFUND LEVY 603 | 0.0000000000 | $431,300 | $431,300 | $0.00 | | |
| | Total Tax Rate: | 10.1104125603 | | | | | |
| | | | | Taxes w/Current Exemptions: | $4,360.62 | | |
| | | | | Taxes w/o Exemptions: | $4,360.62 | | |
Improvement / Building
| Improvement #1: | RESIDENTIAL | State Code: | 11 | 1493.0 sqft | Value: | $361,300 |
| Exterior Wall: | PLYWOOD | Heating/Cooling: | REV-HEAT-PUMP-W/DUCT | | Number of Bathrooms: | 3 | Number of Bedrooms: | 3 | | Plumbing: | 12 | Roof Covering: | COMP SHINGLE |
|
| | Type | Description | Class CD | Sub Class CD | Year Built | Area |
| | MA | Main Area | 1 | 30 | 1979 | 1493.0 |
| | SI1 | SITE IMPROVEMENT | 1 | 30 | 1979 | 1.5 |
| | BASE | BASEMENT | 1 | 30 | 1979 | 1493.0 |
| | BPF | BASEMENT -PARTITIONED FINISH | 1 | 30 | 1979 | 800.0 |
| | ATG | Attached Garage | 1 | 30 | 1979 | 462.0 |
| | BLW | WOOD BALCONIES | 1 | 30 | 1979 | 513.0 |
| | RPC | OPEN PORCH W/ROOF , CEILED | 1 | 30 | 1979 | 132.0 |
| | S2F | Single 2S Fireplace | 1 | 30 | 1979 | 1.0 |
| | UTST | Utility Storage Shed | 1 | 30 | 1979 | 192.0 |
Sketch
Property Image
Land
| 1 | RES 1 | Converted: Residential | 0.2642 | 11509.00 | 0.00 | 0.00 | 1.00 | $70,000 | $0 |
Roll Value History
| 2026 | N/A | N/A | N/A | N/A | N/A |
| 2025 | $303,500 | $130,000 | $0 | $433,500 | $433,500 |
| 2024 | $379,370 | $70,000 | $0 | $449,370 | $449,370 |
| 2023 | $361,300 | $70,000 | $0 | $431,300 | $431,300 |
| 2022 | $289,040 | $70,000 | $0 | $359,040 | $359,040 |
| 2021 | $222,340 | $70,000 | $0 | $292,340 | $292,340 |
| 2020 | $193,340 | $70,000 | $0 | $263,340 | $263,340 |
| 2019 | $203,340 | $60,000 | $0 | $263,340 | $263,340 |
| 2018 | $169,450 | $60,000 | $0 | $229,450 | $229,450 |
| 2017 | $154,040 | $60,000 | $0 | $214,040 | $214,040 |
| 2016 | $140,040 | $60,000 | $0 | $200,040 | $200,040 |
| 2015 | $140,040 | $60,000 | $0 | $200,040 | $200,040 |
| 2014 | $116,700 | $60,000 | $0 | $176,700 | $176,700 |
| 2013 | $116,700 | $60,000 | $0 | $176,700 | $176,700 |
| 2012 | $126,000 | $60,000 | $0 | $0 | $0 |
| 2011 | $126,000 | $60,000 | $0 | $0 | $0 |
| 2010 | $126,000 | $60,000 | $0 | $0 | $0 |
| 2009 | $135,800 | $60,000 | $0 | $0 | $0 |
| 2008 | $120,000 | $26,100 | $0 | $0 | $0 |
| 2007 | $120,000 | $26,100 | $0 | $0 | $0 |
Deed and Sales History
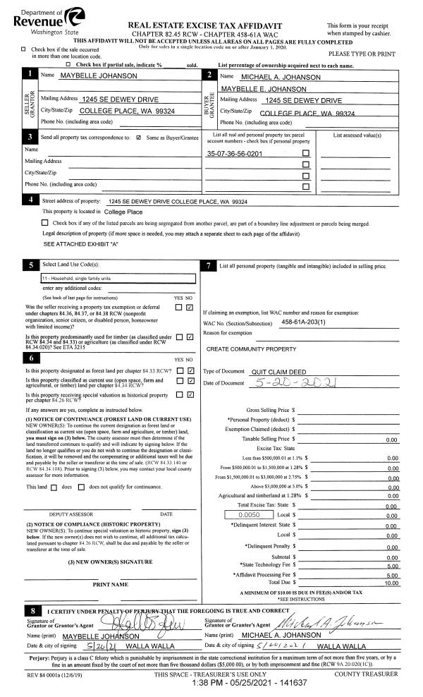
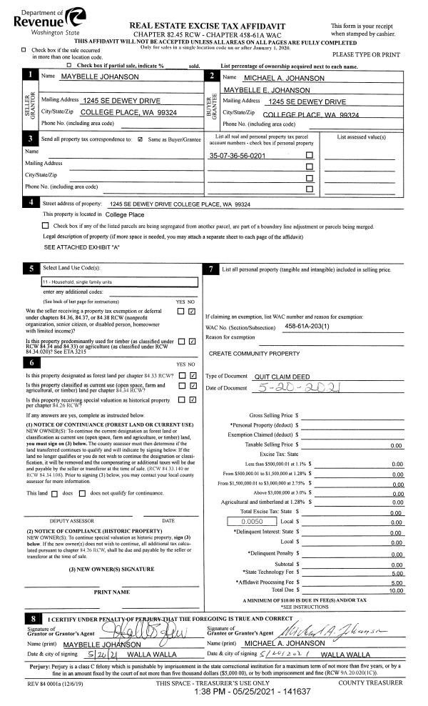
| 1 | 05/20/2021 | QCD | QUIT CLAIM DEED | JOHANSON MAYBELLE | JOHANSON MICHAEL A & MAYBELLE E | | | $0.00 | 141637 | 2021-06317 |
| 2 | 03/22/2013 | WARRANTY D | WARRANTY DEED | MAXON, DAVID Y & IRENE D | JOHANSON, MAYBELLE | | | $208,000.00 | 123657 | 2013-02752 |
| 3 | 03/22/2013 | QCD | QUIT CLAIM DEED | JOHANSON, MICHAEL A | JOHANSON, MAYBELLE | | | $0.00 | 123656 | 2013-02750 |
| 4 | 10/26/1982 | WARRANTY D | WARRANTY DEED | | | | | $81,000.00 | 0 | 1348-207367 |
Payout Agreement
| No payout information available.. |