Property
Account |
| Property ID: | 4381 | Abbreviated Legal Description: | HIGHLAND PARK #2 LOT 7 BLK 4 |
| Parcel Number: | 350736550407 | Agent Code: | |
| Type: | Real | | |
| Tax Area: | 77 - CP-250-F | Land Use Code | 11 |
| Open Space: | N | DFL | N |
| Historic Property: | N | Remodel Property: | N |
| Multi-Family Redevelopment: | N | | |
| Township: | 7 | Section: | 36 |
| Range: | 35 |
Location |
| Address: | 339 SE DAVIN DR WA 99324 | Mapsco: | |
| Neighborhood: | A Superior SFR | Map ID: | |
| Neighborhood CD: | 113211 |
Owner |
| Name: | WOOTERS BRYON P & AGNIESZKA K | Owner ID: | 65200 |
| Mailing Address: | 339 SE DAVIN DR COLLEGE PLACE, WA 99324 | % Ownership: | 100.0000000000% |
| | | Exemptions: | |
Taxes and Assessment Details
Property Tax Information as of
02/21/2026
Click on "Statement Details" to expand or collapse a tax statement.
* Please enter a valid date ** Please enter a valid date *
Statement Details |
| | TOTAL: | $0.00 | $0.00 | $0.00 | $0.00 | $0.00 | $0.00 |
|
| | $0.00 | $0.00 | $0.00 | $0.00 | $0.00 | $0.00 |
Values
| (+) Improvement Homesite Value: | + | $0 | |
| (+) Improvement Non-Homesite Value: | + | $294,090 | |
| (+) Land Homesite Value: | + | $0 | |
| (+) Land Non-Homesite Value: | + | $75,000 | |
| (+) Curr Use (HS): | + | $0 | $0 |
| (+) Curr Use (NHS): | + | $0 | $0 |
| | | -------------------------- | |
| (=) Market Value: | = | $369,090 | |
| (–) Productivity Loss: | – | $0 | |
| | | -------------------------- | |
| (=) Subtotal: | = | $369,090 | |
| (+) Senior Appraised Value: | + | $0 | |
| (+) Non-Senior Appraised Value: | + | $369,090 | |
| | | -------------------------- | |
| (=) Total Appraised Value: | = | $369,090 | |
| (–) Senior Exemption Loss: | – | $0 | |
| (–) Exemption Loss: | – | $0 | |
| | | -------------------------- | |
| (=) Taxable Value: | = | $369,090 | |
Taxing Jurisdiction
| Owner: | WOOTERS BRYON P & AGNIESZKA K | | |
| % Ownership: | 100.0000000000% | | |
| Total Value: | $369,090 | | |
| Tax Area: | 77 - CP-250-F |
| CERFD | CURRENT EXPENSE REFUND 010 | 0.0000000000 | $369,090 | $369,090 | $0.00 | | |
| CURREXP | CURRENT EXPENSE 010 | 1.0175366760 | $369,090 | $369,090 | $375.56 | | |
| HUMNSERV | HUMAN SERVICES 119 | 0.0250000000 | $369,090 | $369,090 | $9.23 | | |
| SLDREL | SOLDIERS RELIEF 121 | 0.0155990005 | $369,090 | $369,090 | $5.76 | | |
| COLLPLBOND | C OF CP BOND 644 | 0.4374241808 | $369,090 | $369,090 | $161.45 | | |
| COLLPLGEN | CITY OF CP 632 | 1.4453819216 | $369,090 | $369,090 | $533.48 | | |
| EMERGSER | EMS 147 | 0.3792580840 | $369,090 | $369,090 | $139.98 | | |
| EMSRFD | EMS REFUND 147 | 0.0000000000 | $369,090 | $369,090 | $0.00 | | |
| RURALLIB | RURAL LIBRARY 623 | 0.3710609029 | $369,090 | $369,090 | $136.95 | | |
| PORTRFD | PORT REFUND 640 | 0.0000000000 | $369,090 | $369,090 | $0.00 | | |
| PORTWWGEN | PORT OF WW 640 | 0.2460186015 | $369,090 | $369,090 | $90.80 | | |
| SD250BOND | SD #250 BOND 773 | 1.4560608159 | $369,090 | $369,090 | $537.42 | | |
| SD250GEN | SD #250 GENERAL 770 | 2.3880724087 | $369,090 | $369,090 | $881.41 | | |
| ST2 | STATE SCHOOL PART 2 600 | 0.8131451643 | $369,090 | $369,090 | $300.12 | | |
| STATESCHL | STATE SCHOOL 600 | 1.5158548041 | $369,090 | $369,090 | $559.49 | | |
| STREFUND | STATE REFUND LEVY 603 | 0.0000000000 | $369,090 | $369,090 | $0.00 | | |
| | Total Tax Rate: | 10.1104125603 | | | | | |
| | | | | Taxes w/Current Exemptions: | $3,731.65 | | |
| | | | | Taxes w/o Exemptions: | $3,731.65 | | |
Improvement / Building
| Improvement #1: | RESIDENTIAL | State Code: | 11 | 1320.0 sqft | Value: | $294,090 |
| Exterior Wall: | PLYWOOD | Heating/Cooling: | REV-HEAT-PUMP-W/DUCT | | Number of Bathrooms: | 2 | Number of Bedrooms: | 2 | | Plumbing: | 9 | Roof Covering: | COMP SHINGLE |
|
| | Type | Description | Class CD | Sub Class CD | Year Built | Area |
| | MA | Main Area | 1 | 35 | 1976 | 1320.0 |
| | RPC | OPEN PORCH W/ROOF , CEILED | 1 | 35 | 1976 | 180.0 |
| | SI1 | SITE IMPROVEMENT | 1 | 35 | 1976 | 2.0 |
| | BASE | BASEMENT | 1 | 35 | 1976 | 1080.0 |
| | ATG | Attached Garage | 1 | 35 | 1976 | 456.0 |
| | S1F | Single One Story Fireplace | 1 | 35 | 1976 | 1.0 |
| | WOD | Wood Deck | 1 | 35 | 1976 | 205.0 |
| | TOOL | TOOL SHED | 1 | 35 | 1976 | 120.0 |
| | WDR | WOOD DECK W/ROOF | 1 | 35 | 1976 | 48.0 |
Sketch
Property Image
Land
| 1 | RES 1 | Converted: Residential | 0.3955 | 17227.00 | 0.00 | 0.00 | 1.00 | $75,000 | $0 |
Roll Value History
| 2026 | N/A | N/A | N/A | N/A | N/A |
| 2025 | $258,800 | $140,000 | $0 | $398,800 | $398,800 |
| 2024 | $323,500 | $75,000 | $0 | $398,500 | $398,500 |
| 2023 | $294,090 | $75,000 | $0 | $369,090 | $369,090 |
| 2022 | $267,350 | $75,000 | $0 | $342,350 | $342,350 |
| 2021 | $232,480 | $75,000 | $0 | $307,480 | $307,480 |
| 2020 | $145,300 | $75,000 | $0 | $220,300 | $220,300 |
| 2019 | $160,300 | $60,000 | $0 | $220,300 | $220,300 |
| 2018 | $152,670 | $60,000 | $0 | $212,670 | $212,670 |
| 2017 | $152,670 | $60,000 | $0 | $212,670 | $135,400 |
| 2016 | $145,400 | $60,000 | $0 | $205,400 | $135,400 |
| 2015 | $145,400 | $60,000 | $0 | $205,400 | $205,400 |
| 2014 | $145,400 | $60,000 | $0 | $205,400 | $205,400 |
| 2013 | $145,400 | $60,000 | $0 | $205,400 | $205,400 |
| 2012 | $145,400 | $60,000 | $0 | $0 | $0 |
| 2011 | $145,400 | $60,000 | $0 | $0 | $0 |
| 2010 | $145,400 | $60,000 | $0 | $0 | $0 |
| 2009 | $156,200 | $60,000 | $0 | $0 | $0 |
| 2008 | $111,900 | $30,000 | $0 | $0 | $0 |
| 2007 | $111,900 | $30,000 | $0 | $0 | $0 |
Deed and Sales History
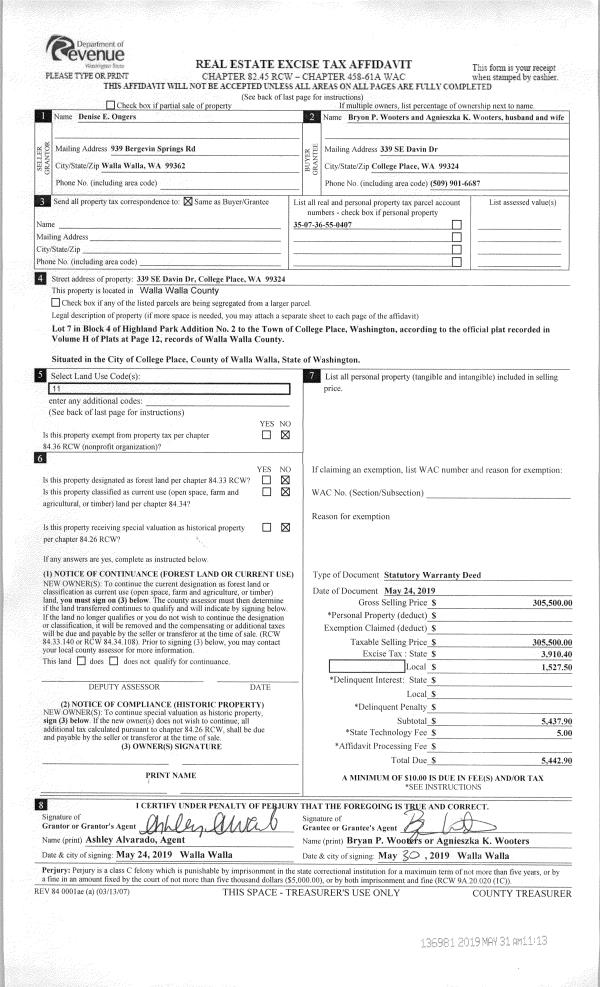
| 1 | 05/31/2019 | SWD | STATUTORY WARRANTY DEED | ONGERS DENISE ELAINE | WOOTERS BRYON P & AGNIESZKA K | | | $305,500.00 | 136981 | 2019-03701 |
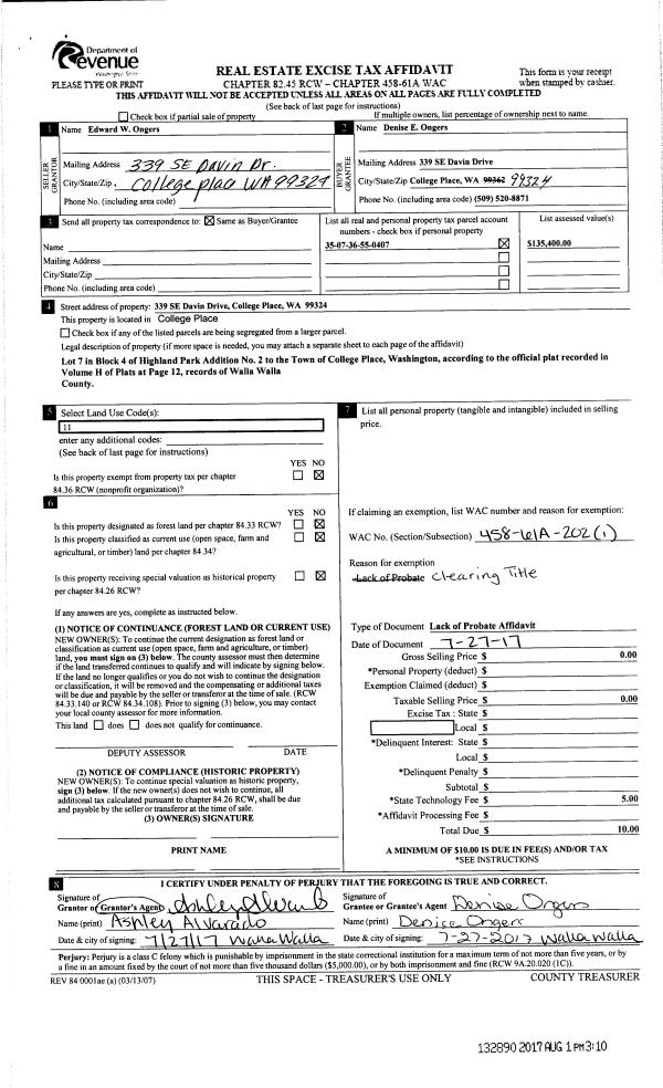
| 2 | 07/27/2017 | LOPA | LACK OF PROBATE AFFIDAVIT | ONGERS EDWARD WILLIAM | ONGERS DENISE ELAINE | | | $0.00 | 132890 | 2017-05874 |
| 3 | 03/22/2016 | DEATH CERT | DEATH CERTIFICATE | ONGERS EDWARD WILLIAM | | | | | 0 | 2016-02138 |
| 4 | 03/22/2016 | COMMUNITY | COMMUNITY PROPERTY AGREEMENT | ONGERS EDWARD W & DENISE E | ONGERS EDWARD W & DENISE E | | | | 0 | 2016-02139 |
| 5 | 05/01/2001 | WARRANTY D | WARRANTY DEED | | | | | $127,000.00 | 97274 | 3140-105639 |
Payout Agreement
| No payout information available.. |