Property
Account |
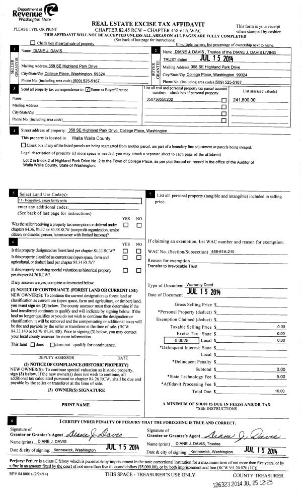
| Property ID: | 4370 | Abbreviated Legal Description: | HIGHLAND PARK #2 LOT 2 BLK 2 |
| Parcel Number: | 350736550202 | Agent Code: | |
| Type: | Real | | |
| Tax Area: | 77 - CP-250-F | Land Use Code | 11 |
| Open Space: | N | DFL | N |
| Historic Property: | N | Remodel Property: | N |
| Multi-Family Redevelopment: | N | | |
| Township: | 7 | Section: | 36 |
| Range: | 35 |
Location |
| Address: | 358 SE HIGHLAND PARK DR WA 99324 | Mapsco: | |
| Neighborhood: | A Superior SFR | Map ID: | |
| Neighborhood CD: | 113211 |
Owner |
| Name: | DIANE J DAVIS LIVING TRUST | Owner ID: | 55229 |
| Mailing Address: | 2608 COUNTRY CLUB RD NW OLYMPIA, WA 98502-3714 | % Ownership: | 100.0000000000% |
| | | Exemptions: | |
Taxes and Assessment Details
Values
| (+) Improvement Homesite Value: | + | $0 | |
| (+) Improvement Non-Homesite Value: | + | $365,580 | |
| (+) Land Homesite Value: | + | $0 | |
| (+) Land Non-Homesite Value: | + | $75,000 | |
| (+) Curr Use (HS): | + | $0 | $0 |
| (+) Curr Use (NHS): | + | $0 | $0 |
| | | -------------------------- | |
| (=) Market Value: | = | $440,580 | |
| (–) Productivity Loss: | – | $0 | |
| | | -------------------------- | |
| (=) Subtotal: | = | $440,580 | |
| (+) Senior Appraised Value: | + | $0 | |
| (+) Non-Senior Appraised Value: | + | $440,580 | |
| | | -------------------------- | |
| (=) Total Appraised Value: | = | $440,580 | |
| (–) Senior Exemption Loss: | – | $0 | |
| (–) Exemption Loss: | – | $0 | |
| | | -------------------------- | |
| (=) Taxable Value: | = | $440,580 | |
Taxing Jurisdiction
| Owner: | DIANE J DAVIS LIVING TRUST | | |
| % Ownership: | 100.0000000000% | | |
| Total Value: | $440,580 | | |
| Tax Area: | 77 - CP-250-F |
| CERFD | CURRENT EXPENSE REFUND 010 | 0.0000000000 | $440,580 | $440,580 | $0.00 | | |
| CURREXP | CURRENT EXPENSE 010 | 1.0175366760 | $440,580 | $440,580 | $448.31 | | |
| HUMNSERV | HUMAN SERVICES 119 | 0.0250000000 | $440,580 | $440,580 | $11.01 | | |
| SLDREL | SOLDIERS RELIEF 121 | 0.0155990005 | $440,580 | $440,580 | $6.87 | | |
| COLLPLBOND | C OF CP BOND 644 | 0.4374241808 | $440,580 | $440,580 | $192.72 | | |
| COLLPLGEN | CITY OF CP 632 | 1.4453819216 | $440,580 | $440,580 | $636.81 | | |
| EMERGSER | EMS 147 | 0.3792580840 | $440,580 | $440,580 | $167.09 | | |
| EMSRFD | EMS REFUND 147 | 0.0000000000 | $440,580 | $440,580 | $0.00 | | |
| RURALLIB | RURAL LIBRARY 623 | 0.3710609029 | $440,580 | $440,580 | $163.48 | | |
| PORTRFD | PORT REFUND 640 | 0.0000000000 | $440,580 | $440,580 | $0.00 | | |
| PORTWWGEN | PORT OF WW 640 | 0.2460186015 | $440,580 | $440,580 | $108.39 | | |
| SD250BOND | SD #250 BOND 773 | 1.4560608159 | $440,580 | $440,580 | $641.51 | | |
| SD250GEN | SD #250 GENERAL 770 | 2.3880724087 | $440,580 | $440,580 | $1,052.14 | | |
| ST2 | STATE SCHOOL PART 2 600 | 0.8131451643 | $440,580 | $440,580 | $358.26 | | |
| STATESCHL | STATE SCHOOL 600 | 1.5158548041 | $440,580 | $440,580 | $667.86 | | |
| STREFUND | STATE REFUND LEVY 603 | 0.0000000000 | $440,580 | $440,580 | $0.00 | | |
| | Total Tax Rate: | 10.1104125603 | | | | | |
| | | | | Taxes w/Current Exemptions: | $4,454.45 | | |
| | | | | Taxes w/o Exemptions: | $4,454.45 | | |
Improvement / Building
| Improvement #1: | RESIDENTIAL | State Code: | 11 | 1569.0 sqft | Value: | $365,580 |
| Exterior Wall: | PLYWOOD | Heating/Cooling: | WARM & COOLED AIR | | Number of Bathrooms: | 2 | Number of Bedrooms: | 3 | | Plumbing: | 9 | Roof Covering: | COMP SHINGLE |
|
| | Type | Description | Class CD | Sub Class CD | Year Built | Area |
| | MA | Main Area | 1 | 30 | 1975 | 1569.0 |
| | RPC | OPEN PORCH W/ROOF , CEILED | 1 | 30 | 1975 | 36.0 |
| | SI1 | SITE IMPROVEMENT | 1 | 30 | 1975 | 2.0 |
| | BASE | BASEMENT | 1 | 30 | 1975 | 1569.0 |
| | BPF | BASEMENT -PARTITIONED FINISH | 1 | 30 | 1975 | 1569.0 |
| | ATG | Attached Garage | 1 | 30 | 1975 | 460.0 |
| | WOD | Wood Deck | 1 | 30 | 1975 | 211.0 |
| | D2F | Double 2 Story Fireplace | 1 | 30 | 1975 | 1.0 |
Sketch
Property Image
Land
| 1 | RES 1 | Converted: Residential | 0.2916 | 12700.00 | 0.00 | 0.00 | 1.00 | $75,000 | $0 |
Roll Value History
| 2026 | N/A | N/A | N/A | N/A | N/A |
| 2025 | $314,760 | $140,000 | $0 | $454,760 | $454,760 |
| 2024 | $383,860 | $75,000 | $0 | $458,860 | $458,860 |
| 2023 | $365,580 | $75,000 | $0 | $440,580 | $440,580 |
| 2022 | $292,460 | $75,000 | $0 | $367,460 | $367,460 |
| 2021 | $224,970 | $75,000 | $0 | $299,970 | $299,970 |
| 2020 | $204,520 | $75,000 | $0 | $279,520 | $279,520 |
| 2019 | $219,520 | $60,000 | $0 | $279,520 | $279,520 |
| 2018 | $190,890 | $60,000 | $0 | $250,890 | $250,890 |
| 2017 | $190,890 | $60,000 | $0 | $250,890 | $250,890 |
| 2016 | $181,800 | $60,000 | $0 | $241,800 | $241,800 |
| 2015 | $181,800 | $60,000 | $0 | $241,800 | $241,800 |
| 2014 | $181,800 | $60,000 | $0 | $241,800 | $241,800 |
| 2013 | $181,800 | $60,000 | $0 | $241,800 | $241,800 |
| 2012 | $181,800 | $60,000 | $0 | $0 | $0 |
| 2011 | $181,800 | $60,000 | $0 | $0 | $0 |
| 2010 | $181,800 | $60,000 | $0 | $0 | $0 |
| 2009 | $194,500 | $60,000 | $0 | $0 | $0 |
| 2008 | $138,300 | $30,000 | $0 | $0 | $0 |
| 2007 | $138,300 | $30,000 | $0 | $0 | $0 |
Deed and Sales History
| 1 | 07/25/2014 | WARRANTY D | WARRANTY DEED | DAVIS DIANE J | DIANE J DAVIS LIVING TRUST | | | $0.00 | 126323 | 2014-05267 |
| 2 | 07/23/1982 | QCD | QUIT CLAIM DEED | | | | | $37,000.00 | 0 | 1338-205225 |
Payout Agreement
| No payout information available.. |