Property
Account |
| Property ID: | 4356 | Abbreviated Legal Description: | HIGHLAND PARK LOT 3 BLK 2 |
| Parcel Number: | 350736540203 | Agent Code: | |
| Type: | Real | | |
| Tax Area: | 77 - CP-250-F | Land Use Code | 11 |
| Open Space: | N | DFL | N |
| Historic Property: | N | Remodel Property: | N |
| Multi-Family Redevelopment: | N | | |
| Township: | 7 | Section: | 36 |
| Range: | 35 |
Location |
| Address: | 425 SE LARCH AVE WA 99324 | Mapsco: | |
| Neighborhood: | A Superior SFR | Map ID: | |
| Neighborhood CD: | 113211 |
Owner |
| Name: | KAKAZU SARA E & RONN K | Owner ID: | 71784 |
| Mailing Address: | 425 SE LARCH AVE COLLEGE PLACE, WA 99324 | % Ownership: | 100.0000000000% |
| | | Exemptions: | |
Taxes and Assessment Details
Property Tax Information as of
02/21/2026
Click on "Statement Details" to expand or collapse a tax statement.
* Please enter a valid date ** Please enter a valid date *
Statement Details |
| | TOTAL: | $0.00 | $0.00 | $0.00 | $0.00 | $0.00 | $0.00 |
|
| | $0.00 | $0.00 | $0.00 | $0.00 | $0.00 | $0.00 |
Values
| (+) Improvement Homesite Value: | + | $0 | |
| (+) Improvement Non-Homesite Value: | + | $343,800 | |
| (+) Land Homesite Value: | + | $0 | |
| (+) Land Non-Homesite Value: | + | $75,000 | |
| (+) Curr Use (HS): | + | $0 | $0 |
| (+) Curr Use (NHS): | + | $0 | $0 |
| | | -------------------------- | |
| (=) Market Value: | = | $418,800 | |
| (–) Productivity Loss: | – | $0 | |
| | | -------------------------- | |
| (=) Subtotal: | = | $418,800 | |
| (+) Senior Appraised Value: | + | $0 | |
| (+) Non-Senior Appraised Value: | + | $418,800 | |
| | | -------------------------- | |
| (=) Total Appraised Value: | = | $418,800 | |
| (–) Senior Exemption Loss: | – | $0 | |
| (–) Exemption Loss: | – | $0 | |
| | | -------------------------- | |
| (=) Taxable Value: | = | $418,800 | |
Taxing Jurisdiction
| Owner: | KAKAZU SARA E & RONN K | | |
| % Ownership: | 100.0000000000% | | |
| Total Value: | $418,800 | | |
| Tax Area: | 77 - CP-250-F |
| CERFD | CURRENT EXPENSE REFUND 010 | 0.0000000000 | $418,800 | $418,800 | $0.00 | | |
| CURREXP | CURRENT EXPENSE 010 | 1.0175366760 | $418,800 | $418,800 | $426.14 | | |
| HUMNSERV | HUMAN SERVICES 119 | 0.0250000000 | $418,800 | $418,800 | $10.47 | | |
| SLDREL | SOLDIERS RELIEF 121 | 0.0155990005 | $418,800 | $418,800 | $6.53 | | |
| COLLPLBOND | C OF CP BOND 644 | 0.4374241808 | $418,800 | $418,800 | $183.19 | | |
| COLLPLGEN | CITY OF CP 632 | 1.4453819216 | $418,800 | $418,800 | $605.33 | | |
| EMERGSER | EMS 147 | 0.3792580840 | $418,800 | $418,800 | $158.83 | | |
| EMSRFD | EMS REFUND 147 | 0.0000000000 | $418,800 | $418,800 | $0.00 | | |
| RURALLIB | RURAL LIBRARY 623 | 0.3710609029 | $418,800 | $418,800 | $155.40 | | |
| PORTRFD | PORT REFUND 640 | 0.0000000000 | $418,800 | $418,800 | $0.00 | | |
| PORTWWGEN | PORT OF WW 640 | 0.2460186015 | $418,800 | $418,800 | $103.03 | | |
| SD250BOND | SD #250 BOND 773 | 1.4560608159 | $418,800 | $418,800 | $609.80 | | |
| SD250GEN | SD #250 GENERAL 770 | 2.3880724087 | $418,800 | $418,800 | $1,000.12 | | |
| ST2 | STATE SCHOOL PART 2 600 | 0.8131451643 | $418,800 | $418,800 | $340.55 | | |
| STATESCHL | STATE SCHOOL 600 | 1.5158548041 | $418,800 | $418,800 | $634.84 | | |
| STREFUND | STATE REFUND LEVY 603 | 0.0000000000 | $418,800 | $418,800 | $0.00 | | |
| | Total Tax Rate: | 10.1104125603 | | | | | |
| | | | | Taxes w/Current Exemptions: | $4,234.23 | | |
| | | | | Taxes w/o Exemptions: | $4,234.23 | | |
Improvement / Building
| Improvement #1: | RESIDENTIAL | State Code: | 11 | 1534.0 sqft | Value: | $343,800 |
| Exterior Wall: | PLYWOOD | Heating/Cooling: | WARM & COOLED AIR | | Number of Bathrooms: | 3 | Number of Bedrooms: | 4 | | Plumbing: | 12 | Roof Covering: | COMP SHINGLE |
|
| | Type | Description | Class CD | Sub Class CD | Year Built | Area |
| | MA | Main Area | 1 | 35 | 1969 | 1534.0 |
| | SI1 | SITE IMPROVEMENT | 1 | 35 | 1969 | 2.0 |
| | BASE | BASEMENT | 1 | 35 | 1969 | 1134.0 |
| | BPF | BASEMENT -PARTITIONED FINISH | 1 | 35 | 1969 | 834.0 |
| | ATG | Attached Garage | 1 | 35 | 1969 | 576.0 |
| | WOD | Wood Deck | 1 | 35 | 1969 | 294.0 |
| | D2F | Double 2 Story Fireplace | 1 | 35 | 1969 | 1.0 |
| | RPC | OPEN PORCH W/ROOF , CEILED | 1 | 35 | 1969 | 23.0 |
Sketch
Property Image
Land
| 1 | RES 1 | Converted: Residential | 0.3091 | 13463.00 | 0.00 | 0.00 | 1.00 | $75,000 | $0 |
Roll Value History
| 2026 | N/A | N/A | N/A | N/A | N/A |
| 2025 | $296,010 | $140,000 | $0 | $436,010 | $436,010 |
| 2024 | $360,990 | $75,000 | $0 | $435,990 | $435,990 |
| 2023 | $343,800 | $75,000 | $0 | $418,800 | $418,800 |
| 2022 | $343,800 | $75,000 | $0 | $418,800 | $418,800 |
| 2021 | $286,500 | $75,000 | $0 | $361,500 | $361,500 |
| 2020 | $204,640 | $75,000 | $0 | $279,640 | $279,640 |
| 2019 | $219,640 | $60,000 | $0 | $279,640 | $279,640 |
| 2018 | $191,000 | $60,000 | $0 | $251,000 | $251,000 |
| 2017 | $191,000 | $60,000 | $0 | $251,000 | $251,000 |
| 2016 | $181,900 | $60,000 | $0 | $241,900 | $241,900 |
| 2015 | $181,900 | $60,000 | $0 | $241,900 | $241,900 |
| 2014 | $181,900 | $60,000 | $0 | $241,900 | $241,900 |
| 2013 | $181,900 | $60,000 | $0 | $241,900 | $241,900 |
| 2012 | $181,900 | $60,000 | $0 | $0 | $0 |
| 2011 | $181,900 | $60,000 | $0 | $0 | $0 |
| 2010 | $181,900 | $60,000 | $0 | $0 | $0 |
| 2009 | $194,600 | $60,000 | $0 | $0 | $0 |
| 2008 | $169,400 | $30,000 | $0 | $0 | $0 |
| 2007 | $169,400 | $30,000 | $0 | $0 | $0 |
Deed and Sales History
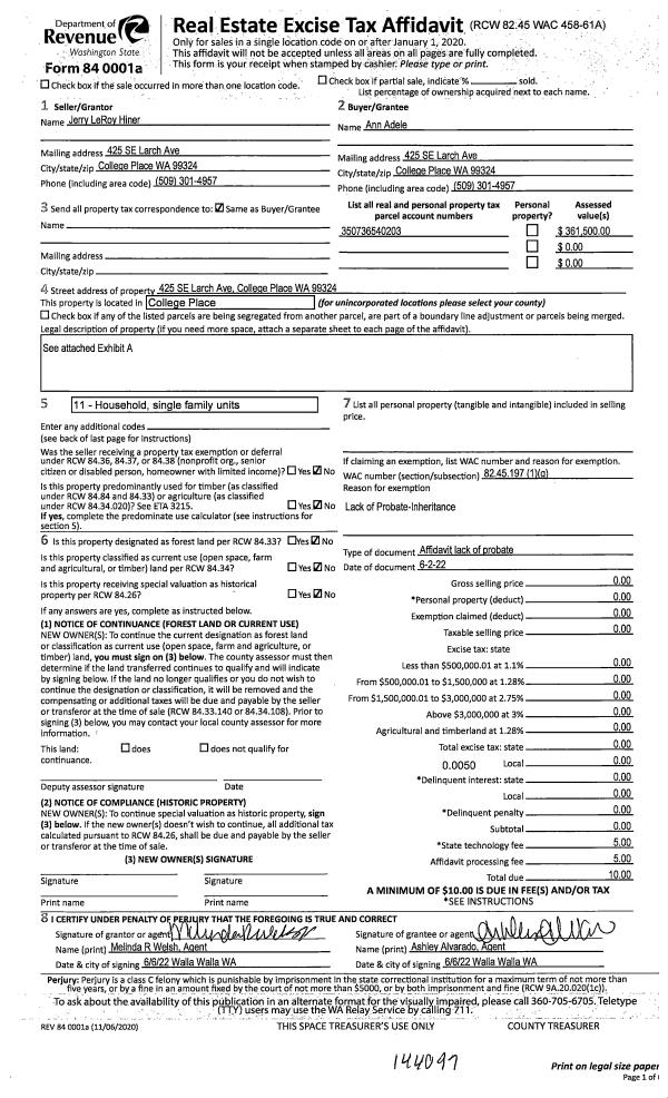
| 1 | 06/03/2022 | SWD | STATUTORY WARRANTY DEED | ADELE ANN | KAKAZU SARA E & RONN K | | | $440,000.00 | 144092 | 2022-04796 |
| 2 | 06/06/2022 | LOPA | LACK OF PROBATE AFFIDAVIT | HINER JERRY L & GAYLE M | ADELE ANN | | | $0.00 | 144097 | 2022-04825 |
| 3 | 06/22/2016 | SURVEY | SURVEY | | | 12 | 263 | | 0 | 2016-04804 |
| 4 | 06/16/1997 | WARRANTY D | WARRANTY DEED | | | | | $190,000.00 | 88350 | 2539-705403 |
Payout Agreement
| No payout information available.. |