Property
Account |
| Property ID: | 4351 | Abbreviated Legal Description: | HENDRICKSON HEIGHTS LOT 2 LESS SLY 15' |
| Parcel Number: | 350736530002 | Agent Code: | |
| Type: | Real | | |
| Tax Area: | 77 - CP-250-F | Land Use Code | 11 |
| Open Space: | N | DFL | N |
| Historic Property: | N | Remodel Property: | N |
| Multi-Family Redevelopment: | N | | |
| Township: | 7 | Section: | 36 |
| Range: | 35 |
Location |
| Address: | 1202 SE MURPHY LN WA 99324 | Mapsco: | |
| Neighborhood: | G SFR | Map ID: | |
| Neighborhood CD: | 114011 |
Owner |
| Name: | SANNAR FRANKLIN ALBERT & THERESE J | Owner ID: | 60081 |
| Mailing Address: | 1202 SE MURPHY LN COLLEGE PLACE, WA 99324 | % Ownership: | 100.0000000000% |
| | | Exemptions: | |
Taxes and Assessment Details
Property Tax Information as of
04/18/2026
Click on "Statement Details" to expand or collapse a tax statement.
* Please enter a valid date ** Please enter a valid date *
Statement Details |
| | TOTAL: | $0.00 | $0.00 | $0.00 | $0.00 | $0.00 | $0.00 |
|
| | $0.00 | $0.00 | $0.00 | $0.00 | $0.00 | $0.00 |
Values
| (+) Improvement Homesite Value: | + | $0 | |
| (+) Improvement Non-Homesite Value: | + | $250,100 | |
| (+) Land Homesite Value: | + | $0 | |
| (+) Land Non-Homesite Value: | + | $99,270 | |
| (+) Curr Use (HS): | + | $0 | $0 |
| (+) Curr Use (NHS): | + | $0 | $0 |
| | | -------------------------- | |
| (=) Market Value: | = | $349,370 | |
| (–) Productivity Loss: | – | $0 | |
| | | -------------------------- | |
| (=) Subtotal: | = | $349,370 | |
| (+) Senior Appraised Value: | + | $0 | |
| (+) Non-Senior Appraised Value: | + | $349,370 | |
| | | -------------------------- | |
| (=) Total Appraised Value: | = | $349,370 | |
| (–) Senior Exemption Loss: | – | $0 | |
| (–) Exemption Loss: | – | $0 | |
| | | -------------------------- | |
| (=) Taxable Value: | = | $349,370 | |
Taxing Jurisdiction
| Owner: | SANNAR FRANKLIN ALBERT & THERESE J | | |
| % Ownership: | 100.0000000000% | | |
| Total Value: | $349,370 | | |
| Tax Area: | 77 - CP-250-F |
| CERFD | CURRENT EXPENSE REFUND 010 | 0.0000000000 | $349,370 | $349,370 | $0.00 | | |
| CURREXP | CURRENT EXPENSE 010 | 1.0175366760 | $349,370 | $349,370 | $355.50 | | |
| HUMNSERV | HUMAN SERVICES 119 | 0.0250000000 | $349,370 | $349,370 | $8.73 | | |
| SLDREL | SOLDIERS RELIEF 121 | 0.0155990005 | $349,370 | $349,370 | $5.45 | | |
| COLLPLBOND | C OF CP BOND 644 | 0.4374241808 | $349,370 | $349,370 | $152.82 | | |
| COLLPLGEN | CITY OF CP 632 | 1.4453819216 | $349,370 | $349,370 | $504.97 | | |
| EMERGSER | EMS 147 | 0.3792580840 | $349,370 | $349,370 | $132.50 | | |
| EMSRFD | EMS REFUND 147 | 0.0000000000 | $349,370 | $349,370 | $0.00 | | |
| RURALLIB | RURAL LIBRARY 623 | 0.3710609029 | $349,370 | $349,370 | $129.64 | | |
| PORTRFD | PORT REFUND 640 | 0.0000000000 | $349,370 | $349,370 | $0.00 | | |
| PORTWWGEN | PORT OF WW 640 | 0.2460186015 | $349,370 | $349,370 | $85.95 | | |
| SD250BOND | SD #250 BOND 773 | 1.4560608159 | $349,370 | $349,370 | $508.70 | | |
| SD250GEN | SD #250 GENERAL 770 | 2.3880724087 | $349,370 | $349,370 | $834.32 | | |
| ST2 | STATE SCHOOL PART 2 600 | 0.8131451643 | $349,370 | $349,370 | $284.09 | | |
| STATESCHL | STATE SCHOOL 600 | 1.5158548041 | $349,370 | $349,370 | $529.59 | | |
| STREFUND | STATE REFUND LEVY 603 | 0.0000000000 | $349,370 | $349,370 | $0.00 | | |
| | Total Tax Rate: | 10.1104125603 | | | | | |
| | | | | Taxes w/Current Exemptions: | $3,532.26 | | |
| | | | | Taxes w/o Exemptions: | $3,532.26 | | |
Improvement / Building
| Improvement #1: | RESIDENTIAL | State Code: | 11 | 1666.0 sqft | Value: | $250,100 |
| Exterior Wall: | PLYWOOD | Heating/Cooling: | REV-HEAT-PUMP-W/DUCT | | Number of Bathrooms: | 3 | Number of Bedrooms: | 3 | | Plumbing: | 12 | Roof Covering: | COMP SHINGLE |
|
| | Type | Description | Class CD | Sub Class CD | Year Built | Area |
| | MA | Main Area | 1 | 30 | 1978 | 1666.0 |
| | SI1 | SITE IMPROVEMENT | 1 | 30 | 1978 | 2.0 |
| | ATG | Attached Garage | 1 | 30 | 1978 | 672.0 |
| | WOD | Wood Deck | 1 | 30 | 1978 | 48.0 |
| | CPC | COVERED CARPORT/PATIO | 1 | 30 | 1978 | 96.0 |
| | RPC | OPEN PORCH W/ROOF , CEILED | 1 | 30 | 1978 | 20.0 |
Sketch
Property Image
Land
| 1 | RES 1 | Converted: Residential | 0.2810 | 12240.00 | 0.00 | 0.00 | 1.00 | $99,270 | $0 |
Roll Value History
| 2026 | N/A | N/A | N/A | N/A | N/A |
| 2025 | $200,080 | $144,310 | $0 | $344,390 | $344,390 |
| 2024 | $250,100 | $99,270 | $0 | $349,370 | $349,370 |
| 2023 | $250,100 | $99,270 | $0 | $349,370 | $349,370 |
| 2022 | $250,100 | $99,270 | $0 | $349,370 | $349,370 |
| 2021 | $161,360 | $99,270 | $0 | $260,630 | $260,630 |
| 2020 | $107,570 | $99,270 | $0 | $206,840 | $206,840 |
| 2019 | $141,840 | $65,000 | $0 | $206,840 | $206,840 |
| 2018 | $118,200 | $65,000 | $0 | $183,200 | $183,200 |
| 2017 | $118,200 | $65,000 | $0 | $183,200 | $183,200 |
| 2016 | $118,200 | $65,000 | $0 | $183,200 | $183,200 |
| 2015 | $118,200 | $65,000 | $0 | $183,200 | $183,200 |
| 2014 | $118,200 | $65,000 | $0 | $183,200 | $183,200 |
| 2013 | $118,200 | $65,000 | $0 | $183,200 | $183,200 |
| 2012 | $118,200 | $65,000 | $0 | $0 | $0 |
| 2011 | $118,200 | $65,000 | $0 | $0 | $0 |
| 2010 | $118,200 | $65,000 | $0 | $0 | $0 |
| 2009 | $127,800 | $65,000 | $0 | $0 | $0 |
| 2008 | $105,500 | $26,700 | $0 | $0 | $0 |
| 2007 | $105,500 | $26,700 | $0 | $0 | $0 |
Deed and Sales History
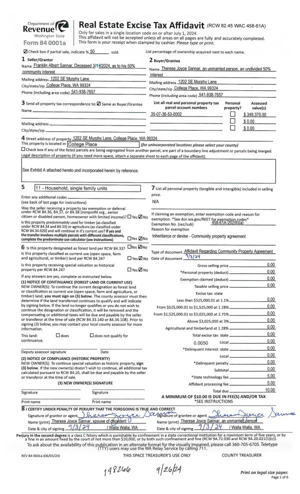
| 1 | 09/26/2024 | COMMUNITY | COMMUNITY PROPERTY AGREEMENT | SANNAR FRANKLIN ALBERT & THERESE J | SANNAR THERESE JOYCE | | | | 148266 | 224-05551 |
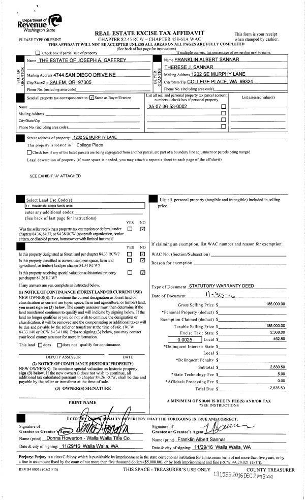
| 2 | 12/02/2016 | SWD | STATUTORY WARRANTY DEED | GAFFREY JOSEPH A ESTATE OF | SANNAR FRANKLIN ALBERT & THERESE J | | | $185,000.00 | 131533 | 2016-09896 |
| 3 | 01/02/1979 | WARRANTY D | WARRANTY DEED | | | | | $50,000.00 | 0 | 9579-00041 |
Payout Agreement
| No payout information available.. |