Property
Account |
| Property ID: | 4333 | Abbreviated Legal Description: | CP #1 TAX 4 BLK 22 (REWRITTEN) LESS RD ROW TO CP |
| Parcel Number: | 350736512204 | Agent Code: | |
| Type: | Real | | |
| Tax Area: | 75 - CP 250 | Land Use Code | 11 |
| Open Space: | N | DFL | N |
| Historic Property: | N | Remodel Property: | N |
| Multi-Family Redevelopment: | N | | |
| Township: | 7 | Section: | 36 |
| Range: | 35 |
Location |
| Address: | 15 SE BIRCH AVE WA 99324 | Mapsco: | |
| Neighborhood: | A SFR | Map ID: | |
| Neighborhood CD: | 113011 |
Owner |
| Name: | LUCE DANIEL R | Owner ID: | 65813 |
| Mailing Address: | 389 RUSSET RD WALLA WALLA, WA 99362 | % Ownership: | 100.0000000000% |
| | | Exemptions: | |
Taxes and Assessment Details
Property Tax Information as of
02/21/2026
Click on "Statement Details" to expand or collapse a tax statement.
* Please enter a valid date ** Please enter a valid date *
Statement Details |
| | TOTAL: | $0.00 | $0.00 | $0.00 | $0.00 | $0.00 | $0.00 |
|
| | $0.00 | $0.00 | $0.00 | $0.00 | $0.00 | $0.00 |
Values
| (+) Improvement Homesite Value: | + | $0 | |
| (+) Improvement Non-Homesite Value: | + | $545,230 | |
| (+) Land Homesite Value: | + | $0 | |
| (+) Land Non-Homesite Value: | + | $125,790 | |
| (+) Curr Use (HS): | + | $0 | $0 |
| (+) Curr Use (NHS): | + | $0 | $0 |
| | | -------------------------- | |
| (=) Market Value: | = | $671,020 | |
| (–) Productivity Loss: | – | $0 | |
| | | -------------------------- | |
| (=) Subtotal: | = | $671,020 | |
| (+) Senior Appraised Value: | + | $0 | |
| (+) Non-Senior Appraised Value: | + | $671,020 | |
| | | -------------------------- | |
| (=) Total Appraised Value: | = | $671,020 | |
| (–) Senior Exemption Loss: | – | $0 | |
| (–) Exemption Loss: | – | $0 | |
| | | -------------------------- | |
| (=) Taxable Value: | = | $671,020 | |
Taxing Jurisdiction
| Owner: | LUCE DANIEL R | | |
| % Ownership: | 100.0000000000% | | |
| Total Value: | $671,020 | | |
| Tax Area: | 75 - CP 250 |
| CERFD | CURRENT EXPENSE REFUND 010 | 0.0000000000 | $671,020 | $671,020 | $0.00 | | |
| CURREXP | CURRENT EXPENSE 010 | 0.9851088983 | $671,020 | $671,020 | $661.03 | | |
| HUMNSERV | HUMAN SERVICES 119 | 0.0250000000 | $671,020 | $671,020 | $16.78 | | |
| SLDREL | SOLDIERS RELIEF 121 | 0.0155990000 | $671,020 | $671,020 | $10.47 | | |
| COLLPLBOND | C OF CP BOND 644 | 0.3846009312 | $671,020 | $671,020 | $258.07 | | |
| COLLPLGEN | CITY OF CP 632 | 1.4193088888 | $671,020 | $671,020 | $952.38 | | |
| EMERGSER | EMS 147 | 0.3676811629 | $671,020 | $671,020 | $246.72 | | |
| EMSRFD | EMS REFUND 147 | 0.0000000000 | $671,020 | $671,020 | $0.00 | | |
| RLBRFD | RURAL LIBRARY REFUND 623 | 0.0000000000 | $671,020 | $0 | $0.00 | | |
| RURALLIB | RURAL LIBRARY 623 | 0.0000000000 | $671,020 | $0 | $0.00 | | |
| PORTRFD | PORT REFUND 640 | 0.0000000000 | $671,020 | $671,020 | $0.00 | | |
| PORTWWGEN | PORT OF WW 640 | 0.2344301070 | $671,020 | $671,020 | $157.31 | | |
| SD250BOND | SD #250 BOND 773 | 1.3740031235 | $671,020 | $671,020 | $921.98 | | |
| SD250GEN | SD #250 GENERAL 770 | 2.4999999988 | $671,020 | $671,020 | $1,677.55 | | |
| ST2 | STATE SCHOOL PART 2 600 | 0.8853714103 | $671,020 | $671,020 | $594.10 | | |
| STATESCHL | STATE SCHOOL 600 | 1.6424571473 | $671,020 | $671,020 | $1,102.12 | | |
| STREFUND | STATE REFUND LEVY 603 | 0.0000000000 | $671,020 | $671,020 | $0.00 | | |
| | Total Tax Rate: | 9.8335606681 | | | | | |
| | | | | Taxes w/Current Exemptions: | $6,598.51 | | |
| | | | | Taxes w/o Exemptions: | $6,598.51 | | |
Improvement / Building
| Improvement #1: | RESIDENTIAL | State Code: | 11 | 1576.0 sqft | Value: | $545,230 |
| Exterior Wall: | SIDING | Heating/Cooling: | FORCED AIR | | Number of Bathrooms: | 2 | Number of Bedrooms: | 4 | | Plumbing: | 9 | Roof Covering: | COMP SHINGLE |
|
| | Type | Description | Class CD | Sub Class CD | Year Built | Area |
| | MA | Main Area | 4 | 40 | 1918 | 1576.0 |
| | UPFL | Upper Floor (included in main area) | 4 | 40 | 1918 | 532.0 |
| | SI1 | SITE IMPROVEMENT | 4 | 40 | 1918 | 1.5 |
| | BASE | BASEMENT | 4 | 40 | 1918 | 1044.0 |
| | SWP | Solid Wall Porch | 4 | 40 | 1918 | 72.0 |
| | RCD | WOOD DECK W/ROOF, CEILED | 4 | 40 | 1918 | 288.0 |
| | WOD | Wood Deck | 4 | 40 | 1918 | 378.0 |
| | BNV | BUILDING NO VALUE | 4 | 40 | 1918 | 464.0 |
| | BNV | BUILDING NO VALUE | 4 | 40 | 1918 | 160.0 |
| | GFP | GAS FIREPLACE | 4 | 40 | 1918 | 1.0 |
Sketch
Property Image
Land
| 1 | RES 1 | Converted: Residential | 0.9197 | 40060.00 | 0.00 | 0.00 | 1.00 | $125,790 | $0 |
Roll Value History
| 2026 | N/A | N/A | N/A | N/A | N/A |
| 2025 | $545,230 | $125,790 | $0 | $671,020 | $671,020 |
| 2024 | $605,820 | $82,770 | $0 | $688,590 | $688,590 |
| 2023 | $504,850 | $82,770 | $0 | $587,620 | $587,620 |
| 2022 | $280,470 | $82,770 | $0 | $363,240 | $363,240 |
| 2021 | $215,750 | $82,770 | $0 | $298,520 | $298,520 |
| 2020 | $148,790 | $82,770 | $0 | $231,560 | $231,560 |
| 2019 | $158,860 | $72,700 | $0 | $231,560 | $231,560 |
| 2018 | $151,290 | $72,700 | $0 | $223,990 | $223,990 |
| 2017 | $151,290 | $72,700 | $0 | $223,990 | $223,990 |
| 2016 | $137,540 | $72,700 | $0 | $210,240 | $210,240 |
| 2015 | $119,600 | $72,700 | $0 | $192,300 | $192,300 |
| 2014 | $119,600 | $71,300 | $0 | $190,900 | $190,900 |
| 2013 | $119,600 | $71,300 | $0 | $190,900 | $190,900 |
| 2012 | $119,600 | $71,300 | $0 | $0 | $0 |
| 2011 | $102,200 | $71,300 | $0 | $0 | $0 |
| 2010 | $93,900 | $71,300 | $0 | $0 | $0 |
| 2009 | $112,200 | $71,300 | $0 | $0 | $0 |
| 2008 | $115,500 | $42,800 | $0 | $0 | $0 |
| 2007 | $115,500 | $42,800 | $0 | $0 | $0 |
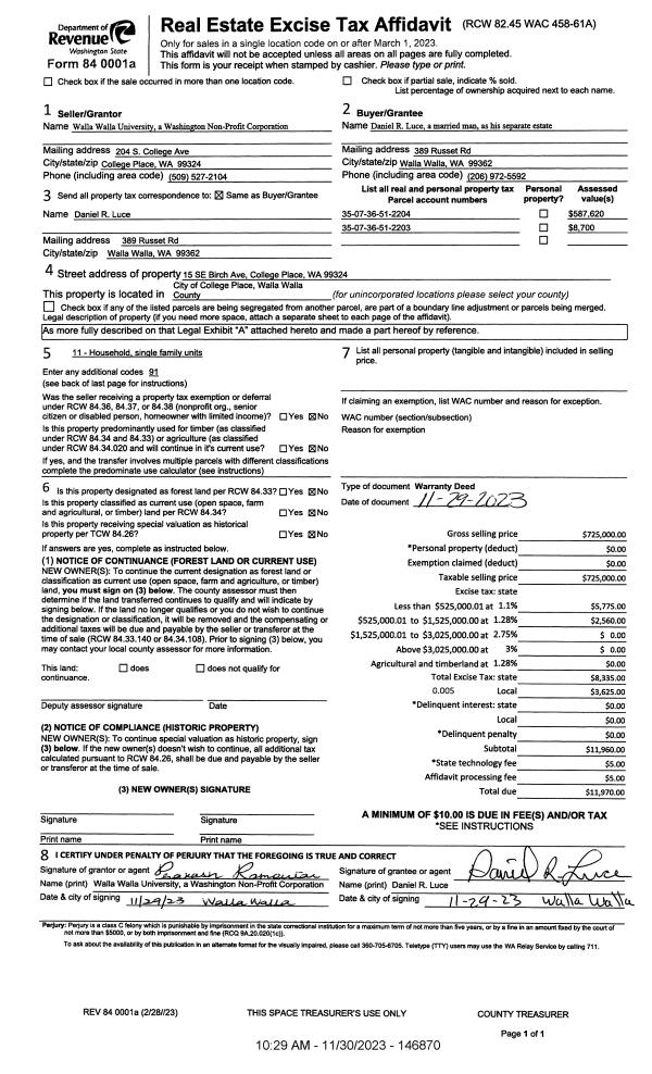
Deed and Sales History
| 1 | 11/30/2023 | QCD | QUIT CLAIM DEED | LUCE JULIE | LUCE DANIEL R | | 2-PARCLES | | 146871 | 2023-06925 |
| 2 | 11/29/2023 | SWD | STATUTORY WARRANTY DEED | WALLA WALLA UNIVERSITY | LUCE DANIEL R | | 2-PARCELS | $725,000.00 | 146870 | 2023-06924 |
|   | |
| 3 | 04/29/2022 | BARGAIN & | BARGAIN & SALE DEED | THOMPSON WILLIAM L ESTATE OF | WALLA WALLA UNIVERSITY | | 2-PARCLES | $758,795.00 | 143856 | 2022-03656 |
|   | |
| 4 | 06/11/2013 | ROW | RIGHT OF WAY | | | | | | 0 | 2013-05879 |
| 5 | 01/10/2005 | WARRANTY D | WARRANTY DEED | "THOMPSON, DIANA" | | | | | 106577 | 2005-00399 |
| 6 | 04/24/1995 | WARRANTY D | WARRANTY DEED | | | | | $124,500.00 | 83874 | 2299-503770 |
|   | |
Payout Agreement
| No payout information available.. |