Property
Account |
| Property ID: | 4332 | Abbreviated Legal Description: | CP #1 TAX 8 BLK 22, TAX 10 BLK 22 LESS TAX 4 |
| Parcel Number: | 350736512203 | Agent Code: | |
| Type: | Real | | |
| Tax Area: | 75 - CP 250 | Land Use Code | 91 |
| Open Space: | N | DFL | N |
| Historic Property: | N | Remodel Property: | N |
| Multi-Family Redevelopment: | N | | |
| Township: | 7 | Section: | 36 |
| Range: | 35 |
Location |
| Address: | SE BIRCH AVE WA 99324 | Mapsco: | |
| Neighborhood: | A SFR Contig | Map ID: | |
| Neighborhood CD: | 113097 |
Owner |
| Name: | WALLA WALLA UNIVERSITY | Owner ID: | 45263 |
| Mailing Address: | 204 S COLLEGE AVE COLLEGE PLACE, WA 99324 | % Ownership: | 100.0000000000% |
| | | Exemptions: | |
Taxes and Assessment Details
Property Tax Information as of
02/21/2026
Click on "Statement Details" to expand or collapse a tax statement.
* Please enter a valid date ** Please enter a valid date *
Statement Details |
| | TOTAL: | $0.00 | $0.00 | $0.00 | $0.00 | $0.00 | $0.00 |
|
| | $0.00 | $0.00 | $0.00 | $0.00 | $0.00 | $0.00 |
Values
| (+) Improvement Homesite Value: | + | $0 | |
| (+) Improvement Non-Homesite Value: | + | $0 | |
| (+) Land Homesite Value: | + | $0 | |
| (+) Land Non-Homesite Value: | + | $8,700 | |
| (+) Curr Use (HS): | + | $0 | $0 |
| (+) Curr Use (NHS): | + | $0 | $0 |
| | | -------------------------- | |
| (=) Market Value: | = | $8,700 | |
| (–) Productivity Loss: | – | $0 | |
| | | -------------------------- | |
| (=) Subtotal: | = | $8,700 | |
| (+) Senior Appraised Value: | + | $0 | |
| (+) Non-Senior Appraised Value: | + | $8,700 | |
| | | -------------------------- | |
| (=) Total Appraised Value: | = | $8,700 | |
| (–) Senior Exemption Loss: | – | $0 | |
| (–) Exemption Loss: | – | $0 | |
| | | -------------------------- | |
| (=) Taxable Value: | = | $8,700 | |
Taxing Jurisdiction
| Owner: | WALLA WALLA UNIVERSITY | | |
| % Ownership: | 100.0000000000% | | |
| Total Value: | $8,700 | | |
| Tax Area: | 75 - CP 250 |
| CERFD | CURRENT EXPENSE REFUND 010 | 0.0000000000 | $8,700 | $8,700 | $0.00 | | |
| CURREXP | CURRENT EXPENSE 010 | 1.0175366760 | $8,700 | $8,700 | $8.85 | | |
| HUMNSERV | HUMAN SERVICES 119 | 0.0250000000 | $8,700 | $8,700 | $0.22 | | |
| SLDREL | SOLDIERS RELIEF 121 | 0.0155990005 | $8,700 | $8,700 | $0.14 | | |
| COLLPLBOND | C OF CP BOND 644 | 0.4374241808 | $8,700 | $8,700 | $3.81 | | |
| COLLPLGEN | CITY OF CP 632 | 1.4453819216 | $8,700 | $8,700 | $12.57 | | |
| EMERGSER | EMS 147 | 0.3792580840 | $8,700 | $8,700 | $3.30 | | |
| EMSRFD | EMS REFUND 147 | 0.0000000000 | $8,700 | $8,700 | $0.00 | | |
| RURALLIB | RURAL LIBRARY 623 | 0.3710609029 | $8,700 | $8,700 | $3.23 | | |
| PORTRFD | PORT REFUND 640 | 0.0000000000 | $8,700 | $8,700 | $0.00 | | |
| PORTWWGEN | PORT OF WW 640 | 0.2460186015 | $8,700 | $8,700 | $2.14 | | |
| SD250BOND | SD #250 BOND 773 | 1.4560608159 | $8,700 | $8,700 | $12.67 | | |
| SD250GEN | SD #250 GENERAL 770 | 2.3880724087 | $8,700 | $8,700 | $20.78 | | |
| ST2 | STATE SCHOOL PART 2 600 | 0.8131451643 | $8,700 | $8,700 | $7.07 | | |
| STATESCHL | STATE SCHOOL 600 | 1.5158548041 | $8,700 | $8,700 | $13.19 | | |
| STREFUND | STATE REFUND LEVY 603 | 0.0000000000 | $8,700 | $8,700 | $0.00 | | |
| | Total Tax Rate: | 10.1104125603 | | | | | |
| | | | | Taxes w/Current Exemptions: | $87.97 | | |
| | | | | Taxes w/o Exemptions: | $87.97 | | |
Improvement / Building
Sketch
| No sketches available for this property. |
Property Image
Land
| 1 | RES 1 | Converted: Residential | 0.3444 | 15000.00 | 0.00 | 0.00 | 1.00 | $8,700 | $0 |
Roll Value History
| 2026 | N/A | N/A | N/A | N/A | N/A |
| 2025 | $0 | $26,290 | $0 | $26,290 | $26,290 |
| 2024 | $0 | $8,700 | $0 | $8,700 | $8,700 |
| 2023 | $0 | $8,700 | $0 | $8,700 | $8,700 |
| 2022 | $0 | $8,700 | $0 | $8,700 | $8,700 |
| 2021 | $0 | $8,700 | $0 | $8,700 | $8,700 |
| 2020 | $0 | $8,700 | $0 | $8,700 | $8,700 |
| 2019 | $0 | $4,400 | $0 | $4,400 | $4,400 |
| 2018 | $0 | $4,400 | $0 | $4,400 | $4,400 |
| 2017 | $0 | $4,400 | $0 | $4,400 | $4,400 |
| 2016 | $0 | $4,400 | $0 | $4,400 | $4,400 |
| 2015 | $0 | $4,400 | $0 | $4,400 | $4,400 |
| 2014 | $0 | $6,000 | $0 | $6,000 | $6,000 |
| 2013 | $0 | $6,000 | $0 | $6,000 | $6,000 |
| 2012 | $0 | $6,000 | $0 | $0 | $0 |
| 2011 | $0 | $6,000 | $0 | $0 | $0 |
| 2010 | $0 | $6,000 | $0 | $0 | $0 |
| 2009 | $0 | $6,000 | $0 | $0 | $0 |
| 2008 | $0 | $3,200 | $0 | $0 | $0 |
| 2007 | $0 | $3,200 | $0 | $0 | $0 |
Deed and Sales History
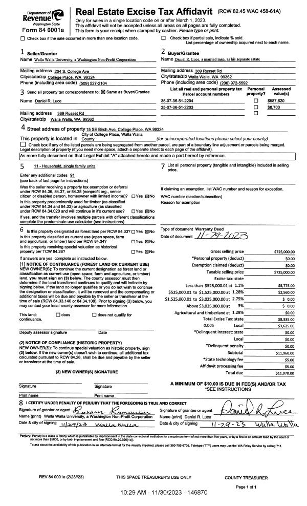
| 1 | 11/30/2023 | QCD | QUIT CLAIM DEED | | LUCE DANIEL R | | 2-PARCLES | | 146871 | 2023-06925 |
| 2 | 11/29/2023 | SWD | STATUTORY WARRANTY DEED | WALLA WALLA UNIVERSITY | LUCE DANIEL R | | 2-PARCELS | $725,000.00 | 146870 | 2023-06924 |
|   | |
| 3 | 04/29/2022 | BARGAIN & | BARGAIN & SALE DEED | THOMPSON WILLIAM L ESTATE OF | WALLA WALLA UNIVERSITY | | 2-PARCLES | $758,795.00 | 143856 | 2022-03656 |
|   | |
| 4 | 01/10/2005 | WARRANTY D | WARRANTY DEED | "THOMPSON, DIANA" | | | | | 106577 | 2005-00399 |
| 5 | 04/24/1995 | WARRANTY D | WARRANTY DEED | | | | | $124,500.00 | 83874 | 2299-503770 |
|   | |
Payout Agreement
| No payout information available.. |