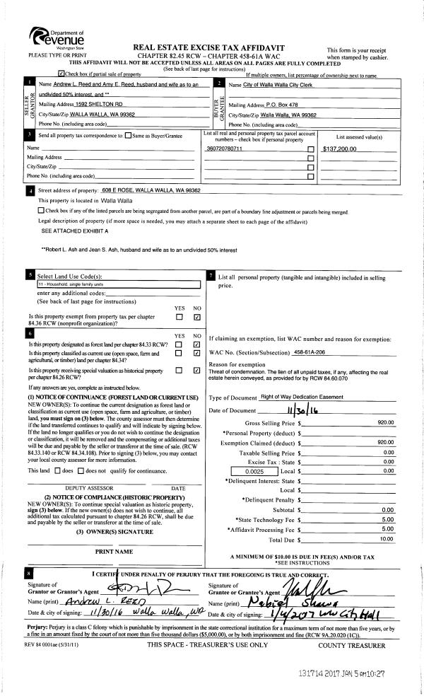
| 1 | 04/14/2025 | BARGAIN & | BARGAIN & SALE DEED | REED ANDREW L & AMY | BOARD OF TRUSTEES OF WHITMAN COLLEGE | | 11-PARCELS | $3,472,000.00 | 149230 | 2025-01982 |
|   | |
| 2 | 04/27/2020 | SWD | STATUTORY WARRANTY DEED | WHITMAN INVESTORS LLC | REED ANDREW L & AMY | | 2-PARCLES | $298,000.00 | 138983 | 2020-03572 |
| 3 | 01/31/2020 | QCD | QUIT CLAIM DEED | ASH ROBERT L & JEAN S | WHITMAN INVESTORS LLC | | | $0.00 | 138549 | 2020-01039 |
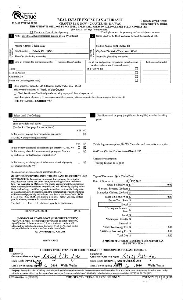
| 4 | 05/05/2016 | QCD | QUIT CLAIM DEED | ASH ROBERT L & JEAN S ET AL | ASH ROBERT L & JEAN S | | | | 130177 | 2016-03407 |
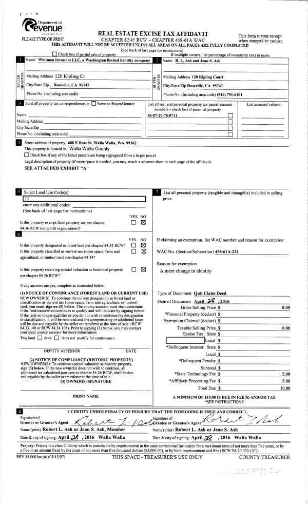
| 5 | 04/28/2016 | QCD | QUIT CLAIM DEED | WHITMAN INVESTORS LLC ET AL | ASH ROBERT L & JEAN S ET AL | | | | 130116 | 2016-03165 |
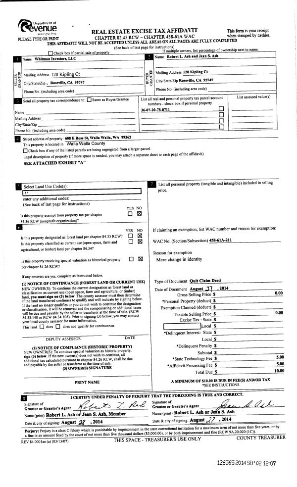
| 6 | 06/26/2015 | QCD | QUIT CLAIM DEED | ASH ROBERT L & JEAN S AND DAVID L ASH | WHITMAN INVESTORS LLC ET AL | | | $0.00 | 128914 | 2015-08596 |
| 7 | 04/24/2015 | QCD | QUIT CLAIM DEED | ASH ROBERT L & JEAN S | ASH ROBERT L & JEAN S AND DAVID L ASH | | | | 127836 | 2015-03345 |
| 8 | 05/11/2015 | QCD | QUIT CLAIM DEED | | ASH ROBERT L & JEAN S | | | | 127835 | 2015-03344 |