Property
Account |
| Property ID: | 43159 | Abbreviated Legal Description: | 29-7-36 PARCEL #16 TRACT A OF SURVEY 1979-08710 |
| Parcel Number: | 360729440016 | Agent Code: | |
| Type: | Real | | |
| Tax Area: | 1 - OL-140-F | Land Use Code | 12 |
| Open Space: | N | DFL | N |
| Historic Property: | N | Remodel Property: | N |
| Multi-Family Redevelopment: | N | | |
| Township: | 7 | Section: | 29 |
| Range: | 36 |
Location |
| Address: | 8 W TIETAN ST WA 99362 | Mapsco: | |
| Neighborhood: | A Res Duplex | Map ID: | |
| Neighborhood CD: | 613031 |
Owner |
| Name: | STILLWATER DEVELOPMENT LLC | Owner ID: | 73339 |
| Mailing Address: | 3064 S 3RD AVE WALLA WALLA, WA 99362 | % Ownership: | 100.0000000000% |
| | | Exemptions: | |
Taxes and Assessment Details
Property Tax Information as of
02/21/2026
Click on "Statement Details" to expand or collapse a tax statement.
* Please enter a valid date ** Please enter a valid date *
Statement Details |
| | TOTAL: | $0.00 | $0.00 | $0.00 | $0.00 | $0.00 | $0.00 |
|
| | $0.00 | $0.00 | $0.00 | $0.00 | $0.00 | $0.00 |
Values
| (+) Improvement Homesite Value: | + | $0 | |
| (+) Improvement Non-Homesite Value: | + | $337,470 | |
| (+) Land Homesite Value: | + | $0 | |
| (+) Land Non-Homesite Value: | + | $100,630 | |
| (+) Curr Use (HS): | + | $0 | $0 |
| (+) Curr Use (NHS): | + | $0 | $0 |
| | | -------------------------- | |
| (=) Market Value: | = | $438,100 | |
| (–) Productivity Loss: | – | $0 | |
| | | -------------------------- | |
| (=) Subtotal: | = | $438,100 | |
| (+) Senior Appraised Value: | + | $0 | |
| (+) Non-Senior Appraised Value: | + | $438,100 | |
| | | -------------------------- | |
| (=) Total Appraised Value: | = | $438,100 | |
| (–) Senior Exemption Loss: | – | $0 | |
| (–) Exemption Loss: | – | $0 | |
| | | -------------------------- | |
| (=) Taxable Value: | = | $438,100 | |
Taxing Jurisdiction
| Owner: | STILLWATER DEVELOPMENT LLC | | |
| % Ownership: | 100.0000000000% | | |
| Total Value: | $438,100 | | |
| Tax Area: | 1 - OL-140-F |
| CERFD | CURRENT EXPENSE REFUND 010 | 0.0000000000 | $438,100 | $438,100 | $0.00 | | |
| CURREXP | CURRENT EXPENSE 010 | 0.9851088983 | $438,100 | $438,100 | $431.58 | | |
| HUMNSERV | HUMAN SERVICES 119 | 0.0250000000 | $438,100 | $438,100 | $10.95 | | |
| SLDREL | SOLDIERS RELIEF 121 | 0.0155990000 | $438,100 | $438,100 | $6.83 | | |
| EMERGSER | EMS 147 | 0.3676811629 | $438,100 | $438,100 | $161.08 | | |
| EMSRFD | EMS REFUND 147 | 0.0000000000 | $438,100 | $438,100 | $0.00 | | |
| PORTRFD | PORT REFUND 640 | 0.0000000000 | $438,100 | $438,100 | $0.00 | | |
| PORTWWGEN | PORT OF WW 640 | 0.2344301070 | $438,100 | $438,100 | $102.70 | | |
| SD140BOND | SD #140 BOND 764 | 0.8032434458 | $438,100 | $438,100 | $351.90 | | |
| SD140CAP | SD #140 CAP 762 | 0.3840034221 | $438,100 | $438,100 | $168.23 | | |
| SD140GEN | SD #140 GENERAL 760 | 2.4999999996 | $438,100 | $438,100 | $1,095.25 | | |
| ST2 | STATE SCHOOL PART 2 600 | 0.8853714103 | $438,100 | $438,100 | $387.88 | | |
| STATESCHL | STATE SCHOOL 600 | 1.6424571473 | $438,100 | $438,100 | $719.56 | | |
| STREFUND | STATE REFUND LEVY 603 | 0.0000000000 | $438,100 | $438,100 | $0.00 | | |
| CWWBOND | C OF WW BOND 643 | 0.2642134255 | $438,100 | $438,100 | $115.75 | | |
| CWWGEN | CITY OF WW 631 | 1.6110494978 | $438,100 | $438,100 | $705.80 | | |
| CWWRFD | CITY OF WALLA WALLA REFUND 631 | 0.0000000000 | $438,100 | $438,100 | $0.00 | | |
| | Total Tax Rate: | 9.7181575166 | | | | | |
| | | | | Taxes w/Current Exemptions: | $4,257.51 | | |
| | | | | Taxes w/o Exemptions: | $4,257.51 | | |
Improvement / Building
| Improvement #1: | RESIDENTIAL | State Code: | 12 | 2086.0 sqft | Value: | $337,470 |
| Exterior Wall: | HARDBOARD | Heating/Cooling: | MINI-SPLIT HP SYSTEM | | Number of Bathrooms: | 4 | Number of Bedrooms: | 4 | | Plumbing: | 15 | Roof Covering: | COMP SHINGLE |
|
| | Type | Description | Class CD | Sub Class CD | Year Built | Area |
| | MA | Main Area | 1 | 40 | 2021 | 2086.0 |
| | SI1 | SITE IMPROVEMENT | 1 | 40 | 2021 | 4.0 |
| | RPC | OPEN PORCH W/ROOF , CEILED | 1 | 40 | 2021 | 72.0 |
| | RPC | OPEN PORCH W/ROOF , CEILED | 1 | 40 | 2021 | 78.0 |
| | ATG | Attached Garage | 1 | 40 | 2021 | 264.0 |
| | ATG | Attached Garage | 1 | 40 | 2021 | 299.0 |
| | RPC | OPEN PORCH W/ROOF , CEILED | 1 | 40 | 2021 | 28.0 |
| | RPC | OPEN PORCH W/ROOF , CEILED | 1 | 40 | 2021 | 28.0 |
Sketch
Property Image
Land
| 1 | RES 1 | Converted: Residential | 0.2100 | 9148.00 | 0.00 | 0.00 | 1.00 | $100,630 | $0 |
Roll Value History
| 2026 | N/A | N/A | N/A | N/A | N/A |
| 2025 | $337,470 | $100,630 | $0 | $438,100 | $438,100 |
| 2024 | $355,800 | $82,300 | $0 | $438,100 | $438,100 |
| 2023 | $347,670 | $82,330 | $0 | $430,000 | $430,000 |
| 2022 | $347,670 | $66,320 | $0 | $413,990 | $413,990 |
| 2021 | $60,590 | $66,320 | $0 | $126,910 | $126,910 |
| 2020 | $0 | $66,320 | $0 | $66,320 | $66,320 |
| 2019 | $0 | $66,320 | $0 | $66,320 | $66,320 |
| 2018 | $0 | $57,180 | $0 | $57,180 | $57,180 |
| 2017 | $0 | $9,035 | $0 | $9,035 | $9,035 |
| 2016 | $0 | $9,035 | $0 | $9,035 | $9,035 |
| 2015 | $0 | $9,035 | $0 | $9,035 | $9,035 |
| 2014 | $0 | $9,035 | $0 | $9,035 | $9,035 |
Deed and Sales History
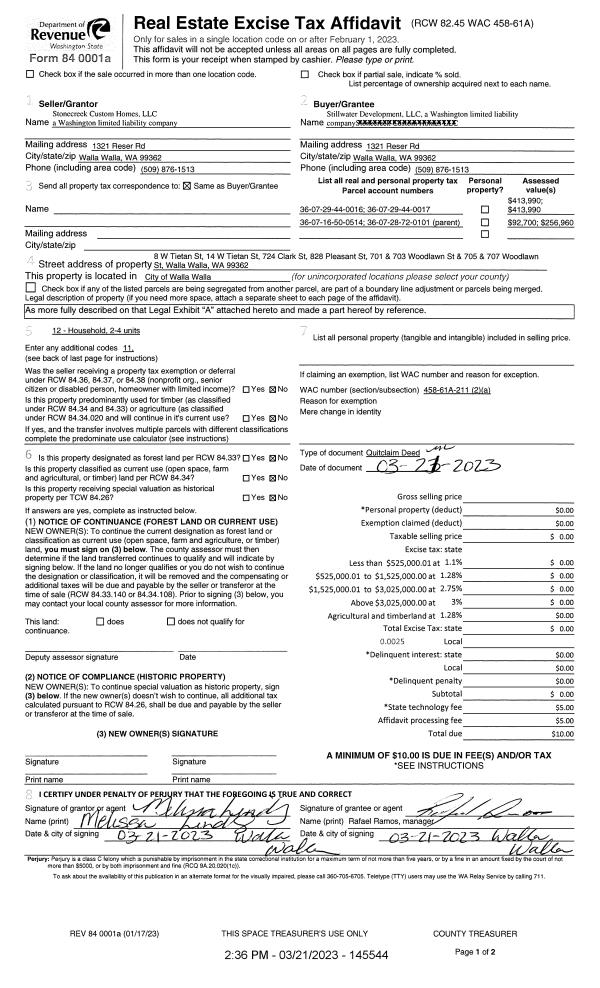
| 1 | 03/21/2023 | QCD | QUIT CLAIM DEED | STONE CREEK CUSTOM HOMES LLC | STILLWATER DEVELOPMENT LLC | | | | 145544 | 2023-01456 |
| 2 | 03/07/2019 | WARRANTY D | WARRANTY DEED | WEBB ROBERT N | STONE CREEK CUSTOM HOMES LLC | | 2-PARCELS | $102,500.00 | 136486 | 2019-01472 |
|   | |
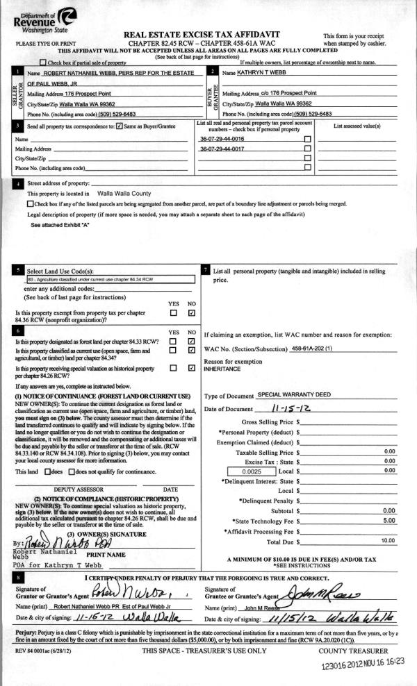
| 3 | 11/12/2014 | WARRANTY D | WARRANTY DEED | | WEBB ROBERT N & MERIDITH WEBB PARKER & REBECCA J CARDELL | | | $0.00 | 126949 | 2014-08299 |
| 4 | 11/16/2012 | WARRANTY D | WARRANTY DEED | WEBB, PAUL JR ESTATE OF | WEBB KATHRYN T | | | $0.00 | 123016 | 2012-10196 |
| 5 | 08/10/1987 | WARRANTY D | WARRANTY DEED | | | | | $34,100.00 | 0 | 1668-706159 |
|   | |
Payout Agreement
| No payout information available.. |